ypg schrieb:
Ja, es wirkt etwas wie ein Labyrinth... allerdings nimmt ein offener Flur mit Fenster die Enge. Ich würde eher an einem QM in einem Raum verzichten und dafür die grundsätzliche Beklommenheit beim Hochgehen mildern.
Es hat anonsten auch vieles wie ein Showroom: unten Pinterest für die Gäste, und oben ist es ein Schuhkarton zum Würgen.ja das stimmt für oben müsste noch eine Lösung her.. ich habe unten Bilder eingefügt.. vielleicht so besser?
ypg schrieb:
Sowieso nicht, weil alles nur als Skizze dienen soll und kann.
Hier nochmal eine familienfreundlichere Variante... von oben nach unten geplant:
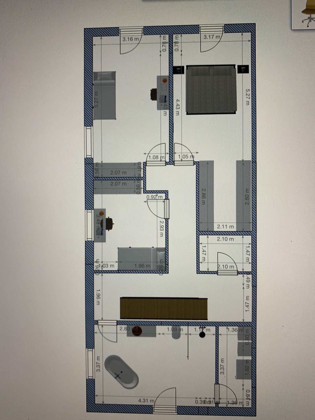
[ATTACH alt="grundriss-Doppelhaushälfte-7x16m-auf-390qm-in-einer-siedlung-533009-1.png"]66022[/ATTACH][ATTACH alt="grundriss-Doppelhaushälfte-7x16m-auf-390qm-in-einer-siedlung-533009-2.png"]66023[/ATTACH]Hm ja jetzt ist es oben aufjedenfall besser. Wie sind denn die Pläne? Siege AnhangIch würde das OG nicht mögen. Schlafzimmer zu schmal, Doppelflügelfenster nicht bedienbar...
Wenn es Euch gefällt? (Die Tür zum Hauswirtschaftsraum kann nicht unter einer Schrägen platziert werden, Fnester im Giebel auch nicht)
Im EG würde ich drauf achten, dass man vom Allraum nicht auf das Auto schaut. Auto vorn parkt wie ein? Eingangsüberstand realisierbar?
Wenn es Euch gefällt? (Die Tür zum Hauswirtschaftsraum kann nicht unter einer Schrägen platziert werden, Fnester im Giebel auch nicht)
Im EG würde ich drauf achten, dass man vom Allraum nicht auf das Auto schaut. Auto vorn parkt wie ein? Eingangsüberstand realisierbar?
ypg schrieb:
Ich würde das OG nicht mögen. Schlafzimmer zu schmal, Doppelflügelfenster nicht bedienbar...
Wenn es Euch gefällt? (Die Tür zum Hauswirtschaftsraum kann nicht unter einer Schrägen platziert werden, Fnester im Giebel auch nicht)
Im EG würde ich drauf achten, dass man vom Allraum nicht auf das Auto schaut. Auto vorn parkt wie ein? Eingangsüberstand realisierbar?die Fenster sollen ein Dachfenster darstellen, in der App sind leider keine Dachfenster..
Hauswirtschaftsraum könnte man auch von außen Eine Tür machen. Aber alles in einem kein Träumchen. Vorher fand ich das OG gut so wie es ist.. vor allem Wird die Treppe ins DG wahrscheinlich auch nicht funktionieren weil es unter der schräge ist.
Deswegen bleibe ich wohl oder übel bei meiner ersten Planung und nehme das Schlauchige in Kauf, weil das OG auch wichtig ist… obwohl ich das EG wirklich perfekt fände
M
Myrna_Loy11.10.21 15:15Diese ganzen Planungsvorschläge sind doch ins Blaue hinein, ohne mehr zu den Grundlagen zu wissen. Die möglichen Raumhöhen sollten bei solchen Dimensionen z.B. auch bekannt sein. Bei maximal 2,60 m Deckenhöhe plant man schöne Bahnhofsunterführungensinneseindrücke. Besonders, wenn man mit Nord- und Ostlicht spielen muss. Ein dunklel-kühl wirkender Wohnraum am Ende eines langen Tunnels, da kommt kein gutes Wohngefühl auf.
Und dass die Planungsaufgabe nichts für "hier plant der Bauherr selber" Entwürfe ist, das erkennt man spätestens bei den Schwierigkeiten der Planungen des OG.
Ich bleibe bei meiner Einschätzung, dass ein kürzeres Haus mit ausgebauten - und damit integral mitgeplanten! DG mehr Wohn- und Lebenswert hat, als das Baufenster maximal auszunutzen, weil es so geht und man denkt, mehr ist mehr.
Und dass die Planungsaufgabe nichts für "hier plant der Bauherr selber" Entwürfe ist, das erkennt man spätestens bei den Schwierigkeiten der Planungen des OG.
Ich bleibe bei meiner Einschätzung, dass ein kürzeres Haus mit ausgebauten - und damit integral mitgeplanten! DG mehr Wohn- und Lebenswert hat, als das Baufenster maximal auszunutzen, weil es so geht und man denkt, mehr ist mehr.
Myrna_Loy schrieb:
Diese ganzen Planungsvorschläge sind doch ins Blaue hinein, ohne mehr zu den Grundlagen zu wissen. Die möglichen Raumhöhen sollten bei solchen Dimensionen z.B. auch bekannt sein. Bei maximal 2,60 m Deckenhöhe plant man schöne Bahnhofsunterführungensinneseindrücke. Besonders, wenn man mit Nord- und Ostlicht spielen muss. Ein dunklel-kühl wirkender Wohnraum am Ende eines langen Tunnels, da kommt kein gutes Wohngefühl auf.
Und dass die Planungsaufgabe nichts für "hier plant der Bauherr selber" Entwürfe ist, das erkennt man spätestens bei den Schwierigkeiten der Planungen des OG.
Ich bleibe bei meiner Einschätzung, dass ein kürzeres Haus mit ausgebauten - und damit integral mitgeplanten! DG mehr Wohn- und Lebenswert hat, als das Baufenster maximal auszunutzen, weil es so geht und man denkt, mehr ist mehr.Welche Infos werden denn noch benötigt?! Deckenhöhe ist mit 2,50 geplant. Wir möchten das Haus nicht kürzer gestalten da ich ja jetzt schon kaum auskomme mit dem Platz und meinen Wünschen. Ein kürzeres aber dafür breiteres Haus wäre natürlich perfekt. Habe ich andere nun mal nicht. Das OG und DG gefällt mir, würde ich so lassen ohne das ich ein schlechtes Gewissen habe. Im EG mag ich das komplett offene, klar stört mich auch das schlauchige aber wz und Küche/essbereich zu trennen gefällt ihr auch nicht. Wenn ich die Südseite hätte würde ich mir Garkeine Gedanken machen. Mein HAUPTPROBLEM ist nicht der Schnitt an sich sondern eher das es zu dunkel wird und ich deswegen etwas umgestalten möchte um mehr Fenster planen zu können. Aber ich möchte im Weste eine Tür mit mittlerem Glas Element und einem Glas Seitenteil, wo ich auch einbisschen Licht abkriege. Ich HOFFE einfach das es wenn es so bleibt nicht dunkel wird. Weil iwie passen die ganzen Änderung bzw. versuche die i h gestartet habe auch nicht viel.
Mein Nachbar ggü der schon gebaut hat (war schon Probegucken im Haus) hat zwar die Südseite aber im Süden garkeine fenster. Norden auch keine. Im Western 2 große Terrassentüren zum Garten. Und in der Küche (die NICHT offen ist) zur Ost Seite rein Fenster. Und ich fand es vom Licht her nicht dunkel. Daher hoffe ich das es bei mir auch akzeptabel wird da ist eig mehr Fenster habe…
Ähnliche Themen