ᐅ Grundriss ca. 170 m² Einfamilienhaus, ohne Keller mit Carport
Erstellt am: 06.06.22 20:07
S
SandyBlackS
SandyBlack13.06.22 15:58Danke für den Vorschlag @Würfel* 🙂
Also prinzipiell "muss" es keine Podesttreppe sein. Was uns bei der Podesttreppe einfach besser gefällt ist die höhere Sicherheit für die Kinder.
Unsere Kleine ist beim Einzug in etwa 3 Jahre und ein Zweites Kind ist geplant. Daher ist es uns wichtig, dass die Treppe möglichst sicher ist. Deswegen möchten wir z.B. auch eine geschlossene Treppe. Bei einer gewendelten ist das Thema, dass die Stufen im Treppenauge deutlich schmäler sind und daher eher die Gefahr besteht, dass ein Kind runter purzelt. Deswegen bevorzugen wir prinzipiell eine Podesttreppe. Aber erzwungen muss sie nicht werden.
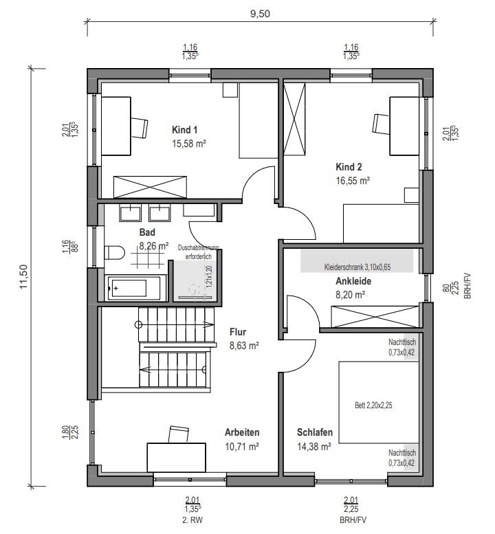
Unsere Architektin hat heute auch Ihren Entwurf geschickt.
Katjas' Entwurf gefällt uns jedoch momentan besser. Die Ausrichtung scheint uns da besser gelöst zu sein.



Also prinzipiell "muss" es keine Podesttreppe sein. Was uns bei der Podesttreppe einfach besser gefällt ist die höhere Sicherheit für die Kinder.
Unsere Kleine ist beim Einzug in etwa 3 Jahre und ein Zweites Kind ist geplant. Daher ist es uns wichtig, dass die Treppe möglichst sicher ist. Deswegen möchten wir z.B. auch eine geschlossene Treppe. Bei einer gewendelten ist das Thema, dass die Stufen im Treppenauge deutlich schmäler sind und daher eher die Gefahr besteht, dass ein Kind runter purzelt. Deswegen bevorzugen wir prinzipiell eine Podesttreppe. Aber erzwungen muss sie nicht werden.
Unsere Architektin hat heute auch Ihren Entwurf geschickt.
Katjas' Entwurf gefällt uns jedoch momentan besser. Die Ausrichtung scheint uns da besser gelöst zu sein.
SandyBlack schrieb:
Was uns bei der Podesttreppe einfach besser gefällt ist die höhere Sicherheit für die Kinder.Das ist so nicht richtig. Podest hat auch Vorzüge, aber keine höhere Sicherheit für Kinder, im Gegenteil…SandyBlack schrieb:
Bei einer gewendelten ist das Thema, dass die Stufen im Treppenauge deutlich schmäler sind und daher eher die Gefahr besteht, dass ein Kind runter purzelt.… wenn man nicht gerade Kampfmaße nimmt.Das Podest stoppt Deinen Gang, Du musst quasi wenden. Das birgt die Gefahr. Eine 2-Fach-gewendelte hat einen durchgängigen Flow. Meine Enkelin ist mit solch einer Treppe sofort klargekommen und flitzt diese rauf und runter. Und zwar dort, wo die Stufen schmaler sind, weil es für ihre Füße abgestimmter ist. Erwachsene nehmen die Stufen weiter außen.
Deine Podesttreppe werden die Kleinen vermutlich nur behäbig langsam nehmen können, weil die Stufen zu breit für die kleinen Füße sind.
Trampoline sind übrigens gefährlicher als Treppen, wenn mehr als ein Kind springt 😉
S
SandyBlack13.06.22 17:33Hm, ok, wir dachten dass durch die schmaleren Stufen erhöhte Ausrutschgefahr besteht.
Welche Vorteile hat denn dann die Podesttreppe? In erster Linie Aussehen?
Welche Vorteile hat denn dann die Podesttreppe? In erster Linie Aussehen?
…. Man fällt nur zur Hälfte, wenn man fällt.
Ich denke mal, man macht sich da zu viel an Gedanken. Kinder sind doch die Flexibilität in Persona.
Ich denke mal, man macht sich da zu viel an Gedanken. Kinder sind doch die Flexibilität in Persona.
SandyBlack schrieb:Und dann nur mit Griff? Guck, die „Harfe“ oder beim Geländer vertikale Streben haben den Vorteil, dass das Kind in jeder Größe überall anfassen und sich somit sichern kann
Daher ist es uns wichtig, dass die Treppe möglichst sicher ist. Deswegen möchten wir z.B. auch eine geschlossene Treppe.
SandyBlack schrieb:
Katjas' Entwurf gefällt uns jedoch momentan besser.Mir auch! Der von der Architektin ist irgendwie lieblos und viel zu sehr gen Norden orientiert.Würfel* schrieb:
Mir auch! Der von der Architektin ist irgendwie lieblos und viel zu sehr gen Norden orientiert.... und die Ausrichtung nach Norden muss nicht schlecht sein.
Ich finde den Entwurf gar nicht schlecht.
Ähnliche Themen