ᐅ Grundriss ca. 170 m² Einfamilienhaus, ohne Keller mit Carport
Erstellt am: 06.06.22 20:07
S
SandyBlackIch hatte eher so in der Art gedacht:

Man sitzt üblicherweise ungern mit dem Rücken zur Tür. Die Laufwege würde ich auch versuchen, großzügig frei zu halten. Aber letztendlich könnt Ihr es halten, wie Ihr wollt.
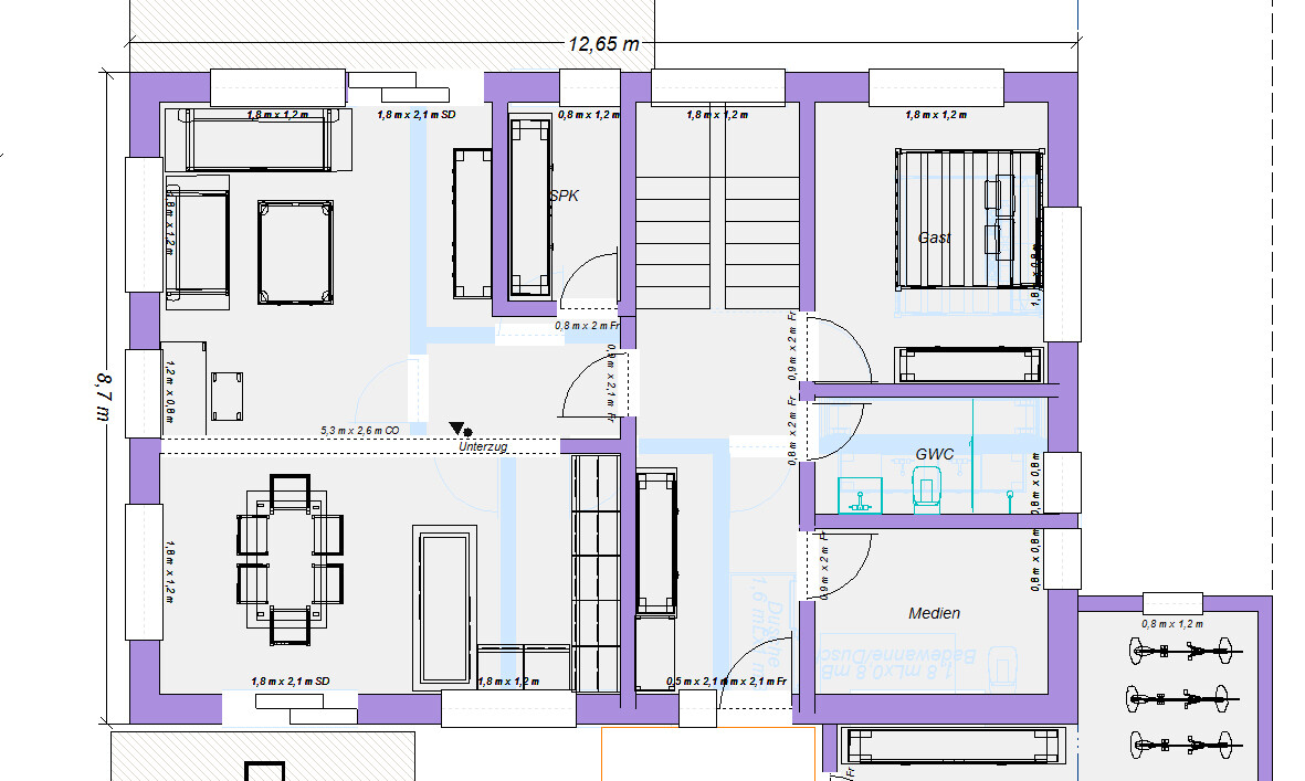
Ich vermute übrigens, dass man ohne einen Unterzug nicht auskäme. Sowas kann man normalerweise heutzutage gut einplanen und kaschieren. Aber die Frage ist, inwieweit die Firma dazu bereit wäre bzw. Möglichkeiten hat oder ob es Euch überhaupt stört. Von daher gut überlegen, ob das ein KO-Kriterium ist.
Man sitzt üblicherweise ungern mit dem Rücken zur Tür. Die Laufwege würde ich auch versuchen, großzügig frei zu halten. Aber letztendlich könnt Ihr es halten, wie Ihr wollt.
Ich vermute übrigens, dass man ohne einen Unterzug nicht auskäme. Sowas kann man normalerweise heutzutage gut einplanen und kaschieren. Aber die Frage ist, inwieweit die Firma dazu bereit wäre bzw. Möglichkeiten hat oder ob es Euch überhaupt stört. Von daher gut überlegen, ob das ein KO-Kriterium ist.
S
SandyBlack14.06.22 06:48Unterzug würde uns nicht stören. Im Gegenteil - in Holz ausgeführt kann das doch richtig schön aussehen.
Aber werden wir auf jeden Fall ansprechen. Danke für den Hinweis!
Aber werden wir auf jeden Fall ansprechen. Danke für den Hinweis!
B
Benutzer 100114.06.22 07:07@K a t j a
Immer wieder faszinierend wie toll du das mit den Grundrissen löst. Danke
Zur Treppe wir haben eine halbgewedelte, die Kinder kommen super damit zu Recht und ich denke das sie mindesten 70-80cm in der Tiefe platzsparender ist als eine Podest. Hat man diesen Raum zur Verfügung würde ich sofort eine Podest Treppen nehmen da sie mir optisch besser gefällt.
Immer wieder faszinierend wie toll du das mit den Grundrissen löst. Danke
Zur Treppe wir haben eine halbgewedelte, die Kinder kommen super damit zu Recht und ich denke das sie mindesten 70-80cm in der Tiefe platzsparender ist als eine Podest. Hat man diesen Raum zur Verfügung würde ich sofort eine Podest Treppen nehmen da sie mir optisch besser gefällt.
S
SandyBlack14.06.22 09:19Im Bebauungsplan ist dazu nichts angegeben - daher gehe ich davon aus.