ᐅ Grundriss ca. 170 m² Einfamilienhaus, ohne Keller mit Carport
Erstellt am: 06.06.22 20:07
S
SandyBlackS
SandyBlack14.06.22 09:58Okay - dann drücken wir mal die Daumen, dass unsere Architektin dafür eine Lösungsidee hat 🙂
ypg schrieb:
Der Unterzug wird wahrscheinlich zu lang sein. Ich denke, das sind @K a t j a s Bedenken (meine übrigens auch)
Über 5m - ich hab zwar auch schon 6m gesehen, aber das ist dann wirklich eine Frage für den Statiker und sollte ganz am Anfang des Gesprächs mit der Architektin stehen.S
SandyBlack22.08.22 09:04Hallo zusammen,
erstmal sorry für meine späte Rückmeldung.
Wir sind mit der Architektin unseres Hausanbieters zu keinem für uns zufriedenstellenden Ergebnis gekommen. Das lag sicher auch daran, dass der verfügbare Zeitslot je Kunde bei so einem Konstrukt relativ überschaubar ist.
Daher haben wir beschlossen den Hausentwurf von einem freien Architekten anfertigen zu lassen. Der Hausanbieter hat sich damit einverstanden erklärt diesen zu übernehmen.
Entsprechend haben wir mit dem freien Architekten nochmal von Null angefangen und uns langsam an unseren Wunschentwurf heran getastet.
Wir sehen mittlerweile keine Punkte mehr, die wir gerne anders haben wollen würden. Vielleicht fällt euch noch was auf.
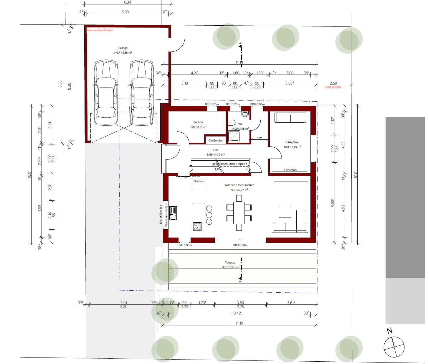
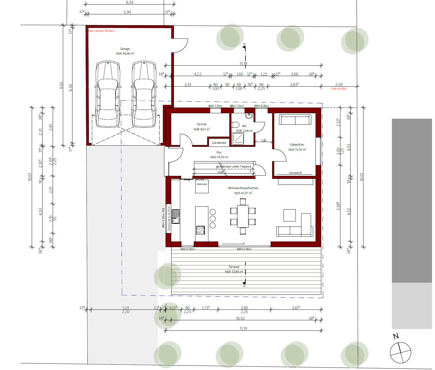
Kurze Erläuterung zum Entwurf:
Die klare Empfehlung unseres Architekten war die Wohnräume nach Süden auszurichten. Zum einen hätte dies Vorteile bei den Heizkosten im Winter. Zum anderen könnte man die Terrasse auch im Frühling und Herbst gut nutzen und müsste sich in der kalten Jahreszeit keine Sorgen um zu wenig Licht machen. Dank des zweiten Zugangs zum Garten im Norden gibt es für die heißen Sommertage ausreichend Ausweichgartenfläche. Uns gefällt diese Lösung sehr gut. Meine Frau hat sich auch in den seitlichen Hauseingang verliebt. Hinzukommt, dass wir von zwei unserer nördlich angrenzenden Nachbarn Benachrichtigungen erhalten haben. Der direkt Angrenzende möchte eine Terrasse bauen lassen und hat schon eine entsprechende Befreiung dafür erhalten. Der andere rechts neben diesem hat bereits mit dem Bau eines Balkons im 1. OG begonnen und würde somit direkt auf unser Grundstück im Norden schauen. Wir waren auch noch ein paar Mal auf dem Grundstück und sind immer wieder zu dem Schluss gekommen, dass die Gebäude auf Süd-Seite schöner sind zum Ansehen – da moderner. Auf der Nordseite ist doch alles eher heruntergekommener. Die Süd-Seite kommt uns „intimer“ vor. Dort grenzen nur zwei Nachbarn an. Einer von denen hat den Garten in die andere Richtung. Der andere hat eine Terrasse, von der er auch Einblick auf unser Grundstück hat. Diese scheint jedoch nicht mal genutzt zu werden, da das ganze Jahr über noch keine Möbel draußen standen. Selbst wenn könnte man da bestimmt was mit Sichtschutz machen. Der Nachteil ist die Zufahrt auf Süd-Seite. Aber damit können wir uns anfreunden – zumal das Wohngebiet insgesamt sehr ruhig ist.
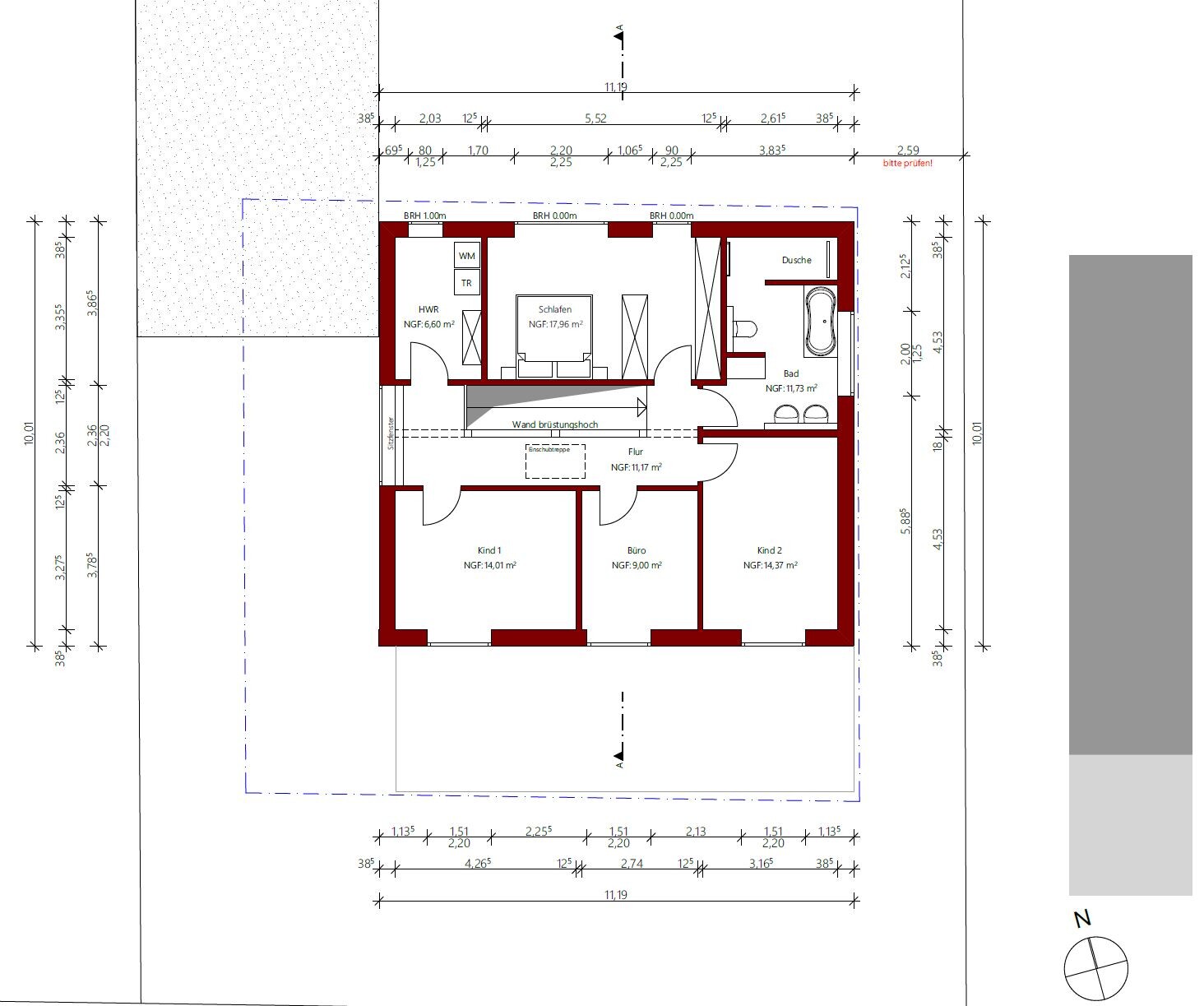
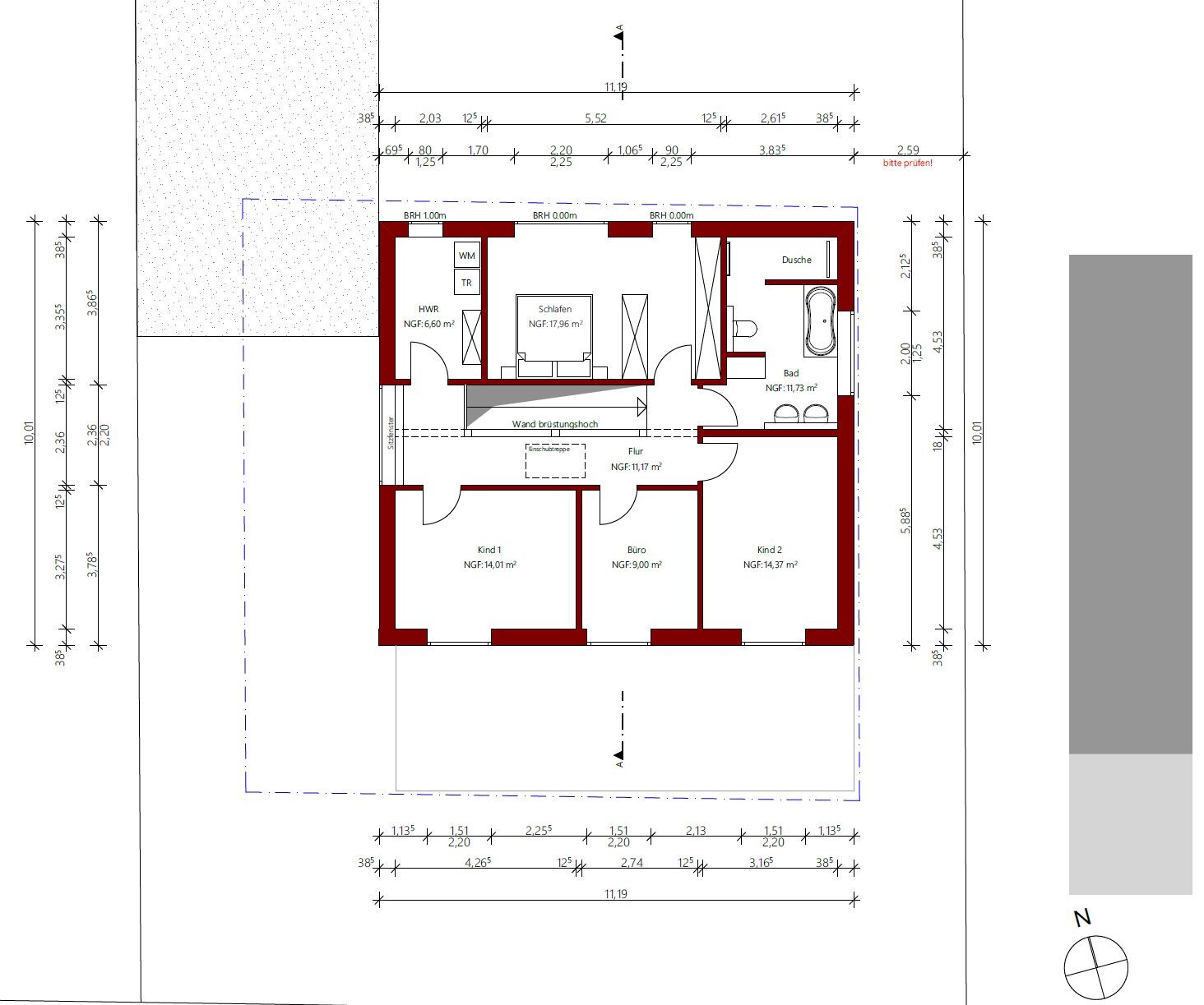
Nur bei den Fenstern sind wir uns noch nicht ganz sicher. Im OG könnten im Bad sowie den beiden Kinderzimmer noch eins kommen und im EG im Wohnzimmer. Für die Entscheidung haben wir aber glücklicherweise noch etwas Zeit.
LG





erstmal sorry für meine späte Rückmeldung.
Wir sind mit der Architektin unseres Hausanbieters zu keinem für uns zufriedenstellenden Ergebnis gekommen. Das lag sicher auch daran, dass der verfügbare Zeitslot je Kunde bei so einem Konstrukt relativ überschaubar ist.
Daher haben wir beschlossen den Hausentwurf von einem freien Architekten anfertigen zu lassen. Der Hausanbieter hat sich damit einverstanden erklärt diesen zu übernehmen.
Entsprechend haben wir mit dem freien Architekten nochmal von Null angefangen und uns langsam an unseren Wunschentwurf heran getastet.
Wir sehen mittlerweile keine Punkte mehr, die wir gerne anders haben wollen würden. Vielleicht fällt euch noch was auf.
Kurze Erläuterung zum Entwurf:
Die klare Empfehlung unseres Architekten war die Wohnräume nach Süden auszurichten. Zum einen hätte dies Vorteile bei den Heizkosten im Winter. Zum anderen könnte man die Terrasse auch im Frühling und Herbst gut nutzen und müsste sich in der kalten Jahreszeit keine Sorgen um zu wenig Licht machen. Dank des zweiten Zugangs zum Garten im Norden gibt es für die heißen Sommertage ausreichend Ausweichgartenfläche. Uns gefällt diese Lösung sehr gut. Meine Frau hat sich auch in den seitlichen Hauseingang verliebt. Hinzukommt, dass wir von zwei unserer nördlich angrenzenden Nachbarn Benachrichtigungen erhalten haben. Der direkt Angrenzende möchte eine Terrasse bauen lassen und hat schon eine entsprechende Befreiung dafür erhalten. Der andere rechts neben diesem hat bereits mit dem Bau eines Balkons im 1. OG begonnen und würde somit direkt auf unser Grundstück im Norden schauen. Wir waren auch noch ein paar Mal auf dem Grundstück und sind immer wieder zu dem Schluss gekommen, dass die Gebäude auf Süd-Seite schöner sind zum Ansehen – da moderner. Auf der Nordseite ist doch alles eher heruntergekommener. Die Süd-Seite kommt uns „intimer“ vor. Dort grenzen nur zwei Nachbarn an. Einer von denen hat den Garten in die andere Richtung. Der andere hat eine Terrasse, von der er auch Einblick auf unser Grundstück hat. Diese scheint jedoch nicht mal genutzt zu werden, da das ganze Jahr über noch keine Möbel draußen standen. Selbst wenn könnte man da bestimmt was mit Sichtschutz machen. Der Nachteil ist die Zufahrt auf Süd-Seite. Aber damit können wir uns anfreunden – zumal das Wohngebiet insgesamt sehr ruhig ist.
Nur bei den Fenstern sind wir uns noch nicht ganz sicher. Im OG könnten im Bad sowie den beiden Kinderzimmer noch eins kommen und im EG im Wohnzimmer. Für die Entscheidung haben wir aber glücklicherweise noch etwas Zeit.
LG
S
SandyBlack22.08.22 10:31ypg schrieb:
Auch meine! Natürlich auch deine und auch von @K a t j a . Aber umgekehrt gab es auch einige Punkte, die für eine andere Ausrichtung sprächen. Mir war vor allem wichtig, dass auch im Sommer meine Kleine zumindest eine Möglichkeit hat im Garten zu spielen. Dafür hat unser Architekt eine gute Lösung gefunden, wie ich finde.ypg schrieb:
Ich finde ihn grundsätzlich von der Aufteilung gut. Bad würde ich anders einrichten, Treppe offen lassen.Wie würdest du das Bad einrichten? 🙂Offene Treppe wirkt sicher schöner aber wir fürchten dass uns dann einfach die Abstellfläche fehlt - für Staubsauger, Getränkekisten etc.
SandyBlack schrieb:
Wie würdest du das Bad einrichten? 🙂Das ist Slalom zur Zeit. Wenn man erstmal im Bad steht, hat die Toi mehr Präsenz als wenn man sie mit anderen Sanitär einreiht. Da der Raum jetzt auch keinen besonderen Schnitt hat, braucht es „meine“ Möblierung nicht. Sollte einfach mal schlicht und elegant aneinandergereiht werden, dann verschwindet die Toi von selbst - wahrscheinlich sogar ohne Schamwand.Ähnliche Themen