ᐅ Grundriss Podesttreppe Varianten
Erstellt am: 15.03.16 10:06
N
Nataliezimm15.03.16 10:06Hallo zusammen,
Ich brauche mal eure Tipps.
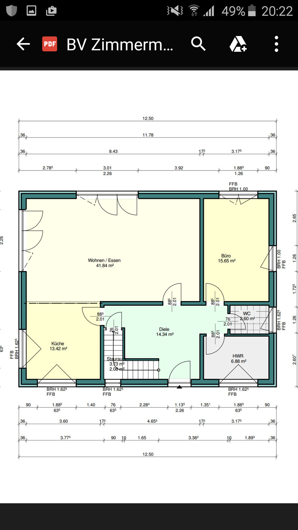
Wir haben unseren Grundriss mit dem wir auch zufrieden sind. Nur die Treppe macht mir zu schaffen. Ich kann mich nicht entscheiden.Möchte aber unbedingt eine Podesttreppe. Jetzt stehen 2 Varianten zur Auswahl.
Die eine nimmt aber viel Platz weg und die andere ist gleich an der Eingangstür. Habt ihr paar Ideen


Ich brauche mal eure Tipps.
Wir haben unseren Grundriss mit dem wir auch zufrieden sind. Nur die Treppe macht mir zu schaffen. Ich kann mich nicht entscheiden.Möchte aber unbedingt eine Podesttreppe. Jetzt stehen 2 Varianten zur Auswahl.
Die eine nimmt aber viel Platz weg und die andere ist gleich an der Eingangstür. Habt ihr paar Ideen
Ich finde bei Variante 2 (Also echte Podesttreppe) den Flur vor der Treppe zum WC sehr schmal. Es ist kein passendes Maß vorhanden, aber verglichen mit den Türmaßen wird der wohl 1,0-1,1m Breite haben. Vorlauf auch 1,2m.
In unserer momentanen Wohnung hat der Gang ein Rohbaumaß von 1,15m.
Schmaler würde ich das nicht haben wollen.
Auch ist bei dir der Gang mit ca. 5m Länge nicht gerade Kurz. Durch fehlende Fenster dürfte der ziemlich finster werden.
Ich würde also die 90° Treppe bevorzugen. Der Eingang kommt viel größer und freundlicher daher, als bei der echten Podesttreppe.
Aber ohne genaue Maße und auch Pläne vom OG ist das schwer zu beurteilen.
BTW: die Hauslängen sind nicht identisch (12,50 vs. 13,00m) Ist das bewusst?
In unserer momentanen Wohnung hat der Gang ein Rohbaumaß von 1,15m.
Schmaler würde ich das nicht haben wollen.
Auch ist bei dir der Gang mit ca. 5m Länge nicht gerade Kurz. Durch fehlende Fenster dürfte der ziemlich finster werden.
Ich würde also die 90° Treppe bevorzugen. Der Eingang kommt viel größer und freundlicher daher, als bei der echten Podesttreppe.
Aber ohne genaue Maße und auch Pläne vom OG ist das schwer zu beurteilen.
BTW: die Hauslängen sind nicht identisch (12,50 vs. 13,00m) Ist das bewusst?
Du kannst ja mal auf unseren Plan schaue, das ist keine klassische Podesttreppe, eine geteilte. K.A. wie der genaue Begriff hierfür lautet:
https://www.hausbau-forum.de/threads/Mehrfamilienhaus-3-weh-Wohnkeller-Doppelgarage-Anregungen-zur-Planung.14117/page-2#post-122035
Anbei auch mal ein Beispielbild, wie es in Natura aussehen kann. Schauen uns aktuell paar Beispiele an, was möglich wäre, Gemauert oder mit Geländer, Naturstein oder Fließen, mit oder ohne Überhang...

https://www.hausbau-forum.de/threads/Mehrfamilienhaus-3-weh-Wohnkeller-Doppelgarage-Anregungen-zur-Planung.14117/page-2#post-122035
Anbei auch mal ein Beispielbild, wie es in Natura aussehen kann. Schauen uns aktuell paar Beispiele an, was möglich wäre, Gemauert oder mit Geländer, Naturstein oder Fließen, mit oder ohne Überhang...
N
Nataliezimm15.03.16 20:17Das OG steht noch nicht 100prozentig fest,kommt auf die Treppe an.
Andere Maße habe ich auch noch nicht.
Das mit den unterschiedlichen Hauslängen ist bewusst, was euch alles so auffällt..
Andere Maße habe ich auch noch nicht.
Das mit den unterschiedlichen Hauslängen ist bewusst, was euch alles so auffällt..
N
Nataliezimm15.03.16 21:18Die geteilte Treppe nimmt aber auch viel Platz weg. Und es wird eng und dunkel.
Ich tendiere jetzt eher zu der 1/4 gewendelten (heißt die so?)
Was ich aber gar nicht mag, wenn man die Tür aufmacht und gleich die Treppe hat.
Ich tendiere jetzt eher zu der 1/4 gewendelten (heißt die so?)
Was ich aber gar nicht mag, wenn man die Tür aufmacht und gleich die Treppe hat.