Hausbau - Ratgeber
Bauherrenhilfe
- Bauherrenhilfe vor Vertragsabschluss
-- Warum einen unabhängigen Baubetreuer?
-- Vertragsgrundlagen
-- Bausumme
-- Zahlungsplan zur Kostenkontrolle
-- Pflichten des Bauherren vor Vertragsabschluss
-- Unterlagen beim Hausbau vor Vertragsabschluss
- Bauherrenhilfe nach Vertragsabschluss
-- Bauantrag bei Behörden
-- Bau-Genehmigungsverfahren bei Baubehörden
-- Bauspezifische Versicherungen
-- Bauzeitenplan
-- Baubeginn - die Letzten Pflichten der Bauherrschaft
- Bauherrenhilfe während der Bauzeit
- Gewährleistungsansprüche
- Bauabnahme
Baufinanzierung
- Baufinanzierung - Allgemeine Fragen
- Kreditarten
- Kredit-Konditionen
- Bausparen
- Staatliche Förderungen
- Verkehrswert
- Haushaltsrechnung und Bonität
Hausbau Planung
- Haustypen
- Hausbau Vorbereitungsarbeiten
- Das Baugrundstück
- Baugrund beim Hausbau
- Baurecht
- Gebäudeschutz
- Erdarbeiten und Wasserhaltung
- Stützmauern
- Einfriedung
- Untergeschoss
- Kanalisation
- Tragende Elemente
- Nichttragende Innenwände
- Fundation / Fundament
- Deckenkonstruktionen
- Dächer
- Kaminanlagen
- Treppen Rampen Leitern
- Dachbeläge und Spengler
- Fenster
- Sonnen und Wetterschutz
- Aussenputze
- Einbauten, Küchen, Türen
- Bodenbeläge und Unterlagsböden
- Parkett
- Gips, Wand, Decke
Haustechnik und Energie
- Heiztechnik
- Lüftung und Klimatechnik
- Sanitärtechnik
- Elektrotechnik
- Erneuerbare Energie
Whirlpools / Jacuzzi
Hausbau Magazin
- Baufinanzierung trotz Krise?
- Das Blockhaus
- Moderne Dämmstoffe im Vergleich
- Erker Vor- und Nachteile
- Glasflächen beim Hausbau
- Günstig ein Haus Bauen
- Mediterraner Hausbaustil
- Mehrgenerationenhaus
- Moderne Architektur
- Gartengestaltung leicht gemacht
- Traditioneller Ziegelbau
- Villa als höchster Traum
- Im Eigenheim Ruhestand geniessen
- Altbau sanieren
- Kauf einer Holzgarage
- Immobilienmakler
- Arbeitshandschuhe für den Winter
- Zuhause verschönern
- Outdoor-Plissees
- Schlafzimmer planen
- Terrassenüberdachung
- Wohngebäudeversicherung
- Girokonto für Bauherren finden
- Hauseingang gestalten
- Zaunarten und Eigenschaften
- Der perfekte Grundriss
- Sparsamer heizen im Altbau
- Einfamilienhaus smart finanzieren
- Planung einer PV-Anlage
- Neues Haus
- Immobilienfinanzierung
- Installation einer Photovoltaikanlage
- Asbest erkennen und entfernen
- Gartenpflege im Frühling – worauf achten
- Sauna im Fokus - Wellness zuhause
- Erfolgreich vermieten
- Die perfekte Winterbekleidung
- Das Niedrigenergiehaus
- Der April und seine Stürme
- Architektonische Vielfalt
- Ökologisch und nachhaltig bauen
- Das perfekte Schlafzimmer
- Nachhaltige Energieversorgung
- Zukunftsorientiert bauen
- Nachhaltigkeit beim Hausbau
- Tiny Houses
- Wärmepumpen als nachhaltige Heizvariante
- Maßgeschneiderten Kleiderschrank
- Der richtige Baukredit
- Ratgeber für erfolgreichen Hausbau
- Haus als Altersvorsorge
Do-it-yourself Anleitungen
- Verlegeanleitung für Bodenbeläge und Parkett
- Bodenbeläge und Parkett reinigen und pflegen
- Malerarbeiten am Haus
- Garten Tipps
- Umzug und Reinigung

ᐅ Grundriss - Bitte um Meinungen

Erstellt am: 18.11.12 12:13
G
gima84
G
gima84
18.11.12 12:13
Hallo Zusammen,

unsere Grundrissplanung ist soweit abgeschlossen, das wir damit zufrieden sind. Vielleicht hat trotzdem jemand noch eine Idee / Hinweise was besser gemacht werden kann.
EG

OG


Danke und Gruß Martin

Grundriss eines Hauses mit Küche, Essbereich, Wohnzimmer, Flur und Haustechnik


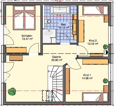
2D-Grundriss eines Hauses mit Schlafzimmern, Bad, Kind 1, Kind 2, Galerie und Treppenhaus.
Z
Zuendler
18.11.12 21:48
Hammer! Kommt das von nem Architekten?
21qm Galerie, dafür Zimmer wie Gefängniszellen. Eek.
Wahnsinns Verkehrsflächen im EG.
Um Ins OG zu kommen, muß die ganze verplante Hütte durchquert werden.
Könnte interessant werden, wenn die Eltern Privatsphäre wünschen und die Kinder Besuch bekommen.
Ich persönlich finde den Grundriss 0 durchdacht, lieblos und ohne Funktion.
In dem Ding würde ich nicht alt werden wollen.
Ich denke, das geht besser.
A
ato
19.11.12 07:52
keine Garderobe? vom eingang über das wohnzimmer, esszimmer zur Küche? teenies müssen durchs wohnzimmer traben, wenn sie spät nach hause kommen? das ist nicht so gemuetlich. die Treppe ist auch schlecht gelöst. hat das Haus einen keller? platzverschwendung im OG mit riesen Galerie, dafür kleine raeumchen und kaum platz für ein paar kleiderschraenke. was da an kleiderschraenken eingezeichnet ist, reicht nie im leben.
bitte ueberdenke das haus nochmal oder fang nochmal von ganz vorne an.
N
Naseweis
19.11.12 13:46
Hallo!

Für mich käme der Grundriss so auch auf keinen Fall in Frage.
Die Lösung, dass die Treppe aus dem Wohnbereich abgeht finde ich besonders unglücklich weil z.b. der Fernseher durch's ganze Haus dröhnt. Der fehlende Platz für Kleiderschränke wurde ja auch schon geschrieben.

Aber vielleicht kann ich bei der Gelegenheit nen Tipp bekommen mit welcher Software man solche Grundrisse erstellen kann?
Oder gibt's da keine Freeware für? Mit Stift, Papier und Lineal lässt sich zwar prima krakeln, aber so wäre es schon schicker...

Grüße
E
Eichelen
20.11.12 11:33
Ich kann mich meinen Vorrednern nur anschließen. Das ein oder andere fehlt da noch. Aber der Grundgedanke ist gut.

Ich habe ein Programm zuhause, so man sowas planen kann, ist aber ein bisschen kompliziert. Leider weiß ich grade nicht wie es heißt und wo es ist.
Vielleicht finde ich es ja nachher wieder...
G
gima84
26.11.12 21:56
Vielen Dank für die Kritik. Aufgrund geäußerter Punkte haben wir nochmal umgeplant. Ich bitte wieder um eine Bewertung, ob grobe Patzer drin sind.

Vielen Dank.

EG:

OG:


Grundriss eines Hauses mit Schlaf- und Kinderzimmern, Bad und Flur.


2D Grundriss zeigt Küche, Wohn- und Essbereich, Flur, Bad und Eingänge.
grundrisswohnzimmertreppe