ᐅ Grundriss, Bauhausstil mit Staffelgeschoss
Erstellt am: 07.07.17 23:27
mihaco07.07.17 23:27
Hallo zusammen,
wir planen den Bau eines Einfamilienhauses in einem Neubaugebiet. Da laut Bebauungsplan nur ein Vollgeschoss erlaubt ist und wir kein Bungalow oder Satteldach haben wollen, werden wir mit Staffelgeschoss bauen. Geplant ist Bauhausstil mit Flachdach/Attika.
Das Grundstück hat 550 m², Baufenster ist 17,9m breit und 12m lang.
Das Haus soll eine Wohnfläche von ca. 140-150 m² haben, zusätzlich ist eine Doppelgarage mit rückseitigem Abstellraum gewünscht (6x9m), das Haus wird komplett verklinkert, Keller ist nicht gewünscht. Aktuell sind wir noch zu dritt, es ist aber noch mind. 1 Kind geplant.
Ich habe einen Architekten der mir die Zeichnung nach meinen Vorgaben erstellt.
Weitere Infos zum Grundstück/Bebauungsplan:
-keine Hanglage
-Grundflächenzahl 0,4
-Geschossflächenzahl 0,6
-Eckgrundstück
-Baufenster ist 2,5m hinter Straße
-Ausrichtung Süden
-Ansonsten keine Einschränkungen, der Abstellraum hinter der Garage darf über das Baufenster hinausragen
Wünsche EG:
Räume: Küche, Ess- und Wohnzimmer, Hauswirtschaftsraum, Homeoffice, Gäste-WC, Vorratsraum, evtl. Technik separat
-Offene Architektur, d.h. Küche und Wohnbereich nicht getrennt. Wohnraum soll aber optisch vom Küchen und Essbereich abgetrennt sein
- Großzügiger Eingansbereich mit Garderobennische, gerne auch seitlich versteckt
- Flur soll nicht schlauchig wirken
- Küche mit zwei Zeilen und Terrassentür
- Alle WZ Wände lang genug für Wohnwand, fallsmal umgestellt wird
- Evtl. Zugang vom Hauswirtschaftsraum in die Garage
- Kleines Homeoffice
- Hauswirtschaftsraum / Vorratsraum soll Verbindung zur Küche haben, damit die Wäsche direkt in den Garten transportiert werden kann
- Treppe gerne mit Podest
- Überdachter Bereich zur Garage, oder zu mindestens Eingangstür überdacht
Wünsche OG:
- 2 Kinderzimmer
- Schlafzimmer (nur so groß das Schrank und Bett rein passt und das man vernünftig laufen kann
- Badezimmer großzügig mit Wanne,Dusche, 1 Waschbecken, WC
- Da hier ein Staffelgeschoss mit Max. 50-60qm² geplant ist, wird es keinen großen Flur geben. Nur das nötigste
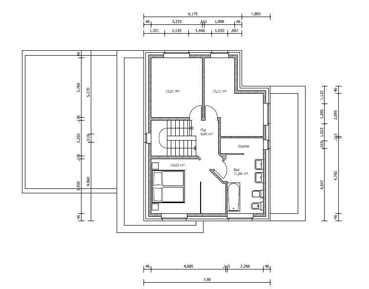
Das Konzept für den Ess- und Wohnbereich mit Terrasse habe ich schon gezeichnet,leider fehlen mir die Ideen für den Eingangsbereich und die Raumaufteilung. Der Grundrissplan im Anhang war die erste Idee, ich habe dann aber noch mal das WZ vergrößert (siehe Skizze). Bitte die Türen beim Grundriss nicht bewerten, die sind nur provisorisch eingefügt worden.
Wie gesagt, der obere Bereich im EG (Küche, Esszimmer,Wohnzimmer) steht für mich so gut wie fest, nur der Eingangsbereich mit Flur, Garderobe, Hauswirtschaftsraum, Homeoffice und Treppe gefällt mir noch nicht.Schön wäre es auch die Treppe ein wenig in Szene zu setzen.
Das OG will ich erst gegen Ende planen, wenn ich weiß wie viel qm ich zur Verfügung habe. Das EG soll 90-100 m² haben. Die Hausform des EG kann je nach Planung noch variieren, durch die lange Terrassenfront im WZ wird das Haus jetzt eher rechteckig. Das Haus/Garage soll direkt an die (von vorne) linke Grenze gesetzt werden.
Vielen Dank im Voraus für die Hilfe!




wir planen den Bau eines Einfamilienhauses in einem Neubaugebiet. Da laut Bebauungsplan nur ein Vollgeschoss erlaubt ist und wir kein Bungalow oder Satteldach haben wollen, werden wir mit Staffelgeschoss bauen. Geplant ist Bauhausstil mit Flachdach/Attika.
Das Grundstück hat 550 m², Baufenster ist 17,9m breit und 12m lang.
Das Haus soll eine Wohnfläche von ca. 140-150 m² haben, zusätzlich ist eine Doppelgarage mit rückseitigem Abstellraum gewünscht (6x9m), das Haus wird komplett verklinkert, Keller ist nicht gewünscht. Aktuell sind wir noch zu dritt, es ist aber noch mind. 1 Kind geplant.
Ich habe einen Architekten der mir die Zeichnung nach meinen Vorgaben erstellt.
Weitere Infos zum Grundstück/Bebauungsplan:
-keine Hanglage
-Grundflächenzahl 0,4
-Geschossflächenzahl 0,6
-Eckgrundstück
-Baufenster ist 2,5m hinter Straße
-Ausrichtung Süden
-Ansonsten keine Einschränkungen, der Abstellraum hinter der Garage darf über das Baufenster hinausragen
Wünsche EG:
Räume: Küche, Ess- und Wohnzimmer, Hauswirtschaftsraum, Homeoffice, Gäste-WC, Vorratsraum, evtl. Technik separat
-Offene Architektur, d.h. Küche und Wohnbereich nicht getrennt. Wohnraum soll aber optisch vom Küchen und Essbereich abgetrennt sein
- Großzügiger Eingansbereich mit Garderobennische, gerne auch seitlich versteckt
- Flur soll nicht schlauchig wirken
- Küche mit zwei Zeilen und Terrassentür
- Alle WZ Wände lang genug für Wohnwand, fallsmal umgestellt wird
- Evtl. Zugang vom Hauswirtschaftsraum in die Garage
- Kleines Homeoffice
- Hauswirtschaftsraum / Vorratsraum soll Verbindung zur Küche haben, damit die Wäsche direkt in den Garten transportiert werden kann
- Treppe gerne mit Podest
- Überdachter Bereich zur Garage, oder zu mindestens Eingangstür überdacht
Wünsche OG:
- 2 Kinderzimmer
- Schlafzimmer (nur so groß das Schrank und Bett rein passt und das man vernünftig laufen kann
- Badezimmer großzügig mit Wanne,Dusche, 1 Waschbecken, WC
- Da hier ein Staffelgeschoss mit Max. 50-60qm² geplant ist, wird es keinen großen Flur geben. Nur das nötigste
Das Konzept für den Ess- und Wohnbereich mit Terrasse habe ich schon gezeichnet,leider fehlen mir die Ideen für den Eingangsbereich und die Raumaufteilung. Der Grundrissplan im Anhang war die erste Idee, ich habe dann aber noch mal das WZ vergrößert (siehe Skizze). Bitte die Türen beim Grundriss nicht bewerten, die sind nur provisorisch eingefügt worden.
Wie gesagt, der obere Bereich im EG (Küche, Esszimmer,Wohnzimmer) steht für mich so gut wie fest, nur der Eingangsbereich mit Flur, Garderobe, Hauswirtschaftsraum, Homeoffice und Treppe gefällt mir noch nicht.Schön wäre es auch die Treppe ein wenig in Szene zu setzen.
Das OG will ich erst gegen Ende planen, wenn ich weiß wie viel qm ich zur Verfügung habe. Das EG soll 90-100 m² haben. Die Hausform des EG kann je nach Planung noch variieren, durch die lange Terrassenfront im WZ wird das Haus jetzt eher rechteckig. Das Haus/Garage soll direkt an die (von vorne) linke Grenze gesetzt werden.
Vielen Dank im Voraus für die Hilfe!
toxicmolotof07.07.17 23:31
Ich habe es jetzt leider nicht gefunden, welche Geschossigkeit ist denn erlaubt?
Korrektur, habs gefunden.
Das, was du dort im OG planst, ist in NRW kein Staffelgeschoss. Mit deinem Plan ist dein Gebäude zweigeschossig, es sei denn, du bekommst die Genehmigungsbehörde dazu, vom Bebauungsplan abzuweichen.
Korrektur, habs gefunden.
Das, was du dort im OG planst, ist in NRW kein Staffelgeschoss. Mit deinem Plan ist dein Gebäude zweigeschossig, es sei denn, du bekommst die Genehmigungsbehörde dazu, vom Bebauungsplan abzuweichen.
ypg07.07.17 23:58
toxicmolotow schrieb:
..,
Das, was du dort im OG planst, ist in NRW kein Staffelgeschoss. Mit deinem Plan ist dein Gebäude zweigeschossig, es sei denn, du bekommst die Genehmigungsbehörde dazu, vom Bebauungsplan abzuweichen.Hallo Tox, kannst Du kurz erklären, wie ein Vollgeschoss in NRW definiert ist?
Der Vorratsraum ist so nicht möblierbar. Besser wäre es hier, einfach eine Vorratskammer unter der Treppe zu legen: Türen in die Abmauerung, somit hast Du einen 1 Meter tiefen Schrank
In aller Kürze Grüsse
mihaco08.07.17 00:13
Danke für eure Antworten.
Laut Architekt ist das Staffelgeschoss auch mit minimalen Rücksprung des OG realisierbar. Ich bin auch immer von einem Meter Rücksprung ausgegangen. Anscheinend hat er schon mehrere Häuser im gleichen Neubaugebiet so geplant und diese sind beim Kreis genehmigt worden. Ich spreche das aber noch mal an. OG ist mir auch vorerst nicht so wichtig,das könnte auch noch entsprechend auf dem Dach des EG eingerückt werden.
Der Vorratsraum im Grundriss ist auch zum Durchlaufen mit Wäsche zu schmal, deshalb habe ich dies in meiner Skizze schon verbreitert.
Laut Architekt ist das Staffelgeschoss auch mit minimalen Rücksprung des OG realisierbar. Ich bin auch immer von einem Meter Rücksprung ausgegangen. Anscheinend hat er schon mehrere Häuser im gleichen Neubaugebiet so geplant und diese sind beim Kreis genehmigt worden. Ich spreche das aber noch mal an. OG ist mir auch vorerst nicht so wichtig,das könnte auch noch entsprechend auf dem Dach des EG eingerückt werden.
Der Vorratsraum im Grundriss ist auch zum Durchlaufen mit Wäsche zu schmal, deshalb habe ich dies in meiner Skizze schon verbreitert.
11ant08.07.17 01:12
Die Kubatur des Ensembles erscheint mir ungelenk. Auf der Garagenseite würde ich das OG nicht auch noch seitlich zurückspringen lassen, lieber von der Front weg.
Die Treppe gefällt mir gar nicht. In L-Form könnte sie hier reizvoll sein.
Die Treppe gefällt mir gar nicht. In L-Form könnte sie hier reizvoll sein.
mihaco schrieb:Die Übersichtlichkeit / Verständlichkeit der Skizze für Außenstehende läßt schwer zu wünschen übrig ...
Der Grundrissplan im Anhang war die erste Idee, ich habe dann aber noch mal das WZ vergrößert (siehe Skizze).
toxicmolotow schrieb:Da schließe ich mich ypg an: wieso genau, welches Staffelgeschoßmerkmal wird denn hier verfehlt ?
Mit deinem Plan ist dein Gebäude zweigeschossig,
toxicmolotof08.07.17 01:15
Ein Staffelgeschoss (damit es kein Vollgeschoss ist) muss u.A. An allen Seiten um einen Meter zurückspringen. Ausnahmen bilden hier nur Anbauten an andere Baukörper (Reihenhäuser oder Doppelhaushälfte) und der Treppenraum.
Ich sehe vorne und hinten aber keinen Rücksprung. Der ist in meinen Augen essenziell für ein Staffelgeschoss.
Ich sehe vorne und hinten aber keinen Rücksprung. Der ist in meinen Augen essenziell für ein Staffelgeschoss.
Ähnliche Themen