kbt09 schrieb:
Aber, marvinius ist nicht der TE, sondern __markus__ 😉Ich weiß! Ich hab ja beiden etwas geschrieben 😉 siehe #11
Ich weiß nur nicht, was _Du_ mir sagen willst 🙂
Grüsse
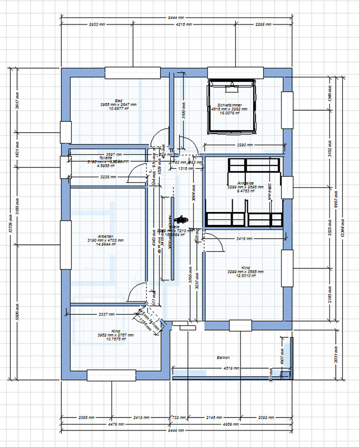
Schlafzimmer im Süden finde ich auch suboptimal. Der Tausch mit dem Bad macht Sinn. Ich würde Schafzimmer/Ankleide dort hin verlegen, wo jetzt Büro/Bad ist, Bad nach Süden; Arbeitszimmer dort, wo jetzt das kleine Kinderzimmer ist und auch diesem Kind etwas mehr Licht gönnen. Außerdem sollten die Kinderzimmer gleich groß sein, ggf. würde ich mir noch ein kleines Kinderbad überlegen und auf jeden Fall im Bad eine Badewanne planen.
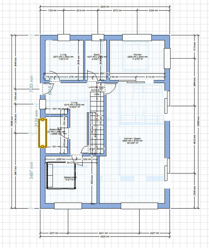
Sehe ich das richtig, daß ihr eine ewig lange Zufahrt zur Garage habt? Wäre es evtl. nicht sinnvoll, die Garage nach vorne zu legen? Ich denke da im Winter ans Schneeräumen, bevor man aus dem Grundstück raus kommt. Zufahrt zum Haus ist ja ok, aber Garage würde ich etwas straßennäher planen (sagt eine, bei der es durchaus noch richtig schneien kann)
Sehe ich das richtig, daß ihr eine ewig lange Zufahrt zur Garage habt? Wäre es evtl. nicht sinnvoll, die Garage nach vorne zu legen? Ich denke da im Winter ans Schneeräumen, bevor man aus dem Grundstück raus kommt. Zufahrt zum Haus ist ja ok, aber Garage würde ich etwas straßennäher planen (sagt eine, bei der es durchaus noch richtig schneien kann)
_
__Markus__04.12.16 11:31Hallo zusammen
Danke für euren vielen Antworten
@kbt09

Ich habe aufgrund eurer Vorschläge einige Änderungen gemacht







Danke schon mal für eure Antworten.
Danke für euren vielen Antworten
@kbt09
Ich habe aufgrund eurer Vorschläge einige Änderungen gemacht
- Schlafzimmer kommt jetzt nach Norden
- Es gibt eine separate Toilette
- Garderobe und Eingangsbereich --> Problem sehe ich jetzt auch, muss ich mit Architekt nochmal reden
- Tausch von Abstellraum und Eingang ist nicht möglich. Der Eingang muss im norden bleiben. Somit kann man auch nur seitlich auf die Treppe schauen
- Lange zufahrt: das ist richtig. Aber wir wollen die Garage trotzdem in der nähe vom Haus.
- Wir haben jetzt auch einen Balkon eingezeichnet. So bekommen wir auch viel mehr Licht in die Diele.
- Diese Änderungen müssen wir aber erst mit dem Architekt besprechen
Danke schon mal für eure Antworten.
Es ist immer hilfreich auf den Grundrissen den Nordpfeil mit einzuzeichnen, dann muss man nicht erst wieder suchen bei welcher Hauslage wo Norden ist und es ist auch einfacher das jeweils gedanklich umzusetzen 😉 .. Danke 😉. Oder Grundrisse immer genordet einstellen 😉.
------------------------
Warum ist das Arbeitszimmer größer als beide Kinderzimmer?
Ankleide Süden? Schlafzimmer ist doch eher Osten - oder?
Ich halte nichts von Fenstern über dem Kopfende von Betten. Schlecht zu putzen, öffnen tut man sie auch nicht, weil es am Kopf zieht.
Ich finde insbesondere das OG jetzt recht zusammengestückelt.
Treppenzeichnung paßt auch nicht.
------------------------
Warum ist das Arbeitszimmer größer als beide Kinderzimmer?
Ankleide Süden? Schlafzimmer ist doch eher Osten - oder?
Ich halte nichts von Fenstern über dem Kopfende von Betten. Schlecht zu putzen, öffnen tut man sie auch nicht, weil es am Kopf zieht.
Ich finde insbesondere das OG jetzt recht zusammengestückelt.
Treppenzeichnung paßt auch nicht.
Ähnliche Themen