ᐅ Grundriss 2 Vollgeschosse - Feedback / Kritik?
Erstellt am: 07.08.21 16:31
Liebes Forum,
ich bin auf der Suche nach konstruktiver und ehrlicher Kritik.
Was gefällt euch an unserem Grundriss was geht gar nicht und warum?
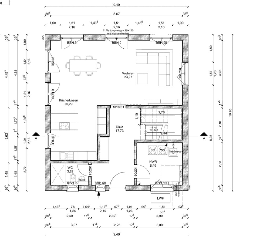
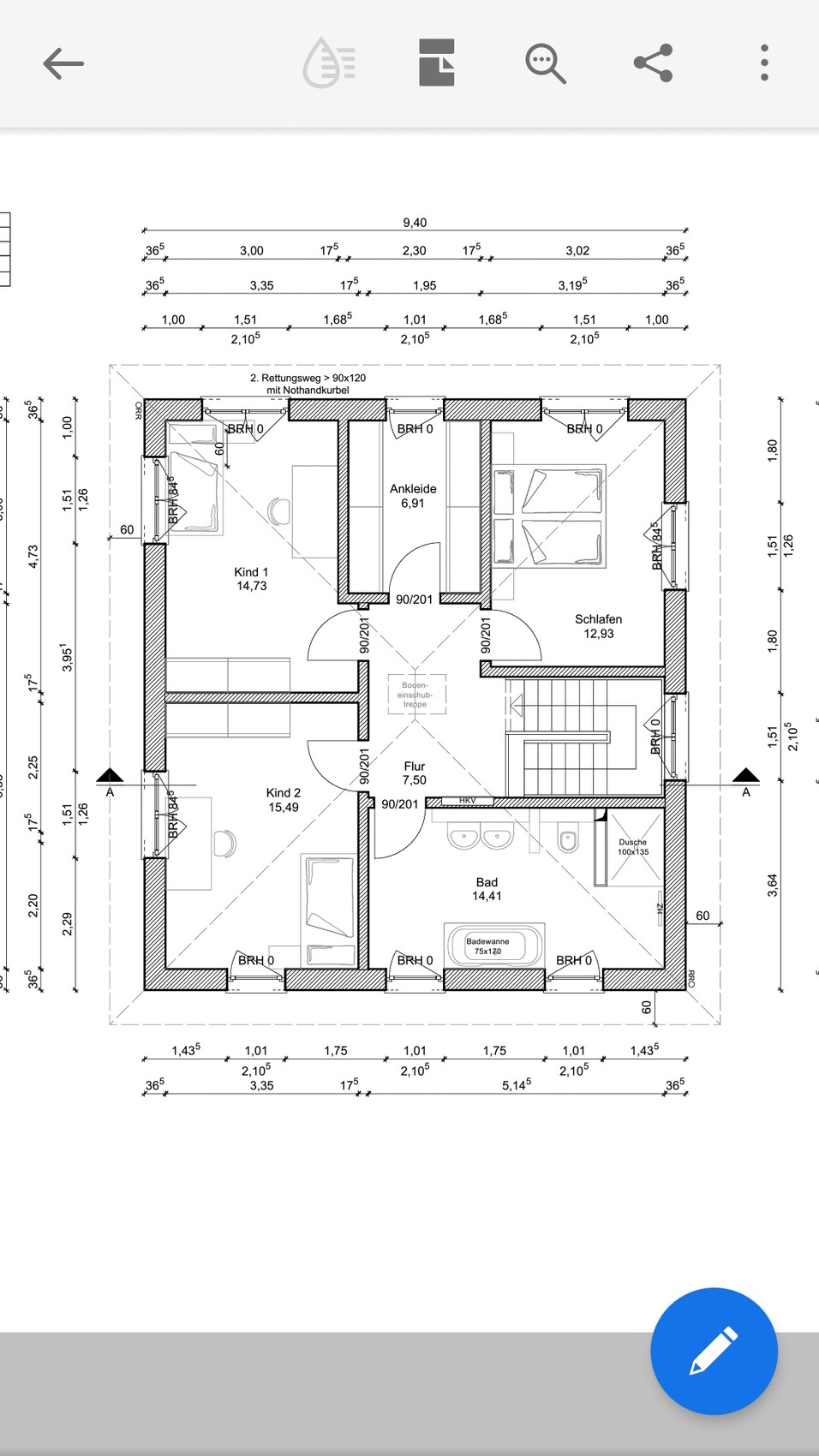
Meine "Rätselfelder":
-Fenster im Wohnzimmer/ Couchseitig
-Erfahrungen Schlafzimmer/Kinderzimmermaße
Die Fenster Anordnung in den Kinderzimmer wird nochmal angepasst als Ausgangslage dient hier Kind 2.
Die Fenster werden quasi einmal getauscht, sprich das BRHO gegenüber der Tür und das mit Brüstung an die kurze Seite, spiegelverkehrt dann in Kind 1.
Danke


ich bin auf der Suche nach konstruktiver und ehrlicher Kritik.
Was gefällt euch an unserem Grundriss was geht gar nicht und warum?
Meine "Rätselfelder":
-Fenster im Wohnzimmer/ Couchseitig
-Erfahrungen Schlafzimmer/Kinderzimmermaße
Die Fenster Anordnung in den Kinderzimmer wird nochmal angepasst als Ausgangslage dient hier Kind 2.
Die Fenster werden quasi einmal getauscht, sprich das BRHO gegenüber der Tür und das mit Brüstung an die kurze Seite, spiegelverkehrt dann in Kind 1.
Danke
Anzahl Stellplatz 1-2 PKW Stellplätze
Geschossigkeit 2 Vollgeschosse
Dachform Walmdach
Anforderungen der Bauherren
Keine Schrägen, keine Wände
Anzahl der Personen: 2 Erwachsene, 1 "Bauchzwerg"
Raumbedarf im EG, OG
Schlafgäste pro Jahr :1
offene Architektur
moderne Bauweise
offene Küche, Kochinsel
Anzahl Essplätze im Alltag wohl eher 4, aber getne platz für mehr, ohne großes Aufrücken
Hausentwurf
Von wem stammt die Planung:
Gemisch aus vielem.
Forum, Bauunternehmen, eigene Ideen, Pinterest
Was gefällt besonders? Warum? Uns gefällt der fließende Wohn/Ess/Kochbereich
Was gefällt nicht? Warum?
Kleines Schlafzimmer
Preisschätzung lt Architekt/Planer:300000
Warum ist der Entwurf so geworden, wie er jetzt ist? ZB
Standard gemischt mit IndIndividualität
Was macht ihn in Euren Augen besonders gut ?
Offenes, großes Erdgeschoss
Kind getrennt von Eltern
Was ist die wichtigste/grundlegende Frage zum Grundriss in 130 Zeichen
Wo seht ihr Fehler, was könnte stören, was sollten wir unbedingt anpassen?
Geschossigkeit 2 Vollgeschosse
Dachform Walmdach
Anforderungen der Bauherren
Keine Schrägen, keine Wände
Anzahl der Personen: 2 Erwachsene, 1 "Bauchzwerg"
Raumbedarf im EG, OG
Schlafgäste pro Jahr :1
offene Architektur
moderne Bauweise
offene Küche, Kochinsel
Anzahl Essplätze im Alltag wohl eher 4, aber getne platz für mehr, ohne großes Aufrücken
Hausentwurf
Von wem stammt die Planung:
Gemisch aus vielem.
Forum, Bauunternehmen, eigene Ideen, Pinterest
Was gefällt besonders? Warum? Uns gefällt der fließende Wohn/Ess/Kochbereich
Was gefällt nicht? Warum?
Kleines Schlafzimmer
Preisschätzung lt Architekt/Planer:300000
Warum ist der Entwurf so geworden, wie er jetzt ist? ZB
Standard gemischt mit IndIndividualität
Was macht ihn in Euren Augen besonders gut ?
Offenes, großes Erdgeschoss
Kind getrennt von Eltern
Was ist die wichtigste/grundlegende Frage zum Grundriss in 130 Zeichen
Wo seht ihr Fehler, was könnte stören, was sollten wir unbedingt anpassen?
Ähnliche Themen