Geschlossene Küche planen mit Durchgang zum Hauswirtschaftsraum

5,00 Stern(e) 5 Votes
Zuletzt aktualisiert 12.01.2026
Sie befinden sich auf der Seite 4 der Diskussion zum Thema: Geschlossene Küche planen mit Durchgang zum Hauswirtschaftsraum
>> Zum 1. Beitrag <<

B

Benutzername12

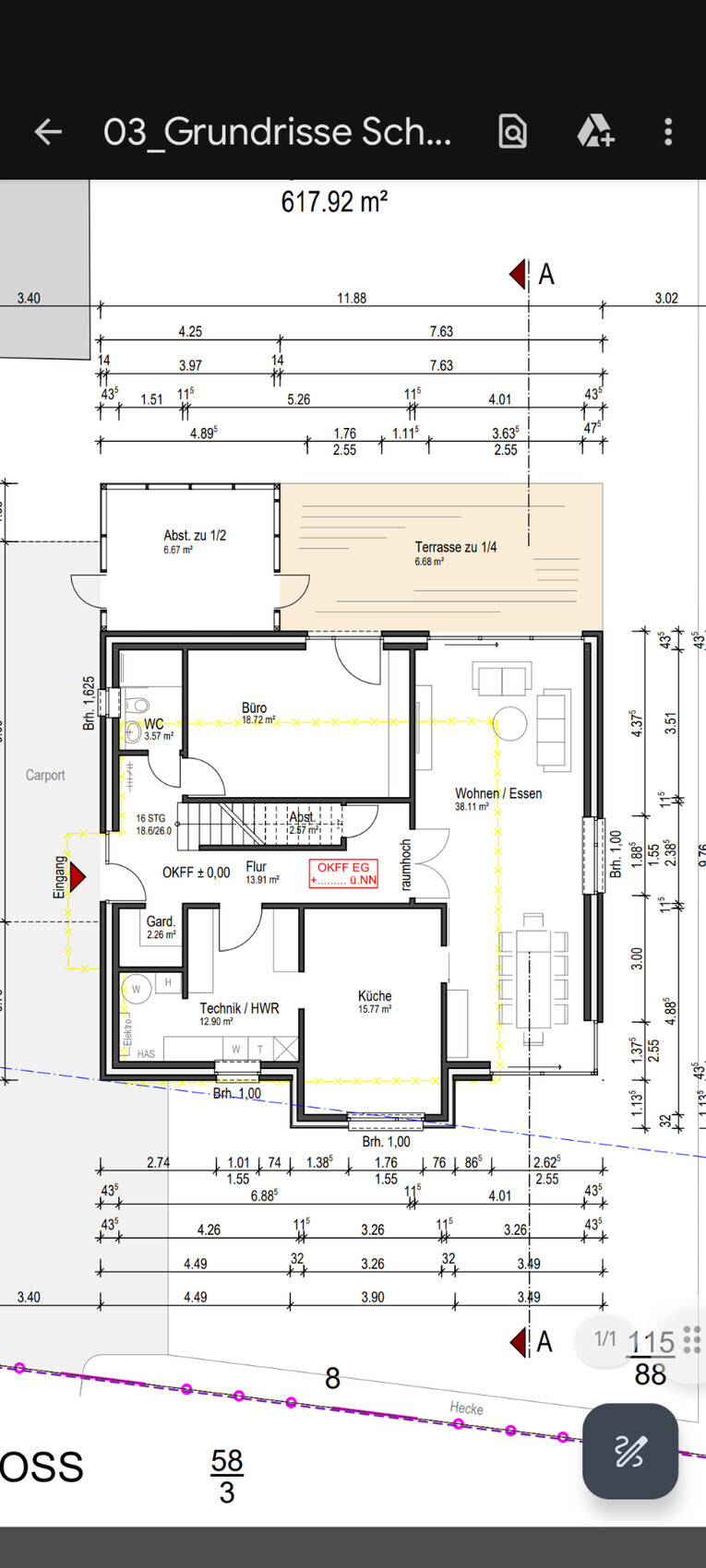
Kurzer Einwurf am Rande, ich persönlich finde die Küche zu klein und würde den Esstisch da herausnehmen, um die Küche dafür zu vergrößern. Ich verstehe euren Wunsch dort einen ungezwungenen Essplatz zu haben, aber ohne Keller habt ihr nur Hauswirtschaftsraum und Abstellkammer als Stauraum. Einen Hauswirtschaftsraum eurer Größe haben wir auch und den haben wir zu zweit voll bekommen.

Nach Heizung, etc. kann man da mit gut angeordneten Schränken noch gut Platz herausholen, aber da muss man natürlich auch ne Menge unterbringen. Bei uns sind da Koffer, Ersatzfliesen, Inline-Skates, Camping-Ausrüstung, Getränke, Vorratsschrank, Garantiekartons, Werkzeuge, Putzsachen, Waschmaschine, Trockner, etc. Da ist so ein Hauswirtschaftsraum schnell mal voll. Zu fünft hat man dann ja gut und gerne doppelt so viel von Allem.

Alle Küchensachen, die man so braucht, bekommt man niemals in so wenig Küchenzeile unter. Heißt, ihr müsst davon vieles in den Hauswirtschaftsraum auslagern.
Wir haben deshalb die Küche extra größer geplant, mit sehr viel Stauraum in der Kücheninsel. Das wäre mir persönlich wichtiger, da ihr ja ohnehin einen großen Esstisch habt.

edit: hab gerade gesehen, ihr habt einen relativ großen Dachboden. Da kann man natürlich einiges Auslagern. Aber Küchensachen will man vielleicht trotzdem greifbarer haben.
Hi sehr gute Punkte. Danke für den Input.
Wir haben unter der Treppe Abstellmöglichkeiten.
Dachboden
Abstellraum Außen und eine Doppelgarage außen
Großes Büro wo auch die eine oder andere Abstellmöglichkeiten sich ergeben wird.

Die Küche sieht jetzt so aus Bzw. wurde so geplant und der Grundriss sieht so aus.
Aber du hast Recht. Töpfe etc sollten alle in der Küche untergebracht werden...

Da wir keine Pro Version nutzen, kurz eine kleine Erklärung

Zwei Schiebetürelemente als Zugang
Insel mit Kochen
Kleiner Esstisch
Das Braune soll ein side-by-side Kühlschrank darstellen
Und einer der Hochschränke wird dann Durchgang zum Hauswirtschaftsraum.


Grundriss einer Küche mit Esstisch und Stühle, Spüle, Arbeitsflächen und Tür am rechten Rand.

Grundriss Erdgeschoss: Küche, Wohnen/Essen, Flur, Technik/HWR, WC, Garderobe, Abstellraum, Terrasse.
 
Zuletzt aktualisiert 12.01.2026
Im Forum Küchenplanung und Küchenbau gibt es 1075 Themen mit insgesamt 12763 Beiträgen


Ähnliche Themen zu Geschlossene Küche planen mit Durchgang zum Hauswirtschaftsraum
Nr.ErgebnisBeiträge
1Geschlossene oder offene Küche ? 11
2Grundriss, Ideen zur räumlichen Trennung innerhalb der Küche 23
3Varianten für eine Ecklösung in der Küche 18
4Wohnen/Essen/Küche: Wie wohnt ihr oder werdet ihr wohnen? 52
5Planung Wohnraum & Küche eines Doppelhaushälfte in Nürnberg 13
6Probleme bei der aufteilung Küche, Essen , Wohnen 16
7Grundriss Halboffene Küche mit großem Essbereich - Detailfragen 12
8Beleuchtung in Diele und Küche: Deckeneinbau-Strahler benötigt? - Seite 219
9Feedback zur Ikea-Küche - Seite 8167
10Next 125 Küche Erfahrungen / Preiseinschätzung - Seite 339
11Heizkreise/Thermostate für Wohnen/Essen/Küche bei Fußbodenheizung/Wärmepumpe 35
12Küche über ein Jahr vor Fertigstellung kaufen? - Seite 254
13Frage zur Entwässerung / Verrohrung Küche 16
14Grundriss Einfamilienhaus - Problemfall Küche 20
15Steinwand aus Stein/Steinplatten? Wohnzimmer / Küche 69
16Esstisch in einer kleinen Küche 49
17Wasseranschluss außen aus der Küche - möglich? 39
18Maße für Küche festlegen 15
19Jährlicher Wertverlust Küche durchschnittlich? - Seite 222
20Türanschlag zum Wohn/-Essbereich und Beleuchtung Küche 13

Oben