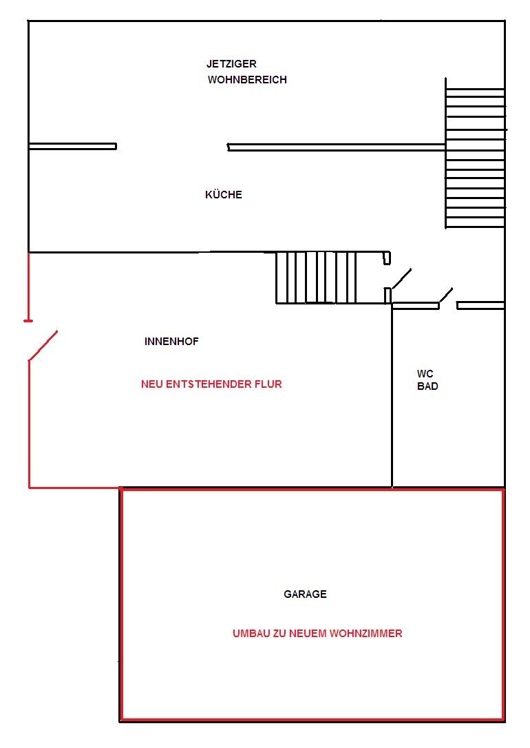
Wir haben ein Haus (Doppelhaushälfte) gekauft und die jetzige Wohnfläche (60 qm) ist halt klein für uns. Das Haus wurde irgendwann in 1930 gebaut und die Garage irgendwann in 1965. Das Haus ist auf 2 Etagen gebaut, unten Küche, Wohnbereich und oben Schlafzimmer und weiterer Zimmer. Allerdings ist die Deckenhöhe in der oberen Etage nicht so hoch. Es gibt noch ein Dachboden, der gar nicht ausgebaut wurde. Wir wollen die Garage und den Innenhof zu einem Wohnraum umbauen. Ich habe eine Skizze hier angehängt. Die Garage wollen wir evtl. auch aufstocken und eine Treppe im jetzigen Innenhof einbauen.
Wenn das klappen würde, würden wir die jetzige Küche mit dem Wohnbereich kombinieren, so dass die Küche größer wird.
Könntet ihr mir bitte erklären was auf uns zukommt (z.B. Genehmigung Bauamt, muss ein Architekt beauftragt werden, etc. etc.?
Auch finanziell würde ich gerne wissen, wie hoch uns das kosten würde.

Wenn das klappen würde, würden wir die jetzige Küche mit dem Wohnbereich kombinieren, so dass die Küche größer wird.
Könntet ihr mir bitte erklären was auf uns zukommt (z.B. Genehmigung Bauamt, muss ein Architekt beauftragt werden, etc. etc.?
Auch finanziell würde ich gerne wissen, wie hoch uns das kosten würde.
Moin,
also zunächst sollte geklärt werden, ob eine Erweiterung überhaupt möglich ist. Am besten zum Bauamt rennen und abklären. (--> Grundflächenzahl, Geschossflächenzahl, Abstandsflächen etc.).
Für so ein Vorhaben würde ich mir außerdem einen Architekten mit ins Boot holen.......
Gruß
juliettt schrieb:
Könntet ihr mir bitte erklären was auf uns zukommt (z.B. Genehmigung Bauamt, muss ein Architekt beauftragt werden, etc. etc.?
also zunächst sollte geklärt werden, ob eine Erweiterung überhaupt möglich ist. Am besten zum Bauamt rennen und abklären. (--> Grundflächenzahl, Geschossflächenzahl, Abstandsflächen etc.).
Für so ein Vorhaben würde ich mir außerdem einen Architekten mit ins Boot holen.......
Gruß
Danke für den Kommentar, werde morgen mal dahin latschen....
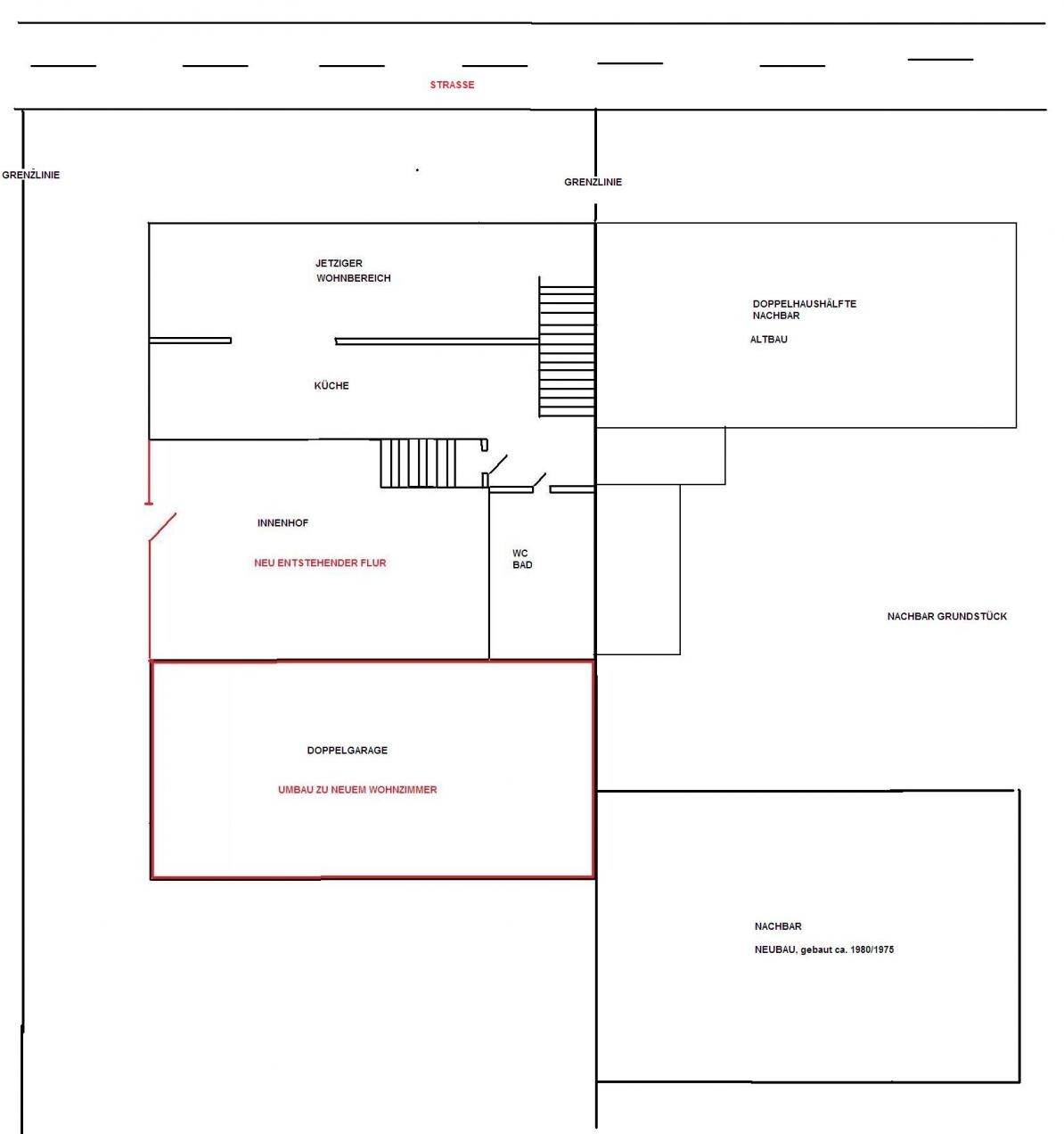
Ich glaube eine Baugenehmigung ist Pflicht. Nur was ich noch Gedanken mache, wie man die Garage noch eine Etage aufstockt. In den Bauzeichnungen der Garage im Jahre 1964 steht, dass man 1 Meter in den Boden gebuddelt hat, ob das ein Vorteil ist kann ich nicht sagen.
Was würdest du denn meinen, würde das gehen mit der Garage und zusätzlichen 1. OG Da drüber mit einer Treppe im Innenhof (Neues Flur)?
Von Kosten her habe ich auch völlig keine Ahnung....
grüsse,
Juliet
Ich glaube eine Baugenehmigung ist Pflicht. Nur was ich noch Gedanken mache, wie man die Garage noch eine Etage aufstockt. In den Bauzeichnungen der Garage im Jahre 1964 steht, dass man 1 Meter in den Boden gebuddelt hat, ob das ein Vorteil ist kann ich nicht sagen.
Was würdest du denn meinen, würde das gehen mit der Garage und zusätzlichen 1. OG Da drüber mit einer Treppe im Innenhof (Neues Flur)?
Von Kosten her habe ich auch völlig keine Ahnung....
grüsse,
Juliet
Ähnliche Themen