Fertighaus Weiss Erfahrungen und Preise: Einfamilienhaus, Keller, Doppelgarage

4,80 Stern(e) 11 Votes
Zuletzt aktualisiert 22.11.2025
Sie befinden sich auf der Seite 2 der Diskussion zum Thema: Fertighaus Weiss Erfahrungen und Preise: Einfamilienhaus, Keller, Doppelgarage
>> Zum 1. Beitrag <<

A

allstar83

Bei uns im Baugebiet wurden knapp 20 Häuser vom Weiss gebaut u.a. 2 meiner direkten Nachbarn. Das hat alles super geklappt bei denen. Da ist schon sehr viel mit drin im Paket.
Aufpassen würde ich bei den Fundamenten für die Garage ... Je nachdem was da das Bodengutachten sagt hatten manche noch Mehrkosten.
 
D

diehäuslebauer

Vielen Dank schon mal für die verschiedenen Einschätzungen!
Wir sind parallel natürlich auch noch mit anderen Hausherstellern im Gespräch und können dann die Angebote mit dem von Fa. Weiss vergleichen.
 
R

rdwlnts

Ich würde auf jeden Fall KfW40+ machen. Die Differenz in den Kosten schenkt dir benannte Bank.
Spart jährlich Kosten, ist ein angenehmeres Wohnen, schont die Umwelt und du hast einen höheren Wiederverkaufswert. Zumindest wenn der Preiswahnsinn irgendwann ein Ende hat. Heutzutage geht alles weg.
Sticktige Luft hat man nur, wenn man falsch baut.
 
D

driver55

Wir sind parallel natürlich auch noch mit anderen Hausherstellern im Gespräch und können dann die Angebote mit dem von Fa. Weiss vergleichen.
Mit identischem Grundriss und identischer Bauleistungsbeschreibung inkl. allen Extras? Sonst ist kein Vergleich machbar/sinnvoll.

Wie seid ihr auf euren aktuellen Favoriten gekommen und weshalb sind die Abmessungen so wie sie sind?
Bad kann kleiner, wenn man optimiert. Schlafen sollte etwas größer werden. Ansonsten sieht das OG ordentlich aus.

EG:
Ihr habt die Treppe bewusst „neben“ der Couch gewählt? Treppe quasi in Wohnen wäre nicht mein Favorit. Sonst, soweit i.O.
 
D

diehäuslebauer

Mit identischem Grundriss und identischer Bauleistungsbeschreibung inkl. allen Extras? Sonst ist kein Vergleich machbar/sinnvoll.
Das ist aktuell noch nicht der Fall. Die Bauleistungsbeschreibungen der verschiedenen Fertighaushersteller sind jedoch auch nicht immer 100% vergleichbar und müssen es auch nicht unbedingt sein. Beim einen Punkt hat der eine und beim anderen Punkt der andere jeweils einen Vorteil in der Ausstattung.

Wie seid ihr auf euren aktuellen Favoriten gekommen und weshalb sind die Abmessungen so wie sie sind?
Bad kann kleiner, wenn man optimiert. Schlafen sollte etwas größer werden. Ansonsten sieht das OG ordentlich aus.
Der Grundriss hat sich tatsächlich erst mal so aus einem Mustergrundriss ergeben, der gespiegelt und leicht angepasst wurde. Es liegt aktuell auch schon ein 2. Angebot vor, welches einen optimierteren Grundriss enthält. (habe ich angehängt)
Der Grundriss hat aber aus unserer Sicht nicht die entscheidende Auswirkung auf den Preis und den könnte auch jeder entsprechend durchführen. Da sind andere Parameter entscheidend.

EG:
Ihr habt die Treppe bewusst „neben“ der Couch gewählt? Treppe quasi in Wohnen wäre nicht mein Favorit. Sonst, soweit i.O.
Wir möchten das EG so offen gestalten wie möglich. Wenn du einen anderen Ansatz hast gerne her damit.

Grüße

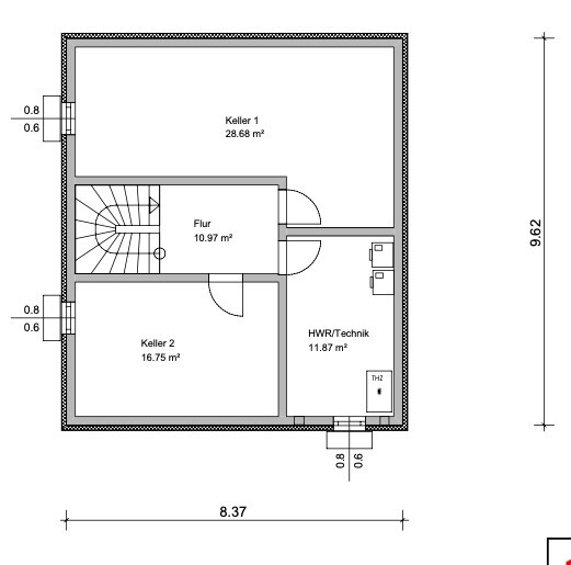
Kellergeschoss-Grundriss mit Keller 1, Keller 2, Flur, HWR/Technik und Treppen.


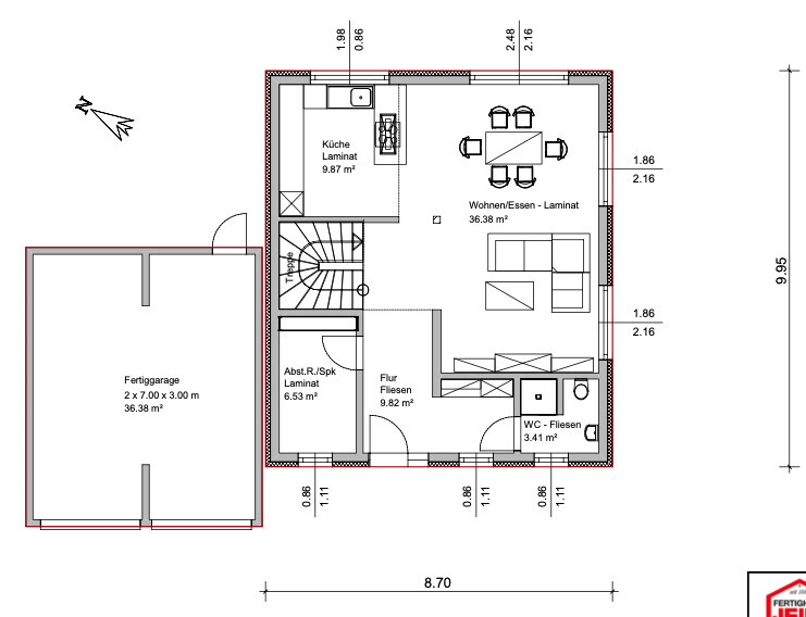
Grundriss eines Hauses mit Küche, Wohn-/Esszimmer, Flur, WC, Abstellraum, Treppe und Garage


Grundriss eines Stockwerks mit Bad, Schlafen, 2 Kinderzimmer, Flur und Treppe.
 
D

driver55

Der Grundriss hat sich tatsächlich erst mal so aus einem Mustergrundriss ergeben, der gespiegelt und leicht angepasst wurde
Ok, quasi aus dem Katalog. Ein Angebot kann dann im Prinzip per Knopfdruck erstellt werden. Dann noch der passende Keller dazu, kfw-Einstufung, fertig.
Bei den anderen Anbietern bekommst du dieses Haus nicht „einfach“ kalkuliert. Wie gesagt, es muss dann schon das selbe Haus sein mit den selben Gerätschaften/Extras, um es vergleichen zu können. Und dazu sind die Pläne/Grundrisse erforderlich und eben die Bauleistungsbeschreibung, bzw. die Anpassung dazu.
Und das macht keiner „umsonst“, nur um ggfs. den Preis beim Favoriten drücken zu können.

Um aber wirklich Äpfel mit Äpfel vergleichen zu können, braucht es ein zweites Angebot für die selbe „Hütte“.

Welche Anbieter ist noch im Rennen?


Wir möchten das EG so offen gestalten wie möglich. Wenn du einen anderen Ansatz hast gerne her damit
Wenn dir das passt, ist es doch in Ordnung. Ich wöllte Wohnen nicht als Durchgangsbereich.
 
Zuletzt aktualisiert 22.11.2025
Im Forum Fertighaus Weiss GmbH gibt es 3 Themen mit insgesamt 39 Beiträgen


Ähnliche Themen zu Fertighaus Weiss Erfahrungen und Preise: Einfamilienhaus, Keller, Doppelgarage
Nr.ErgebnisBeiträge
1Treppe im Flur, Grundriss steht eigentlich schon :o( 20
2Frage zu Grundriss, insbesondere Treppe 13
3Treppe Grundriss Planung, Auftritt und Unterzug 21
4Wie findet ihr diesen Grundriss? - Seite 211
5Grundriss die IV! :-) - Seite 318
6Meinungen zum Grundriss EG 10
7Grundriss über 200qm - Was haltet die Experten davon? 13
8Eure Meinung zum Grundriss für das EG 28
9Meinung zum Grundriss eines geplanten Bauhauses 23
10Unser Grundriss von 120qm auf 469qm Grundstück - Seite 1273
11Eure Meinungen zu unserem Grundriss und Angebot - Seite 322
12Grundriss Einfamilienhaus Stadtvilla 37
13Vorplanung mit dem Architekten - eigener Grundriss sinnvoll? 18
14Grundriss Einfamilienhaus. Bitte um Feedback bzw Ideen :-) - Seite 325
15Grundriss Stadtvilla / Feedback Statik, Anordnung - Seite 228
16Entwurf Grundriss Bungalow Meinungen 22
17Einfamilienhaus-Grundriss Entwurf - Seite 223
18Entwurf Grundriss: Planung Erdgeschoss 27
19Grundriss Neubau - Bitte um Feedback 36
20Meinungen f. Grundriss Einfamilienhaus ca. 160qm - Seite 329

Oben