Feedback zu Grundriss Einfamilienhaus erwünscht

4,00 Stern(e) 3 Votes
Zuletzt aktualisiert 22.11.2025
Sie befinden sich auf der Seite 3 der Diskussion zum Thema: Feedback zu Grundriss Einfamilienhaus erwünscht
>> Zum 1. Beitrag <<

E

enduser

Naja, das mit dem Rücksprung steht im Moment ja noch zur Debatte, werde das wahrscheinlich wirklich weglassen. Worauf muss ich denn bei der Treppe achten (für den Treppenlift), breiter oder unten mehr Platz drumherum?

Unser Hauptproblem im Wohnzimmer ist die große Couch, die passt nicht wirklich an eine Außenwand. Aber die ist ziemlich neu und wenn die da rein passt, passt da alles Andere auch rein.
So wie sie jetzt steht kann man herrlich rausschauen, da ist wirklich ein schöner Blick ins Grüne...
 
E

enduser

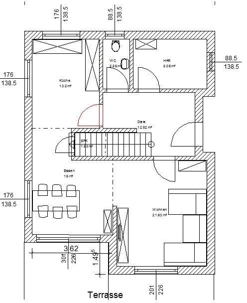
Wir haben den Grundriss nochmal etwas angepasst, bitte zerfetzt ihn mit Euren Meinungen. o_O

Der Essbereich ist 15,3qm groß, ist irgendwie verschwunden die Angabe...
Ansichten gibt's leider noch nicht, Fenster sind noch nicht ganz final.

@Bauexperte: Hast du Erfahrungen mit Treppenliften? Was müsste man am Grundriss noch anpassen, um so etwas mit wenig Kosten und Aufwand irgendwann zu realisieren?

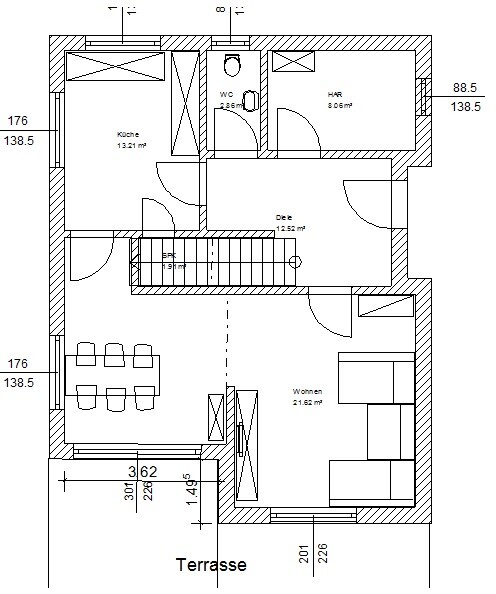
Grundriss eines Hauses mit Küche, Wohnzimmer, Terrasse, WC und Bad


Grundrissplan eines Hauses mit Terrasse, Treppen und Wohnbereichen


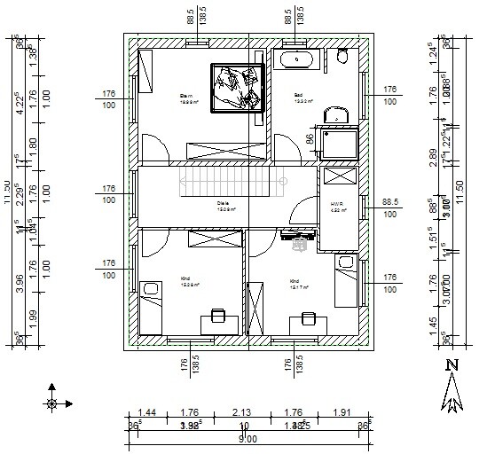
2D-Grundriss Obergeschoss mit Bad, Flur und zwei Kinderzimmern in Mehrfamilienhaus


Zweidimensionaler-Obergeschoss-Grundriss-eines-Hauses-mit-Treppenaufgang-Bad-Schlafzimmer-Kinderzimmer
 
Zuletzt bearbeitet:
E

enduser

Naja, die Alternative wäre ein größeres Bad (Wand ein Stück nach links), das finde ich schon groß genug...
 
M

milkie

Die Haustür würde ich Richtung Treppe versetzen und den Anschlag ändern so dass an der Wand zum Technikraum die Garderobe hin kann. Aktuell wäre dafür ja kein Platz.

Die Küche hat m.M.n. zu viele Türen zu eng beieinander und kann daher irgendwie nicht schön genutzt werden trotz ihrer Größe.

Wie schaut's mit dem Lageplan aus? Gabs da schon mal einen? Ansonsten lässt sich das Gesamtpaket schwer beurteilen.

Theoretisch gefällt mir im EG die alte Variante Essen+Küche zusammen, Wohnzimmer getrennt besser als jetzt alles einzeln. Vielleicht einfach den Durchgang Küche essen offen lassen?

Zum OG:
Erstmal in den Kinderzimmern alle Türen so platzieren dass dahinter Platz für nen 60er Kleiderschrank ist. Selbst wenn man nachher was anderes dahinter stellt verliert man so weniger Stellfläche.

Ich würde das Bad vergrößern und hiervon eine Ecke für den Hauswirtschaftsraum abzwacken. Nicht von den Kindern.

Das Ehebett würde ich an die Nordwand stellen dann hat man 2 innenliegender Wände für Schränke.



milkie :)
 
Zuletzt aktualisiert 22.11.2025
Im Forum Grundrissplanung / Grundstücksplanung gibt es 2535 Themen mit insgesamt 87990 Beiträgen


Ähnliche Themen zu Feedback zu Grundriss Einfamilienhaus erwünscht
Nr.ErgebnisBeiträge
1Grundriss für 150qm Einfamilienhaus mit Wohnzimmer nach Norden 21
2Grundriss Stadtvilla / Feedback Statik, Anordnung - Seite 228
3Grundriss: Offenes Wohnzimmer inkl. Kamin - Feedback 11
4Treppe im Flur, Grundriss steht eigentlich schon :o( 20
5Treppe im Wohnzimmer als Hype - Pro & Contra? - Seite 426
6Eure Meinung zum Grundriss für das EG 28
7Unser Grundriss von 120qm auf 469qm Grundstück - Seite 1273
8Vorplanung mit dem Architekten - eigener Grundriss sinnvoll? 18
9Gestaltung Grundriss. Was sind eure Meinungen / Vorschläge? 15
10Grundriss für ein 2-geschossiges Einfamilienhaus ohne Keller 17
11Wohnzimmer Grundrissplanungs-Ideen? - Seite 239
12Grundriss Einfamilienhaus - Beurteilung 27
13Erster Grundriss – bitte um Kritik/Tipps - Seite 551
14Grundriss Mehrgenerationenhaus 15
15Einfamilienhaus Grundriss 150m², Grundstücks: 420m² - Seite 371
16Meinung zu Grundriss 16
17Mal wieder Grundriss - Fertighaus kurz vor Bauantrag 22
18Grundriss 142 m² Eure Meinung ist gefragt? :) 18
19Grundriss: Kritisches Feedback sehr erwünscht :) 36
20Grundriss-Entwurf Stadtvilla mit Doppelgarage - Seite 238

Oben