ᐅ Feedback Grundriss - Größe und Preis ok?
Erstellt am: 28.04.20 09:19
J
JohannFugger28.04.20 09:19Hallo liebes Hausbau-Forum,
Nachdem die Zusammenarbeit mit unserem Architekten eigentlich ganz gut gestartet ist, gab es doch einen erheblichen Abfall in der Performancekurve und wir sind momentan nicht mehr ganz sicher, ob er wirklich sein Bestes gibt, um das Optimum für uns zu erreichen.
--> Zeit für’s Hausbau-Forum!
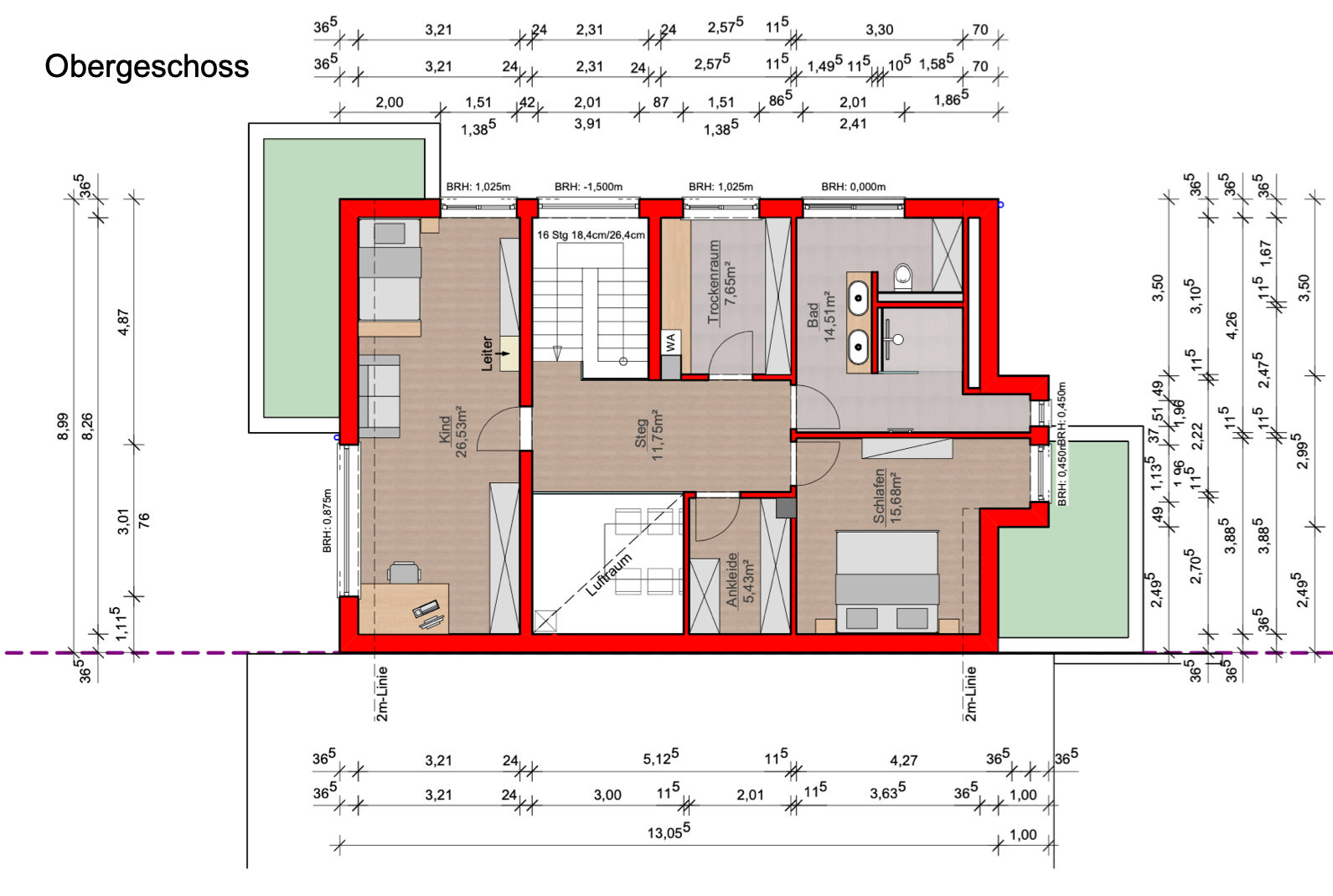
Im Anhang die Grundrisse von Einliegerwohnung, OG, DG und Außenansichten.
Wo wir gestartet sind/Grundlagen:
- Einfamilienhaus mit Grenzbebauung – ein Kind (10)
- Leichte Hanglage – optimal für eine kleine Einliegerwohnung zur späteren Benutzung durch den Nachwuchs oder Vermietung
- Dachneigung 38° - Satteldach
- Südhanglage
- Grundstück ca. 650qm
- der kleine Anbau im hinteren Wohnraum EG ist zustande gekommen, da die Nachbarn ein deutlich längeres Haus stellen wollen und wir versuchen, die entstehende Wand an unserer Terrasse etwas zu kaschieren.
- meine Frau hatte einen Bandscheibenvorfall und wir haben beschlossen einen Wäscheaufzug vom Keller in’s OG einzuplanen. Die Waschmaschinen sollen aber auf jeden Fall im Keller bleiben.
- Wir planen momentan eine einfache Gasheizung, Photovoltaikanlage und zentrale Wohnraumbelüftung
- Gaskamin
- offene Bauweise
Unsere Hauptbedenken sind momentan:
- Ist die Größe angemessen? Auf dem Plan Sieht das alles ganz nett aus, aber wenn der Architekt einen voraussichtlichen Preis von 545kEUR aufruft, kommt man schon in’s grübeln, ob das alles so seine Richtigkeit hat. (Der Bauplatz wollte ja auch schon bezahlt werden)
- Findet Ihr die Außenansicht harmonisch/stimmig?
- haltet Ihr einen kleiderschrank in der Größe im OG für ausreichend?
- Wir haben den Architekten momentan nur bis Phase 4 beauftragt --> haltet Ihr es für sinnvoll, auch die anderen Bauphasen von ihm durchführen zu lassen, oder besser durch einen externen Baufachmann? Für 5-9 stehen immerhin noch mal 45kEUR auf der Uhr und das kommt mir doch recht viel vor.
Wir freuen und jetzt schon auf Eure Rückmeldungen und eine offene Diskussion!
Liebe Grüße
Der Johann






Nachdem die Zusammenarbeit mit unserem Architekten eigentlich ganz gut gestartet ist, gab es doch einen erheblichen Abfall in der Performancekurve und wir sind momentan nicht mehr ganz sicher, ob er wirklich sein Bestes gibt, um das Optimum für uns zu erreichen.
--> Zeit für’s Hausbau-Forum!
Im Anhang die Grundrisse von Einliegerwohnung, OG, DG und Außenansichten.
Wo wir gestartet sind/Grundlagen:
- Einfamilienhaus mit Grenzbebauung – ein Kind (10)
- Leichte Hanglage – optimal für eine kleine Einliegerwohnung zur späteren Benutzung durch den Nachwuchs oder Vermietung
- Dachneigung 38° - Satteldach
- Südhanglage
- Grundstück ca. 650qm
- der kleine Anbau im hinteren Wohnraum EG ist zustande gekommen, da die Nachbarn ein deutlich längeres Haus stellen wollen und wir versuchen, die entstehende Wand an unserer Terrasse etwas zu kaschieren.
- meine Frau hatte einen Bandscheibenvorfall und wir haben beschlossen einen Wäscheaufzug vom Keller in’s OG einzuplanen. Die Waschmaschinen sollen aber auf jeden Fall im Keller bleiben.
- Wir planen momentan eine einfache Gasheizung, Photovoltaikanlage und zentrale Wohnraumbelüftung
- Gaskamin
- offene Bauweise
Unsere Hauptbedenken sind momentan:
- Ist die Größe angemessen? Auf dem Plan Sieht das alles ganz nett aus, aber wenn der Architekt einen voraussichtlichen Preis von 545kEUR aufruft, kommt man schon in’s grübeln, ob das alles so seine Richtigkeit hat. (Der Bauplatz wollte ja auch schon bezahlt werden)
- Findet Ihr die Außenansicht harmonisch/stimmig?
- haltet Ihr einen kleiderschrank in der Größe im OG für ausreichend?
- Wir haben den Architekten momentan nur bis Phase 4 beauftragt --> haltet Ihr es für sinnvoll, auch die anderen Bauphasen von ihm durchführen zu lassen, oder besser durch einen externen Baufachmann? Für 5-9 stehen immerhin noch mal 45kEUR auf der Uhr und das kommt mir doch recht viel vor.
Wir freuen und jetzt schon auf Eure Rückmeldungen und eine offene Diskussion!
Liebe Grüße
Der Johann
Kurz zur Optik:
wirkt sehr unruhig
Kurz zur Aufteilung:
EG: der Ansatz ist gut, aber nicht treffend, komische Aufteilung
OG: das Kinderzimmer ist sehr schlauchig,
Schlafzimmer und Ankleide = warum nicht eine Tür ? Wozu soll der Erker gut sein ?
Ergebnis: m.M.n, auch wenn es mit Arbeit verbunden ist, ich würde hier ganz neu anfangen.
wirkt sehr unruhig
Kurz zur Aufteilung:
EG: der Ansatz ist gut, aber nicht treffend, komische Aufteilung
OG: das Kinderzimmer ist sehr schlauchig,
Schlafzimmer und Ankleide = warum nicht eine Tür ? Wozu soll der Erker gut sein ?
Ergebnis: m.M.n, auch wenn es mit Arbeit verbunden ist, ich würde hier ganz neu anfangen.
P
Pinky030128.04.20 09:40Wieso plant ihr Waschmaschine und Trockner nicht im OG, wo die Wäsche anfällt? Dann spart ihr den Aufzug. Der ist doch sicher nicht so günstig. Den Schacht im Wohnzimmer finde ich auch nicht so toll.
Kostenschätzung absolut unrealistisch. Das wird ein Megabau mit Kosten im Mio-Bereich.
Sehr viele unnötige Flächen und Zusatzräume, die kaum Vorteile bieten. Außenansicht m.E. Katastrophe.
Für weiterführende Diskussion bitte die Fragen aus dem Fragebogen beantworten:
https://www.hausbau-forum.de/threads/grundrissplanung-unbedingt-vor-Beitrag-Erstellung-lesen.11714/
Sehr viele unnötige Flächen und Zusatzräume, die kaum Vorteile bieten. Außenansicht m.E. Katastrophe.
Für weiterführende Diskussion bitte die Fragen aus dem Fragebogen beantworten:
https://www.hausbau-forum.de/threads/grundrissplanung-unbedingt-vor-Beitrag-Erstellung-lesen.11714/
Ähnliche Themen