ᐅ Erweiterung/Abänderung Eingangsbereich
Erstellt am: 02.03.21 23:56
In einem Bestandsbau (Einfamilienhaus) im Geltungsbereich der BayBO wird im Rahmen von Renovierungsmaßnahmen auf der Ostseite, für die das 16m-Privileg gilt, ein eingeschossiger Anbau / Erweiterung des Eingangsbereichs geplant (siehe beiliegender Plan). Dies führt zu einer Erweiterung bis auf 2,4 m Entfernung an das Nachbargrundstück mit subsequent Notwendigkeit der Eintragung einer Abstandsflächenübernahme durch den Nachbarn. Gibt es Möglichkeiten diesen Anbau als untergeordnetes Bauteil auszuführen bzw. gilt dieser evtl. sogar als untergeordnetes Bauteil ?
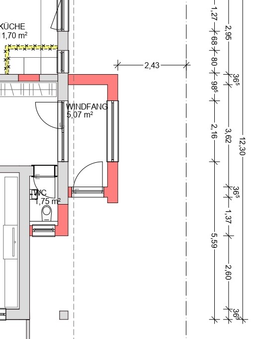
Zu dem Plan gilt zu sagen, dass das Haus eine Länge (Nord/Süd) von 12,3 m aufweist, die untere Wand auf der Ostseite gegenüber der Bauaußengrenze (d.h. Außenwand 1. OG) im Norden leicht (d.h. ca. 0,2 m) bzw. und im Süden stärker (d.h. 1,5 m = aktueller überdachter Eingangsbereich) eingerückt ist. Die Ausrichtung auf der Abbildung ist oben Norden, unten Süden. Der Abstand des Hauses (ohne Anbau) von der östlichen Grundstücksgrenze beträgt 4,2 m im EG bzw. 4 m im 1. OG.

Zu dem Plan gilt zu sagen, dass das Haus eine Länge (Nord/Süd) von 12,3 m aufweist, die untere Wand auf der Ostseite gegenüber der Bauaußengrenze (d.h. Außenwand 1. OG) im Norden leicht (d.h. ca. 0,2 m) bzw. und im Süden stärker (d.h. 1,5 m = aktueller überdachter Eingangsbereich) eingerückt ist. Die Ausrichtung auf der Abbildung ist oben Norden, unten Süden. Der Abstand des Hauses (ohne Anbau) von der östlichen Grundstücksgrenze beträgt 4,2 m im EG bzw. 4 m im 1. OG.
BayBo Art.6 Abs. 6
Bei der Bemessung der Abstandsflächen bleiben außer Betracht:
untergeordnete Vorbauten wie Balkone und eingeschossige Erker, wenn sie
a) insgesamt nicht mehr als ein Drittel der Breite der Außenwand des jeweiligen Gebäudes, höchstens jeweils 5 m, in Anspruch nehmen,
b) nicht mehr als 1,50 m vor diese Außenwand vortreten und
c) mindestens 2 m von der gegenüberliegenden Nachbargrenze entfernt bleiben
So, bei dir Zählen m.M. aber nicht die 12,3m sondern nur bis zur Einrückung die (12,3m-2,60m) 9,7m (hat mir mal ein Architekt erklärt, ich wollte es auch nicht glauben und bin bis heute nicht überzeugt).
9,7m x 1/3 = 3,23m. Dem Plan entnehme ich, dass dein Anbau ca. 4,4m lang ist --> geht nicht!
Vielleicht würde das Bauamt ja die ganze Hauslänge als Referenz akzeptieren also 12,3m * 1/3 = 4,1m --> Geht auch nicht!
Dein Anbau darf also je nach Auslegung der Definition "Außenwand" nur entweder 3,23m oder 4,1m lang sein.
Weiterhin maximal 1,5m breit (Maß ist in Zeichnung nicht angegeben). Und der Anbau/Erker darf max. 1 Geschoss hoch sein, also nicht im DG z.B. als Gaube weitergeführt werden.

So könntest du ohne größere Diskussion immerhin 4,1m Anbau erreichen. (WC Fenster dann zur Seite und dem Zimmer dort noch etwas mehr Platz gönnen)
Bei der Bemessung der Abstandsflächen bleiben außer Betracht:
untergeordnete Vorbauten wie Balkone und eingeschossige Erker, wenn sie
a) insgesamt nicht mehr als ein Drittel der Breite der Außenwand des jeweiligen Gebäudes, höchstens jeweils 5 m, in Anspruch nehmen,
b) nicht mehr als 1,50 m vor diese Außenwand vortreten und
c) mindestens 2 m von der gegenüberliegenden Nachbargrenze entfernt bleiben
So, bei dir Zählen m.M. aber nicht die 12,3m sondern nur bis zur Einrückung die (12,3m-2,60m) 9,7m (hat mir mal ein Architekt erklärt, ich wollte es auch nicht glauben und bin bis heute nicht überzeugt).
9,7m x 1/3 = 3,23m. Dem Plan entnehme ich, dass dein Anbau ca. 4,4m lang ist --> geht nicht!
Vielleicht würde das Bauamt ja die ganze Hauslänge als Referenz akzeptieren also 12,3m * 1/3 = 4,1m --> Geht auch nicht!
Dein Anbau darf also je nach Auslegung der Definition "Außenwand" nur entweder 3,23m oder 4,1m lang sein.
Weiterhin maximal 1,5m breit (Maß ist in Zeichnung nicht angegeben). Und der Anbau/Erker darf max. 1 Geschoss hoch sein, also nicht im DG z.B. als Gaube weitergeführt werden.
So könntest du ohne größere Diskussion immerhin 4,1m Anbau erreichen. (WC Fenster dann zur Seite und dem Zimmer dort noch etwas mehr Platz gönnen)
sollte nach einigen Änderungen kein Problem sein.
Erker etwas kuerzen Wandstaerken reduzieren.
Zitat BayBO 2021 Abstandsflaechen:
"2.
untergeordnete Vorbauten wie Balkone und eingeschossige Erker, wenn sie
a)
insgesamt nicht mehr als ein Drittel der Breite der Außenwand des jeweiligen Gebäudes, höchstens jeweils 5 m, in Anspruch nehmen,
b)
nicht mehr als 1,50 m vor diese Außenwand vortreten und
c)
mindestens 2 m von der gegenüberliegenden Nachbargrenze entfernt bleiben,"
Wie weit tritt den der Erker hervor? Ist leider nicht vermasst.
Erker etwas kuerzen Wandstaerken reduzieren.
Zitat BayBO 2021 Abstandsflaechen:
"2.
untergeordnete Vorbauten wie Balkone und eingeschossige Erker, wenn sie
a)
insgesamt nicht mehr als ein Drittel der Breite der Außenwand des jeweiligen Gebäudes, höchstens jeweils 5 m, in Anspruch nehmen,
b)
nicht mehr als 1,50 m vor diese Außenwand vortreten und
c)
mindestens 2 m von der gegenüberliegenden Nachbargrenze entfernt bleiben,"
Wie weit tritt den der Erker hervor? Ist leider nicht vermasst.
Vielen Dank für die Antworten, um die Nachfragen klarzustellen: Der Anbau ist eingeschossig geplant, er tritt nach aktueller Planung im EG 4,2 m - 2,43 m = 1,8 m vor der Wand hervor, gegenüber den Außenmaßen des gesamten Hauses (welche im 1. OG und Dach erreicht werden) um 4,0 - 2,43 m = 1,6 m. Anbei nochmals ein Bild um den Sachverhalt etwas klarer zu stellen. Meine Frage war auch, ob jemand Erfahrung hat, ob ein Haupteingangsbereich überhaupt ein untergeordnetes Bauteil im Sinne der Verordnung sein kann (d.h. klar kein Erker und kein Balkon).

chr2035 schrieb:
ob ein Haupteingangsbereich überhaupt ein untergeordnetes Bauteil im Sinne der Verordnung sein kann (d.h. klar kein Erker und kein Balkon)Bautechnisch ist es ein Erker. Ob du da drin ein Sofa, eine Badewanne oder nen Schuhschrank hast ist erstmal irrelevant.
Hier ergeben sich jetzt aber 2 Probleme:
1) 1,6m ist < 1,5m maximal zulässige Tiefe
2) So wie bisher die EG Außenwand ist, sind 4,3m deutlich über max. 1/3 der Wand (Auch wenn das Haus insgesamt 12m lang ist)
Diese Vorbauten heißen ja "untergeordnete Bauteile" weil eben max. 1/3 der Wandlänge als untergeordnet angesehen wird, d.h. durch den Erker trotzdem die ursprüngliche Wand als die Maßgebliche erkennbar ist. Mit einer weiteren Einrückung wie bei dir ist das eben nicht mehr gegeben.
Wenn es "nur" um ein Gäste-WC in diesem Bereich geht, baut dieses doch als Erker, da würden auch 3m Länge reichen ;-)
Ähnliche Themen