B
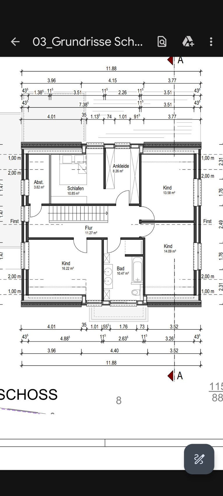
Benutzername1218.10.24 16:37Hallo Zusammen, wie findet Ihr die Gaube oben und den Erker unten. Diese sind ja nicht übereinander abgestimmt sondern ein wenig versetzt.
Sieht das komisch aus?
Soll dafür dienen das oben im Kinderzimmer mehr Tageslicht kommt da nur ein großes Fenster Nordseite geplant war. Somit ist jetzt auch vorne Westen ein Fenster.
Wollten auf Dachfenster überall verzichten.


Sieht das komisch aus?
Soll dafür dienen das oben im Kinderzimmer mehr Tageslicht kommt da nur ein großes Fenster Nordseite geplant war. Somit ist jetzt auch vorne Westen ein Fenster.
Wollten auf Dachfenster überall verzichten.
N
nordanney18.10.24 16:46Sieht kacke aus. Würde ich anders planen lassen.
B
Benutzername1218.10.24 16:49nordanney schrieb:
Sieht kacke aus. Würde ich anders planen lassen.Was genau sieht kacke aus?Satteldach war Pflicht. Dachneigung ist vorgegeben. Eingeschossig muss das Haus sein.
Wenn oben anders gestaltet oder man Klinker mit hoch ziehen würde dann wäre dies wohl nicht zulässig weil es dann nicht zum Dach gehört sondern zum Geschoss.
T
Tolentino18.10.24 17:11Er meint wohl eher eben das versetzte. Aber du hältst auch wichtige Informationen zurück. Zeig mal den EG-Grundriss und den Lageplan.
B
Benutzername1218.10.24 17:13Tolentino schrieb:
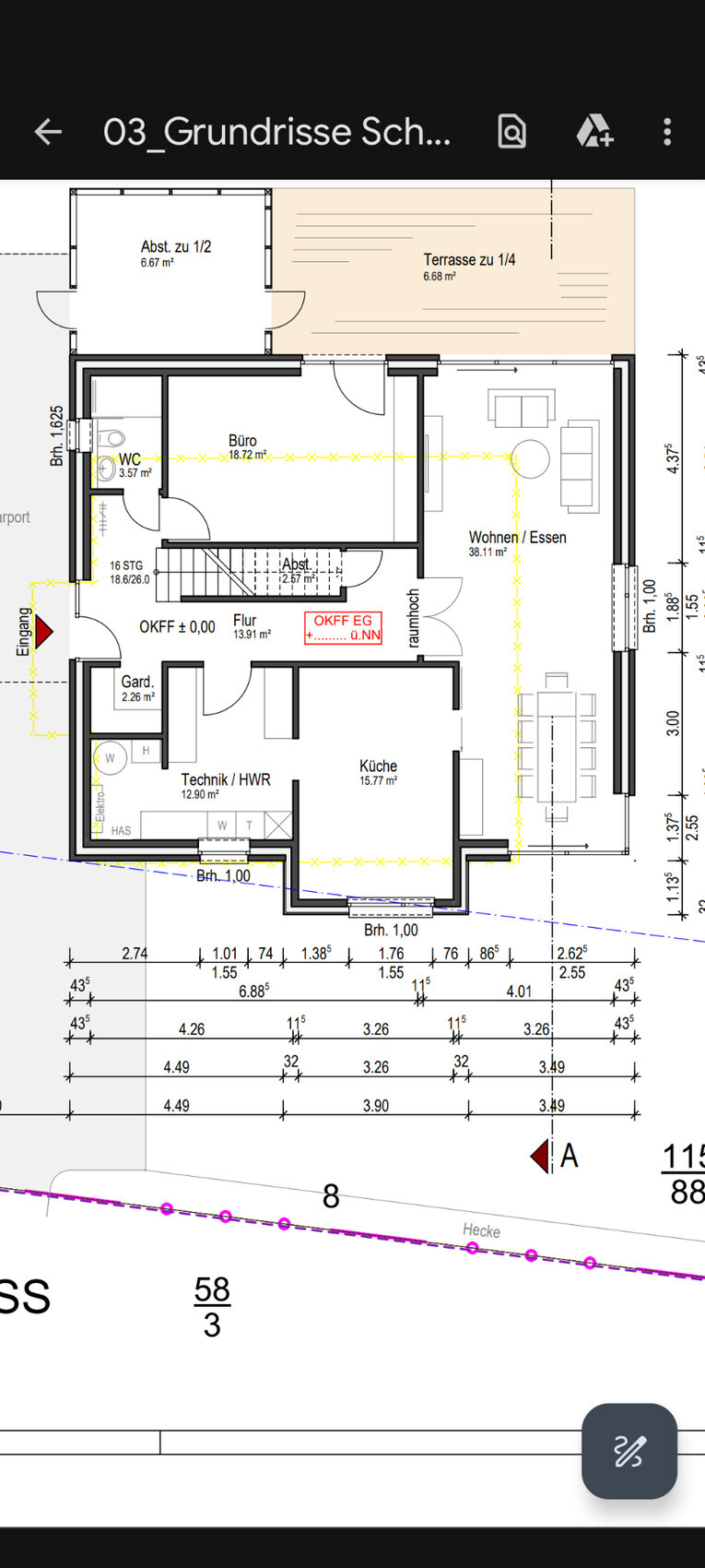
Er meint wohl eher eben das versetzte. Aber du hältst auch wichtige Informationen zurück. Zeig mal den EG-Grundriss und den Lageplan.So ist das im EG aus..Erker ist damit Küche größer wird.
Das ist jetzt mindestens der 4. Thread zum Gesamtgrundriss, der immer mehr in Teilbereichen geändert wird und wo dann irgendwann gar nichts mehr zusammenpasst.
Das hier mit dem zusätzlichen auf Schnapp an der Wand, wo man sonst Schrank stellen würde, ist übrigens das beste Beispiel für das, was hier einige User seit ca. 1 Woche predigen, dass man ein Haus als Gesamtheit und nicht als Zusammensetzung seiner einzelnen Zimmer sehen muss.
Das hier mit dem zusätzlichen auf Schnapp an der Wand, wo man sonst Schrank stellen würde, ist übrigens das beste Beispiel für das, was hier einige User seit ca. 1 Woche predigen, dass man ein Haus als Gesamtheit und nicht als Zusammensetzung seiner einzelnen Zimmer sehen muss.
Ähnliche Themen