Auf persönlichen Wunsch von
@11ant möchte ich an dieser Stelle mal zeigen, wozu euere Kommentare und ein neuer Planungsansatz geführt haben. Wir haben das Projekt nochmal neu durchdacht, das Haus einen halben Meter tiefer ins Gelände und einen weiteren Meter von de Straße weg versetzt, sodass die Lage im Hang es zuließ das Gebäude komplett zu unterkellern und somit viele Optionen möglich wurden.
Bebauungsplan/Einschränkungen
Größe des Grundstücks: 440 m²
Hang: starker Hang mit 30° - 40° im hinteren Bereich, 7-10 m handtuchförmiges Plateau an Straße
Grundflächenzahl: entfällt
Geschossflächenzahl: entfällt
Baufenster, Baulinie und -grenze: ohne Bebauungsplan, Baugenehmigung für anderes Objekt liegt bereits vor
Randbebauung: Einfamilienhaus, 2 Vollgeschosse, mehrheitlich Satteldach, aber auch Flach- und Walmdach
Anzahl Stellplatz: 2 sind Pflicht
Geschossigkeit: 2 Vollgeschosse + Souterrain am Südhang
Dachform: Satteldach
Stilrichtung: Freie Planung
Ausrichtung: Hanglage nach Süd-West
Maximale Höhen/Begrenzungen: unbekannt
weitere Vorgaben: kein Bebauungsplan
Anforderungen der Bauherren
Stilrichtung, Dachform, Gebäudetyp: Satteldach, zeitlos von Innen & Außen
Keller, Geschosse: Keller inkl. Souterrain Wohnfläche + 2 Vollgeschosse
Anzahl der Personen, Alter: 2 Erwachsene + 2 Kinder
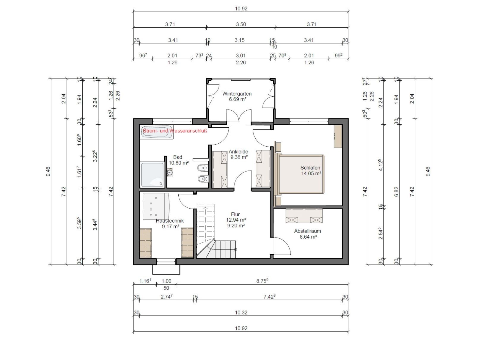
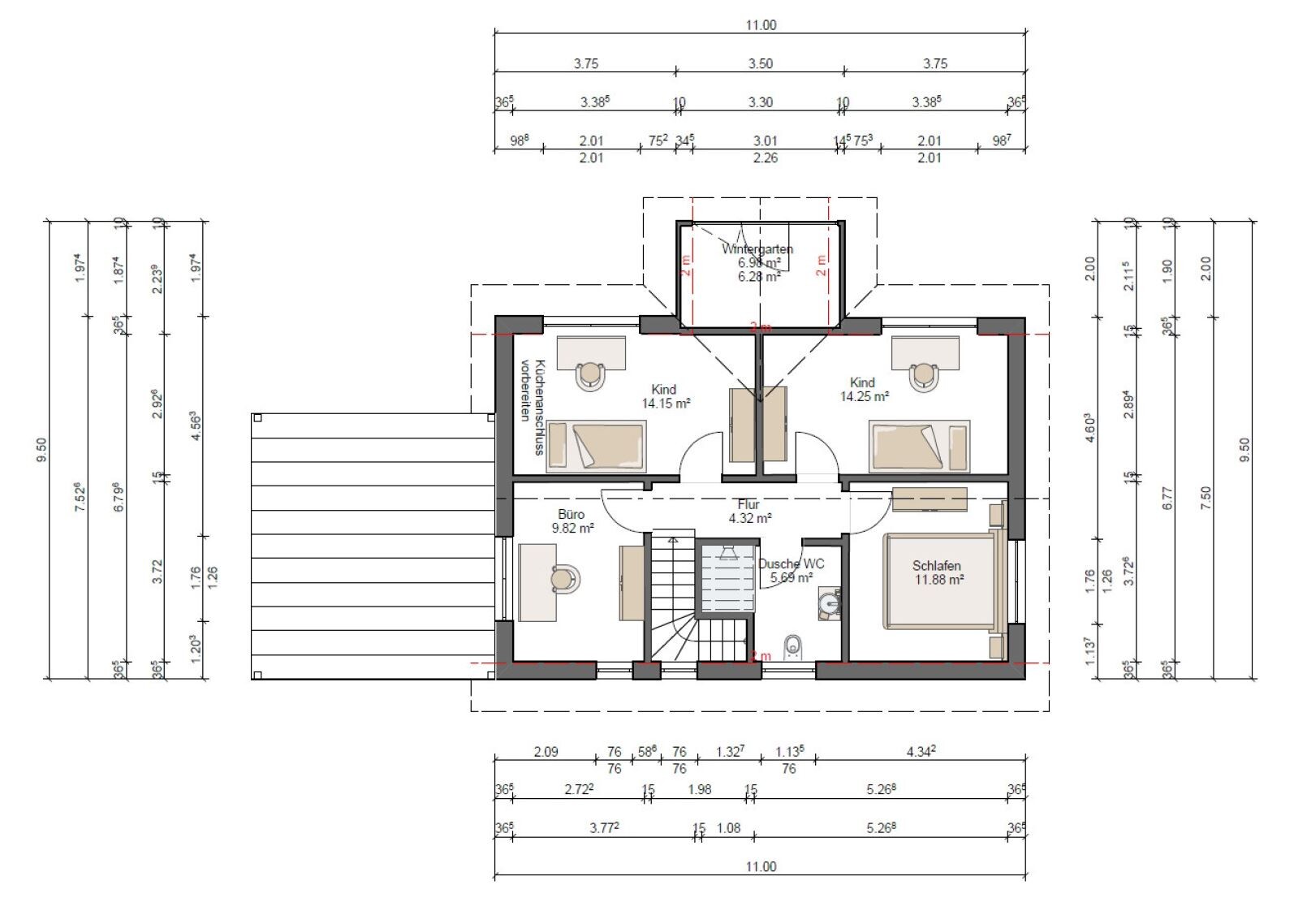
Raumbedarf im EG, OG: in Summe etwa 140 m² Wohnfläche + 20 m² Abstellfläche
Büro: 1 vollwertiges Büro, bei Bedarf ein weiteres im Gästezimmer möglich
Schlafgäste pro Jahr: hoffentlich viele

offene oder geschlossene Architektur: mittelweg, da die beiden Wohnungen im Alter trennbar sin sollen
konservativ oder moderne Bauweise: Holzständer und möglichst ökologisch und ökonomisch
offene Küche, Kochinsel: offen als G Küche
Anzahl Essplätze: min. 4
Kamin: ja im Wintergarten
Balkon, Dachterrasse: ja im Südweseten gelegen, direkt an den Wintergarten angrenzend ums Eck verlaufend
Garage, Carport: Carport auf der Ost-Seite bei Hauseingang
Nutzgarten, Treibhaus: terrassiert angelegter Garten mit Nutzflächen geplant
weitere Wünsche/Besonderheiten: zwei Hauseingänge, einmal im Norden und einmal am Carport im Osten
Hausentwurf
Von wem stammt die Planung: freier Planer
Was gefällt besonders? Warum?: Sehr gute Flächennutzung im Obergeschoss, offene Bauweise nach Süden, relativ geschlossen nach Norden
Was gefällt nicht? Warum? Wir müssen uns wahrscheinlich entscheiden, entweder Garderobe neben dem Hauseingang im Osten oder kleine Vorratskammer; kein Raum für Vorräte in der Küche
Preisschätzung: hoffentlich unter 700.000€
Persönliches Preislimit fürs Haus, inkl. Ausstattung: 700.000€
favorisierte Heiztechnik: Solar, i.V.m. Pelletheizung
Wenn Ihr verzichten müsst
-könnt Ihr verzichten: Anordnung und Aufteilung der Räume, Ausbau des Souterrain in den ersten Jahren
-könnt Ihr nicht verzichten: Trennbarkeit der Wohneinheiten fürs Alter
Warum ist der Entwurf so geworden, wie er jetzt ist?
Wie bereits beschrieben ist es ein recht langer Prozess gewesen, bis der Grundriss so entstanden ist. Das Grundstück ist nicht einfach und das Budget begrenzt. Der Wunsch nach einer nachhaltigen und ökologischen Bauweise ist sehr groß. Wir möchten die Wartungs- und Energiekosten in Zukunft möglichst gering halten.
Was ist die wichtigste/grundlegende Frage zum Grundriss in 130 Zeichen zusammengefasst?
Das eigene Heim ist glaube ich das wichtigste.