Entwurf für ein Einfamilienhaus mit 160-180qm - Verbesserungsvorschläge?

4,00 Stern(e) 8 Votes
Zuletzt aktualisiert 04.10.2025
Sie befinden sich auf der Seite 9 der Diskussion zum Thema: Entwurf für ein Einfamilienhaus mit 160-180qm - Verbesserungsvorschläge?
>> Zum 1. Beitrag <<

kbt09

kbt09

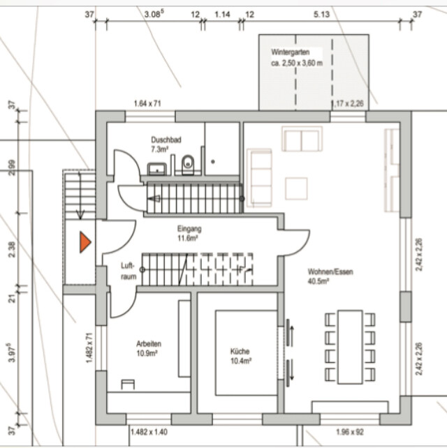
Ich finde ja, da ist ein Grundfehler im Plan. Wenn ich es richtig verstehe, dann wird der planobere Teil des Wohnzimmers auf der Gartenebene liegen.

Das ist doch aber eher unpraktisch. In dem Teil sollten eher Küche/Essen liegen, denn vor dort wirst du die Terrasse zum Grillen oder Chillen betreten.

Deshalb sind die Fragen nach Schlauch etc. halt ohne Einrichtungsskizzen etc. obsolet.
 
D

Duran

Die Gartenseite wäre rechts vom Wohnzimmer; dort wo die beiden großen Fenster bzw. Türe eingezeichnet lst.

Reicht 1.2m als Platz zwischen Treppe und flurwand oder ist dies zu schmal?
 
H

haydee

Kannst du mal bitte einen aktuellen Plan vom EG und einen Lageplan oder und Außenansichten?

1,20 m Rohbaumaß ist eng und schlauchig
 
Zuletzt aktualisiert 04.10.2025
Im Forum Grundrissplanung / Grundstücksplanung gibt es 2510 Themen mit insgesamt 87152 Beiträgen


Ähnliche Themen zu Entwurf für ein Einfamilienhaus mit 160-180qm - Verbesserungsvorschläge?
Nr.ErgebnisBeiträge
1Nicht-bodentiefe Fenster im Wohnzimmer unmodern? Welche Vorhänge? - Seite 217
2Wohnzimmer Vergrößern / Betondecke verlängern? - Seite 647
3Hilfe bei der Anordnung der Fenster benötigt! 32
4Wohnzimmer Grundrissplanungs-Ideen? 39
5Welche Rollläden bei verschlossenem Fenster, nur Verglasung? - Seite 213
6 Küchenplanung mit tiefen Fenster - Seite 343
7Grundrissfrage, Treppe, Fenster, Ausrichtung 12
8Sichere Fenster/Haustüre für Randlage - Seite 534
9Fenster / Türen / Garderobe 13
10Terrassentür / Schiebetür / bodentiefe Fenster 13
11Wohnzimmer: Wie Sofa, TV und Schränke stellen? 32
12Kontrollierte-Wohnraumlüftung und trotzdem nachts Fenster auf - Seite 671
13Grundriss für 150qm Einfamilienhaus mit Wohnzimmer nach Norden 21
14Wohnzimmer / Esszimmer gestalten. Ideen gesucht 10
157,70m Glasfront Wohnzimmer Haus 11 auf 11 Meter 14
16Bungalow 135qm: Grundriss + Fenster - Seite 2104
17OG Stadtville optimieren. Fenster Bodentief 104
18Öffnungsmöglichkeit der Fenster mit Kontrollierte-Wohnraumlüftung - Ideen zur Planung - Seite 860
19Platzierung der Möbel im Wohnzimmer im Grundriss 10
20Grenzständige Bebauung geschlossene Bauweise - Fenster Nachbarbebauung - Seite 213

Oben