Hausbau - Ratgeber
Bauherrenhilfe
- Bauherrenhilfe vor Vertragsabschluss
-- Warum einen unabhängigen Baubetreuer?
-- Vertragsgrundlagen
-- Bausumme
-- Zahlungsplan zur Kostenkontrolle
-- Pflichten des Bauherren vor Vertragsabschluss
-- Unterlagen beim Hausbau vor Vertragsabschluss
- Bauherrenhilfe nach Vertragsabschluss
-- Bauantrag bei Behörden
-- Bau-Genehmigungsverfahren bei Baubehörden
-- Bauspezifische Versicherungen
-- Bauzeitenplan
-- Baubeginn - die Letzten Pflichten der Bauherrschaft
- Bauherrenhilfe während der Bauzeit
- Gewährleistungsansprüche
- Bauabnahme
Baufinanzierung
- Baufinanzierung - Allgemeine Fragen
- Kreditarten
- Kredit-Konditionen
- Bausparen
- Staatliche Förderungen
- Verkehrswert
- Haushaltsrechnung und Bonität
Hausbau Planung
- Haustypen
- Hausbau Vorbereitungsarbeiten
- Das Baugrundstück
- Baugrund beim Hausbau
- Baurecht
- Gebäudeschutz
- Erdarbeiten und Wasserhaltung
- Stützmauern
- Einfriedung
- Untergeschoss
- Kanalisation
- Tragende Elemente
- Nichttragende Innenwände
- Fundation / Fundament
- Deckenkonstruktionen
- Dächer
- Kaminanlagen
- Treppen Rampen Leitern
- Dachbeläge und Spengler
- Fenster
- Sonnen und Wetterschutz
- Aussenputze
- Einbauten, Küchen, Türen
- Bodenbeläge und Unterlagsböden
- Parkett
- Gips, Wand, Decke
Haustechnik und Energie
- Heiztechnik
- Lüftung und Klimatechnik
- Sanitärtechnik
- Elektrotechnik
- Erneuerbare Energie
Whirlpools / Jacuzzi
Hausbau Magazin
- Baufinanzierung trotz Krise?
- Das Blockhaus
- Moderne Dämmstoffe im Vergleich
- Erker Vor- und Nachteile
- Glasflächen beim Hausbau
- Günstig ein Haus Bauen
- Mediterraner Hausbaustil
- Mehrgenerationenhaus
- Moderne Architektur
- Gartengestaltung leicht gemacht
- Traditioneller Ziegelbau
- Villa als höchster Traum
- Im Eigenheim Ruhestand geniessen
- Altbau sanieren
- Kauf einer Holzgarage
- Immobilienmakler
- Arbeitshandschuhe für den Winter
- Zuhause verschönern
- Outdoor-Plissees
- Schlafzimmer planen
- Terrassenüberdachung
- Wohngebäudeversicherung
- Girokonto für Bauherren finden
- Hauseingang gestalten
- Zaunarten und Eigenschaften
- Der perfekte Grundriss
- Sparsamer heizen im Altbau
- Einfamilienhaus smart finanzieren
- Planung einer PV-Anlage
- Neues Haus
- Immobilienfinanzierung
- Installation einer Photovoltaikanlage
- Asbest erkennen und entfernen
- Gartenpflege im Frühling – worauf achten
- Sauna im Fokus - Wellness zuhause
- Erfolgreich vermieten
- Die perfekte Winterbekleidung
- Das Niedrigenergiehaus
- Der April und seine Stürme
- Architektonische Vielfalt
- Ökologisch und nachhaltig bauen
- Das perfekte Schlafzimmer
- Nachhaltige Energieversorgung
- Zukunftsorientiert bauen
- Nachhaltigkeit beim Hausbau
- Tiny Houses
- Wärmepumpen als nachhaltige Heizvariante
- Maßgeschneiderten Kleiderschrank
- Der richtige Baukredit
- Ratgeber für erfolgreichen Hausbau
- Haus als Altersvorsorge
Do-it-yourself Anleitungen
- Verlegeanleitung für Bodenbeläge und Parkett
- Bodenbeläge und Parkett reinigen und pflegen
- Malerarbeiten am Haus
- Garten Tipps
- Umzug und Reinigung

ᐅ Einfamilienhaus planen: 550-qm-Grundstück, L-Form, Südausrichtung, Satteldach

Erstellt am: 23.11.25 16:49
W
WoodyXYZ
Hi,

fangen wir mal direkt mit dem Fragebogen an.

Bebauungsplan/Einschränkungen
Größe des Grundstücks: ca. 550qm
Hang: nein (ca. 0,5m Höhenunterschied auf 22m Grundstücksbreite)
Grundflächenzahl: 0,4
Geschossflächenzahl: n.a.
Baufenster, Baulinie und -grenze: 16m West-Ost + jeweils 3m Grenzbebauung, 14m Nord-Süd, 5m Abstand vor dem Haus zus Straße
Randbebauung: Ja (Norden: öffentliche Zufahrt, Westen und Süden: Fahrradweg, Osten: Nachbarbebauung mit einer Doppelhaushälfte, aktuell noch leer)
Anzahl Stellplatz: 2
Geschossigkeit: 2
Dachform: 0-35°
Stilrichtung: normal
Ausrichtung: Südausrichtung (Garten)
Maximale Höhen/Begrenzungen: Traufhöhe 5,5-7m, Gebäudehöhe 10m
weitere Vorgaben: keine

Anforderungen der Bauherren
Stilrichtung, Dachform, Gebäudetyp: Gerne Satteldach
Keller, Geschosse: ohne Keller, 2 Vollgeschosse + ausbaufähiges Dachgeschoss
Anzahl der Personen, Alter: 4 für die Hauptwohnung (2x41, 9, 7)
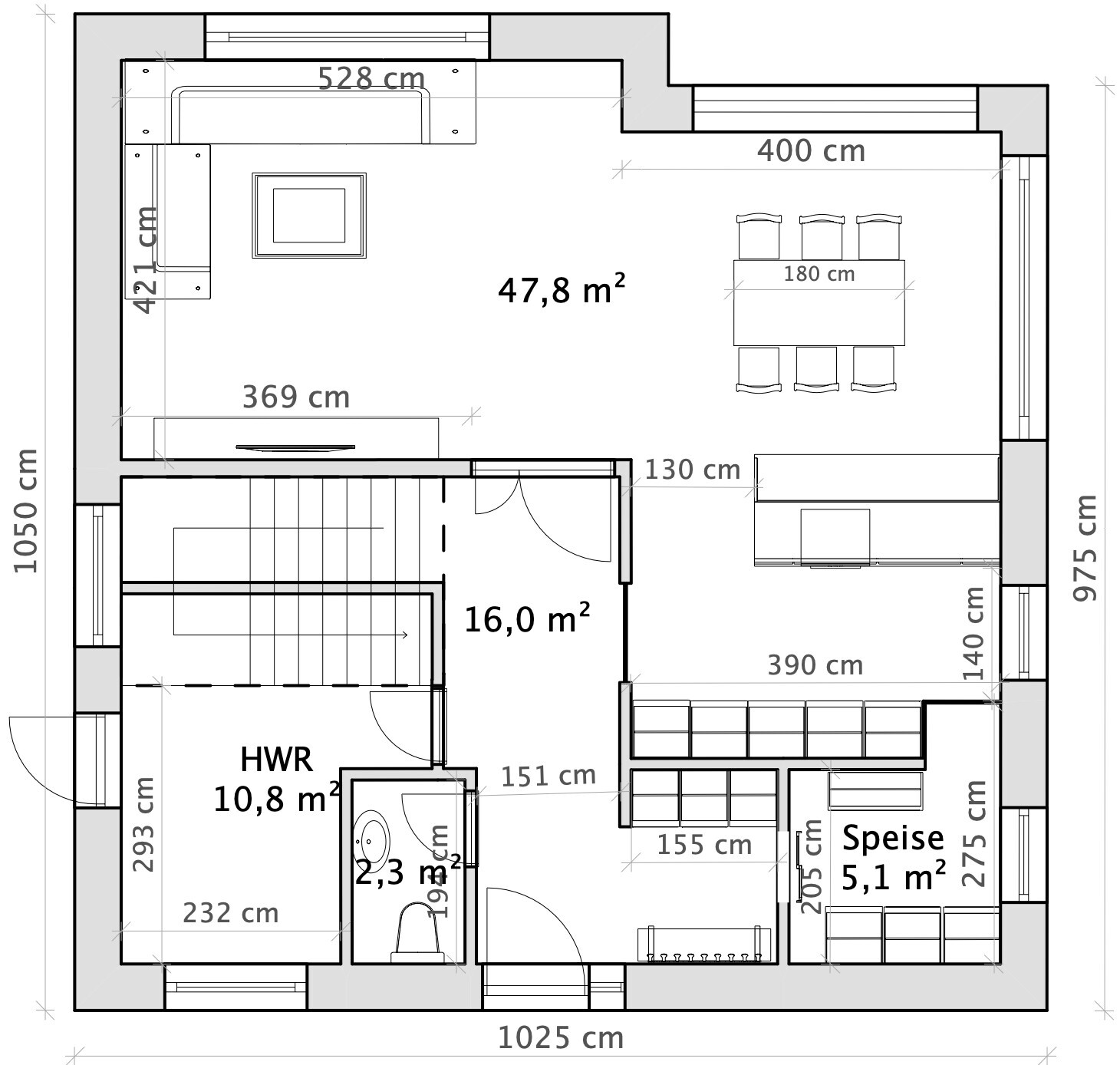
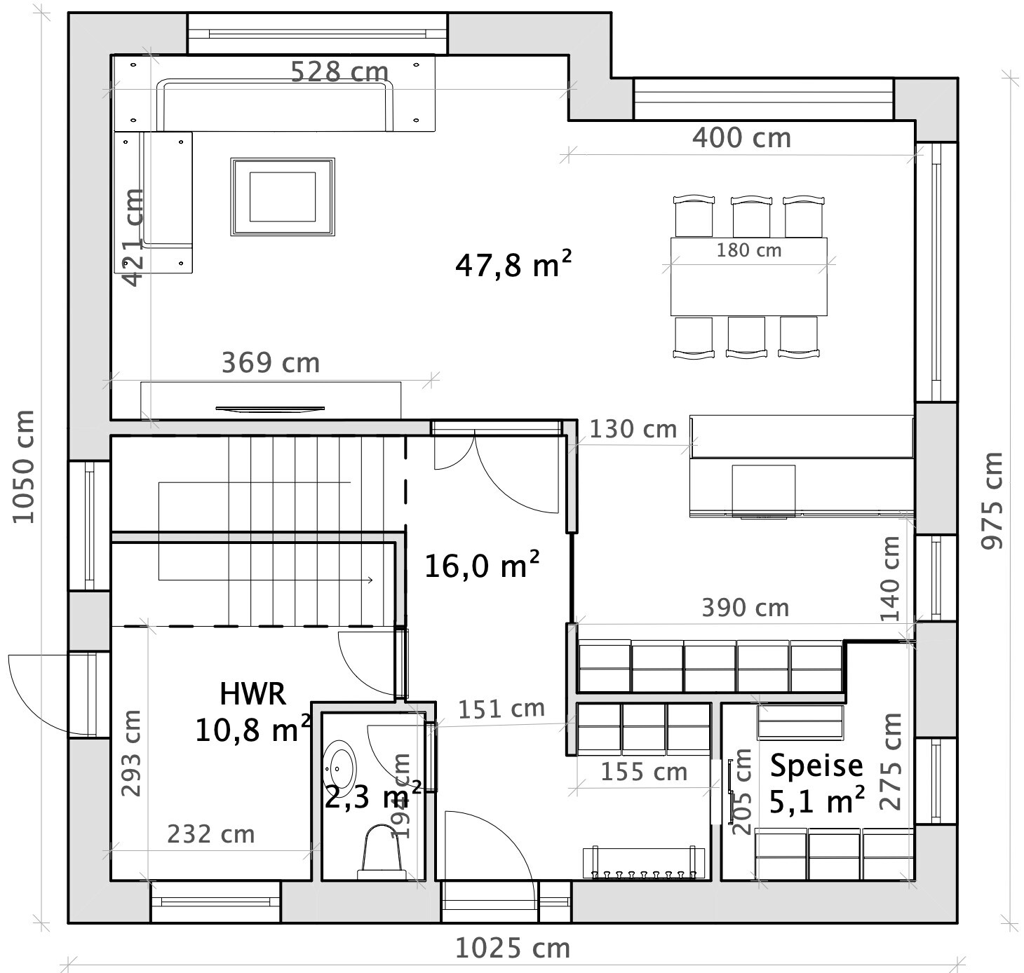
Raumbedarf im EG, OG:
EG: Wohn-Ess-Bereich, offene Küche, Büro/Gast, Gäste-WC, Technikraum
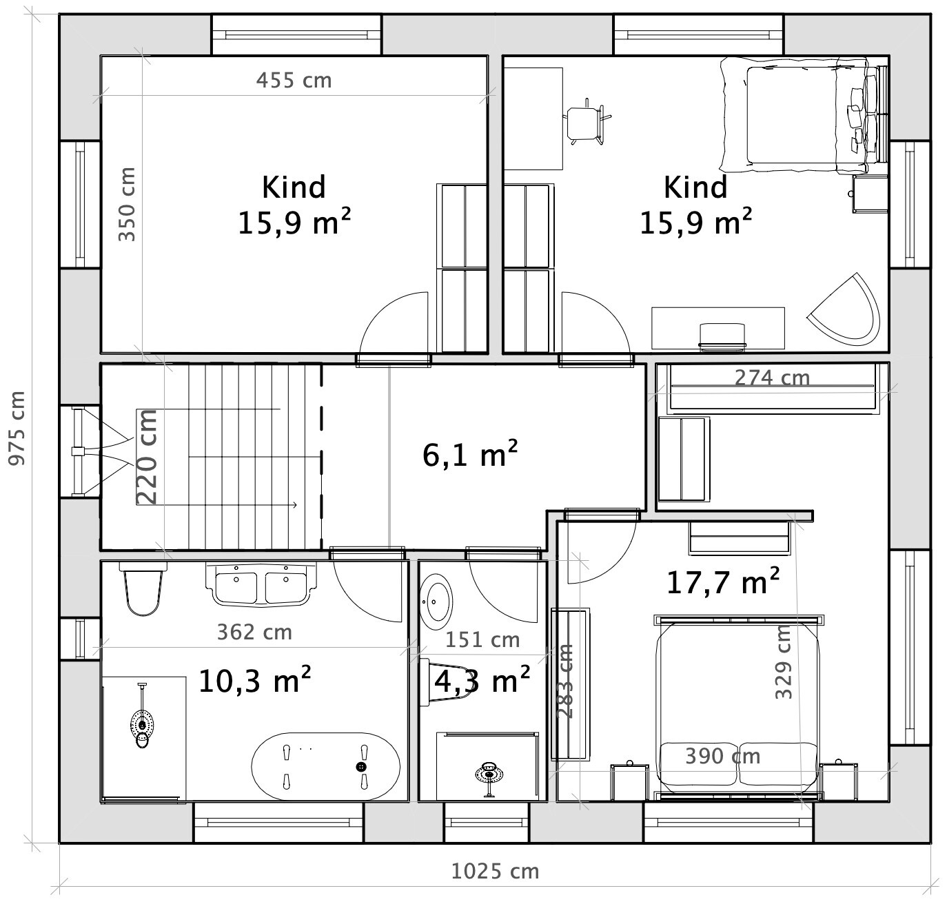
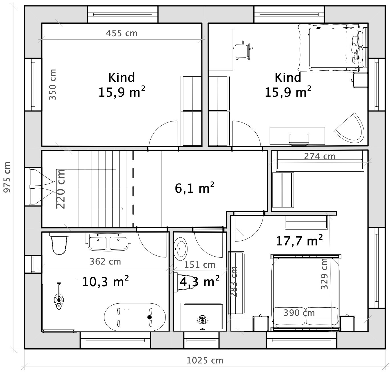
OG: 2 Kinderzimmer je mit min. 15qm im Süden, Schlafzimmer mit Fenster nach Westen, Badezimmer, 2. Dusch-Bad
DG: Allzweckraum (Hobby) + Abstellfläche wegen des fehlenden Kellers
Büro: Familiennutzung oder Homeoffice? HO
Schlafgäste pro Jahr: gelegentlich
offene oder geschlossene Architektur: eher offen (offene Galerien sind damit nicht gemeint)
konservativ oder moderne Bauweise: ...
offene Küche, Kochinsel: 2x ja
Anzahl Essplätze: 6
Kamin: nein
Musik/Stereowand: nein
Balkon, Dachterrasse: nein
Garage, Carport: Ja, aber noch keine Entscheidung getroffen welches davon es werden soll, Platzierung aber auf der Ost-Seite
Nutzgarten, Treibhaus: nein
weitere Wünsche/Besonderheiten/Tagesablauf, gern auch Begründungen, warum dieses oder das nicht sein soll
  • Backup-Küche soll eigentlich mit rein, haben wir aber im jetzigen Entwurf aus Platzgründen verworfen
  • Technikraum ist gleichzeitig Hauswirtschaftsraum, da Wäsche im EG gewaschen und getrocknet werden soll
  • Kinderzimmer Richtung Süden sind Pflicht mit min. 15qm
  • Ankleide wäre schön, muss aber nicht. Dann lieber größere Kinderzimmer
  • Uns gefallen rechteckige Grundrisse besser als quadratische, u. a. weil dadurch mehr Südgarten bleibt. Und ja, mir ist bewusst dass Quadrate auch Rechtecke sind.
  • Aufteilung in L-Form mit Wohnen (Süd), Essen (Süd-West) und Küche (West) ist eigentlich gesetzt. Eine I-Variante gefiel uns in keinem Musterhaus.
  • Terrasse kommt in den Süden
  • Kleiner Weg direkt von Küche zur Süd-Terrasse ist ebenfalls geplant
Hausentwurf
Von wem stammt die Planung:
- Als Basis dienten diverse Grundrisse von begabten Forenteilnehmern

Was gefällt besonders? Warum?
  • Podesttreppe -> unser absoluter Favorit
  • nicht allzu tiefer Baukörper (9,4m) bringt mehr Gartenfläche
  • Erdgeschoss
    • Wohn-Ess-Bereich plus Küche, da es unseren Vorgaben entspricht. Haben wir so in einem Musterhaus gesehen und waren uns direkt einig, dass es so aussehen soll.
    • Büro erspart mir das ständige Treppenlaufen an HO-Tagen
    • Hauswirtschaftsraum vermutlich ausreichend groß für Technik und Wäsche waschen/aufhängen
  • Obergeschoss
    • Große und vor allem gleich große Kinderzimmer Richtung Süden
    • 2. Bad im OG finden wir praktisch
    • Schlafzimmer Richtung Westen war uns wichtig (Abendsonne). Im Osten wäre der Nachbar sehr nah dran mit seiner Doppelhaushälfte über 2,5 Vollgeschosse (aktuell nur eine Vermutung)
Was gefällt nicht? Warum?
  • Backup-Küche fehlt -> evtl. Ankleide kleiner und Gäste-WC in die Nische beim Büro bzw. Hauswirtschaftsraum und dafür eine kleine Backup-Küche
  • Falls Backup-Küche nicht klappt, dann zumindest Vorrat unter der Treppe und dafür Hauswirtschaftsraum etwas kleiner
  • Bad könnte etwas breiter sein, um eine T-Lösung unterzubringen, da diese uns sehr gut gefällt
Preisschätzung laut Architekt/Planer: ...
Persönliches Preislimit fürs Haus, inkl. Ausstattung: 500.000
favorisierte Heiztechnik: Sole-WP (Nahwärmenetz)

Wenn Ihr verzichten müsst, auf welche Details/Ausbauten
-könnt Ihr verzichten: Garage
-könnt Ihr nicht verzichten:

Warum ist der Entwurf so geworden, wie er jetzt ist? ZB
Entsprechende/Welche Wünsche wurden vom Architekten umgesetzt?
Haben diverse Grundrisse hier im Forum "studiert" und das ist daraus geworden. Hier und da fehlen natürlich noch die Möbel (Büro, Kinderzimmer) und Einrichtung im Bad.

Was macht ihn in Euren Augen besonders gut oder schlecht?
Uns gefällt es, aber man kann sicherlich hier und da noch ordentlich optimieren. Grundriss ist bereits genordet (so gut wie).

Grundrissplan eines Hauses mit Küche, Wohnen, Flur und Technikraum, Maßangaben

2D-Grundriss eines Hauses mit Schlafzimmer, Bad, Kinderzimmern und Flur

Grundstücks- und Grundrissplan mit Maßlinien und farblich markierten Bereichen.
M
MachsSelbst
24.11.25 21:24
Weiß ich jetzt nicht, ich behaupte mein Flair 152 kann es auf 18m² weniger besser als euer 170m² Eigenentwurf.
Unsere Küche hat 17m², das Wohnzimmer 40m², Kinderzimmer knapp 15m², Arbeitszimmer 10m² im OG. Ok nur ein Bad im OG, nicht 2.

Backup-Küche ist was für Influencer Häuser, die glauben für 10 Gäste bräuchte man 2 Küchen. Du brauchst Abstellfläche, ja. Aber du brauchst nicht 3 oder 4 Backöfen. 17m² reichen locker für 30 Gäste, wenn man es kann...
H
hanghaus2023
24.11.25 22:26
WoodyXYZ schrieb:

Wie kommst du auf 15qm, da in der Zeichnung nur 12qm für das Hauptbad sind? Ich habe deinen OG-Grundriss noch nicht nachgebildet, um die exakten Maße zu sehen, aber um ehrlich zu sein, gefällt uns diese Variante nicht so gut. Es ist ein zusätzlicher Raum dazugekommen, den wir so nicht brauchen. Dafür ist das Haupt-Badezimmer mir persönlich zu klein geworden. Wir brauchen kein Luxus-Badezimmer, aber etwas größer darf es schon sein. Die Kinderzimmer sind vermutlich deutlich kleiner geworden, aber wahrscheinlich immer noch ausreichend groß und dafür haben wir eine Ankleide. Ich hätte nichts gegen eine Ankleide, aber mir sind die Kinderzimmer wichtiger als eine Ankleide. Wie gesagt, ich habe jetzt keine exakten Maße nachgebildet.
Da habe ich wohl etwas übertrieben. Schade das dir der Grundriss nicht gefällt. Wie gesagt ist der mMn etwas aufgeräumter. Es macht z.B. wenig Sinn Leitungen durchs ganze Haus zu ziehen. Daher der Ansatz beide Bäder nebeneinander. Wenn Ihr Euch bei dem knappen Budget die Luxusvariante Bad leisten wollt, dann streicht doch mein Kinderbad macht eine Galerie draus und dann reicht vermutlich der Bonusraum mit 9m2 auch für ein Luxusbad.

Die Kinderzimmer haben mMn 15m2 wie gewünscht.
WoodyXYZ schrieb:

Die zweite Variante gefällt mir schon viel besser. Bei der "Kücheninsel" sind wir uns aber nicht noch nicht sicher, ob das gut aussieht. Würde momentan dazu tendieren die Kücheninsel kleiner zu belassen und dennoch Küche und Allraum über Schiebetüren o. Ä. bei Bedarf schließen zu können.
Das kann man Alles besser planen. Nur habe ich das Problem, das das Haus generell noch zu gross ist. MMn solltest pro Etage 10m2 einsparen. Nicht das am Ende ein halb fertiges Haus da steht. Eure Ansprüche passen nicht zum Budget.
Y
ypg
24.11.25 22:27
Von mir kommen nur ein paar Hinweise, die man sich mal durch den Kopf gehen lassen sollte
WoodyXYZ schrieb:

Wie kommst du auf 15qm, da in der Zeichnung nur 12qm für das Hauptbad sind?
Er meint 16,5 für Bäder im OG.
WoodyXYZ schrieb:

Von wem stammt die Planung:
- Als Basis dienten diverse Grundrisse von begabten Forenteilnehmern
Ja, leider sieht man den Grundrissen an, dass da vieles zusammengetragen wurde. Statt dann ein rundes perfektes Haus zu entwerfen, ist ein Flickenteppich herausgekommen. Das fängt bei unharmonischen Flurformen an, geht über in teils schlecht funktionierende Musthaves wie Küche oder Garderobe, dafür unverhältnismässig große Kinderzimmer und hört bei der Statik und Außenfassade auf. Mittendrin viele Inst-Objekte bzw. Highlight der ganzen Ausstattungswelt.
WoodyXYZ schrieb:

  • Podesttreppe -> unser absoluter Favorit
  • nicht allzu tiefer Baukörper (9,4m) bringt mehr Gartenfläche
Das ist für eine schlüssige Planung schon ein Widerspruch: eine Podesttreppe trägt in ihrer Tiefe auf und zieht Räume in einen breiten Bereich wie auch andere Räume nach hinten.
WoodyXYZ schrieb:

Backup-Küche fehlt -> evtl. Ankleide kleiner
Mit Ankleide meinst Du die jetzt schon zu enge Garderobenecke?
WoodyXYZ schrieb:

Wohn-Ess-Bereich plus Küche, da es unseren Vorgaben entspricht. Haben wir so in einem Musterhaus gesehen und waren uns direkt einig, dass es so aussehen soll.
Ja, das kann ich nachvollziehen, dass man das mag. Ich verstehe aber ehrlich gesagt gar nicht, worauf Du Dich hier jetzt beziehst.
WoodyXYZ schrieb:

Wenn man sowas mit Lofttüren o. Ä. umsetzt, sieht es vermutlich viel, viel besser als als eine halbe Wand, auf die man zuläuft.
Warum dann noch mit Lofttüren kommen..
WoodyXYZ schrieb:

Küche und Allraum über Schiebetüren o. Ä. bei Bedarf schließen zu können.
.. und Trennwände..
Das ergibt doch dann ein ganz anderer Raum: Für Türen, egal ob Loft- oder Schiebe- braucht es Wände. Zusätzliche Wände geben einem Raum wieder eine ganz andere Note und Wirkung.
WoodyXYZ schrieb:

Würde momentan dazu tendieren die Kücheninsel kleiner zu belassen
Noch kleiner? Wieviel Arbeits- und Abstellfläche bleiben? Die Insel kann ja gern kleiner, den Raumverhältnissen angepasst, aber die Küche sollte ja schon funktionieren. Das sehe ich hier nicht.
WoodyXYZ schrieb:

Ich hätte nichts gegen eine Ankleide, aber mir sind die Kinderzimmer wichtiger als eine Ankleide.
Ob nun Ankleide oder nicht: Kinderzimmer wollen eingerichtet werden. Da sind 18qm schon eine Herausforderung, sie gemütlich zu gestalten.
WoodyXYZ schrieb:

Persönliches Preislimit fürs Haus, inkl. Ausstattung: 500.000
Dann würde ich eine Nummer kleiner planen. Drei Bäder, Podesttreppe, 2 Vollgeschosse plus Dach. Ohne Baunebenkosten könnte da schon eine 550 vorstehen.
Schmirgel schrieb:

Da möchte ich mal stumpf nachfragen, was eine Backup Küche ist?
Im Prinzip ist das der halb funktionierende Küchenanhängsel zur offenen Küche, die zwar nett und ach so toll aussehen soll mit Hochschrankwand und Insel, aber eigentlich nur alles verkompliziert, weil man sie nicht be-nutzen mag. In der Backup ist dann einiges an Funktion, aber auf engen Raum. Der Wunsch nach so einer Küche wächst mit diesen stapelbaren durchsichtigen Mepalbehältern und den in Modefarben eingefärbten Klappboxen jeglicher Größe für Äppel und Eier.
Diejenigen, die sie haben wollen, sind sich dieser Krux aber nicht bewusst. Sie wären eigentlich Typen einer geschlossenen Küche, aber das ist für sie ein Nogo, weil es derzeit nicht angesagt ist.
Ibdk14 schrieb:

Nur aus Interesse. Wie kommt es zu diesem Wunsch - ist mir einfach fremd, aber ihr habt evtl. ganz andere Lebensgewohnheiten als wir.
Indem man vormittags arbeitet oder anderweitig busy ist und nichts von der Sonne im Haus bis 15 Uhr mitbekommt, weil man dann erst nach Hause kommt.
Y
ypg
24.11.25 22:38
hanghaus2023 schrieb:

Es macht z.B. wenig Sinn Leitungen durchs ganze Haus zu ziehen.
Oder anders gesagt: Eltern-Schlafzimmer Tür an Tür zum Kinderbad. Das gibt doch nur Ärger und dann Verbote. Ein gekacheltes Bad hat eine sehr schöne Akustik. Akzeptanz kann da „kompliziert“ werden. Am Ende hilft nur der unbefriedigende Bad-Tausch.
Aber letztendlich ist das auch nur die Spitze des Eisbergs.
11ant25.11.25 10:32
hanghaus2023 schrieb:

Ich habe mal das OG aufgeräumt.
hanghaus2023 schrieb:

Da ist aber noch vieles möglich.
Ich zum Beispiel hätte ein Aufräumen auch der tragenden Wände begrüßt.
https://www.instagram.com/11antgmxde/
https://www.linkedin.com/company/bauen-jetzt/
W
WoodyXYZ
09.12.25 21:58
So, wir haben uns nochmal Gedanken gemacht und einen ersten Entwurf erstellt, der die Wohnfläche auf ca. 150qm reduziert. Hier gibt es mit Sicherheit noch jede Menge Optimierungspotential. Daher freue mich über euer Feedback. Ich habe dummerweise Norden und Süden vertauscht, also oben ist jetzt Süden.

Auf das Büro im EG verzichten wir bewusst, da sich beruflich eine Veränderung ergibt und wir dann lieber das Dachgeschoss bei Bedarf ausbauen werden.

Was uns sonst noch gefällt:
  • Es wirkt auf den ersten Blick nicht so gequetscht wie der erste Entwurf.
  • Garderobe hat mehr Bewegungsfreiheit.
  • Wohn-/Essbereich etwas großzügiger.
Wo wir uns unsicher sind:
  • Direkter Durchgang zur Speisekammer von Garderobe sowie Küche. Beibehalten oder auf einen (welchen) beschränken?
  • Kann man den Bereich Hauswirtschaftsraum/WC so lassen?
  • Gleiches gilt für die Aufteilung Schlafzimmer/Ankleide.
  • Der Flur im EG hat auf dem schmalsten Stück eine Breite von 1,5m und ansonsten sogar 1,85m. Das erscheint mir doch etwas zu viel des Guten, da nicht geplant ist noch weitere Garderobenschränke dort zu platzieren. Vermutlich reichen 1,2m bzw. 1,55m?
2D-Grundrissplan eines Hauses mit Wohnzimmer, Küche, Speise und Flur


Grundriss eines Hauses mit zwei Kinderzimmern, Bad, Schlafzimmer und Flur
küchekinderzimmerbädergarderobeankleidewändeabstellflächekinderbadpodesttreppeschlafzimmer