DaSch17
Hallo zusammen,
ich bin ein wenig erschrocken, dass ich hier seit fast 1,5 Jahren nicht mehr geschrieben habe... Unfassbar wie schnell die Zeit vergeht.
Wollte nur nochmal ein kurzes Update liefern:
Wir haben nun alle Genehmigungen zusammen und in der nächsten Woche geht es dann aufgrund deutlicher wetterbedingter Verzögerungen (Baustraße war nicht wie geplant im Oktober fertig und wurde daher erst nach Winterpause im April fertig gestellt) mit den Tiefbauarbeiten los. Hausaufstellung ist dann voraussichtlich Anfang Juni.
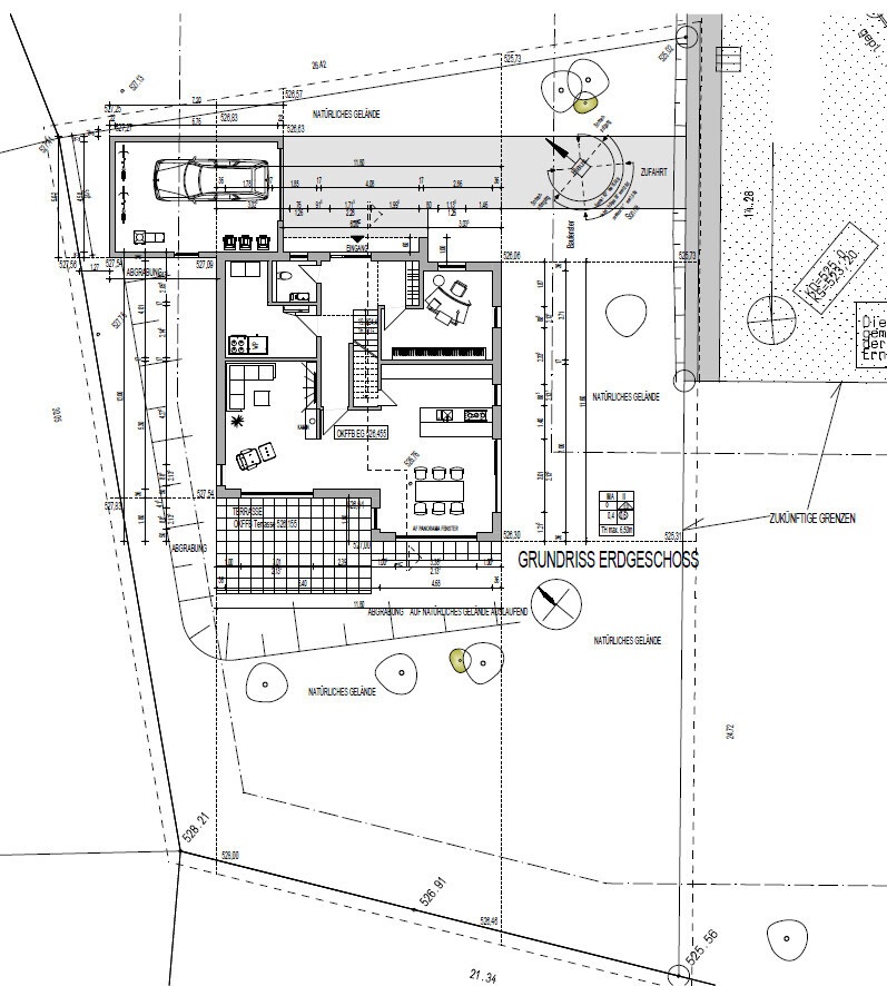
Anbei der finale Grundriss:
Vielleicht gibt's demnächst wieder ein bisschen mehr hier zu lesen.
Vielen Dank bis hierhin an alle Mitforisten!
ich bin ein wenig erschrocken, dass ich hier seit fast 1,5 Jahren nicht mehr geschrieben habe... Unfassbar wie schnell die Zeit vergeht.
Wollte nur nochmal ein kurzes Update liefern:
Wir haben nun alle Genehmigungen zusammen und in der nächsten Woche geht es dann aufgrund deutlicher wetterbedingter Verzögerungen (Baustraße war nicht wie geplant im Oktober fertig und wurde daher erst nach Winterpause im April fertig gestellt) mit den Tiefbauarbeiten los. Hausaufstellung ist dann voraussichtlich Anfang Juni.
Anbei der finale Grundriss:
Vielleicht gibt's demnächst wieder ein bisschen mehr hier zu lesen.
Vielen Dank bis hierhin an alle Mitforisten!