Hausbau - Ratgeber
Bauherrenhilfe
- Bauherrenhilfe vor Vertragsabschluss
-- Warum einen unabhängigen Baubetreuer?
-- Vertragsgrundlagen
-- Bausumme
-- Zahlungsplan zur Kostenkontrolle
-- Pflichten des Bauherren vor Vertragsabschluss
-- Unterlagen beim Hausbau vor Vertragsabschluss
- Bauherrenhilfe nach Vertragsabschluss
-- Bauantrag bei Behörden
-- Bau-Genehmigungsverfahren bei Baubehörden
-- Bauspezifische Versicherungen
-- Bauzeitenplan
-- Baubeginn - die Letzten Pflichten der Bauherrschaft
- Bauherrenhilfe während der Bauzeit
- Gewährleistungsansprüche
- Bauabnahme
Baufinanzierung
- Baufinanzierung - Allgemeine Fragen
- Kreditarten
- Kredit-Konditionen
- Bausparen
- Staatliche Förderungen
- Verkehrswert
- Haushaltsrechnung und Bonität
Hausbau Planung
- Haustypen
- Hausbau Vorbereitungsarbeiten
- Das Baugrundstück
- Baugrund beim Hausbau
- Baurecht
- Gebäudeschutz
- Erdarbeiten und Wasserhaltung
- Stützmauern
- Einfriedung
- Untergeschoss
- Kanalisation
- Tragende Elemente
- Nichttragende Innenwände
- Fundation / Fundament
- Deckenkonstruktionen
- Dächer
- Kaminanlagen
- Treppen Rampen Leitern
- Dachbeläge und Spengler
- Fenster
- Sonnen und Wetterschutz
- Aussenputze
- Einbauten, Küchen, Türen
- Bodenbeläge und Unterlagsböden
- Parkett
- Gips, Wand, Decke
Haustechnik und Energie
- Heiztechnik
- Lüftung und Klimatechnik
- Sanitärtechnik
- Elektrotechnik
- Erneuerbare Energie
Whirlpools / Jacuzzi
Hausbau Magazin
- Baufinanzierung trotz Krise?
- Das Blockhaus
- Moderne Dämmstoffe im Vergleich
- Erker Vor- und Nachteile
- Glasflächen beim Hausbau
- Günstig ein Haus Bauen
- Mediterraner Hausbaustil
- Mehrgenerationenhaus
- Moderne Architektur
- Gartengestaltung leicht gemacht
- Traditioneller Ziegelbau
- Villa als höchster Traum
- Im Eigenheim Ruhestand geniessen
- Altbau sanieren
- Kauf einer Holzgarage
- Immobilienmakler
- Arbeitshandschuhe für den Winter
- Zuhause verschönern
- Outdoor-Plissees
- Schlafzimmer planen
- Terrassenüberdachung
- Wohngebäudeversicherung
- Zaunarten und Eigenschaften
- Hauseingang gestalten
- Der perfekte Grundriss
- Sparsamer heizen im Altbau
- Einfamilienhaus smart finanzieren
- Planung einer PV-Anlage
- Neues Haus
- Immobilienfinanzierung
- Installation einer Photovoltaikanlage
- Asbest erkennen und entfernen
- Gartenpflege im Frühling – worauf achten
- Sauna im Fokus - Wellness zuhause
- Erfolgreich vermieten
- Die perfekte Winterbekleidung
- Das Niedrigenergiehaus
- Der April und seine Stürme
- Architektonische Vielfalt
- Ökologisch und nachhaltig bauen
- Das perfekte Schlafzimmer
- Nachhaltige Energieversorgung
- Zukunftsorientiert bauen
- Nachhaltigkeit beim Hausbau
- Tiny Houses
- Wärmepumpen als nachhaltige Heizvariante
- Maßgeschneiderten Kleiderschrank
- Der richtige Baukredit
- Ratgeber für erfolgreichen Hausbau
- Haus als Altersvorsorge
Do-it-yourself Anleitungen
- Verlegeanleitung für Bodenbeläge und Parkett
- Bodenbeläge und Parkett reinigen und pflegen
- Malerarbeiten am Haus
- Garten Tipps
- Umzug und Reinigung

ᐅ Einfamilienhaus mit Satteldach 160 qm und Einlegerwohnung 80qm

Erstellt am: 28.05.18 10:46
S
sue1234
S
sue1234
28.05.18 10:46

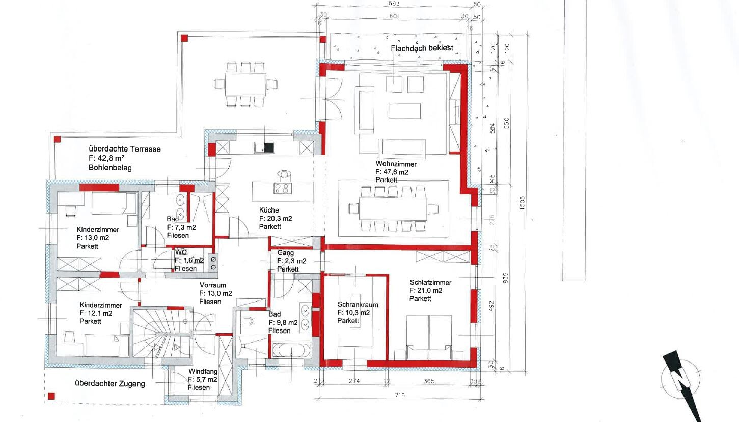
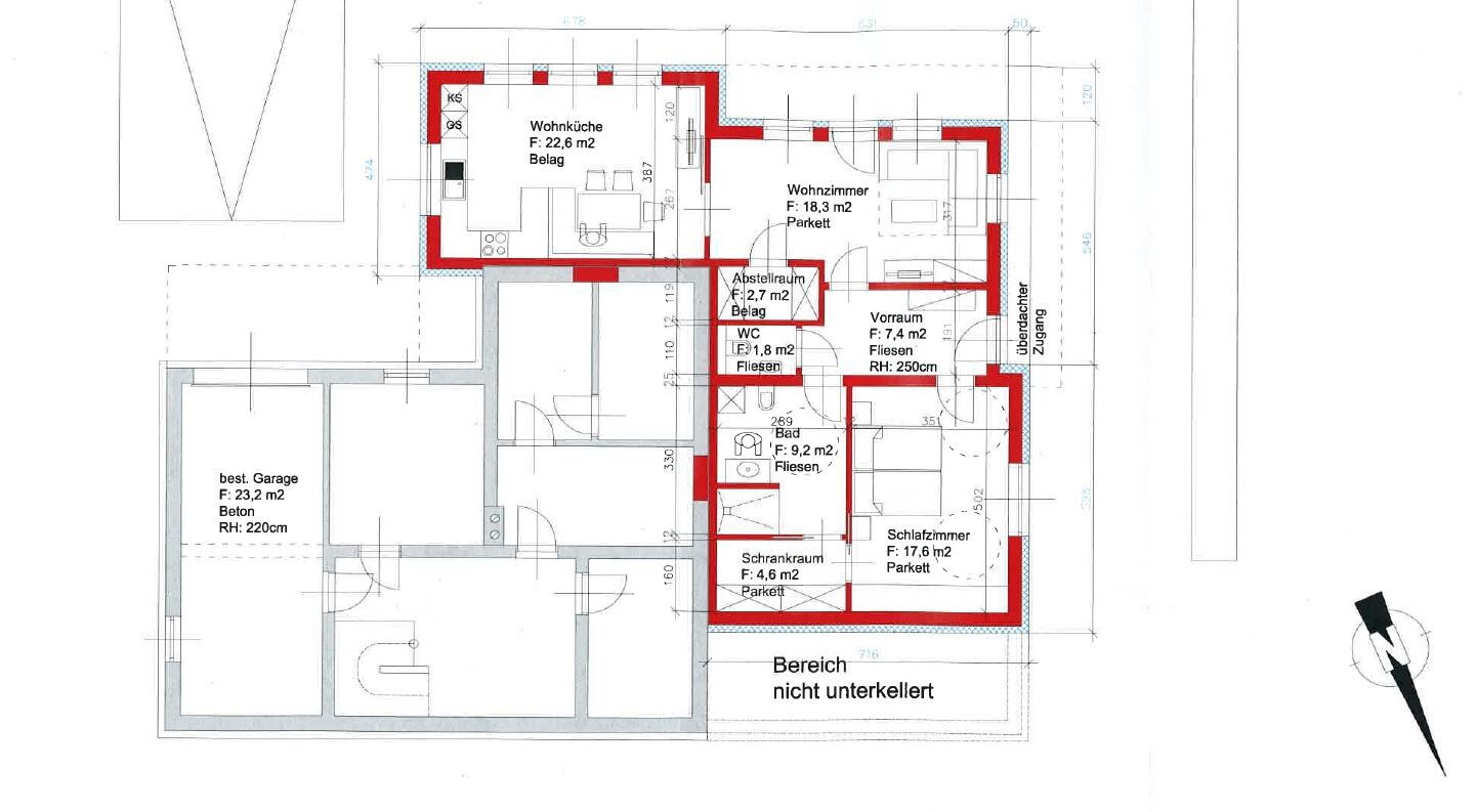
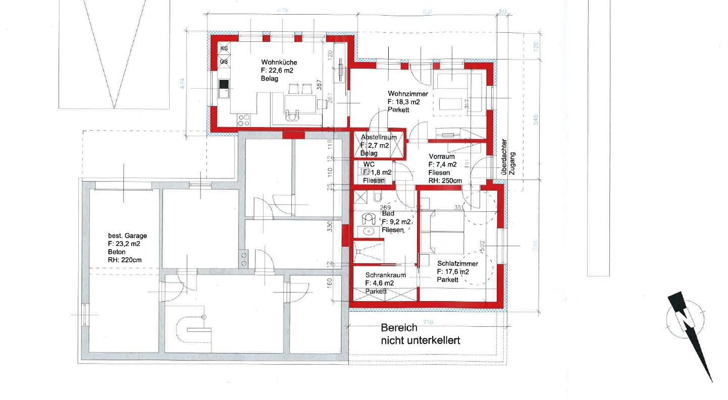
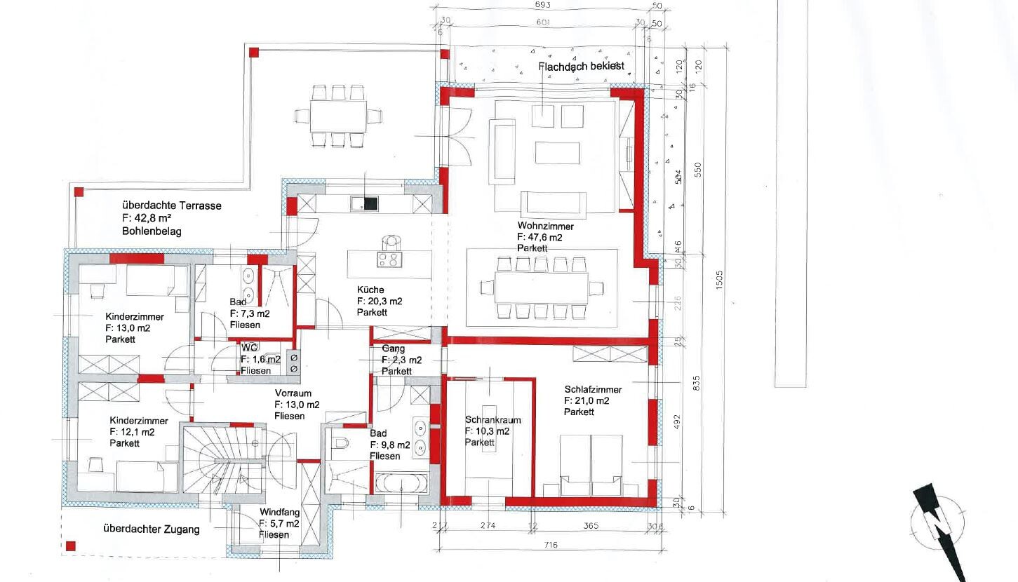
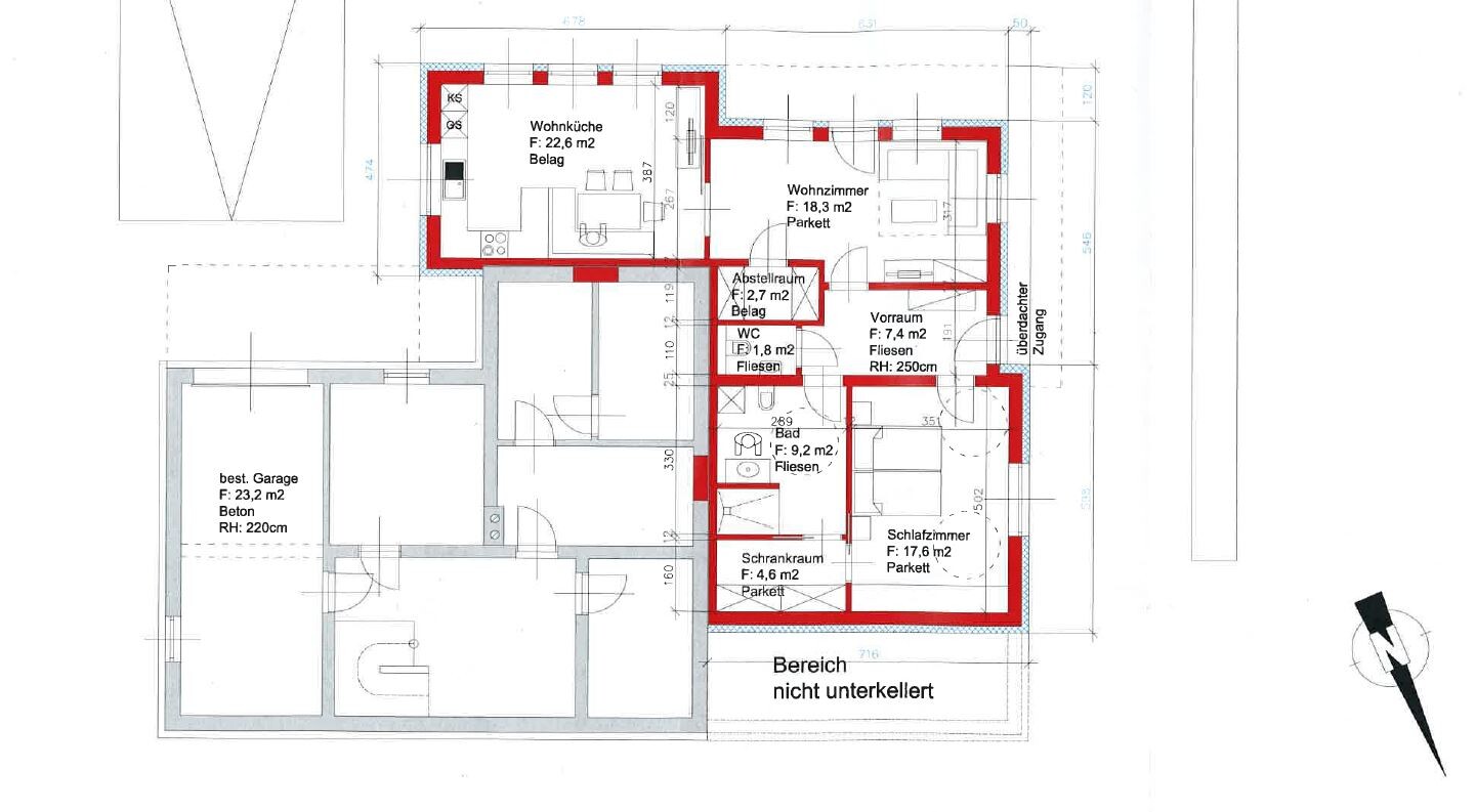
2D-Grundrissplan eines Hauses mit Küche Wohnzimmer Schlafzimmer und Garage
S
sue1234
28.05.18 10:47
Anbei die Pläne

Detaillierter Hausgrundriss mit Küche, Wohnzimmer und Schlafzimmer


Grundriss eines Hausplans mit Küche, Wohnzimmer, Bad und Schlafzimmer; rote Wandmarkierung.
C
Climbee
28.05.18 11:08
Insgesamt finde ich den Grundruß ganz gelungen. Außenansichten wären noch schön.

Ein paar Kleinigkeiten:

Im Schlafzimmer den Wand zum schrankzimmer bis an die WZ/Schlafzimmer-Wand ziehen und den Schrankbereich lieber zum Bad offen. Bei unterschiedlichen Aufsteh- oder Ins-Bett-Geh-Zeiten macht es mehr Sinn, den Ankleidebereich und das Bad vom Schlafbereich zu trennen als den Badbereich vom Ankleidebereich.

Wie barrierefrei muß die Einliegerwohnung sein? Ist leider nicht zu erkennen, aber die Türen erscheinen mir etwas schmal und im Schrankzimmer könnte es auch knapp warden. Zumindest für einen Rollstuhl. Rollator geht wahrscheinlich noch und wenn es nur darum geht, älteren Leuten das Treppen gehen und Türschwellen zu ersparen, dann paßt das auch.
C
Climbee
28.05.18 11:11
Eins fällt mir noch auf: das Kinderklo soll auch als Gäste-WC verwenden werden?

Dann würde ich drüber nachdenken, die WC-Tür zum Gang zu legen und evtl. den Kindern doch noch ein eigenes WC im Bad zu gönnen. Das Kinderbad sollte dafür groß genug sein.
S
sue1234
28.05.18 11:25
Liebe Climbee!

Danke für deine Ideen!

Deine Lösung für den Schlafzimmerbereich finde ich super! Dadurch würde dieser lange Gang auch kürzer wirken!
Die Kindertoilette dient auch als Gäste-WC, ein weiteres WC im Kinderbad sollte kein Problem sein.
Die Tür ist daher seitlich, da die Wand in den Gang eine bestehende tragende Wand mit 25 cm ist. Daher wäre die seitliche Tür bautechnisch einfacher... Aber müsste auch sonst kein Problem sein.

Die Einliegerwohnung ist für ältere Menschen gedacht. Die wesentlichen Bereiche sollten für den Notfall Rollstuhl-tauglich sein. Der Ankleideraum wird von meinen Großeltern nicht als solches verwendet und ist nur für später.

Anbei schick ich dir die Außenansicht, diese ist jedoch noch nicht endgültig und nur ein ungefährer Vorentwurf... Ich hätte es noch gerne etwas moderner.

LG und vielen Dank!
C
Climbee
28.05.18 11:28
Ah, euch gefällt der lange Gang im Schlafzimmer nicht: Wie gesagt: Wand zwischen Schlafzimmer und Ankleide zur WZ-Wand ziehen und die Trennwände zwischen Gang und Ankleide weg, dann dürfte auch das Schlauchgefühl weg sein.

Eine weitere Möglichkeit, die auch eine kleine Speis generieren würde: Zugang zum Elternbad vom Gang aus und dann in die Ankleide (Tür mittig in der Ankleide), das Schlauchgefühl ist somit ganz weg, weil es den Gang nicht mehr gibt. Das Stück Gang vor der bisherigen Badtür kann, zusammen mit dem Platz für den Schrank in der Küche, als Speis genutzt werden.

Zu schluckende Kröte dieser Lösung: Zugang zum Elternbad vom Eingangsbereich und ins Schlafzimmer kommt man nur durch's Bad. Das muß man mögen (ich bin nicht sicher, ob ich das wollte)
gäste-wcankleidebereichschlafzimmertürschrankzimmereinliegerwohnungkinderbadschlauchgefühlelternbad