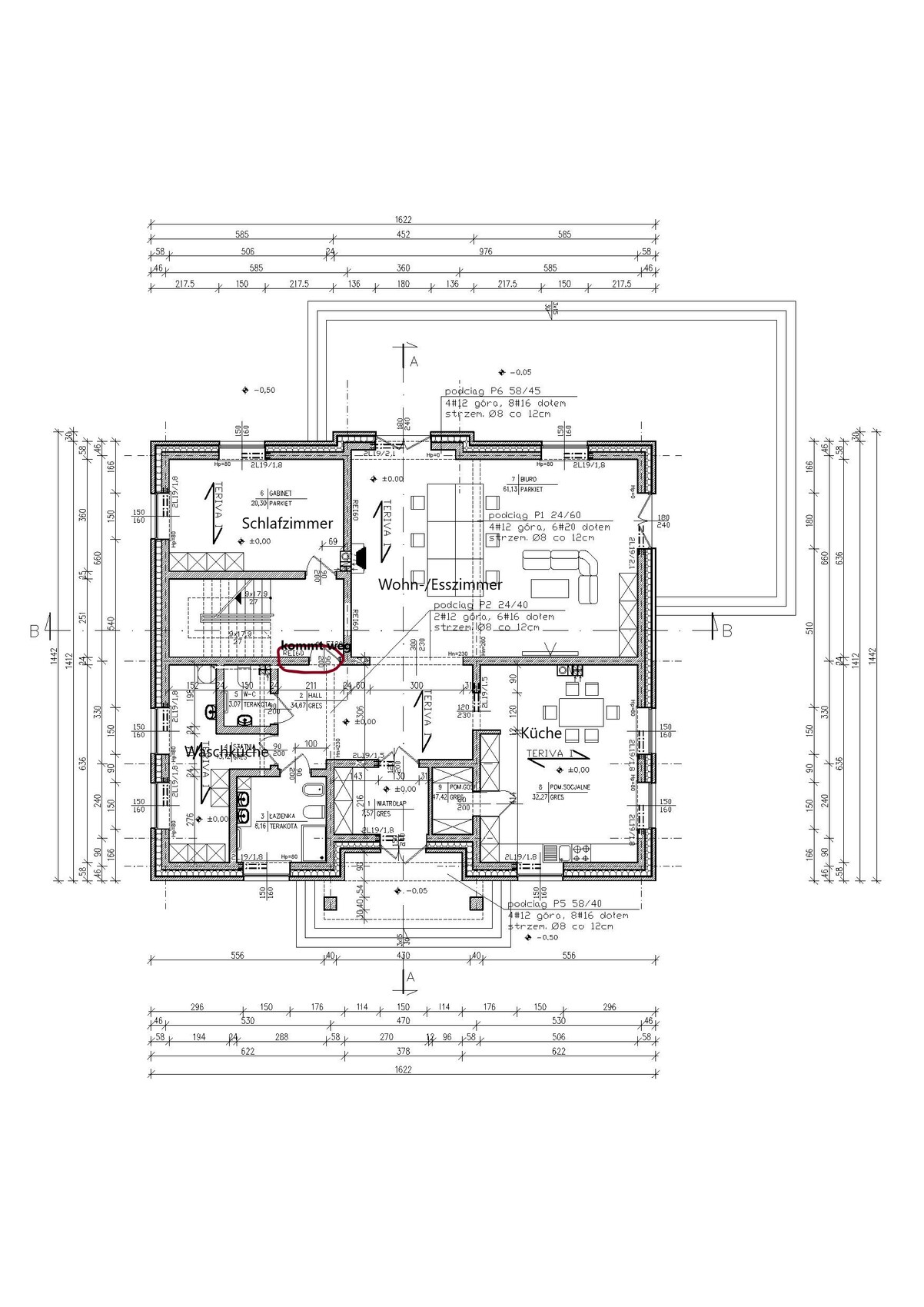
ᐅ Einfamilienhaus Krüppelwalmdach ca. 340qm
Erstellt am: 14.04.21 18:27
Hallo zusammen,
meine Frau und ich sind dabei ein Haus für uns und unsere drei Kinder zu bauen.
Wir haben einen Entwurf unseres Architekten, welchen wir gerne zur Diskussion stellen würden.
Bitte die eingezeichneten möbel ignorieren, das sind nur Platzfüller. Planung dazu kommt noch.
Bebauungsplan/Einschränkungen
Größe des Grundstücks: 6000m2 (60x100), Haus kommt ungefähr in die Mitte
Hauseingang vom Westen
keine Hanglage
Geschossigkeit 1 + Dachgeschoss
keine besonderen Einschränkungen
Anforderungen der Bauherren
Klassiches Einfamilienhaus
Dachform: Krüppelwalmdach
ohne Keller, zwei gut nutzbare Geschosse
2 Personen Anfang 30, 2 Kinder (2/5) + 1 geplant
Raumbedarf: siehe Planung
Büro: Wir brauchen ab und zu ein Arbeitszimmer
geschlossene Küche
6 Essplätze Küche
12 Essplätze Wohnzimmer/Esszimmer
konservative Bauweise
Kamin im Wohnzimmer, Kamin Leseecke DG
Fußbodenheizung
Garage sowie Heizungsraum bereits im Nebengebäude vorhanden
Hausentwurf
Von wem stammt die Planung:
Grober Entwurf von uns, inspiriert durch diverse Grundrisse. Vom Architekten umgesetzt.
Massivbau: Poroton innen, Ziegel außen
Was uns besonders gefällt: EG allgemein, die große Küche
Was uns nicht gefällt: Die Kinderzimmer im DG sind etwas zu groß.
Unsere Fragen:
Was kann man verbessern? Was geht gar nicht?
Werden die Zimmer ausreichend Tageslicht haben?
Vielen Dank schonmal!






meine Frau und ich sind dabei ein Haus für uns und unsere drei Kinder zu bauen.
Wir haben einen Entwurf unseres Architekten, welchen wir gerne zur Diskussion stellen würden.
Bitte die eingezeichneten möbel ignorieren, das sind nur Platzfüller. Planung dazu kommt noch.
Bebauungsplan/Einschränkungen
Größe des Grundstücks: 6000m2 (60x100), Haus kommt ungefähr in die Mitte
Hauseingang vom Westen
keine Hanglage
Geschossigkeit 1 + Dachgeschoss
keine besonderen Einschränkungen
Anforderungen der Bauherren
Klassiches Einfamilienhaus
Dachform: Krüppelwalmdach
ohne Keller, zwei gut nutzbare Geschosse
2 Personen Anfang 30, 2 Kinder (2/5) + 1 geplant
Raumbedarf: siehe Planung
Büro: Wir brauchen ab und zu ein Arbeitszimmer
geschlossene Küche
6 Essplätze Küche
12 Essplätze Wohnzimmer/Esszimmer
konservative Bauweise
Kamin im Wohnzimmer, Kamin Leseecke DG
Fußbodenheizung
Garage sowie Heizungsraum bereits im Nebengebäude vorhanden
Hausentwurf
Von wem stammt die Planung:
Grober Entwurf von uns, inspiriert durch diverse Grundrisse. Vom Architekten umgesetzt.
Massivbau: Poroton innen, Ziegel außen
Was uns besonders gefällt: EG allgemein, die große Küche
Was uns nicht gefällt: Die Kinderzimmer im DG sind etwas zu groß.
Unsere Fragen:
Was kann man verbessern? Was geht gar nicht?
Werden die Zimmer ausreichend Tageslicht haben?
Vielen Dank schonmal!
T
Tolentino14.04.21 18:37Wollt ihr mich adoptieren?
Ich finde das alles recht groß 😉 ... ohne geplante Möbel finde ich eine Beurteilung schlecht. Auch sollte die 2m-Linie im DG mal beschriftet sein, das Schlafzimmer dort oben scheint schwer möblierbar. Schwer möblierbar gilt auch für das Schlafzimmer im EG.
Wir oft wird denn der 12-Personen-Esstisch genutzt? Da braucht man irre viel Raum für.
Badezimmer und Gäste-WC-Situation im EG sind auch recht motivationslos.
Garderobe finde ich für die restliche Großzügigkeit des Hauses für Haushalt mit 5 Personen zu klein.
Wo ist Norden? Vielleicht doch mal Lageplan mit Garagen etc. dazu.
Wir oft wird denn der 12-Personen-Esstisch genutzt? Da braucht man irre viel Raum für.
Badezimmer und Gäste-WC-Situation im EG sind auch recht motivationslos.
Garderobe finde ich für die restliche Großzügigkeit des Hauses für Haushalt mit 5 Personen zu klein.
Wo ist Norden? Vielleicht doch mal Lageplan mit Garagen etc. dazu.
G
GeradeSchräg14.04.21 19:52Hallo,
vorab ich bin kein Experte, daher nur zwei Anmerkungen die ich evtl. ändern oder zumindest einmal zeichnerisch sehen wollte.
1) Ich würde im OG noch einen Abstellraum vorsehen. Für Staubsauger Putzmittel etc. Bei einem so großen Haus wollte ich dass nicht jedes mal quer durchs Haus schleppen. Falls ihr putzen lasst, dann als Erleichterung für die Haushaltskraft. :P
2) Die Dachgauben würde ich evtl. als eine Große, zumidest einmal zeichnerisch sehen wollen. Dann als Walmdachgaube, passend zum Rest.
vorab ich bin kein Experte, daher nur zwei Anmerkungen die ich evtl. ändern oder zumindest einmal zeichnerisch sehen wollte.
1) Ich würde im OG noch einen Abstellraum vorsehen. Für Staubsauger Putzmittel etc. Bei einem so großen Haus wollte ich dass nicht jedes mal quer durchs Haus schleppen. Falls ihr putzen lasst, dann als Erleichterung für die Haushaltskraft. :P
2) Die Dachgauben würde ich evtl. als eine Große, zumidest einmal zeichnerisch sehen wollen. Dann als Walmdachgaube, passend zum Rest.
Bitte Lageplan beifügen.
Wo ist Norden?
Wie hoch ist das Budget?
Bauland ist nicht Deutschland nehme ich an.
Ich finde im EG ist Leerraum. Das riesige Bad sollte zum Schlafraum. Die Treppe erinnert doch etwas an ein 80er Jahre Treppenhaus.
Zeichnet bitte überall richtige Möbel ein. Es wirkt teilweise unausgewogen.
Warum wollt ihr das Elternbad nicht En-Suite?
Im OG fehlt ein Abstellraum.
Wäsche und Haustechnik würde ich nicht in einem Raum haben wollen - ohne Not.
Die Außenansicht gefällt mir nicht. Da würde ich die Tipps von @GeradeSchräg annehmen
Wo ist Norden?
Wie hoch ist das Budget?
Bauland ist nicht Deutschland nehme ich an.
Ich finde im EG ist Leerraum. Das riesige Bad sollte zum Schlafraum. Die Treppe erinnert doch etwas an ein 80er Jahre Treppenhaus.
Zeichnet bitte überall richtige Möbel ein. Es wirkt teilweise unausgewogen.
Warum wollt ihr das Elternbad nicht En-Suite?
Im OG fehlt ein Abstellraum.
Wäsche und Haustechnik würde ich nicht in einem Raum haben wollen - ohne Not.
Die Außenansicht gefällt mir nicht. Da würde ich die Tipps von @GeradeSchräg annehmen
mega viel Fläche 🙂 Aber ein Mehrwert bis auf Platz für eine tolle Essmeile seh ich da nicht.
Eher gegenteilig: da läuft man sich echt ein Schuh - schön ist was anderes. Die Esstafel erinnert mich an ein Corona-Meeting :p
Aber mal vom Riesenwahn abgesehen:
Viel Fläche, aber der Hauswirtschaftsraum ist jetzt nicht gerade so konzipiert, dass man den gern betritt
Warum ist da ein Bad ohne Fenster? Muss doch nicht sein, oder?
Sehe ich es richtig, dass unten das Schlafzimmer für die Eltern ist?
Also ich frage: es gibt nämlich unten sowie oben keinen Platz für ein Ehebett!
Und dann vom Schlafzimmer ein Weg zur Toilette, entweder an der Treppe vorbei oder oben, wo die Teenager Party machen vorbei, ist ein Nogo - daher fällt er bei mir durch.
Ich kann die Mitarbeit eines Architekten nicht erkennen: die Maße sind teils normal, teils völlig verzerrt. Da ist jemand dabei, der keine Größen oder Pläne reell umsetzen kann. Schon allein die Winzig-Elemente Dusche und Waschtisch... die Winzig-Fenster im Wohnzimmer.., und was soll der Erker im Essbereich? Der ist noch nicht einmal in der richtigen Flucht.
Die 2-Meter-Linie fehlt.
Das Sofa verliert sich neben dem „eigentlich ist er zu breit“-Tisch und ein Kamin im Rücken, zwischen den Stühlen, wozu soll der dienen?
Zu Deiner Frage: WZ wird zu dunkel!
Eher gegenteilig: da läuft man sich echt ein Schuh - schön ist was anderes. Die Esstafel erinnert mich an ein Corona-Meeting :p
Aber mal vom Riesenwahn abgesehen:
Viel Fläche, aber der Hauswirtschaftsraum ist jetzt nicht gerade so konzipiert, dass man den gern betritt
Warum ist da ein Bad ohne Fenster? Muss doch nicht sein, oder?
Sehe ich es richtig, dass unten das Schlafzimmer für die Eltern ist?
Also ich frage: es gibt nämlich unten sowie oben keinen Platz für ein Ehebett!
Und dann vom Schlafzimmer ein Weg zur Toilette, entweder an der Treppe vorbei oder oben, wo die Teenager Party machen vorbei, ist ein Nogo - daher fällt er bei mir durch.
Ich kann die Mitarbeit eines Architekten nicht erkennen: die Maße sind teils normal, teils völlig verzerrt. Da ist jemand dabei, der keine Größen oder Pläne reell umsetzen kann. Schon allein die Winzig-Elemente Dusche und Waschtisch... die Winzig-Fenster im Wohnzimmer.., und was soll der Erker im Essbereich? Der ist noch nicht einmal in der richtigen Flucht.
Die 2-Meter-Linie fehlt.
Das Sofa verliert sich neben dem „eigentlich ist er zu breit“-Tisch und ein Kamin im Rücken, zwischen den Stühlen, wozu soll der dienen?
Zu Deiner Frage: WZ wird zu dunkel!
Ähnliche Themen