Hallo zusammen,
wir hatten vor ca. einem Jahr schon mal mit der Planung gestartet und nun das Konzept vom Haus noch mal nahezu komplett verworfen und neu gemacht...
Da nun der zweite Nachwuchs ansteht und unsere jetzige Wohnung zu klein ist, müssen wir etwas Gas geben... Grundstück ist schon vorhanden. (Parzelle 5 links oben).
Bebauungsplan/Einschränkungen
Größe des Grundstücks: 954 qm
Hang: nein (alles eben)
Grundflächenzahl/Geschosse, etc.: alles nach Bebauungsplan...
Anforderungen der Bauherren
- moderner Stil
- kein Keller
- zwei Erwachsene + 2 Babys
- Wohnbereiche von Erwachsene vs. Kinder sollten sich später mal etwas abtrennen lassen (d.h. zu Beginn Schlafen alle im OG, wenn Kinder größer dann werden wir ins EG ziehen und Kinder behalten OG)
- nicht so viele Schlafgäste
- offene Küche, Kochinsel
- Anzahl Essplätz: 6-10
- Raumbedarf. EG 132 und OG 113 (klingt nach viel, dafür sind aber ein paar Räume Kellerersatzräume)
Hausentwurf
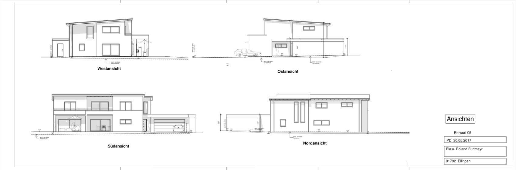
- Entwurf von uns selbst, aber dann gezeichnet von Architekten
Positiv:
- Etwas geschützte Terrasse (vor Einblicke und vor Wind)
- Wand im OG von Diele zu Flur ist nur optional (wird jetzt noch nicht gebaut, ev. später zum Abtrennen von zwei Wohnbereichen).
- Eltern- Kinderbereich lässt sich später trennen (Eltern im EG, Kinder im OG)
Negativ:
- Große Diele im OG
Persönliches Preislimit fürs Haus, inkl Ausstattung:450.000 (ohne Grundstück)
favorisierte Heiztechnik: Gas oder Luft-Wasser-Wärmepumpe
Wenn Ihr verzichten müsst, auf welche Details/Ausbauten
-könnt Ihr verzichten: hab schon meinen Kamin und den Keller geopfert
-könnt Ihr nicht verzichten: Terrasse mit Südausrichtung
Warum ist der Entwurf so geworden, wie er jetzt ist?
- Sollte vor Einblicke von der Straße (Südost) und vor Wind (West) geschützt sein.
- Terrasse sollte auch nicht gleich von der Straße einsehbar sein.
Freu mich auf Feedback und Kritik.
Gruß, Roland




wir hatten vor ca. einem Jahr schon mal mit der Planung gestartet und nun das Konzept vom Haus noch mal nahezu komplett verworfen und neu gemacht...
Da nun der zweite Nachwuchs ansteht und unsere jetzige Wohnung zu klein ist, müssen wir etwas Gas geben... Grundstück ist schon vorhanden. (Parzelle 5 links oben).
Bebauungsplan/Einschränkungen
Größe des Grundstücks: 954 qm
Hang: nein (alles eben)
Grundflächenzahl/Geschosse, etc.: alles nach Bebauungsplan...
Anforderungen der Bauherren
- moderner Stil
- kein Keller
- zwei Erwachsene + 2 Babys
- Wohnbereiche von Erwachsene vs. Kinder sollten sich später mal etwas abtrennen lassen (d.h. zu Beginn Schlafen alle im OG, wenn Kinder größer dann werden wir ins EG ziehen und Kinder behalten OG)
- nicht so viele Schlafgäste
- offene Küche, Kochinsel
- Anzahl Essplätz: 6-10
- Raumbedarf. EG 132 und OG 113 (klingt nach viel, dafür sind aber ein paar Räume Kellerersatzräume)
Hausentwurf
- Entwurf von uns selbst, aber dann gezeichnet von Architekten
Positiv:
- Etwas geschützte Terrasse (vor Einblicke und vor Wind)
- Wand im OG von Diele zu Flur ist nur optional (wird jetzt noch nicht gebaut, ev. später zum Abtrennen von zwei Wohnbereichen).
- Eltern- Kinderbereich lässt sich später trennen (Eltern im EG, Kinder im OG)
Negativ:
- Große Diele im OG
Persönliches Preislimit fürs Haus, inkl Ausstattung:450.000 (ohne Grundstück)
favorisierte Heiztechnik: Gas oder Luft-Wasser-Wärmepumpe
Wenn Ihr verzichten müsst, auf welche Details/Ausbauten
-könnt Ihr verzichten: hab schon meinen Kamin und den Keller geopfert
-könnt Ihr nicht verzichten: Terrasse mit Südausrichtung
Warum ist der Entwurf so geworden, wie er jetzt ist?
- Sollte vor Einblicke von der Straße (Südost) und vor Wind (West) geschützt sein.
- Terrasse sollte auch nicht gleich von der Straße einsehbar sein.
Freu mich auf Feedback und Kritik.
Gruß, Roland
Curly schrieb:
ihr habt im Erdgeschoss und im Obergeschoss eine Lagerfläche (Hauswirtschaftsraum, Speisekammer usw.) von 38m² und euer Flur im Obergeschoss ist 20m² groß. Warum baut ihr dann nicht mit Keller wenn ihr soviel Lagerfläche braucht? Wäre das nicht günstiger?
LG
SabineWir dachten eigentlich, dass der Keller teurer wäre als ein oberirdischer Lagerraum (wenn Grundstück ausreichend vorhanden ist)... Haben das aber noch nie richtig kalkulieren lassen...S
Steffen8002.06.17 10:40roland76 schrieb:
Ja, Garage inklusive...Grundstück ist wie gesagt schon gekauft...Hatte schon gehofft das wir noch hinkommen (verzichten ja auf Keller, Kamin, aufwendiges Dach - weiterhin werden ein paar Räume noch nicht richtig ausgebaut da nur als Lager/Kellerersatz).Halte ich für nicht realisierbar. Ganz egal was der Architekt Euch sagt. Mit Architekt kannst Du pauschal so oder so gleich mal noch 30% draufschlagen
Unserer Werdegang war grob so: Beim Erstgespräch (2014): 1550 EUR pro qm (200 sollten es werden). Im Laufe der Planung dann erst 1650, 1750..am Ende 1800 EUR zzgl. Extras wie Garage, Kamin und 1000 kleine Kleinigkeiten. Am Ende 225qm für ~ 470k EUR und noch immer zzgl. Kamin, Garage, Küche, KNX, Kontrollierte-Wohnraumlüftung, Baunebenkosten (noch mal ca. 170k darauf). In Summe und mit der gehobeneren Ausstattung 640k. Außenanlage kommt auch noch dazu.
Gruss, Steffen
Ich bin da ganz bei Steffen.
450k für dieses Haus reicht definitiv nicht. Baut man so ein Haus, will man auch bei der Ausstattung mehr als einfachen Standard. Da würde ich dann locker noch mal 100-150k mehr einplanen.
Zum Vergleich:
Wir bauen auch gerade in Bayern mit Architekt.
Wir kommen all incl. bei ~180m² auf 440k.
Da is aber bei den Außenanlagen nur das Notwendigste und keine Garage sondern ein einfacher Doppelcarport geplant.
450k für dieses Haus reicht definitiv nicht. Baut man so ein Haus, will man auch bei der Ausstattung mehr als einfachen Standard. Da würde ich dann locker noch mal 100-150k mehr einplanen.
Zum Vergleich:
Wir bauen auch gerade in Bayern mit Architekt.
Wir kommen all incl. bei ~180m² auf 440k.
Da is aber bei den Außenanlagen nur das Notwendigste und keine Garage sondern ein einfacher Doppelcarport geplant.
S
Steffen8002.06.17 10:57Curly schrieb:
normalerweise ist Kellerfläche vom Quadratmeterpreis billiger als oberirdischer Wohnraum. Wenn ich soviel Lagerfläche planen würde, dann würde ich mir das eher mal mit Keller durchrechnen lassen, zumal auch der Wert des Hauses dadurch steigen dürfte.
LG
SabineDas kommt darauf an. Lagerfläche unterm Dach ist günstiger als Keller. Bei uns stand zur Wahl: Keller (weiße Wanne) oder DG + größere Garage. Keller wären ca. 60..70k gewesen. Gedämmtes Dach und Mehrpreis Garage waren vielleicht 20..30k.
Ähnliche Themen