Hausbau - Ratgeber
Bauherrenhilfe
- Bauherrenhilfe vor Vertragsabschluss
-- Warum einen unabhängigen Baubetreuer?
-- Vertragsgrundlagen
-- Bausumme
-- Zahlungsplan zur Kostenkontrolle
-- Pflichten des Bauherren vor Vertragsabschluss
-- Unterlagen beim Hausbau vor Vertragsabschluss
- Bauherrenhilfe nach Vertragsabschluss
-- Bauantrag bei Behörden
-- Bau-Genehmigungsverfahren bei Baubehörden
-- Bauspezifische Versicherungen
-- Bauzeitenplan
-- Baubeginn - die Letzten Pflichten der Bauherrschaft
- Bauherrenhilfe während der Bauzeit
- Gewährleistungsansprüche
- Bauabnahme
Baufinanzierung
- Baufinanzierung - Allgemeine Fragen
- Kreditarten
- Kredit-Konditionen
- Bausparen
- Staatliche Förderungen
- Verkehrswert
- Haushaltsrechnung und Bonität
Hausbau Planung
- Haustypen
- Hausbau Vorbereitungsarbeiten
- Das Baugrundstück
- Baugrund beim Hausbau
- Baurecht
- Gebäudeschutz
- Erdarbeiten und Wasserhaltung
- Stützmauern
- Einfriedung
- Untergeschoss
- Kanalisation
- Tragende Elemente
- Nichttragende Innenwände
- Fundation / Fundament
- Deckenkonstruktionen
- Dächer
- Kaminanlagen
- Treppen Rampen Leitern
- Dachbeläge und Spengler
- Fenster
- Sonnen und Wetterschutz
- Aussenputze
- Einbauten, Küchen, Türen
- Bodenbeläge und Unterlagsböden
- Parkett
- Gips, Wand, Decke
Haustechnik und Energie
- Heiztechnik
- Lüftung und Klimatechnik
- Sanitärtechnik
- Elektrotechnik
- Erneuerbare Energie
Whirlpools / Jacuzzi
Hausbau Magazin
- Baufinanzierung trotz Krise?
- Das Blockhaus
- Moderne Dämmstoffe im Vergleich
- Erker Vor- und Nachteile
- Glasflächen beim Hausbau
- Günstig ein Haus Bauen
- Mediterraner Hausbaustil
- Mehrgenerationenhaus
- Moderne Architektur
- Gartengestaltung leicht gemacht
- Traditioneller Ziegelbau
- Villa als höchster Traum
- Im Eigenheim Ruhestand geniessen
- Altbau sanieren
- Kauf einer Holzgarage
- Immobilienmakler
- Arbeitshandschuhe für den Winter
- Zuhause verschönern
- Outdoor-Plissees
- Schlafzimmer planen
- Terrassenüberdachung
- Wohngebäudeversicherung
- Zaunarten und Eigenschaften
- Hauseingang gestalten
- Der perfekte Grundriss
- Sparsamer heizen im Altbau
- Einfamilienhaus smart finanzieren
- Planung einer PV-Anlage
- Neues Haus
- Immobilienfinanzierung
- Installation einer Photovoltaikanlage
- Asbest erkennen und entfernen
- Gartenpflege im Frühling – worauf achten
- Sauna im Fokus - Wellness zuhause
- Erfolgreich vermieten
- Die perfekte Winterbekleidung
- Das Niedrigenergiehaus
- Der April und seine Stürme
- Architektonische Vielfalt
- Ökologisch und nachhaltig bauen
- Das perfekte Schlafzimmer
- Nachhaltige Energieversorgung
- Zukunftsorientiert bauen
- Nachhaltigkeit beim Hausbau
- Tiny Houses
- Wärmepumpen als nachhaltige Heizvariante
- Maßgeschneiderten Kleiderschrank
- Der richtige Baukredit
- Ratgeber für erfolgreichen Hausbau
- Haus als Altersvorsorge
Do-it-yourself Anleitungen
- Verlegeanleitung für Bodenbeläge und Parkett
- Bodenbeläge und Parkett reinigen und pflegen
- Malerarbeiten am Haus
- Garten Tipps
- Umzug und Reinigung

ᐅ Einfamilienhaus, dritte Reihe, Nord-Ausrichtung -Haus, Terrasse, Garage?

Erstellt am: 03.05.15 19:35
N
nms_hs
N
nms_hs
03.05.15 19:35
Guten Abend zusammen,

ich lese schon einige Zeit mit, und so wie es momentan aussieht schaffen wir es noch dieses Jahr ein Haus zu bauen.
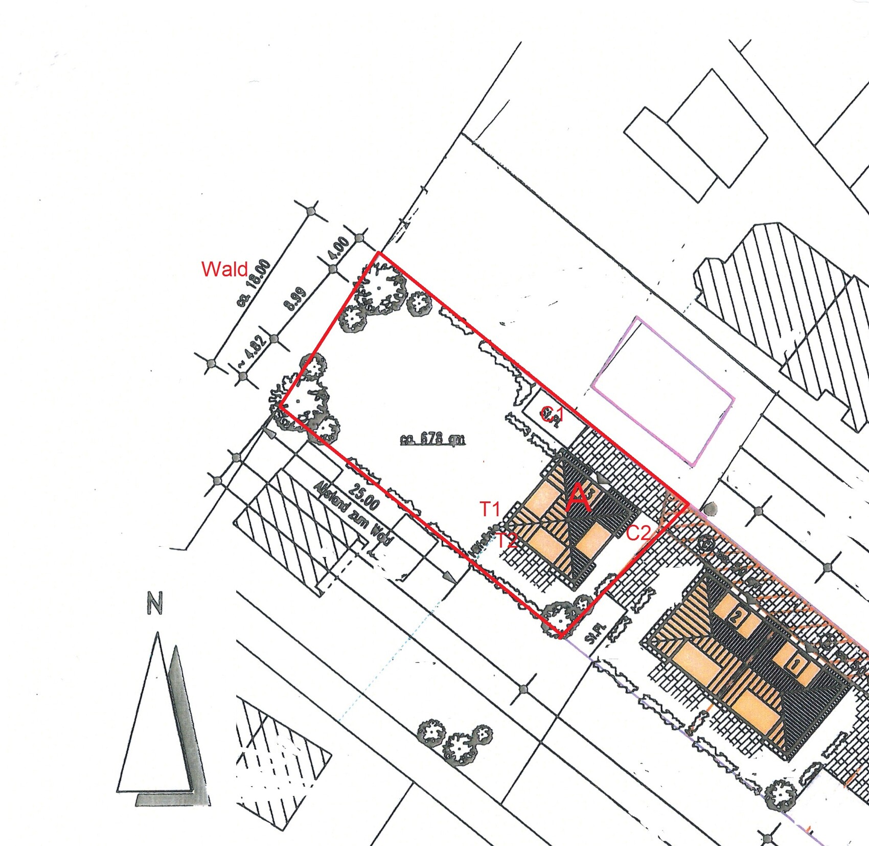
Wir bauen mit einem mittelgroßen Massivhausanbieter ein ca. 140m^2, 11m langes und 8m breites, normales (also keine Stadtvilla) Einfamilienhaus Typenhaus mit freiem Grundriss, Grundstück ist fast gekauft ca.670m^2 plus ein wenig Auffahrt.
Das Haus wird mit Kfw70, mit Lüftungsanlage, Fußbodenheizung, elektr. Rollläden, also nichts extravagantes.

Es gibt keinen Bebauungsplan, der Bauvorbescheid legt lediglich im Norden den Waldabstand auf 25m fest. Dadurch ist die Lage des Hauses auch fest, siehe Anhang (A). Dort sieht man auch das Haus, was in zweiter Reihe entstehen soll. Das steht allerdings noch nicht fest, wie und was gebaut wird.

Und dann kommt es auch schon zu meinen Fragen, in der Hoffnung, dass jemand tolle Ideen hat.

- Wir hätten gerne eine Garage, die darf aber nicht im Waldabstand errichtet werden. Ein Stellplatz schon, der Sinn ist mir noch nicht klar, aber na gut. Daher ist Position C1 ja eigentlich raus, bei C2 ist mir nicht klar, ob da eine Garage überhaupt Sinn macht? Also doch Carport?
- Die Terrasse soll über das Eck bei T1 und T2 gehen. Langt eine West-Terrasse mit 3m Abstand zum Nachbarn, oder ist das zu wenig und man kann es gleich sein lassen? Nur Nord-Terrasse wäre aber schon unschön?
- Hab ich noch irgendwas ganz Schlimmes an dem Grundstück übersehen - oder irgendwas, was zu beachten ist? Dritte Reihe, real geteilt, gemeinsame Auffahrt, Autobahn ca. 500m Luftlinie im Osten. Das Schlimmste was mir bis jetzt eingefallen ist, ist die Mülltonne die man nach vorne schieben muss 🤨

Vielen Dank schon mal fürs Lesen, wenn es jetzt auch noch Ideen und Anregungen gibt, freue ich mich riesig 🙂

Grüße
Simon

Lageplan eines Grundstücks mit rotem Rand um Baufläche, Bäume und Gebäudestrukturen.

Anzeige
Hallo nms_hs,

schau mal hier: Einfamilienhaus, dritte Reihe, Nord-Ausrichtung -Haus, Terrasse, Garage?. Da wird jeder fündig!
terrassegrundstückauffahrtwaldabstandgarage