Einfamilienhaus bauen mit/ohne Keller bei kleinem Grundstück

4,00 Stern(e) 29 Votes
Zuletzt aktualisiert 18.11.2025
Sie befinden sich auf der Seite 8 der Diskussion zum Thema: Einfamilienhaus bauen mit/ohne Keller bei kleinem Grundstück
>> Zum 1. Beitrag <<

A

apokolok

Der Bebauungsplan ist doch ein Witz.
Wer plant denn auf 225m² ein freistehendes Einfamilienhaus?
Hätte man auf die drei Grundstücke drei Reihen- oder zumindest Kettenhäuser geplant, hätte man auch noch bisschen Garten im Westen gehabt.
So bleibt da ja quasi gar nichts wenn man noch eine Terrasse möchte.
Ganz ehrlich bei den (imho noch durchaus moderaten) Grundstückspreisen würde ich mich nach einem größeren Grundstück umschauen.

Aber zum Thema: wenn ihr das macht, dann definitiv mit Keller, da gibt es für mich bei der Grundstücksgröße und der angedachten Familienplanung gar keine Diskussion.
 
D

Davidoff86

Danke für eure Einschätzungen. Ich bestätige 15x15 ist das Grundstück groß. Und ja, wir hätten uns auch was größeres gewünscht, Mal abgesehen sind jedoch Konzept und Lage optimal. Andere bezahlbare Plätze gibt's sonst zur Zeit nicht.
 
kbt09

kbt09

UPS ...da habe ich irgendwie schräg geschaut . Von daher stimme ich Katjas Ansatz aus Beitrag 36 zu:


Denn auf dem in Frage kommenden Grundstück sieht es so aus, als wenn die Nebenfläche tatsächlich über die Baufensterlinie im Westen hinausgehen darf. Bei den anderen Grundstücken ist das nicht der Fall.

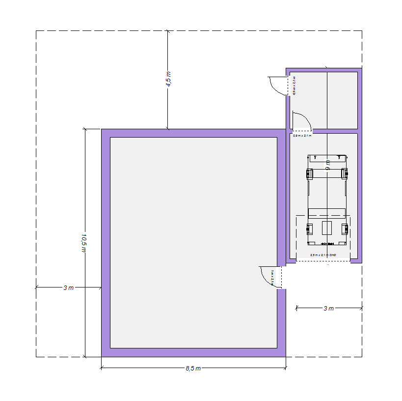
Allerdings darf das Haus wohl nur 10 m tief werden - oder?
 
M

Müllerin

225 freistehend ist echt lachhaft. Naja kein Garten - dann muss man sich eben die Terrasse und die Dachterrasse richtig in großem Stil begrünen, ich würde mir große Pflanzkästen auf der Dachterrasse gleich in die Statik mit reinrechnen lassen.
 
M

Müllerin

In #11 schrieb er 10,50m.
OT: Willst Du mich heiraten?
sorry, sollte ich mich von meinem Mann trennen, steht schon meine Tochter auf der Warteliste *lol

Zum Grundrisse warte ich mal bis was kommt - ansonsten mag ich keine Keller, weil ich persönlich schrecklich faul bin und mir das zu viele Treppen sind. Bei 3 Kindern würde ich den Platz aber vermutlich gerne mit einplanen.
 
Zuletzt aktualisiert 18.11.2025
Im Forum Keller gibt es 359 Themen mit insgesamt 3730 Beiträgen


Ähnliche Themen zu Einfamilienhaus bauen mit/ohne Keller bei kleinem Grundstück
Nr.ErgebnisBeiträge
1Baukosten 200m² + 30m² Dachterrasse + Keller (inkl. Garage) 20
2Grundrissoptimierung Einfamilienhaus mit Keller auf kleinem Grundstück - Seite 3178
3Bodenbelag für Dachterrasse festlegen Garten-Landschaftsbauer oder Dachdecker? 10
4Budget Grundstück und bauen mit Keller 21
5200m2 Einfamilienhaus für 4-5 Personen ohne Keller auf schmalem Grundstück 67
6Keller oder Grundstück begradigen? 43
7Einfamilienhaus 160m2 mit Keller, 500m2 Grundstück 108
8Einfamilienhaus 220qm mit Keller auf 700qm Grundstück 41
9Straße ca. 50cm über Grundstück - Auffüllen oder Keller 24
10Teures Grundstück + Einfamilienhaus 155 qm + Keller KFW40+, finanzierbar? - Seite 260
11Bebauung Grundstück - Keller ja oder nein? 75
12Grundriss-Entwurf: Einfamilienhaus mit Keller; 560qm Grundstück - Seite 365
13Grundriss-Entwurf: Einfamilienhaus; mit Keller; 800qm Grundstück 10
14Grundstück in Aussicht - Tipps, Tricks, Anregungen gesucht - Seite 339
15Grundstück mit Hanglage, Berg hinterm Haus und fehlende Abendsonne 26
16Einfamilienhaus auf länglichem Ost-West Grundstück 14
17Planung Grundriss Doppelhaus, kleines Grundstück, Bauhausstil 34
18Grundriss Einfamilienhaus Hanggrundstück mit Terrasse / Dachterrasse 18
19Meinungen zum Grundstück am Hang. - Seite 222
20Suche nach Ideen für Grundstück mit Hanglage 28

Oben