Eckgrundstück - Straße im Süden und Westen: Bebauungsort/Carports

4,30 Stern(e) 4 Votes
Zuletzt aktualisiert 29.11.2025
Sie befinden sich auf der Seite 3 der Diskussion zum Thema: Eckgrundstück - Straße im Süden und Westen: Bebauungsort/Carports
>> Zum 1. Beitrag <<

Tolentino

Tolentino

Ah du hast recht. Ich habe die 6,09 als Teil der 14 gesehen, weil das blau der Baufenster die Maßmarkierung verdeckt hat.
Alles klar!
 
wiltshire

wiltshire

Leider haben wir auf dem schmalen rechten Flurstück diesen "Haken" im Baufenster. Grundsätzlich war unser Wunsch den Garten maximalmöglich Richtung Süd Westen auszurichten.
Fülle diesen Wunsch mit Inhalt. Wie viel Garten willst Du wirklich in voller Sonnenlage wofür haben?
Der Wunsch nach Südlage haben fast alle (noch), denn über Generationen galt das als ideal. Wie gut das zur Zunahme der Hitzetagen passt, in denen Menschen nach Schatten und Kühlung streben würde ich einmal überdenken. Dazu: Viele Menschen leben im Simmer mit verschlossenen Türen in verschütteten oder klimatisierten modernen Häusern, da man aus diesen die Wärme nicht mehr gut herausbekommt, wenn sie einmal drin ist.
Ich selbst bin durchaus ein Freund von Südlage, kenne aber inzwischen viele, die sich diesen Traum in den vergangenen 10-20 Jahren erfüllten und es heute lieber anders machen würden.
 
11ant

11ant

Aber ja, sowohl Skizze als auch Beschreibung lassen sehr viel Interpretationsspielraum zu...
Die Aufklärung der Sachlage sollte nicht Frühsport der Mitdiskutierenden sein, sondern ist Bringschuld des Fragestellers (der bei einem zwischenzeitlichen Besuch versäumt hat, auf die bereits vorliegenden Rückfragen einzugehen). Viele Fragesteller verhalten sich so ihrer Eigenschaft als geborene oberste Interessehaber an der Beantwortung nicht angemessen. Das ist der Freude am Helfen dann sehr abträglich.
 
C

CarlosCalderon

Guten Morgen, bitte entschuldigt meine verspätete Antwort.
Also das Grundstück hat ca. 630qm. Es ist aus zwei Teilen zusammengesetzt, so wie motorradsilke es eingezeichnet hat.

Das Grundstück ist von zwei Seiten erschließbar - aus Westen, der Pfeil zeigt auf den "Privatweg" oder aus Süden. Carport und Abstellräume müssen innerhalb des Baufenstern stehen - gestrichelt in blau.
 
C

CarlosCalderon

In der Planung ist das Haus in etwa quadratisch 11x10m geplant. Als Satteldach (max 35 Grad) - Firstausrichtung per Bauplan in Ost WestRichtung. Es sollen zwei Vollgeschosse und das Dach als Wohnraum für Arbeitszimmer und ggfs. Kinderzimmer genutzt werden.

Wobei im EG die Wohnräume im Süden sein sollen (Wohnzimmer, Essen, Küche). Ursprüngliche Planung war, dass Carport und Abstellraum in die "Ecke" mit dem Haken kommen, und das Haus quasi dann in diese Richtung geschoben werden. Somit würde Garten im SüdWesten entstehen.

Da dieser Plan nicht funktioniert, ist das der Grundaufhänger hier der Fragestellung... also wo soll Carport, Absteller hin, damit daraus sich der Hauseingang ergibt und die folgenden Räume ergeben.

Ich hoffe, ich habe alle Fragen erwischt. Ich werde den Thread besser im Auge behalten. Danke für Eure Ideen.
 
C

CarlosCalderon

Leider kann man die Beiträge nicht mehr bearbeiten, deswegen einmal Bilder aus dem Entwurf, damit man es besser nachvollziehen kann.

Die Variante mit dem Carport vor dem Haus mit dem Durchgang zwischen den Autos war ein Schnellschuss nach der Erkenntnis, dass das Carport wie ursprünglich geplant nicht stehen kann. Halte ich im Zusammenspiel mit Kindern für nicht praktikabel.

Ich hoffe, mit den Plänen kann man meine Beschreibung verstehen :-D
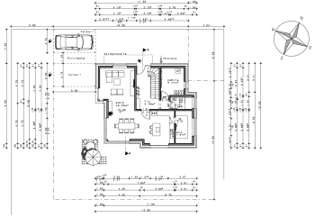
Grundriss eines Einfamilienhauses mit Carport, Wohnzimmer, Küche, Flur, Vorratsraum.

Grundriss eines Hauses mit Schlafzimmer, Kinderzimmer, Ankleide, Bad und Flur; Kompassrose.

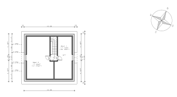
Grundriss eines quadratischen Gebäudeteils mit zentraler Treppe und zwei Räume; Kompassrose.
 
Zuletzt aktualisiert 29.11.2025
Im Forum Bauplanung gibt es 5072 Themen mit insgesamt 100818 Beiträgen


Ähnliche Themen zu Eckgrundstück - Straße im Süden und Westen: Bebauungsort/Carports
Nr.ErgebnisBeiträge
1Hang-Grundstück, Carport abfangen 22
2Haus, Garage / Carport auf dem Grundstück platzieren - Seite 493
3Wie das Haus auf das Grundstück stellen - Tipps erbeten :-) - Seite 213
4Einfamilienhaus (10x8,8qm²) auf 437qm² Grundstück in München - Seite 648
5Trapezförmiges Grundstück: Erste Ideen / Verbesserungsvorschläge 13
6Garage, Carport oder beides? 12
7Teures Grundstück + Einfamilienhaus 155 qm + Keller KFW40+, finanzierbar? 60
8Wie das Haus auf dem Grundstück platzieren? 51
9Bebauung / Grundriss hinterliegendes Grundstück - Seite 753
10Brauchts für Carport und Gerätehäuschen auch Baugenehmigung? 13
11Kosteneinschätzung: Fertighaus, Keller, Carport, Einzelgarage 10
12Kosten/Planung Grundstück, Baunebenkosten Schlüsselfertig usw. - Seite 227
13Carport bauen. Statt Holzpfosten, Flacheisen möglich? 12
14Grundriss mit Garage auf Grundstück realisierbar? 29
15Grundstück Kosten - Haus Bauen und Finanzieren 29
16Hausplatzierung auf kleinem 448m² Grundstück - Seite 356
17Baunebenkosten für Haus auf Grundstück 120k Euro 28
18Carport mit Terrassendach gleich kombinieren - Rechtlich 13
19Kleines Grundstück und Winkelbungalow 26
20Carport aus dem Baumarkt? - Seite 636

Oben