S
SliPkNoT184808.08.24 17:43Bei der Variante mit 3m Abstand würden wir gerne einen Zugang vom OG Haus in die Garage haben, ist das in Anbetracht Wandhöhe Haus 6m möglich? Nutzung als Wohnraum wird vermutlich schwierig.
SliPkNoT1848 schrieb:
Bei der Variante mit 3m Abstand würden wir gerne einen Zugang vom OG Haus in die Garage haben, ist das in Anbetracht Wandhöhe Haus 6m möglich? Nutzung als Wohnraum wird vermutlich schwierig.Um das zu beantworten, gehören mehr Infos als ein nüchterner 2D-Plan.Wir wissen quasi nichts vom Haus - nur die Form und dass planlinks eine Doppelgarage ist.
Ein- oder Zweigeschosser, Dachneigung, Grundriss…
Wohnraum schließt Grenzbebauung aus.
Und ob das sinnvoll ist, die Garage mit in die Thermik zu nehmen und/oder auszuschließen, kann man hier ohne alles wirklich nicht sagen.
Diese Salamitaktik macht aber auch sehr müde.
S
SliPkNoT184808.08.24 19:29ypg schrieb:
Um das zu beantworten, gehören mehr Infos als ein nüchterner 2D-Plan.
Wir wissen quasi nichts vom Haus - nur die Form und dass planlinks eine Doppelgarage ist.
Ein- oder Zweigeschosser, Dachneigung, Grundriss…
Wohnraum schließt Grenzbebauung aus.
Und ob das sinnvoll ist, die Garage mit in die Thermik zu nehmen und/oder auszuschließen, kann man hier ohne alles wirklich nicht sagen.
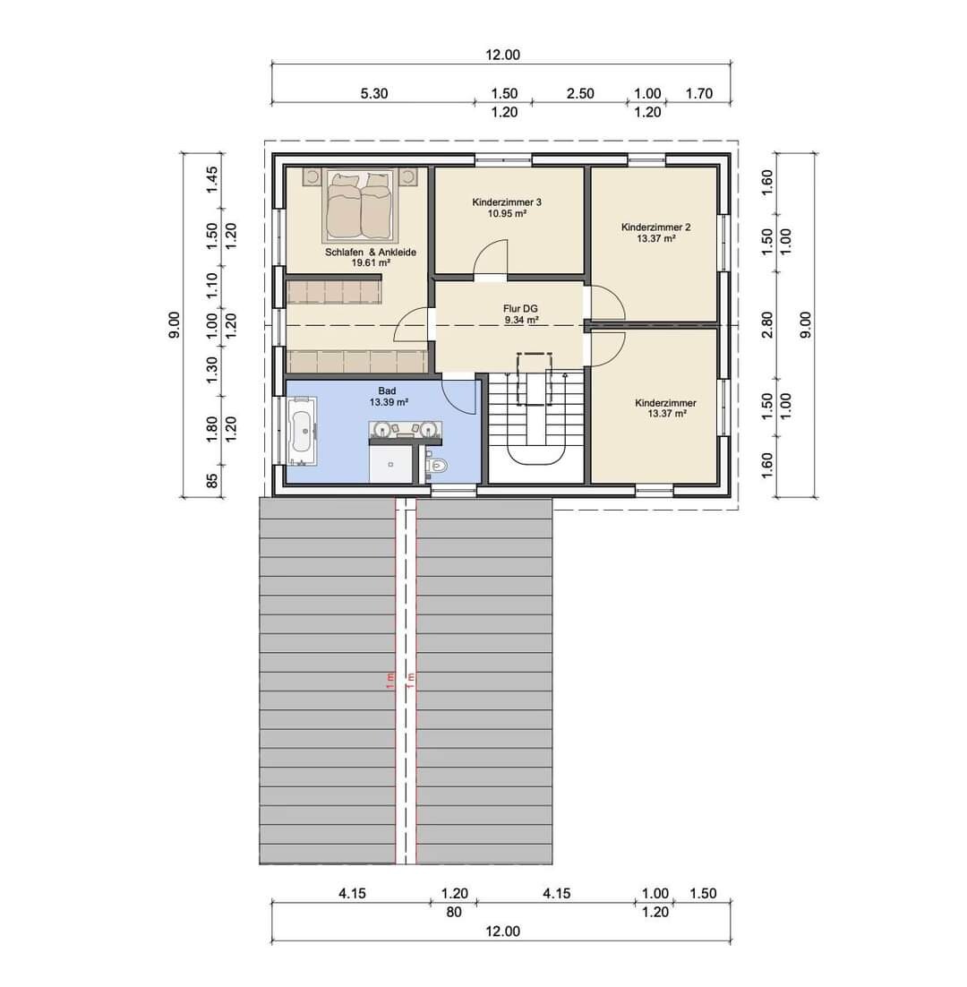
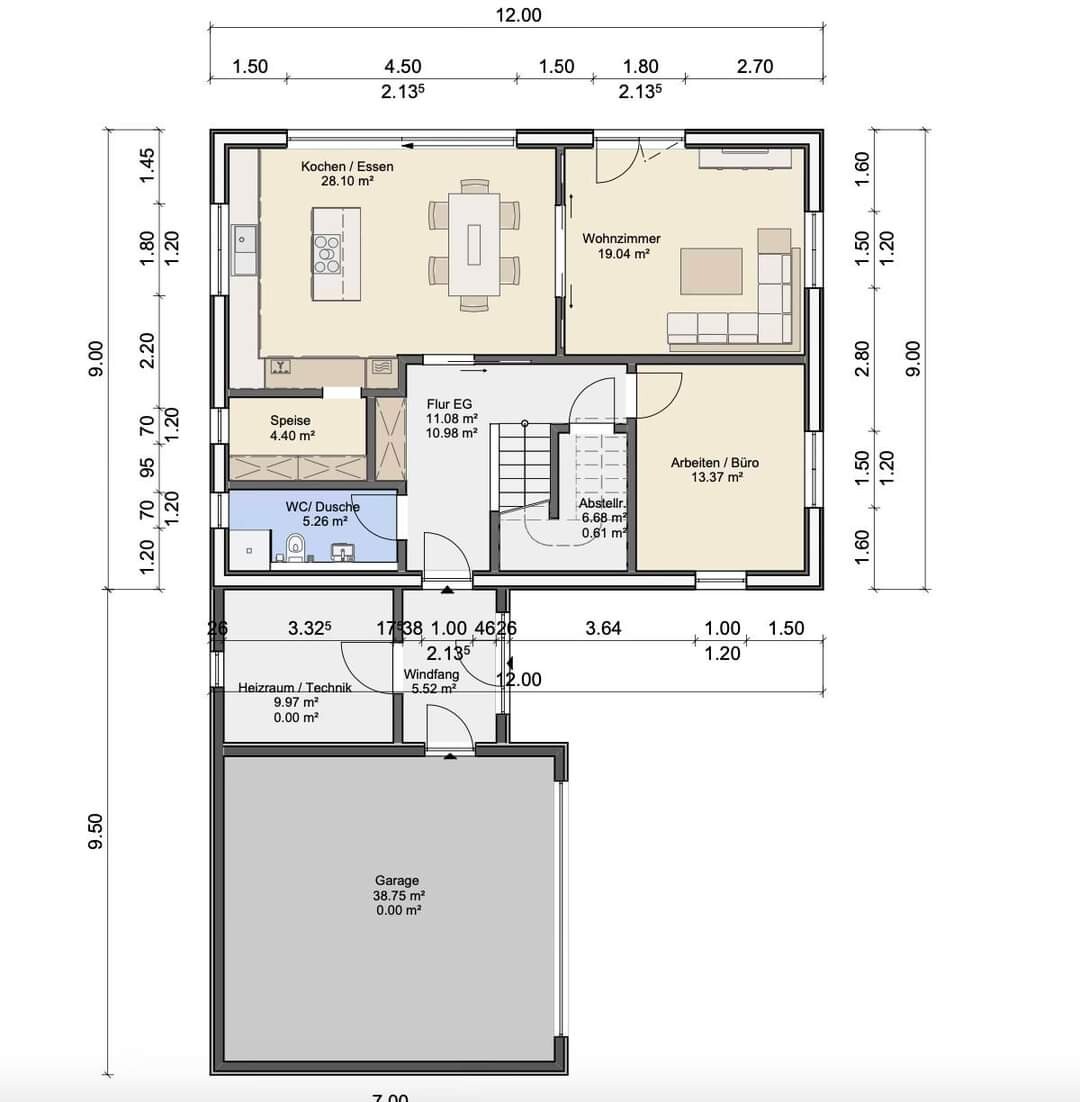
Diese Salamitaktik macht aber auch sehr müde.Sry, du hast natürlich Recht, wir haben noch keinen Grundriss. Nur eine Vorlage aus dem Internet die unseren Vorstellungen entspricht. Dachneigung 28°, 2 Vollgeschosse geplant in Holzständerbauweise, kein Keller, Technikraum zwischen Garage und Haus.H
hanghaus202308.08.24 21:39Wie soll denn die EInfahrt in die Garage funktionieren, wenn die nicht an der Grenze steht?
SliPkNoT1848 schrieb:
wir haben noch keinen Grundriss. Nur eine Vorlage aus dem Internet die unseren Vorstellungen entspricht.Hoppla!Die Kehre wird auch von Euch befahren? Warum bin ich in der Annahme gewesen, dass die Zufahrt von planoben erfolgt?
und was bedeutet das, dass der Architekt jetzt einen Entwurf aus dem Internet nutzt? Räusper, wieviel verdient er denn daran, das Haus drei Meter hin oder herzuschieben?
SliPkNoT1848 schrieb:
Die Terrasse wird vermutlich ums Eck Richtung Südwest geplantWo ist denn bei Dir Südwest? Da, wo bei anderen Nord-Ost ist?Edit: der Hauseentwurf ist dennoch stimmig.
Ähnliche Themen