Also ich finds gut. Was mir noch nicht ganz klar ist, ist die Treppensituation. Wo ist der Aufgang? Vorn? Aber oben dann um die Kurve?
Die 45° Wände oben sind nicht ganz mein Fall, aber für eine optimale Ausnutzung bei 4 Kindern fällt mir auf Anhieb auch nichts besseres ein. Das Schlafzimmer sieht recht klein aus. Ich kann leider die m² nicht lesen.
Der Wäscheschacht geht im Schlafzimmer bis an die Decke und dann lehnt die Zarge der Tür direkt dran, ja? Das stell ich mir knifflig vor, aber geht bestimmt.
Problematisch ist die Stelle, wo der Wäschehaufen ankommt. Bei 6 Bewohnern kommt da sicher was zusammen. Dieser Haufen liegt dann quasi direkt vor der Hauswirtschaftsraum-Tür. Da kannst die Tür auch gleich weglassen. Schade find ich auch, dass der Hauswirtschaftsraum, wo man ja häufig rein muss, kein natürliches Licht hat, der Technikraum, wo man nur ab und zu rein rennt aber schon. Wenn sich die 2 Räume nicht tauschen lassen, würde ich in die Wand zwischen Hauswirtschaftsraum und Technikraum ein breites oberes Lichtband/Fenster setzen, damit man das Licht über den Technikraum reinholt. Dort sollte das Fenster dann nicht zu klein sein.
Ohne Nord/Süd Ausrichtung und Außenansicht, fällt mir erst mal nichts weiter ein. Insgesamt siehts gemütlich aus.
Die 45° Wände oben sind nicht ganz mein Fall, aber für eine optimale Ausnutzung bei 4 Kindern fällt mir auf Anhieb auch nichts besseres ein. Das Schlafzimmer sieht recht klein aus. Ich kann leider die m² nicht lesen.
Der Wäscheschacht geht im Schlafzimmer bis an die Decke und dann lehnt die Zarge der Tür direkt dran, ja? Das stell ich mir knifflig vor, aber geht bestimmt.
Problematisch ist die Stelle, wo der Wäschehaufen ankommt. Bei 6 Bewohnern kommt da sicher was zusammen. Dieser Haufen liegt dann quasi direkt vor der Hauswirtschaftsraum-Tür. Da kannst die Tür auch gleich weglassen. Schade find ich auch, dass der Hauswirtschaftsraum, wo man ja häufig rein muss, kein natürliches Licht hat, der Technikraum, wo man nur ab und zu rein rennt aber schon. Wenn sich die 2 Räume nicht tauschen lassen, würde ich in die Wand zwischen Hauswirtschaftsraum und Technikraum ein breites oberes Lichtband/Fenster setzen, damit man das Licht über den Technikraum reinholt. Dort sollte das Fenster dann nicht zu klein sein.
Ohne Nord/Süd Ausrichtung und Außenansicht, fällt mir erst mal nichts weiter ein. Insgesamt siehts gemütlich aus.
Der Wäscheschacht landet im Hauswirtschaftsraum und wird vom Elternschlafzimmer gefüttert. Das ist z. B. etwas, was ich noch ungünstig finde. Ideal wäre es, der Wäscheschacht könnte im OG vom Flur aus gefüttert werden.
Elternschlafzimmer erscheint mir auch ein bisschen schmal. Ein Bett mit einer 2x2 m Matratze hat ja Außenmaße von mind. 2,1x2,1 m. Tür zur Ankleide sollte andersherum aufschlagen.
Bei den Ecken im Flur zu den Kinderzimmern geht es mir wie kaho, habe aber auf Anhieb auch keine andere Idee.
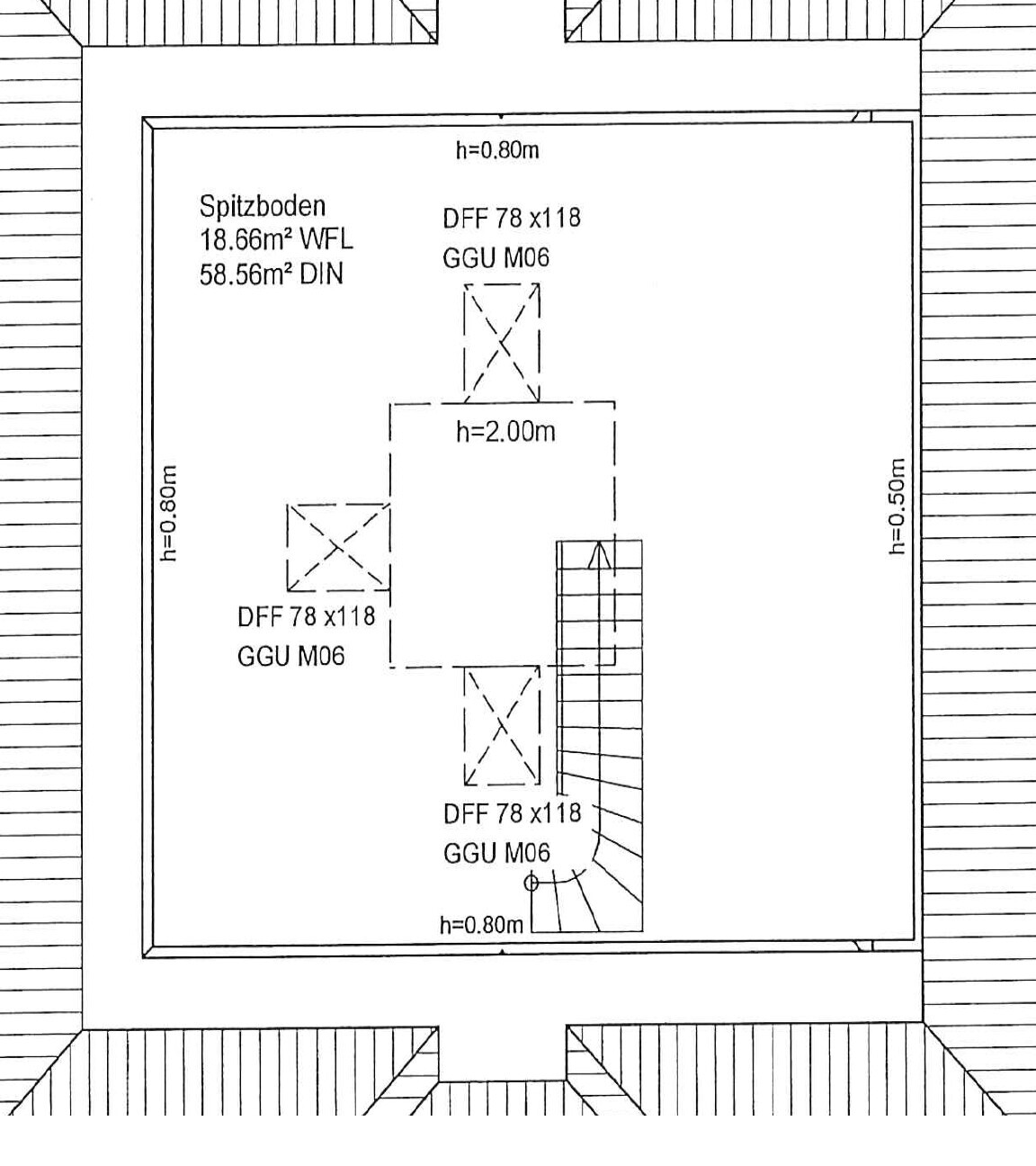
Treppenlauf im OG .. soll die dort abgewinkelte Treppen dann noch weiter in den Dachboden gehen?
Nochmal überdenken würde ich die Aufteilung der Badezimmer .. 4 Leute haben das kleine Bad mit der kleinen Dusche ohne Badewanne und 2 Leute das große Bad mit großer Dusche und Wanne.
Flurbeleuchtung im OG?
Und Nord/Süd-Ausrichtung?
Kamin im EG könnte so in Tischnähe etwas ungemütlich warm werden.
Elternschlafzimmer erscheint mir auch ein bisschen schmal. Ein Bett mit einer 2x2 m Matratze hat ja Außenmaße von mind. 2,1x2,1 m. Tür zur Ankleide sollte andersherum aufschlagen.
Bei den Ecken im Flur zu den Kinderzimmern geht es mir wie kaho, habe aber auf Anhieb auch keine andere Idee.
Treppenlauf im OG .. soll die dort abgewinkelte Treppen dann noch weiter in den Dachboden gehen?
Nochmal überdenken würde ich die Aufteilung der Badezimmer .. 4 Leute haben das kleine Bad mit der kleinen Dusche ohne Badewanne und 2 Leute das große Bad mit großer Dusche und Wanne.
Flurbeleuchtung im OG?
Und Nord/Süd-Ausrichtung?
Kamin im EG könnte so in Tischnähe etwas ungemütlich warm werden.
Vielen Dank für die Anregungen und Überlegungen.
Ich habe mal eine Lageskizze angefügt. Die Südausrichtung des Hauses ist nicht optimal, das wissen wir lässt sich anders aber nicht wirklich machen und wir müssen auch nicht unbedingt auf der Terrasse Sonne haben den ganzen Tag mögen eher den gemütlichen Schatten (die andere Variante haben wir im momentanen Haus). Wichtig ist uns das die Kinder nicht so kleine Zimmer haben. Natürlich geht es immer größer aber 250 sind genug, momentan wohnen wir auf 180.
Die Planung des Hauswirtschaftsraum ist nicht so optimal das wissen wir, aber haben aufgrund der Anregungen jetzt eine Idee und werden das mal noch umsetzen. Man könnte die Garage natürlich einfach nach hinten verschieben jedoch wären dann wieder bauseits mehr Winkel notwendig, die gerade Variante ist einfacher. Natürlich geht das dann hier sofort online.
Die Treppe im OG für auf den Dachboden (siehe Bild 2) dieser soll auch ausgebaut werden und als Abstellfläche oder Spielzimmer oder 2 AZ genutzt werden jedenfalls wollen wir da eine richtige Treppe.
Mit den Kinderzimmern ist leider nur diese Variante für die Türen möglich.
Unser Bett ist 2x2m momentan auch das Schlafzimmer , ca 12qm, entspricht dem jetzigen daher wird das passen, die Tür ändern wir in eine Schiebetür.
Beleuchtung im Flur kommt von oben sowie unten da die Treppe offen ist sowie werden nie alle Türen zu sein. Um ein richtiges Fenster zu setzten fehlt einfach der Platz.
Den Wäscheschacht finden wir auch nicht optimal im Es aber wissen noch nicht so recht wo den sonst anordnen sollen. Über die genaue Lage auch vom Schornstein muss dann der Architekt der Baufirma vielleicht noch mal mitreden.
Den Kamin haben wir momentan auch so im Haus verbaut, es soll wieder ein wasserführender sein so das er nicht so Hitze abstrahlt wie ein "normaler" Kamin. Wir hätten Ihn auch gern wo anders nur da ist nicht wirklich noch Platz irgendwo. Er so auch etwas unter die Treppe eingerückt werden, die lichte Höhe des EG soll 165-170 betragen.
Mit den Bädern ist so richtig. Jedoch denken wir einmal ganz egoistisch - etwas müssen sich die zahlenden Eltern auch gönnen- und lieber so als wenn die 4 Mädels (1, 3, 9, 11) sich ein Bad mit Mama und Papa teilen müssen


Ich habe mal eine Lageskizze angefügt. Die Südausrichtung des Hauses ist nicht optimal, das wissen wir lässt sich anders aber nicht wirklich machen und wir müssen auch nicht unbedingt auf der Terrasse Sonne haben den ganzen Tag mögen eher den gemütlichen Schatten (die andere Variante haben wir im momentanen Haus). Wichtig ist uns das die Kinder nicht so kleine Zimmer haben. Natürlich geht es immer größer aber 250 sind genug, momentan wohnen wir auf 180.
Die Planung des Hauswirtschaftsraum ist nicht so optimal das wissen wir, aber haben aufgrund der Anregungen jetzt eine Idee und werden das mal noch umsetzen. Man könnte die Garage natürlich einfach nach hinten verschieben jedoch wären dann wieder bauseits mehr Winkel notwendig, die gerade Variante ist einfacher. Natürlich geht das dann hier sofort online.
Die Treppe im OG für auf den Dachboden (siehe Bild 2) dieser soll auch ausgebaut werden und als Abstellfläche oder Spielzimmer oder 2 AZ genutzt werden jedenfalls wollen wir da eine richtige Treppe.
Mit den Kinderzimmern ist leider nur diese Variante für die Türen möglich.
Unser Bett ist 2x2m momentan auch das Schlafzimmer , ca 12qm, entspricht dem jetzigen daher wird das passen, die Tür ändern wir in eine Schiebetür.
Beleuchtung im Flur kommt von oben sowie unten da die Treppe offen ist sowie werden nie alle Türen zu sein. Um ein richtiges Fenster zu setzten fehlt einfach der Platz.
Den Wäscheschacht finden wir auch nicht optimal im Es aber wissen noch nicht so recht wo den sonst anordnen sollen. Über die genaue Lage auch vom Schornstein muss dann der Architekt der Baufirma vielleicht noch mal mitreden.
Den Kamin haben wir momentan auch so im Haus verbaut, es soll wieder ein wasserführender sein so das er nicht so Hitze abstrahlt wie ein "normaler" Kamin. Wir hätten Ihn auch gern wo anders nur da ist nicht wirklich noch Platz irgendwo. Er so auch etwas unter die Treppe eingerückt werden, die lichte Höhe des EG soll 165-170 betragen.
Mit den Bädern ist so richtig. Jedoch denken wir einmal ganz egoistisch - etwas müssen sich die zahlenden Eltern auch gönnen- und lieber so als wenn die 4 Mädels (1, 3, 9, 11) sich ein Bad mit Mama und Papa teilen müssen
Ähnliche Themen