Hausbau - Ratgeber
Bauherrenhilfe
- Bauherrenhilfe vor Vertragsabschluss
-- Warum einen unabhängigen Baubetreuer?
-- Vertragsgrundlagen
-- Bausumme
-- Zahlungsplan zur Kostenkontrolle
-- Pflichten des Bauherren vor Vertragsabschluss
-- Unterlagen beim Hausbau vor Vertragsabschluss
- Bauherrenhilfe nach Vertragsabschluss
-- Bauantrag bei Behörden
-- Bau-Genehmigungsverfahren bei Baubehörden
-- Bauspezifische Versicherungen
-- Bauzeitenplan
-- Baubeginn - die Letzten Pflichten der Bauherrschaft
- Bauherrenhilfe während der Bauzeit
- Gewährleistungsansprüche
- Bauabnahme
Baufinanzierung
- Baufinanzierung - Allgemeine Fragen
- Kreditarten
- Kredit-Konditionen
- Bausparen
- Staatliche Förderungen
- Verkehrswert
- Haushaltsrechnung und Bonität
Hausbau Planung
- Haustypen
- Hausbau Vorbereitungsarbeiten
- Das Baugrundstück
- Baugrund beim Hausbau
- Baurecht
- Gebäudeschutz
- Erdarbeiten und Wasserhaltung
- Stützmauern
- Einfriedung
- Untergeschoss
- Kanalisation
- Tragende Elemente
- Nichttragende Innenwände
- Fundation / Fundament
- Deckenkonstruktionen
- Dächer
- Kaminanlagen
- Treppen Rampen Leitern
- Dachbeläge und Spengler
- Fenster
- Sonnen und Wetterschutz
- Aussenputze
- Einbauten, Küchen, Türen
- Bodenbeläge und Unterlagsböden
- Parkett
- Gips, Wand, Decke
Haustechnik und Energie
- Heiztechnik
- Lüftung und Klimatechnik
- Sanitärtechnik
- Elektrotechnik
- Erneuerbare Energie
Whirlpools / Jacuzzi
Hausbau Magazin
- Baufinanzierung trotz Krise?
- Das Blockhaus
- Moderne Dämmstoffe im Vergleich
- Erker Vor- und Nachteile
- Glasflächen beim Hausbau
- Günstig ein Haus Bauen
- Mediterraner Hausbaustil
- Mehrgenerationenhaus
- Moderne Architektur
- Gartengestaltung leicht gemacht
- Traditioneller Ziegelbau
- Villa als höchster Traum
- Im Eigenheim Ruhestand geniessen
- Altbau sanieren
- Kauf einer Holzgarage
- Immobilienmakler
- Arbeitshandschuhe für den Winter
- Zuhause verschönern
- Outdoor-Plissees
- Schlafzimmer planen
- Terrassenüberdachung
- Wohngebäudeversicherung
- Zaunarten und Eigenschaften
- Hauseingang gestalten
- Der perfekte Grundriss
- Sparsamer heizen im Altbau
- Einfamilienhaus smart finanzieren
- Planung einer PV-Anlage
- Neues Haus
- Immobilienfinanzierung
- Installation einer Photovoltaikanlage
- Asbest erkennen und entfernen
- Gartenpflege im Frühling – worauf achten
- Sauna im Fokus - Wellness zuhause
- Erfolgreich vermieten
- Die perfekte Winterbekleidung
- Das Niedrigenergiehaus
- Der April und seine Stürme
- Architektonische Vielfalt
- Ökologisch und nachhaltig bauen
- Das perfekte Schlafzimmer
- Nachhaltige Energieversorgung
- Zukunftsorientiert bauen
- Nachhaltigkeit beim Hausbau
- Tiny Houses
- Wärmepumpen als nachhaltige Heizvariante
- Maßgeschneiderten Kleiderschrank
- Der richtige Baukredit
- Ratgeber für erfolgreichen Hausbau
- Haus als Altersvorsorge
Do-it-yourself Anleitungen
- Verlegeanleitung für Bodenbeläge und Parkett
- Bodenbeläge und Parkett reinigen und pflegen
- Malerarbeiten am Haus
- Garten Tipps
- Umzug und Reinigung

ᐅ Dachgeschoss Raumaufteilung - Uns gehen die Ideen aus...

Erstellt am: 24.03.19 18:15
L
LMN2018
L
LMN2018
24.03.19 18:15

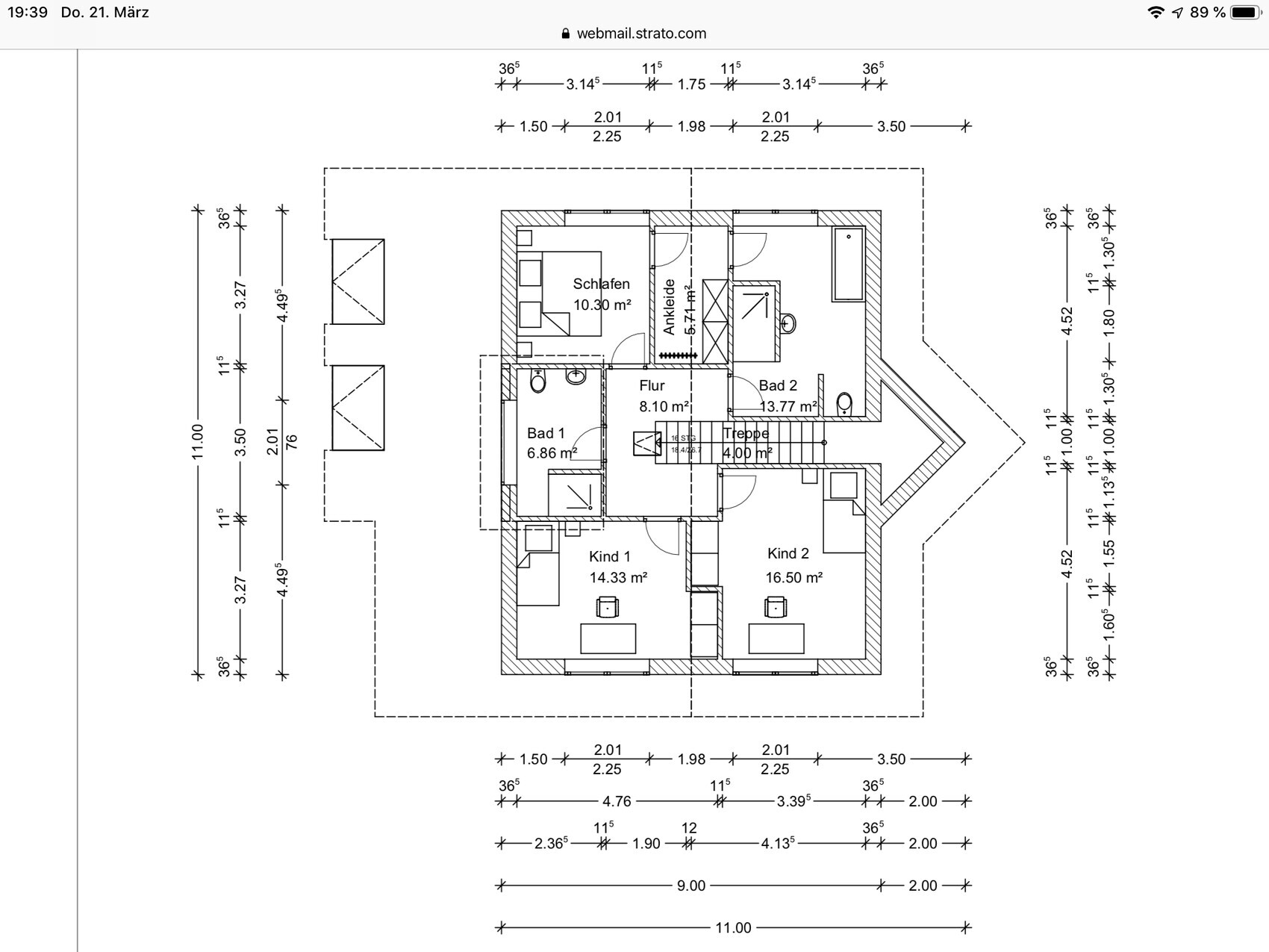
Grundriss eines Hauses: Schlafzimmer, Ankleide, Bad, zwei Kinderzimmer, Flur und Treppe.

Grundriss eines Hauses: Schlafen, Bad 1, Bad 2, Ankleide, Flur, Treppe, Kind 1, Kind 2.
Hallo Zusammen,

leider kommen wir in unsrer Planung eines Einfamilienhaus nicht mehr mit dem DG weiter. Ich habe bewusst nur das DG hochgeladen und nicht die ganze bevorzugte ForumListe eingefügt, da wir nur Hilfe für diese Aufteilung benötigen. Was ich an Fakten nennen kann, sind:

•Satteldach mit Kniestock von 1,60 m
•Die gerade Treppe ist von uns bevorzugt,da es mit Möbeln tragen einfacher ist ( in unserem jetzigen Haus haben wir eine halbgewendelte U Treppe, das möchten wir nicht mehr) Sie nimmt natürlich auch viel Platz weg
•Elternbad und Kinderbad sind, für uns, ein Muss ( beide mit gefliester Walk in Dusche, kein Glas mehr!)
• Schlafen, Ankleide und Elternbad sollten in der Reihenfolge planbar sein ( Schichtdienst, unterschiedliche Weckzeiten, die Ankleide quasi als Geräuschepuffer für das Bad) Am besten wäre noch der Zugang vom Flur durch die Ankleide zum Schlafen und Bad
• In der Ankleide soll optimalerweise ein 4m Kleiderschrank Platz finden ( Dachschräge evtl. abgezogen)

Die 2 Pläne zeigen Varianten unseres Architekten, die noch nicht ganz optimal sind. Es ist uns bewusst, dass es sehr viele Anforderungen sind. Wir haben schon alles versucht aufzuzeichnen, aber wir kommen nicht zu einer guten Lösung.

•Soll man die schöne Gaube als Ankleide nutzen?
•Ist die gerade Treppe der Raumkiller dort im DG, wäre dann die Planung einfacher?

Ist das nun alles möglich oder denken wir zu utopisch? Vielleicht hat der ein oder andere eine ähnliche Aufteilung oder die rettende Idee!?

Vielen Dank vorerst!
K
kaho674
24.03.19 19:00
Ohne EG weiß keiner, wo die Entwässerung sinnvoll möglich wäre. Zudem sieht man nicht, was bei der Treppe noch drin ist und seien es nur cm. Himmelsrichtungen sind auch nicht zu sehen.
K
kbt09
24.03.19 19:22
Und, ich stelle mich wohl gerade zu dusselig an, aber ich kapiere die Ecke rechts nicht und die gestrichelte Linie rundum auch nicht. Eine 2-M-Linie ist auch nicht erkennbar.

Und, Ankleide nur durchs Bad sollte wohl gar keine Lösung sein.

EDIT:
Und die Checkliste hat ihren Sinn ... wie alt sind die Kinder? Warum Badewanne bei den Eltern und nicht beim Kinderbad usw.
Y
ypg
24.03.19 19:43
kaho674 schrieb:
Ohne EG weiß keiner, wo die Entwässerung

So ist es: keine Arme keine Kekse.
Warum auch immer vorne links und hinten rechts, möglichst weit auseinander, Bäder sein sollen?!
kbt09 schrieb:
aber ich kapiere die Ecke rechts nicht

Das wird der Eingang sein.
L
LMN2018
24.03.19 19:47

Grundriss eines Hauses: Wohnen, Kochen/Essen, Arbeiten, Flur, WC, Treppe; Carport.

Grundrissplan: Garage 51.93 m², Flur 11 m², HAR 9.11 m².
K
kbt09
24.03.19 19:48
LMN2018 schrieb:
•Soll man die schöne Gaube als Ankleide nutzen?
Und, wenn Ecke rechts Eingang ist und bis ins OG hochgezogen wird ... dann ist das doch ein Loch.
ankleidetreppeelternbadkinderbadeingang