B
Babenhausen28.02.20 08:08Hallo,
meine Schwiegereltern und meine Frau und ich haben als großes Projekt die Teilung eines Reihenhauses in eine Einheit für die Senioren im Souterrain und eine Einheit für die Junioren mit erwartetem Nachwuchs im Hochparterre und Dachgeschoss. Wintergarten, Gäste-WC, Waschküche, Werkstatt, Heizung (im Keller rechts oben) und Sauna werden gemeinschaftlich genutzt.
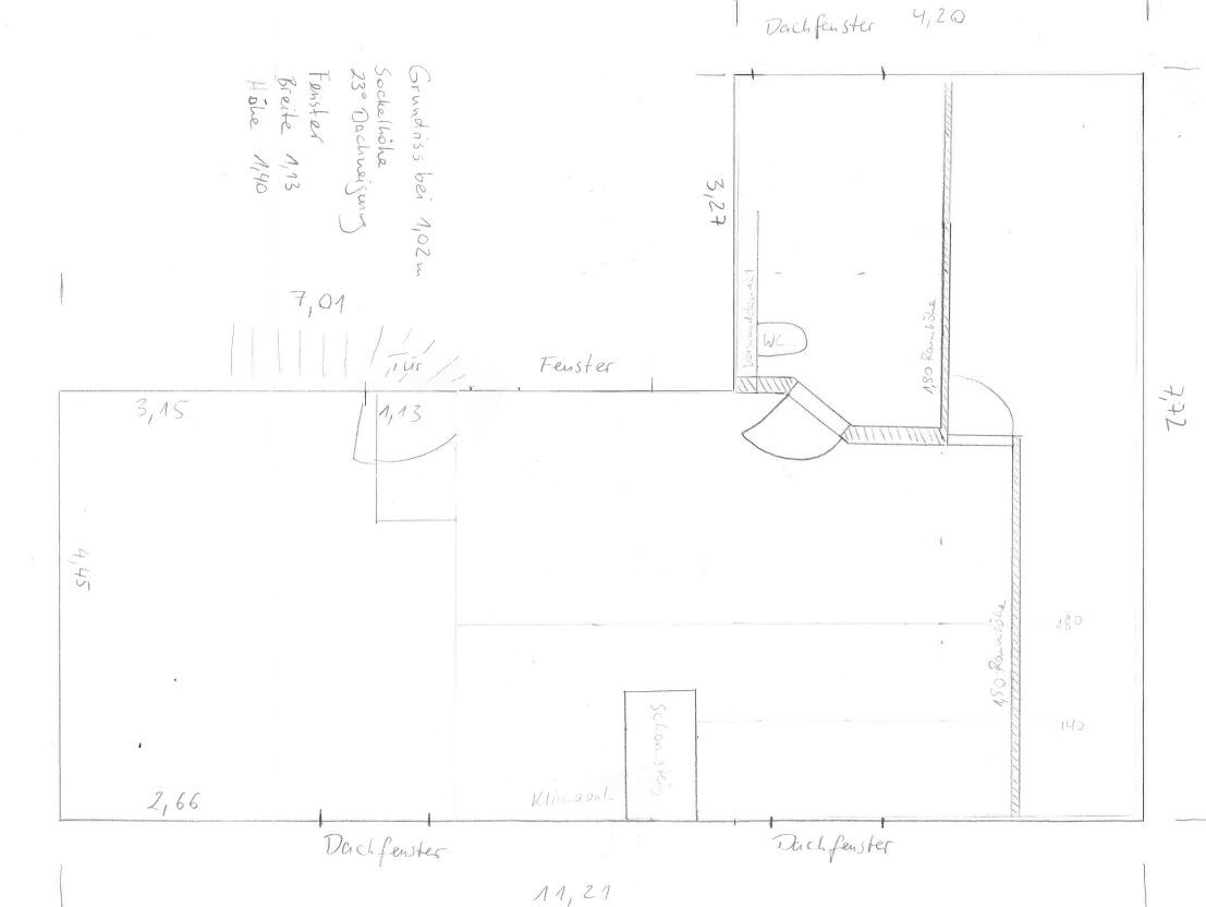
Das Dachgeschoss hat eine Grundfläche von 74qm bei einer Sockelhöhe von 1,02m und eine Dachneigung von 23°, sodass nicht wirklich viel Fläche mit einer Höhe von über 1,8m herausspringt. Zutritt ist vom Wintergarten aus über eine offene Treppe.
Bisher liegt nur die Zu- und Abwasserleitung sowie die Heizungsleitungen im Bereich wo ich das WC eingezeichnet habe. Bis auf den Schornstein ist der Raum komplett offen.
Dort wo die Leitungen aus dem Keller kommen planen wir unser Bad (rechts unten soll unser Bett stehen und links ein Arbeitsbereich entstehen). Unter dem Dachfenster soll eine Badewanne (meine Frau badet jeden zweiten Tag) installiert und rechts an der eingezogenen Wand ein Doppelwaschbecken installiert werden.
Hier soll es nun im speziellen um die Warmwasserversorgung gehen.
Das einfachste wäre es, das Warmwasser aus dem Keller an Badewanne und waschbecken anzuschließen. Da aber keine Zirkulationsleitung installiert ist, dauert es vermutlich ewig, bis beim Waschbecken warmes Wasser (die Leitung wäre rund 20m lang) ist.
Daher wäre unsere Überlegung direkt auf der Rückseite der Waschbecken einen elektrischen Durchlauferhitzer (theoretisch reicht ja ein Klein-Durchlauferhitzer) zu installieren, aber für die Badewanne weiterhin das warme Wasser aus dem Keller zu nehmen.
Was denkt ihr, welche Art der Warmwasserversorgung ist für unseren Zweck am sinnvollsten?
Viele Grüße aus
Babenhausen

meine Schwiegereltern und meine Frau und ich haben als großes Projekt die Teilung eines Reihenhauses in eine Einheit für die Senioren im Souterrain und eine Einheit für die Junioren mit erwartetem Nachwuchs im Hochparterre und Dachgeschoss. Wintergarten, Gäste-WC, Waschküche, Werkstatt, Heizung (im Keller rechts oben) und Sauna werden gemeinschaftlich genutzt.
Das Dachgeschoss hat eine Grundfläche von 74qm bei einer Sockelhöhe von 1,02m und eine Dachneigung von 23°, sodass nicht wirklich viel Fläche mit einer Höhe von über 1,8m herausspringt. Zutritt ist vom Wintergarten aus über eine offene Treppe.
Bisher liegt nur die Zu- und Abwasserleitung sowie die Heizungsleitungen im Bereich wo ich das WC eingezeichnet habe. Bis auf den Schornstein ist der Raum komplett offen.
Dort wo die Leitungen aus dem Keller kommen planen wir unser Bad (rechts unten soll unser Bett stehen und links ein Arbeitsbereich entstehen). Unter dem Dachfenster soll eine Badewanne (meine Frau badet jeden zweiten Tag) installiert und rechts an der eingezogenen Wand ein Doppelwaschbecken installiert werden.
Hier soll es nun im speziellen um die Warmwasserversorgung gehen.
Das einfachste wäre es, das Warmwasser aus dem Keller an Badewanne und waschbecken anzuschließen. Da aber keine Zirkulationsleitung installiert ist, dauert es vermutlich ewig, bis beim Waschbecken warmes Wasser (die Leitung wäre rund 20m lang) ist.
Daher wäre unsere Überlegung direkt auf der Rückseite der Waschbecken einen elektrischen Durchlauferhitzer (theoretisch reicht ja ein Klein-Durchlauferhitzer) zu installieren, aber für die Badewanne weiterhin das warme Wasser aus dem Keller zu nehmen.
Was denkt ihr, welche Art der Warmwasserversorgung ist für unseren Zweck am sinnvollsten?
Viele Grüße aus
Babenhausen
Ist denn eine Zirkulationsleitung aus dem Keller so aufwendig? Das würde ich präferieren. Für einen Durchlauferhitzer brauchst Du eine separate Zuleitung. Das macht es auch nicht besser. Alternativ höchstens ein Boiler (Heißwasserspeicher).
B
Babenhausen29.02.20 08:16Hallo,
danke für deine Antwort.
Ist halt die Frage, was mehr Sinn macht.
Habe mal einen Sanitärmann angefragt. Die Zirkulationsleitung mit Pumpe würde rund 600 € kosten.
Wir brauchen das Bad aber vermutlich nur morgens um uns frisch und abends um uns bettfertig zu machen und den ganzen Tag lang würde dann die Pumpe laufen, bzw. das Wasser auf Temperatur gehalten (Heißwasserspeicher).
Was meinst du mit separater Zuleitung zum Durchlauferhitzer?
danke für deine Antwort.
Ist halt die Frage, was mehr Sinn macht.
Habe mal einen Sanitärmann angefragt. Die Zirkulationsleitung mit Pumpe würde rund 600 € kosten.
Wir brauchen das Bad aber vermutlich nur morgens um uns frisch und abends um uns bettfertig zu machen und den ganzen Tag lang würde dann die Pumpe laufen, bzw. das Wasser auf Temperatur gehalten (Heißwasserspeicher).
Was meinst du mit separater Zuleitung zum Durchlauferhitzer?
Ein E— Durchlauferhitzer braucht auch eine eigene Zuleitung und muß beim Versorger gemeldet werden, je nach Leistung.
Dann kannst auch gleich die kompl. Wasserversorgung oben damit erledigen.
Eine Zirkulationspumpe läßt sich auch über eine Uhr zeitlich steuern.
Beides würde ich nicht Inst.Entweder —Oder.
Dann kannst auch gleich die kompl. Wasserversorgung oben damit erledigen.
Eine Zirkulationspumpe läßt sich auch über eine Uhr zeitlich steuern.
Beides würde ich nicht Inst.Entweder —Oder.
Der Durchlauferhitzer wird auch nicht billiger. Somit ist die Zrkulationsvariante ja mal gar nicht so schlecht
Ähnliche Themen