Hallo,
heute nun hier der erste Eintrag von uns. Wir haben uns nun entschieden und wollen einen Bungalow bauen.
Unser Grundstück wird wohl 18 m breit und 37 m lang sein.
Nun suchen wir nach Tipps für den Grundriss wollten eigentlich den Eingang auf die schmale Seite machen und am anderen Ende das Wohnzimmer nebst Küche. Dann bräuchten wir ja noch die 2 Kinderzimmer, 1 Schlafzimmer, 1 Bad und ein Arbeitszimmer. Das Gäste-WC wollen wir in den Hauswirtschaftsraum integrieren.
Hat da jemand ein paar Informationen?
Grüße Lasse
heute nun hier der erste Eintrag von uns. Wir haben uns nun entschieden und wollen einen Bungalow bauen.
Unser Grundstück wird wohl 18 m breit und 37 m lang sein.
Nun suchen wir nach Tipps für den Grundriss wollten eigentlich den Eingang auf die schmale Seite machen und am anderen Ende das Wohnzimmer nebst Küche. Dann bräuchten wir ja noch die 2 Kinderzimmer, 1 Schlafzimmer, 1 Bad und ein Arbeitszimmer. Das Gäste-WC wollen wir in den Hauswirtschaftsraum integrieren.
Hat da jemand ein paar Informationen?
Grüße Lasse
C
commander55502.07.10 10:20Hallo,
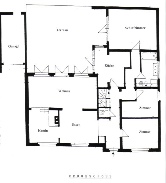
na ja, wer sich mit einem solch´verkorksten Grundriss zufrieden geben möchte.
Mir würden auf Anhieb eine ganze Reihe von Punkten einfallen, die gegen diesen Grundriss sprechen und dabei handelt es sich zum Teil um gravierende Planungsfehler.
Aber wie gesagt, ist eben Geschmacksache und/oder womit man sich zufrieden gibt.
Gruß Danton
na ja, wer sich mit einem solch´verkorksten Grundriss zufrieden geben möchte.
Mir würden auf Anhieb eine ganze Reihe von Punkten einfallen, die gegen diesen Grundriss sprechen und dabei handelt es sich zum Teil um gravierende Planungsfehler.
Aber wie gesagt, ist eben Geschmacksache und/oder womit man sich zufrieden gibt.
Gruß Danton
Danton schrieb:
Hallo,
na ja, wer sich mit einem solch´verkorksten Grundriss zufrieden geben möchte.
Mir würden auf Anhieb eine ganze Reihe von Punkten einfallen, die gegen diesen Grundriss sprechen und dabei handelt es sich zum Teil um gravierende Planungsfehler.
Aber wie gesagt, ist eben Geschmacksache und/oder womit man sich zufrieden gibt.
Gruß DantonHallo Danton,
da muss ich dir 100 % zusprechen.
Dieser Grundriss hat nichts zweckmäßiges, nicht schönes, nichts praktisches, nichts sinnvolles.... 😱
Er ist einfach misslungen. Allein der Weg von der Küche zum Essplatz.. Oder generell die Platzierung der Küche. 😕 Dies sollte schon in Haustürnähe sein (wegen dem schleppen der Einkäufe).
So eben das Ganze aus meiner Sicht betrachtet. Aber wie du schon sagtest: das ist reine Geschmackssache 🙄
6
6Richtige05.07.10 22:39Hat da jemand ein paar Informationen? Hallo Lasse,
aber sicher, da gibt es bestimmt auch bei Dir in der Nähe ein paar Leute die das sogar studiert haben, nennen sich Architekten 🙂
Für umsonst im Forum den Wunschgrundriss erstellen lassen wird nicht funktionieren.
Hallo
das war ja auch nicht mein Ziel sich hier ein Haus planen zu lassen,
vielmehr war es Anfrage ob sich jemand schon diesem "Problem" 🙂 gestellt
hatte und welche Tipps und Anregungen ihr habt.
Manchmal ist man selber so blind und beachtet wichtige Details nicht
(Kinderzimmer nicht neben Wohnzimmer oder Küche oder sowas)
Grüße Lasse
das war ja auch nicht mein Ziel sich hier ein Haus planen zu lassen,
vielmehr war es Anfrage ob sich jemand schon diesem "Problem" 🙂 gestellt
hatte und welche Tipps und Anregungen ihr habt.
Manchmal ist man selber so blind und beachtet wichtige Details nicht
(Kinderzimmer nicht neben Wohnzimmer oder Küche oder sowas)
Grüße Lasse
Ähnliche Themen