Hallo zusammen,
nachdem ich schon seit einiger Zeit hier aktiv mitlese, möchte ich mich jetzt auch in Diskussionen einbringen und selber auch mein Anliegen anbringen.
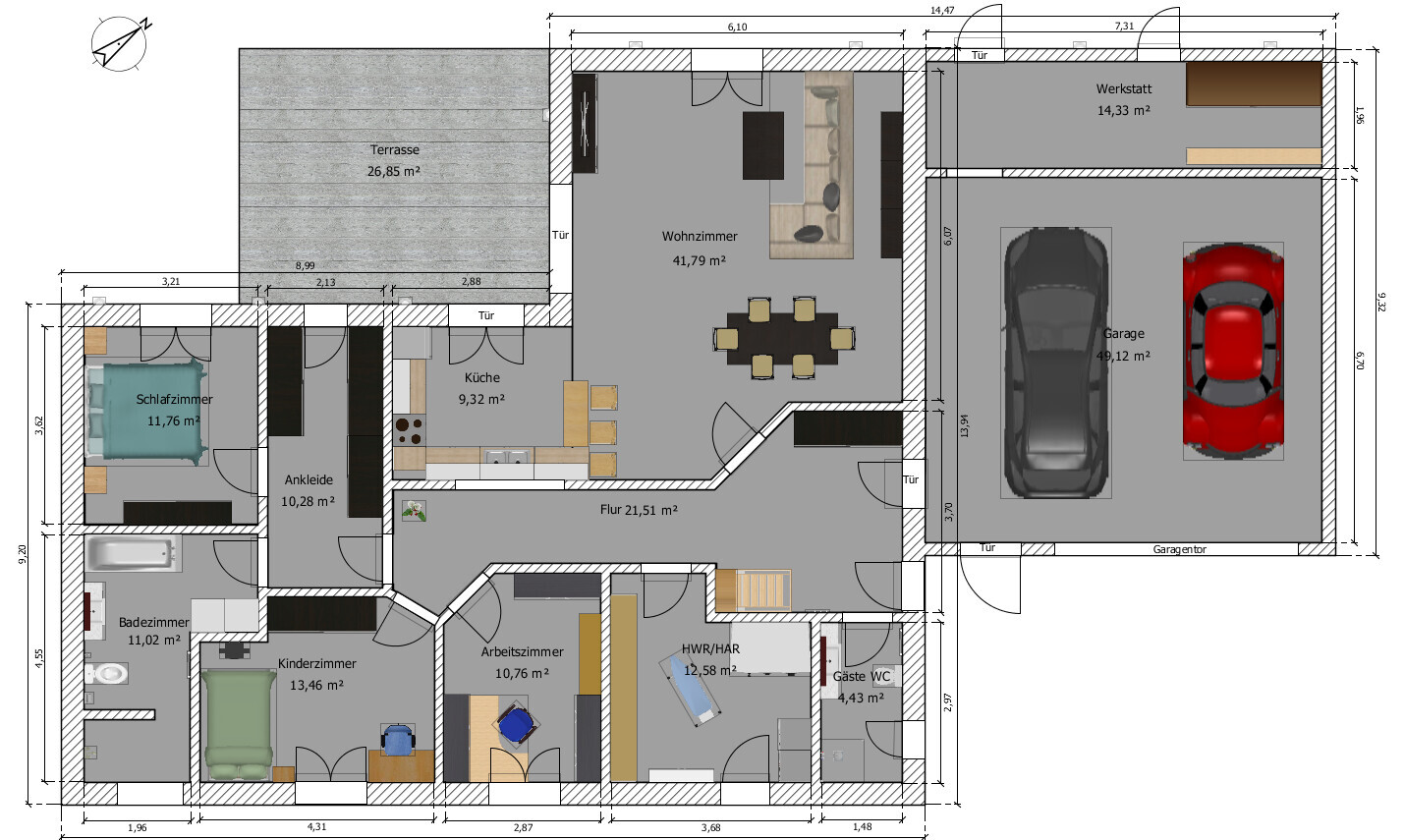
Wir haben uns ein 1.700m² großes Grundstück (28x60m BreitexTiefe) geholt. Grundflächenzahl betragt 0,2.
Wir sind ürigends ein Paar Ende 20, welches aktuell noch keine Kinder hat. Wir möchten ein Kinderzimmer und ein Arbeitszimmer (Home-Office) einplanen
Zum Grundstück:
Hausentwurf:
Was uns sehr wichtig ist:
Was uns relativ wichtig ist:
Offene Fragen:

Vorderansicht

nachdem ich schon seit einiger Zeit hier aktiv mitlese, möchte ich mich jetzt auch in Diskussionen einbringen und selber auch mein Anliegen anbringen.
Wir haben uns ein 1.700m² großes Grundstück (28x60m BreitexTiefe) geholt. Grundflächenzahl betragt 0,2.
Wir sind ürigends ein Paar Ende 20, welches aktuell noch keine Kinder hat. Wir möchten ein Kinderzimmer und ein Arbeitszimmer (Home-Office) einplanen
Zum Grundstück:
- keine Hanglage
- Einschränkungen: bis zu 2 Vollgeschossen erlaubt, Grundflächenzahl 0.2, Dachform muss eine 40%ige Neigung haben
- Lage: Auf dem Dorf, keine Durchfahrtsstraße, Anliegerstraße verläuft parallel zur unteren Wand (Bad bis Gäste-WC) in ca. 5 Meter Entfernung
- Gewünschter Haustyp: Bungalow
- Gewünschte Größe: 140-145m²
- kein Keller, kein OG
- Doppel-Garage mit Zugang zum Haus, falls baurechtlich möglich soll das die einzige Eingangstür werden und auf der Grenze gebaut werden
- Küche: Offen damit Wohn/Esszimmer größer wirkt
- Zur Vermeidung von unzähligen Türen im Flur --> Eingang zum Bad/ Schlafzimmer über Ankleide und "Ecke im Flur"
- 2 Terrassentüren von der Küche (2 Flügel) und Wohnzimmer (Schiebetür)
- Gasheizung (Fußbodenheizung) + Solarunterstützung für die Warmwasseraufbereitung
- keine (de/zentrale) Lüftungsanlage
- Steine: Poroton T10 36,5cm (oder T10 42cm?)
- Überdachte Terrasse
- hohes und schmales Fenster zwischen Küche und Flur, damit der Flur heller ist
Hausentwurf:
- Den Entwurf haben wir als Laien erstellt.
- Abstimmung mit dem Architekt/Statiker der Baufirma erfolgt noch im September
Was uns sehr wichtig ist:
- Zugang zum Haus über Garage, da wir zu 99% mit dem Auto ins Haus kommen und nicht bei Kälte/Regen zum Haus laufen wollen
- Terrasse nach Westen oder Süden
- 4 Zimmer (Schlafen, Wohnen, Kind, Arbeiten)
Was uns relativ wichtig ist:
- Hauswirtschaftsraum ist auch HAR sollte also nicht zu klein sein. (min 12m²)
- Hauswirtschaftsraum und Küche sollten vom Eingang (Garage) nicht zu weit entfernt sein
- Besonders große/breite Bodentreppe
- Bad und Gäste-WC jeweils mit Dusche
Offene Fragen:
- Habt ihr allgemeine Anregungen zum Grundriss?
- Baustoff: Das Bauunternehmen nimmt im Standard für Außenwände Poroton T10 36,5cm und 11,5cm für Innenwände. (ohne weitere Dämmung in den Wänden)
- Wir wollen kein Passivhaus oder extrem Energiesparend bauen, somit kommen wir mit T10 Ziegeln klar oder sollte man wirklich her mehr investieren? Meine Idee war die Wändstärke auf 42cm (außen) und 17,5cm (innen) zu erhöhen, da ich 11,5cm auch für das Verlegen von Leitungen, Steckdosen etc. sehr wenig finde
- Poroton T10: Man liest öfter, dass durch die dünnen Stege und geringe Außenwand die Steine nicht so Stabil sind. Ist da was dran oder könnten wir z.B. beim Befestigen von Möbeln Probleme bekommen?
- Poroton soll nicht so Schalldicht sein... jedoch höre ich vermehrt, dass eher die Türen und Fenster das Problem sind wenn es um Lautstärke (oder auch Wärmedämmung) geht.
- Das Fenster zwischen Küche und Flur soll 200x30cm sein und sich oberhalb der Hängeschränke befinden, sehr ihr das als sinnvoll an oder wird es eher Probleme geben?
- Ist der alleinige Zugang zum Haus über die Garage möglich?
- Bei den Bädern bin ich mir zwecks Grundriss unsicher, ist das so optimal?
- Boden würden wir im Küchenbereich, Hauswirtschaftsraum, Räder und Flur (?) fließen und im Rest Laminat ist das i.O mit einer Fußbodenheizung?
- Ich finde die Räume teilweise recht klein. Der Flur hat schon nur eine Breite von 1,33 kann man also nichts mehr wegnehmen.
Vorderansicht
Ausnahme beantragen auf 30-35 Grad Neigung des Daches Max.. Alles andere hässlich. Mach den Dachboden per Treppe begehbar als Kellerersatz. Wie kommt Besuch oder Paketdienst ins Haus ohne echte Haustür mit Klingel? Wenn Kind, dann muss das auch durch den Kleiderschrank zum Bad? Doofe Idee.
Nur Eingang durch Garage ist nicht praktikabel
Wo klingelt der Postbote?
Würde den Eingang und Hauswirtschaftsraum tauschen.
Was ist das für eine Treppe in den Dachboden.
40 Grad ist ein steiles Dach warum soll das nicht genutzt werden?
Würde den Flur bis zum Bad verlängern. Ihr habt in dem Bereich keine Stellfläche und der Flur bietet mehr Privatsphäre. Stellt euch vor in 20 Jahren steht ihr morgens vor dem Kleiderschrank und der momentane Partner eures Kindes verschwindet im Bad.
Dann bekommen das Kinder- und Arbeitszimmer 4 gerade Wände
Der Allraum gefällt mir gar nicht.
Küche wirkt beengt
Weg Küche Essen recht weit
TV Sofa Abstand zu groß
Auch diese schräge Wand gefällt mir nicht.
Wollt ihr wirklich das Dach vor der Garage so weit vorziehen.
Wo klingelt der Postbote?
Würde den Eingang und Hauswirtschaftsraum tauschen.
Was ist das für eine Treppe in den Dachboden.
40 Grad ist ein steiles Dach warum soll das nicht genutzt werden?
Würde den Flur bis zum Bad verlängern. Ihr habt in dem Bereich keine Stellfläche und der Flur bietet mehr Privatsphäre. Stellt euch vor in 20 Jahren steht ihr morgens vor dem Kleiderschrank und der momentane Partner eures Kindes verschwindet im Bad.
Dann bekommen das Kinder- und Arbeitszimmer 4 gerade Wände
Der Allraum gefällt mir gar nicht.
Küche wirkt beengt
Weg Küche Essen recht weit
TV Sofa Abstand zu groß
Auch diese schräge Wand gefällt mir nicht.
Wollt ihr wirklich das Dach vor der Garage so weit vorziehen.
Hallo zusammen,
vielen Dank für Euer Feedback. Beim Dach werde ich das Versuchen, ist ein alter Bebauungsplan wo 40° vorgegeben wurden, das ist ein guter Tipp.
Wenn das Kind durch die Ankleide zum Bad muss, dann ist dem halt so.... wir haben somit nur nicht einen mega langen schlauchartigen Flur und sparen uns Türen.
Wir wollen den Eingang über die Garage machen, dort ist natürlich eine Hauseingangstür mit Klingel. Der Postboote wird diese finden und Besuch sicherlich auch. Hat bei Freunden auch super geklappt
Warum ist der Eingang dort nicht praktikabel? Sicherlich man muss eine Tür mehr öffnen wenn man zur Eingangstür will und 2 Meter mehr laufen, aber bei uns kommen jetzt nicht jeden Tag 5 verschiedene Paketboten.
Zum Dachboden: Aktuell ist nur eine größere Dachbodentreppe (140x80) geplant. Wir wollten gerne alles auf einer Ebene haben und nicht einzelne Zimmer wie Schlafzimmer oder Kinderzimmer auslagern. Zudem würde das Ausbauen des Dachgeschosses aktuell unser Budget sprengen, somit müssten wir z.B. auf eine EG-Fläche von 110m² runter und hätten dann wieder 2 Etagen. Wir wollten das als Reserve haben, falls doch mehr Kinder etc. geplant werden.
Den Flur hatten wir schon mal länger, dann wirkt aber das Ankleidezimmer recht klein. Zudem passen dann die Türen nicht mehr, da die Wand vom Flur dann auf Höhe der Mitte der Badtür wäre. Ich probiere da aber noch mal etwas rum. Das Argument ist schon berechtigt
Ich finde die Küche durch die fehlenden Wände eher größer als beengt. Von der Küchenmitte bis zum Esstisch sind es 4 Meter. Das finde ich jetzt nicht zu weit, aktuell essen wir oft auf dem Sofa und laufen eher 7 Meter.
Abstand vom TV zur Couch sind je nach Sitzposition ca. 4,0-4,5Meter. Dieser Abstand ist für uns mit einem 55" Fernseher optimal, da wir das Wohnzimmer derzeit sehr ähnlich in unserer Wohnung haben.
ich mache auch mal einen Entwurf wo der Hauswirtschaftsraum und Eingang getauscht ist, aber dann geht bestimmt wieder Wandfläche beim Hauswirtschaftsraum verloren die finde ich schon wichtig für Heizung, Regal, Schaltschränke, Waschmaschine, Trockner, aber mal schauen wie es dann wirkt.
Vielen Dank für Euer Feedback bis jetzt. Ich freue mich gerne über weitere Meinungen.
vielen Dank für Euer Feedback. Beim Dach werde ich das Versuchen, ist ein alter Bebauungsplan wo 40° vorgegeben wurden, das ist ein guter Tipp.
Wenn das Kind durch die Ankleide zum Bad muss, dann ist dem halt so.... wir haben somit nur nicht einen mega langen schlauchartigen Flur und sparen uns Türen.
Wir wollen den Eingang über die Garage machen, dort ist natürlich eine Hauseingangstür mit Klingel. Der Postboote wird diese finden und Besuch sicherlich auch. Hat bei Freunden auch super geklappt
Warum ist der Eingang dort nicht praktikabel? Sicherlich man muss eine Tür mehr öffnen wenn man zur Eingangstür will und 2 Meter mehr laufen, aber bei uns kommen jetzt nicht jeden Tag 5 verschiedene Paketboten.
Zum Dachboden: Aktuell ist nur eine größere Dachbodentreppe (140x80) geplant. Wir wollten gerne alles auf einer Ebene haben und nicht einzelne Zimmer wie Schlafzimmer oder Kinderzimmer auslagern. Zudem würde das Ausbauen des Dachgeschosses aktuell unser Budget sprengen, somit müssten wir z.B. auf eine EG-Fläche von 110m² runter und hätten dann wieder 2 Etagen. Wir wollten das als Reserve haben, falls doch mehr Kinder etc. geplant werden.
Den Flur hatten wir schon mal länger, dann wirkt aber das Ankleidezimmer recht klein. Zudem passen dann die Türen nicht mehr, da die Wand vom Flur dann auf Höhe der Mitte der Badtür wäre. Ich probiere da aber noch mal etwas rum. Das Argument ist schon berechtigt
Ich finde die Küche durch die fehlenden Wände eher größer als beengt. Von der Küchenmitte bis zum Esstisch sind es 4 Meter. Das finde ich jetzt nicht zu weit, aktuell essen wir oft auf dem Sofa und laufen eher 7 Meter.
Abstand vom TV zur Couch sind je nach Sitzposition ca. 4,0-4,5Meter. Dieser Abstand ist für uns mit einem 55" Fernseher optimal, da wir das Wohnzimmer derzeit sehr ähnlich in unserer Wohnung haben.
ich mache auch mal einen Entwurf wo der Hauswirtschaftsraum und Eingang getauscht ist, aber dann geht bestimmt wieder Wandfläche beim Hauswirtschaftsraum verloren die finde ich schon wichtig für Heizung, Regal, Schaltschränke, Waschmaschine, Trockner, aber mal schauen wie es dann wirkt.
Vielen Dank für Euer Feedback bis jetzt. Ich freue mich gerne über weitere Meinungen.
Eines hast Du nicht verstanden:
Ich will den Dachboden nicht ausbauen, nur soll da ggf. 1 Velux rein, Licht, Steckdose und Bretter als Fußboden, keine Dämmung, nichts. Das zugänglich mit einer Treppe gibt dir eine herrlich bequem zugängliche Abstellfläche für dies und das. Ich kann da oben mir auch zwei Böcke hinstellen und mal was malen. da sind unsere Reisekoffer, die Weihnachtsdeko, ein schrank mit überzähliger Wäsche, haben ist besser als brauchen, etc. pp. Zum gedämmten teil des Hauses hat der GU einen kleinen Flur oben gezimmert, als Tür haben wir wegen der Temperaturdifferenz Dachboden-Hauskörper eine Terrassentür genommen. Aufpreis hier runde 8000,- incl. Buchenholztreppe. K.
Ich will den Dachboden nicht ausbauen, nur soll da ggf. 1 Velux rein, Licht, Steckdose und Bretter als Fußboden, keine Dämmung, nichts. Das zugänglich mit einer Treppe gibt dir eine herrlich bequem zugängliche Abstellfläche für dies und das. Ich kann da oben mir auch zwei Böcke hinstellen und mal was malen. da sind unsere Reisekoffer, die Weihnachtsdeko, ein schrank mit überzähliger Wäsche, haben ist besser als brauchen, etc. pp. Zum gedämmten teil des Hauses hat der GU einen kleinen Flur oben gezimmert, als Tür haben wir wegen der Temperaturdifferenz Dachboden-Hauskörper eine Terrassentür genommen. Aufpreis hier runde 8000,- incl. Buchenholztreppe. K.
Hallo Nordlys, genau so in der Art haben wir das geplant halt nur mit einer Dachbodentreppe um Platz zu sparen. Somit ist der Dachboden schon begehbar das hast Du wohl etwas nicht verstanden Den Flur hatten wir allerdings nicht vorgesehen. Wir werden mal schauen ob man eine dauerhafte Treppe jetzt schon realisieren könnte ist natürlich besser für die Zukunft als so eine Klapptreppe.
PS. Das Dach soll nicht so weit über die Garage gehen, ist eher ein Fehler im Tool bzw. fehlende Kenntnisse meinerseits
PS. Das Dach soll nicht so weit über die Garage gehen, ist eher ein Fehler im Tool bzw. fehlende Kenntnisse meinerseits
Ähnliche Themen