ᐅ Badplanung Neubau Ideenfindung
Erstellt am: 08.02.21 10:43
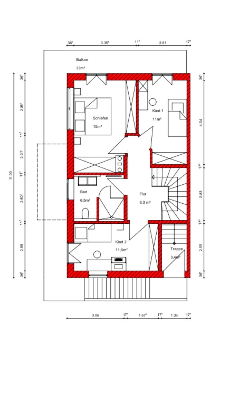
Ich plane gerade meinen Neubau und bin jetzt bei der Badplanung für das Hauptbad angelangt und benötige ein paar Ideen oder auch Hilfe. Anbei der grobe Grundriss. die Fenster können noch ohne Probleme verschoben werden, die Türe leider nicht. Wichtig ist, dass in das Eck von Wand C&D keine Installation darf, da die Option bestehen muss dass wir später mal im Eck Wand C eine Türe durchbrechnen können. Ein weiterer Wunsch ist ein doppelwaschbecken und was mir auch sehr gefällt ist eine T-Wand hinter der die Dusche und das WC ist. Ansonsten bin ich offen für Ideen. Vielen Dank schonmal 🙂

H
hampshire08.02.21 12:14Mit oder ohne Badewanne?
Welche Ausrichtung?
Welcher Ausblick?
Sichtschutz erforderlich?
Rücksicht auf Lage und benachbarte Räume?
Ein T in die kurze Seite lässt bei einem schmalen, eindeutig nicht behindertengerechten Durchgang von 65 cm eine Kopfwand von 1,25m. Dafür brauchst Du ein kompaktes Doppelwaschbecken. Toilette auf der Fensterseite. Das T-Stück muss nicht mittig stehen, gib der Dusche ruhig etwas mehr Platz und baue die T-Wand platzsparend um den Spülkasten oder setze eine Druckspülung ein um keinen weiteren Raum zu verschenken. Mache die T-Wand nur 2,2m hoch um etwas Luftzirkulation zu ermöglichen und die Konstruktion etwas weniger massiv im Raum wirken zu lassen. Um Licht in den Duschbereich kommen zu lassen kannst Du ab Spülkastenhöhe den Rest der Wand auch aus Glas ausführen. Das gibt Dir sogar auf Toiletten- und Duschseite eine praktische Ablagefläche. Für eine Badewanne bietet sich das Eck C-Wand zur Außenwand an. Die Installation muss nicht durch die C-Wand geführt werden, beim Einbau einer Türe muss dann eben auch eine neue Wanne her. Etwas mehr Installation vorzusehen kostet beim Bau nicht mehr und hilft später beim Umbau. Also kannst Du ja rein vorsorglich einen Zu- und Abfluss in der B-Wand vorsehen und nicht von Beginn an nutzen.
Welche Ausrichtung?
Welcher Ausblick?
Sichtschutz erforderlich?
Rücksicht auf Lage und benachbarte Räume?
Ein T in die kurze Seite lässt bei einem schmalen, eindeutig nicht behindertengerechten Durchgang von 65 cm eine Kopfwand von 1,25m. Dafür brauchst Du ein kompaktes Doppelwaschbecken. Toilette auf der Fensterseite. Das T-Stück muss nicht mittig stehen, gib der Dusche ruhig etwas mehr Platz und baue die T-Wand platzsparend um den Spülkasten oder setze eine Druckspülung ein um keinen weiteren Raum zu verschenken. Mache die T-Wand nur 2,2m hoch um etwas Luftzirkulation zu ermöglichen und die Konstruktion etwas weniger massiv im Raum wirken zu lassen. Um Licht in den Duschbereich kommen zu lassen kannst Du ab Spülkastenhöhe den Rest der Wand auch aus Glas ausführen. Das gibt Dir sogar auf Toiletten- und Duschseite eine praktische Ablagefläche. Für eine Badewanne bietet sich das Eck C-Wand zur Außenwand an. Die Installation muss nicht durch die C-Wand geführt werden, beim Einbau einer Türe muss dann eben auch eine neue Wanne her. Etwas mehr Installation vorzusehen kostet beim Bau nicht mehr und hilft später beim Umbau. Also kannst Du ja rein vorsorglich einen Zu- und Abfluss in der B-Wand vorsehen und nicht von Beginn an nutzen.
Vielen Dank für das wirklich super Feedback. Badewanne sollte schon drin sein. Es werden beide Fenster mit Sichtschutzglas eingebaut. Es muss nicht zwingend eine T-Wand sein, fand die Idee Ansicht gut aber wenn mein Raum dazu einfach zu schmal ist, muss das nicht auf biegen und brechen so rein. Dachte mit jetzt sowas in der Art wäre auch in Ordnung. Das WC sollte halt irgendwie bisschen abgetrennt sein

Ähnliche Themen