M
MelanieSH07.05.18 16:39Hallo,
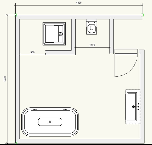
wir planen derzeit unseren Neubau und ich bin bisher auch ganz zufrieden damit. Was mir allerdings noch nicht zusagt ist das Badezimmer. Es soll auf jedenfall eine bodentiefe Dusche mit einer Glasabtrennung an der Seite sein, gerne 1m x 1,2m - 1,4m. Im Grundriss ist die Dusche derzeit nur mit 90cm eingeplant. Ich wollte eigentlich gerne die Dusche planoben mit Öffnung zur Tür. Das Bauunternehmen hat mit allerdings gesagt, dass die Öffnungen der Duschen nicht Richtung Tür sein dürfen, da man nicht für Spritzwasser im Flur haften möchte.
Hat jemand von euch eine Idee für die Aufteilung? Das Fenster kann nicht mehr verschoben werden. Die Tür könnte dorthin verschoben werden, wo jetzt die Dusche ist.
Danke für eure Hilfe.
LG Melanie

wir planen derzeit unseren Neubau und ich bin bisher auch ganz zufrieden damit. Was mir allerdings noch nicht zusagt ist das Badezimmer. Es soll auf jedenfall eine bodentiefe Dusche mit einer Glasabtrennung an der Seite sein, gerne 1m x 1,2m - 1,4m. Im Grundriss ist die Dusche derzeit nur mit 90cm eingeplant. Ich wollte eigentlich gerne die Dusche planoben mit Öffnung zur Tür. Das Bauunternehmen hat mit allerdings gesagt, dass die Öffnungen der Duschen nicht Richtung Tür sein dürfen, da man nicht für Spritzwasser im Flur haften möchte.
Hat jemand von euch eine Idee für die Aufteilung? Das Fenster kann nicht mehr verschoben werden. Die Tür könnte dorthin verschoben werden, wo jetzt die Dusche ist.
Danke für eure Hilfe.
LG Melanie
M
MrThiemann07.05.18 21:22Also, Dusche unter der Schräge ist ja der Hammer!
Liebe Melanie, was sagt der BU denn zu der Entfernung von Duscharmatur und Tür?
Seine Regel gilt doch sicherlich nur bis zu einem Bereich?
Wollt Ihr denn die Wanne noch mit Podesten versehen bzw auch einen großen waschtisch anlegen oder so spartanisch wie gezeigt möblieren?
Liebe Melanie, was sagt der BU denn zu der Entfernung von Duscharmatur und Tür?
Seine Regel gilt doch sicherlich nur bis zu einem Bereich?
Wollt Ihr denn die Wanne noch mit Podesten versehen bzw auch einen großen waschtisch anlegen oder so spartanisch wie gezeigt möblieren?
M
MelanieSH09.05.18 20:50ypg schrieb:
Liebe Melanie, was sagt der BU denn zu der Entfernung von Duscharmatur und Tür?
Seine Regel gilt doch sicherlich nur bis zu einem Bereich?Nein tatsächlich ist die obere Wand 3,82m und das war ihm schon zu wenig. Ich verstehe das nicht wirklich, aber er will uns die Dusche nicht mit Öffnung zur Tür bauen.ypg schrieb:
Wollt Ihr denn die Wanne noch mit Podesten versehen bzw auch einen großen Waschtisch anlegen oder so spartanisch wie gezeigt möblieren?Erstmal sollen Wanne, Dusche, WC und Waschbecken annehmbar platziert werden. Danach würde ich die restliche Einrichtung anpassen. Es soll keine Podeste und auch keinen großen Waschtisch geben.
Im Grunde möchte ich eine schöne Position für die Dusche haben, ohne dass ich noch eine zusätzliche Wand einziehen muss.
M
MelanieSH09.05.18 20:51MrThiemann schrieb:
Ich hab deinen Beitrag gerade gelesen und auch gleich hier zwei Vorschläge für Dich.
Allerdings sind die Raummaße nur "geschätzt".
Vielleicht ist da ja was interessantes dabei.Danke. Tatsächlich möchte ich gerne ohne weitere Wand für die Dusche planen.
Ähnliche Themen