ᐅ Aufpreis Fenster zur Standard-Baubeschreibung
Erstellt am: 20.10.24 19:30
Guten Abend,
ich könnte mal Hilfe beim Thema Fenster gebrauchen. Unser Bauträger möchte einen Aufpreis für die Aufmusterung der Fenster zur Baubeschreibung gemäß Architektenplan in Höhe von 24.200€ haben. Mir kommt dieser Wert erstmal sehr hoch vor.
Die 24.200€ Mehrpreise setzen sich lt. Aussage unseres Bauträgers aus den folgenden Positionen zusammen:
Gibt es hier jemanden im Forum, der Erfahrung hat ob die Preise gerechtfertigt sind?
Lieben Dank



ich könnte mal Hilfe beim Thema Fenster gebrauchen. Unser Bauträger möchte einen Aufpreis für die Aufmusterung der Fenster zur Baubeschreibung gemäß Architektenplan in Höhe von 24.200€ haben. Mir kommt dieser Wert erstmal sehr hoch vor.
Die 24.200€ Mehrpreise setzen sich lt. Aussage unseres Bauträgers aus den folgenden Positionen zusammen:
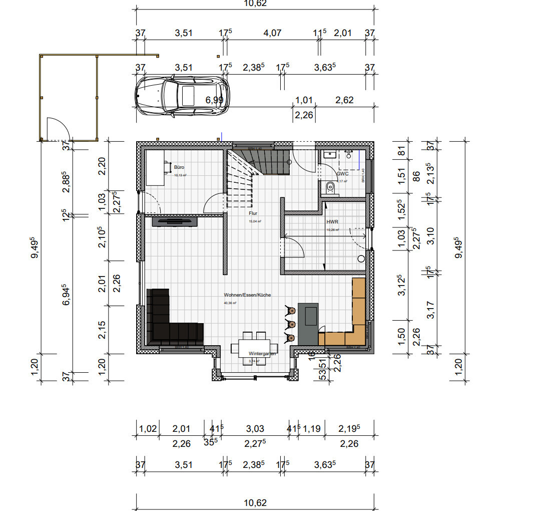
- 5.000€ Hebe/Schiebetür 3 Meter.
- 2.750€ Dreiecksfenster Dachboden
- 2.750€ Eckfenster Küche
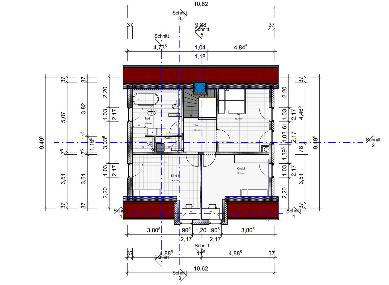
- 2x 1.750€ Bodentiefe Fenster OG Erker
- 2x 1000€ Lichtbandfenster
- 2x 1500€ Bodentiefes Fenster 50cm breit im Erker EG links und rechts
- 1500€ Bodentiefes Fenster Hauswirtschaftsraum
- 1500€ Bodentiefes Fenster Büro
- .....
Gibt es hier jemanden im Forum, der Erfahrung hat ob die Preise gerechtfertigt sind?
Lieben Dank
N
nordanney20.10.24 19:37Sind schon "ordentliche" Preise, aber bei den Wünschen eher üblich.
Viel schlimmer ist allerdings, dass Du keine Wahl hast. Baust Du eigentlich wirklich mit einem Bauträger (= verkauft Dir Grundstück + Haus als Paket) oder einem GU/Hausbauer oder wie immer man das Unternehmen benennt, das Dir auf Deinem Grundstück ein Haus baut?
Viel schlimmer ist allerdings, dass Du keine Wahl hast. Baust Du eigentlich wirklich mit einem Bauträger (= verkauft Dir Grundstück + Haus als Paket) oder einem GU/Hausbauer oder wie immer man das Unternehmen benennt, das Dir auf Deinem Grundstück ein Haus baut?
nordanney schrieb:
Sind schon "ordentliche" Preise, aber bei den Wünschen eher üblich.
Viel schlimmer ist allerdings, dass Du keine Wahl hast. Baust Du eigentlich wirklich mit einem Bauträger (= verkauft Dir Grundstück + Haus als Paket) oder einem GU/Hausbauer oder wie immer man das Unternehmen benennt, das Dir auf Deinem Grundstück ein Haus baut?Danke für die Antwort. Du hast natürlich recht, wir bauen mit einem GU.N
nordanney20.10.24 19:57Heidemap schrieb:
Du hast natürlich recht, wir bauen mit einem GU.Da könntest Du dann mit ihm diskutieren, ob Du das Gewerk "Fenster" komplett rausnimmst und einen eigenen Fensterbauer beauftragst. Ist dann aber zur Koordination schwierig und ob es günstiger wird, bleibt offen.Heidemap schrieb:
Unser Bauträger möchte einen Aufpreis für die Aufmusterung der Fenster zur Baubeschreibung gemäß Architektenplan in Höhe von 24.200€ haben. Mir kommt dieser Wert erstmal sehr hoch vor.
Die 24.200€ Mehrpreise setzen sich lt. Aussage unseres Bauträgers aus den folgenden Positionen zusammen:
- 5.000€ Hebe/Schiebetür 3 Meter.
- 2.750€ Dreiecksfenster Dachboden
- 2.750€ Eckfenster Küche
- 2x 1.750€ Bodentiefe Fenster OG Erker
- 2x 1000€ Lichtbandfenster
- 2x 1500€ Bodentiefes Fenster 50cm breit im Erker EG links und rechts
- 1500€ Bodentiefes Fenster Hauswirtschaftsraum
- 1500€ Bodentiefes Fenster Büro
- .....
Im Anhang habe ich mal den Auszug unserer Baubeschreibung und unsere Grundrisse angehangen.Diese Preise sind vollständigst jenseits von Gut und Böse. Sie wären in etwa authentisch als Preise für alle diese Fenster insgesamt, aber keinstenfalls als Aufpreise. 24,2k als Gesamtpreis für die Fenster in PVC sind okay, in Aluminium oder Holz 20% bzw. 25% mehr, aber nicht 100% mehr. Bist Du sicher, Dich nicht verlesen zu haben, daß er die nur als Alternativpositionen-Preis aufgeführt hat, und an anderer Stelle dann der Minderpreis / die Gegenrechnung der Standardfenster steht ?Hauswirtschaftsraum / Büro: bodentiefe Fenster sind KEINE Terrassentüren, ohne "Flachschwelle" haben die unten eine Stolperstelle durch den Fensterrahmen. Im Hauswirtschaftsraum gehört da eine Nebeneingangstür hin, im Büro kannst Du das so lassen (mußt Dir aber darüber klar sein, daß es ohne ausdrückliche Bestellung "mit Flachschwelle" ein "Fenster" bleibt).
Hebeschiebetür: die würde ich hier durch ein dreiflügeliges Element Fest/Dreh/Drehkipp - auch hier mit Flachschwelle - ersetzen, also mit Drehkippflügel zur Küche hin.
Den Kindern würde ich die darüberliegenden Fenster passend verbreitern, also auch auf 103 wie die anderen.
Dreiecksfenster Dachboden: Designgimmick, m.E. hier nicht zum Haus passend. Da nähme ich klassische Rechteckfenster.
https://www.instagram.com/11antgmxde/
https://www.linkedin.com/company/bauen-jetzt/
Und die bodentiefen Fenster im Erker OG würde ich grundsätzlich wegfallen lassen, insbesondere, wenn ihr das Schreibtische plant.
Und über die bodentiefen Fenster an den Seiten der Kinderzimmer. Warum nicht ein etwas breiteres "normales" Fenster, das wird mehr Licht geben.
Bodentiefes Fenster im Bad im OG sehe ich als genauso zweifelhaft an. Dort ist sowohl für Dusche als auch Badewanne der Ein- / Ausstiegsplatz, also wird da ständig Sichtschutz sein.
Bodentiefe Fenster hinter dem Sofa sollte man auch hinterfragen.
Bodentiefes Fenster Büro ... da würde ich grundsätzlich über die Fensterposition nachdenken. So wie es jetzt ist, ist das Büro im Grunde ein Minizimmer mit einem Flur von Eingangstür zu bodentiefem Fenster. Warum kein Fenster planoben, warum das bodentiefe Fenster? Welchen Sinn soll es erfüllen?
Und über die bodentiefen Fenster an den Seiten der Kinderzimmer. Warum nicht ein etwas breiteres "normales" Fenster, das wird mehr Licht geben.
Bodentiefes Fenster im Bad im OG sehe ich als genauso zweifelhaft an. Dort ist sowohl für Dusche als auch Badewanne der Ein- / Ausstiegsplatz, also wird da ständig Sichtschutz sein.
Bodentiefe Fenster hinter dem Sofa sollte man auch hinterfragen.
Bodentiefes Fenster Büro ... da würde ich grundsätzlich über die Fensterposition nachdenken. So wie es jetzt ist, ist das Büro im Grunde ein Minizimmer mit einem Flur von Eingangstür zu bodentiefem Fenster. Warum kein Fenster planoben, warum das bodentiefe Fenster? Welchen Sinn soll es erfüllen?
Ähnliche Themen