M
Milka010517.03.25 14:19Hallo zusammen,
wir planen den Bau einen Einfamilienhaus. Wir sind in den Plänen soweit, dass wir bereits einen Grundriss ausgearbeitet haben. Bis auf ein paar Änderungen (nicht jedoch an der Hausgröße) ist der Grundriss soweit Final. Wir haben nun unser zweites Angebot erhalten und ich möchte dieses hier mal im Forum vorstellen. Wir haben es auch bereits gegen andere Angebote verglichen, aber ich glaube einfach, dass ich hier noch ein paar mehr hilfreiche Informationen und Tipps bekommen kann. Wie gefällt euch das Angebot bzw. auch der Preis für das Ganze. Ebenfalls was ist vielleicht nicht enthalten, was aber super wichtig wäre. Ein Sachverständigen wollen wir noch hinzuziehen, jedoch möchte ich mich natürlich einfach auch etwas mehr in die Materie einarbeiten.
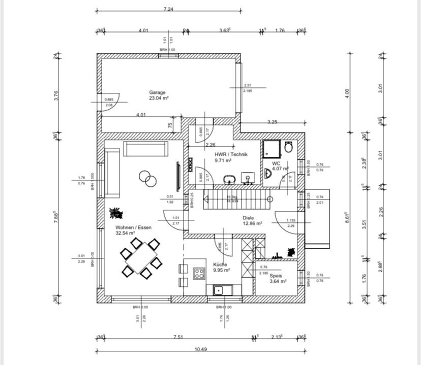
Anbei das Angebot und die Beschreibung. Angehangen habe ich ebenfalls den Grundriss
Einfamilienhaus mit 142 qm
2 Vollgeschosse mit flachgeneigtem Satteldach Dachneigung 20°
Erdarbeiten: Mutterboden auf dem gesamten Grundstück abgeschoben und seitlich gelagert. Baugrubenaushub Bodenklasse 3-5 wird ebenfalls seitlich gelagert
Bodenplatte: 20 cm starke Stahlbetonbodenplatte aus C20/25 entsprechend den statischen Erfordernissen auf einer Schaumglasschotterschicht. Unter den Außenwänden und tragenden Zwischenwänden werden ungedämmte Streifenfundamente gegen Erdreich betoniert (Bodenpressung 200KN/m.
Entwässerung: Hart PVC-Rohr einschließlich eines Revisionsschachts für Mischwasserkanal außer Haus bis zur Grundstücksgrenze an das vorhandene Kanalnetz angeschlossen.
Außenwände: 36,5 Ziegel (T9) mit hochwärmedämmenden Spezialmörtel (LM21). Lichte Rohbaugeschosshöhe 2,63m
Innenwände: 11,5-24cm
Geschossdecke: Stahlbetondecken nach statischen Erfordernissen. Glatt und Tapezierfähig
Dachkonstruktion: Pfettendachstuhl mit Nadelholz Klasse S10. Die Dachfläche wird Bretterverschalt und mit diffusionsoffene Schalungsbahn versehen. Die Dachüberstände Giebelseitig 20 cm und traufseitig 50cm. Verkleidet werden diese auf der Traufseite mit Nut- und Federbrettern und auf der Giebelseite mit Ortgangbrettern.
Dacheindeckung: Sigma Pfanne von der Firma "Nelskamp"
Sprenglerarbeiten: Dachrinnen und Fallrohre inkl. aller Kleinteile in Titan-Zink
Spitzboden: letzte Decke ist Stahlbetondecke und wir mit begehbarer Dämmung belegt
Fenster: Ausführung der Fenster als Kunststofffenster mit Pilzzapfverrieglung, 3-Scheibenverglasung (UG-Wert <0,60 W/(qmK) mit 80mm 5 Kammer Profil, Fensterbänke außen in Aluminium, innen Jura, Marmor oder Kunststoff
Rollladen: Alle Fenster außer Spitzboden erhalten ein Rollo, wärmegedämmter Rolllokasten mit außenliegender Revisionsöffnung
Innenputz: Einlagiger, streichfähiger gefilzter Gips-Zementputz, Kanten mit Eckschutzleisten versehen. Rissgefährdete Bereiche mit Gewebe eingebettet.
Estrich und Fußbodendämmung: Anhydrit-Fliessestrich mit 10cm starker Wärmedämmung. Bituminöse Kaltklebebahn als Feuchtigkeitssperre. Garage erhält einen 4 cm starken Betonestrich im Verbund. Dämmung verringert sich nach Rohrdurchmesser Fußbodenheizung
Türen: CPL Innentüren
Außenputz: mineralischen Leichtputz als Unterputz. Zweite Lage mineralischen durchgefärben Scheibenputz. Sockelputz farblich passend in einer Höhe von 30 und 45 cm. Außenputz zum Abschluss einen farbigen Egalisationsanstrich auf Silikatbasis. Wetterseite mit Gewebespachtelung
Heizung und Warmwasser: 1 Wärmepumpe als Luft-Wasser-Wärmepumpe (Splitgerät)mit Speicher nach Auslegung des Haustyps
Sanitärinstallation: Kalt- und Warmwasser mit Metallverbundrohren ab Wasseruhr. Schmutzwasser- und Entlüftungsleitungen bestehen aus säure- und heißwasserbeständigen Kunststoffrohren mit Putzstücken. Es wird ein Hauswasser Schmutzfilter und Druckminderer eingebaut. Warmwasser wärmedämmend ummantelt. Küche mit Kalt und Warmwasseranschluss sowie Spülmaschinenanschluss. Technikraum Ausgussbecken mit Abfluss, Geruchsverschluss, Kaltwasseranschluss und Schlauchanschluss für die Waschmaschine montiert. Garten mit Außenwasserhahn
Sanitärausstattung: Standardausstattung weiß
Elektroinstallation: Alle Leitungen unter Putz außer Technikraum.
12 Brennstellen
14 Schalter
33 Steckdosen + Herd, Spülmaschine und Waschmaschine
Haustürklingel
Folgende Zusätze zur Bau- und Leistungsbeschreibung
Weitere Zusätze:
Zusätzlich würde noch hinzukommen:
Blower Door Test (nötig?)
Grobplanie des Grundstücks (Grundstück ist eben, sollte also nicht allzu viel sein)
Elektromehrausstattung (10.000 €)
Sanitärmehrausstattung (5.000 €)
Bodenbelag ausser Fliesen (10.000 € Vinyl ist geplant - nur Material - Eigenleistung)
Maler-und Tapezierarbeiten ( 7.000 € Material - Eigenleistung)
Außenanlagen (offen)
Hausanschlusskosten und Mehrsparteneinführung und Grabarbeiten für Wasser, Strom, Glasfaser
Verbrauchskosten (Bauwasser und Strom) 8.000 €
Vermessung ca. 1.500 €
Küche ca. 15.000 €
Gesamtkosten um drin zu wohnen (ohne Außenanlagen und Möbel): 56.000 € + 380.000 €= 436.000 €
Sollte ich einzelne Gewerke komplett rausnehmen würden folgenden Preise abgezogen:
Sanitär und Heizung : 37.510 € + die 5.000 Mehrausstattung Sanitär
Elektroarbeiten: 10.080 € + 10.000 € Elektromehrausstattung
Fliesenarbeiten: 9.960 €
Ich würde mich über Tipps, Infos oder auch Kritik freuen. Welche Kosten seht ihr nicht korrekt? Was sagt ihr zu den Leistungen des GU sowie die aufgerufenen Kosten? Wo würdet ihr nachverhandeln? Was habt ihr für die einzelnen Sachen bezahlt?
Ich habe bereits bemerkt, das die zentrale Lüftung (18.000 €) bei mir sehr teuer ist. Dies überlege ich zum Beispiel (falls es nicht billiger angeboten wird) rauszunehmen und anderweitig zu vergeben.
Sollte ich irgendwas vergessen habe, kann ich dies gerne noch vervollständigen.
Viele Grüße


wir planen den Bau einen Einfamilienhaus. Wir sind in den Plänen soweit, dass wir bereits einen Grundriss ausgearbeitet haben. Bis auf ein paar Änderungen (nicht jedoch an der Hausgröße) ist der Grundriss soweit Final. Wir haben nun unser zweites Angebot erhalten und ich möchte dieses hier mal im Forum vorstellen. Wir haben es auch bereits gegen andere Angebote verglichen, aber ich glaube einfach, dass ich hier noch ein paar mehr hilfreiche Informationen und Tipps bekommen kann. Wie gefällt euch das Angebot bzw. auch der Preis für das Ganze. Ebenfalls was ist vielleicht nicht enthalten, was aber super wichtig wäre. Ein Sachverständigen wollen wir noch hinzuziehen, jedoch möchte ich mich natürlich einfach auch etwas mehr in die Materie einarbeiten.
Anbei das Angebot und die Beschreibung. Angehangen habe ich ebenfalls den Grundriss
Einfamilienhaus mit 142 qm
2 Vollgeschosse mit flachgeneigtem Satteldach Dachneigung 20°
Erdarbeiten: Mutterboden auf dem gesamten Grundstück abgeschoben und seitlich gelagert. Baugrubenaushub Bodenklasse 3-5 wird ebenfalls seitlich gelagert
Bodenplatte: 20 cm starke Stahlbetonbodenplatte aus C20/25 entsprechend den statischen Erfordernissen auf einer Schaumglasschotterschicht. Unter den Außenwänden und tragenden Zwischenwänden werden ungedämmte Streifenfundamente gegen Erdreich betoniert (Bodenpressung 200KN/m.
Entwässerung: Hart PVC-Rohr einschließlich eines Revisionsschachts für Mischwasserkanal außer Haus bis zur Grundstücksgrenze an das vorhandene Kanalnetz angeschlossen.
Außenwände: 36,5 Ziegel (T9) mit hochwärmedämmenden Spezialmörtel (LM21). Lichte Rohbaugeschosshöhe 2,63m
Innenwände: 11,5-24cm
Geschossdecke: Stahlbetondecken nach statischen Erfordernissen. Glatt und Tapezierfähig
Dachkonstruktion: Pfettendachstuhl mit Nadelholz Klasse S10. Die Dachfläche wird Bretterverschalt und mit diffusionsoffene Schalungsbahn versehen. Die Dachüberstände Giebelseitig 20 cm und traufseitig 50cm. Verkleidet werden diese auf der Traufseite mit Nut- und Federbrettern und auf der Giebelseite mit Ortgangbrettern.
Dacheindeckung: Sigma Pfanne von der Firma "Nelskamp"
Sprenglerarbeiten: Dachrinnen und Fallrohre inkl. aller Kleinteile in Titan-Zink
Spitzboden: letzte Decke ist Stahlbetondecke und wir mit begehbarer Dämmung belegt
Fenster: Ausführung der Fenster als Kunststofffenster mit Pilzzapfverrieglung, 3-Scheibenverglasung (UG-Wert <0,60 W/(qmK) mit 80mm 5 Kammer Profil, Fensterbänke außen in Aluminium, innen Jura, Marmor oder Kunststoff
Rollladen: Alle Fenster außer Spitzboden erhalten ein Rollo, wärmegedämmter Rolllokasten mit außenliegender Revisionsöffnung
Innenputz: Einlagiger, streichfähiger gefilzter Gips-Zementputz, Kanten mit Eckschutzleisten versehen. Rissgefährdete Bereiche mit Gewebe eingebettet.
Estrich und Fußbodendämmung: Anhydrit-Fliessestrich mit 10cm starker Wärmedämmung. Bituminöse Kaltklebebahn als Feuchtigkeitssperre. Garage erhält einen 4 cm starken Betonestrich im Verbund. Dämmung verringert sich nach Rohrdurchmesser Fußbodenheizung
Türen: CPL Innentüren
Außenputz: mineralischen Leichtputz als Unterputz. Zweite Lage mineralischen durchgefärben Scheibenputz. Sockelputz farblich passend in einer Höhe von 30 und 45 cm. Außenputz zum Abschluss einen farbigen Egalisationsanstrich auf Silikatbasis. Wetterseite mit Gewebespachtelung
Heizung und Warmwasser: 1 Wärmepumpe als Luft-Wasser-Wärmepumpe (Splitgerät)mit Speicher nach Auslegung des Haustyps
Sanitärinstallation: Kalt- und Warmwasser mit Metallverbundrohren ab Wasseruhr. Schmutzwasser- und Entlüftungsleitungen bestehen aus säure- und heißwasserbeständigen Kunststoffrohren mit Putzstücken. Es wird ein Hauswasser Schmutzfilter und Druckminderer eingebaut. Warmwasser wärmedämmend ummantelt. Küche mit Kalt und Warmwasseranschluss sowie Spülmaschinenanschluss. Technikraum Ausgussbecken mit Abfluss, Geruchsverschluss, Kaltwasseranschluss und Schlauchanschluss für die Waschmaschine montiert. Garten mit Außenwasserhahn
Sanitärausstattung: Standardausstattung weiß
Elektroinstallation: Alle Leitungen unter Putz außer Technikraum.
12 Brennstellen
14 Schalter
33 Steckdosen + Herd, Spülmaschine und Waschmaschine
Haustürklingel
Folgende Zusätze zur Bau- und Leistungsbeschreibung
- Fenster außen in RAL Farbe Anthrazit und innen weiß, Garagentor und Tür in Anthrazit
- 1 wärmegedämmte und winddichte Einschubtreppe in den Spitzboden
- Fußbodenheizung in EG und OG (ausser Hauswirtschaftsraum/Technik, Speis und Garage)
- offene Küche mit Durchgang in die Speis (Speis mit Fenster wegen Belüftung)
- Wohn-Essbereich mit 1,01m Glastür in den Dielenbereich mit Lichtband
- Bad OG mit bodengleicher Dusche und Schamwand plus zweiter Waschtisch
- WC im EG mit bodengleicher Dusche, Fenster mit Ornament Verglasung
- Große Fenster im OG
- Spitzboden nicht ausgebaut
- Spitzboden mit begehbarer Dämmung
- Schlafzimmer mit Ankleidenische
- Zusätzlicher kleiner Hauswirtschaftsraum OG
- Treppenhaus mit 1 Stockwerk gerade Holztreppe System Hängetreppe (Material Mosaikverleimung, Stäbe Edelstahl)
- Wärmebedarfsberechnung mit Energieausweis
- Bodenplatte mit zusätzlicher Dämmung darunter mit ca. 12-15 cm Glasschaumschotter
- Potentialausgleich mit 30x3,5 mm verzinkten Flachstahl als Ring in der Bodenplatte mit V4A Fahne aus der Bodenplatte als Rundmaterial
- Bad, WC raumhoch gefliest inkl. Sockel(Materialpreis 30 € inbegriffen)
- Küche, Speis, Diele, Hauswirtschaftsraum/Technik gefliest inkl. Sockel (Materialpreis 30 € inbegriffen)
- 3-fach Verriegelung Kunststoffhaustüre
Weitere Zusätze:
- 6.000€ - 42,5 cm Ziegelmauerwerk ohne Füllung mit Mehrdämmung Bodenplatte
- 4.580 € - Zisterne ca. 6cbm als Beton-Monolithzisterne mit Verzögerungsablauf, zur Gartenbewässerung möglich
- 18.000 € - Zentrale Be- und Entlüftungsanlage mit > 90% Wärmerückgewinnung (mit Enthalpie)
- 26.500 € - Einzelgarage 4mx7,24m, mit Zugang Hauswirtschaftsraum/Technikraum Lichte Rohbaugeschosshöhe EG ca. 2,635m. 1 Sektionaltor mit Funkfernbedienung, 1 Mehrzwecktür und eine Nebeneingangstür aus der Garage, 1 Fenster im EG, Stahlbetondecke über Garage mit flachgeneigtem Satteldach
- 1.280 € - Statik eine Tragwerksplaners lt. Bauordnung für die Baubeginnsanzeige ohne Ausdruck
- 1.900 € - Wind und Sogsicherung der Dacheindeckung
- 5.230 € - Raffstore an den großen Terrassentüren
- 4.750 € - elektrische Rollos bei allen Fenstern (ausser im Wohnzimmer aufgrund von Raffstore)
Zusätzlich würde noch hinzukommen:
Blower Door Test (nötig?)
Grobplanie des Grundstücks (Grundstück ist eben, sollte also nicht allzu viel sein)
Elektromehrausstattung (10.000 €)
Sanitärmehrausstattung (5.000 €)
Bodenbelag ausser Fliesen (10.000 € Vinyl ist geplant - nur Material - Eigenleistung)
Maler-und Tapezierarbeiten ( 7.000 € Material - Eigenleistung)
Außenanlagen (offen)
Hausanschlusskosten und Mehrsparteneinführung und Grabarbeiten für Wasser, Strom, Glasfaser
Verbrauchskosten (Bauwasser und Strom) 8.000 €
Vermessung ca. 1.500 €
Küche ca. 15.000 €
Gesamtkosten um drin zu wohnen (ohne Außenanlagen und Möbel): 56.000 € + 380.000 €= 436.000 €
Sollte ich einzelne Gewerke komplett rausnehmen würden folgenden Preise abgezogen:
Sanitär und Heizung : 37.510 € + die 5.000 Mehrausstattung Sanitär
Elektroarbeiten: 10.080 € + 10.000 € Elektromehrausstattung
Fliesenarbeiten: 9.960 €
Ich würde mich über Tipps, Infos oder auch Kritik freuen. Welche Kosten seht ihr nicht korrekt? Was sagt ihr zu den Leistungen des GU sowie die aufgerufenen Kosten? Wo würdet ihr nachverhandeln? Was habt ihr für die einzelnen Sachen bezahlt?
Ich habe bereits bemerkt, das die zentrale Lüftung (18.000 €) bei mir sehr teuer ist. Dies überlege ich zum Beispiel (falls es nicht billiger angeboten wird) rauszunehmen und anderweitig zu vergeben.
Sollte ich irgendwas vergessen habe, kann ich dies gerne noch vervollständigen.
Viele Grüße
N
nordanney17.03.25 14:34Milka0105 schrieb:
Erdarbeiten: Mutterboden auf dem gesamten Grundstück abgeschoben und seitlich gelagert. Baugrubenaushub Bodenklasse 3-5 wird ebenfalls seitlich gelagertWas passiert später mit dem überschüssigen Mutterboden und Aushub?Milka0105 schrieb:
Bodenplatte: 20 cm starke Stahlbetonbodenplatte aus C20/25 entsprechend den statischen Erfordernissen auf einer Schaumglasschotterschicht.Also noch gar nicht klar, wie viel Erdaushub und wie viel Schotter benötigt werden.Milka0105 schrieb:
Geschossdecke: Stahlbetondecken nach statischen Erfordernissen. Glatt und TapezierfähigGespachtelt oder verputzt?Milka0105 schrieb:
Lichte Rohbaugeschosshöhe 2,63mWelcher Bodenaufbau? Welche fertige Geschosshöhe?Milka0105 schrieb:
innen Jura, Marmor oder KunststoffDeine Wahl oder die des GU? Preislich liegen Welten dazwischen.Milka0105 schrieb:
Sanitärausstattung: Standardausstattung weißBedeutet genau?Milka0105 schrieb:
Die Dachüberstände Giebelseitig 20 cm und traufseitig 50cm. Verkleidet werden diese auf der Traufseite mit Nut- und Federbrettern und auf der Giebelseite mit Ortgangbrettern.Wer übernimmt den Anstrich?Innenputz fehlt komplett - Art und Qualität sind auch relevant
...
Für mich ist das keine Leistungsbeschreibung, sondern eine erste ganz grobe Rechnung.
Wer hat überhaupt die Planung gemacht? Ich lese "Wir". Wer ist das? Wie kommen die Angebot zustande? Gab es eine Ausschreibung oder nur auf Zuruf (= da kommt im Laufe der Verfeinerung bestimmt noch was nach)?
Grundstück. ist das Angebot zunächst mal relativ günstig. Nicht unverschämt, aber unter dem Durchschnitt liegend. Aber es fehlen ja auch noch Posten.
M
Milka010517.03.25 14:59nordanney schrieb:
Was passiert später mit dem überschüssigen Mutterboden und Aushub?Aushub wird wieder verfüllt und Mutterboden auf dem Grundstück verteiltnordanney schrieb:
Also noch gar nicht klar, wie viel Erdaushub und wie viel Schotter benötigt werden.Bodengutachten ist noch nicht erfolgt. Nachbar hat aber ebenfalls mit der Firma gebaut, daran wurde sich orientiert. Kann natürlich anders sein.nordanney schrieb:
Gespachtelt oder verputzt?Soweit ich herauslese, kann diese direkt Tapeziert werden. nordanney schrieb:
Welcher Bodenaufbau? Welche fertige Geschosshöhe?die stellt sich dann heraus, wenn Fußbodenheizung und Estrich sowie Boden verlegt ist. Ist dies schon vorher festzulegen?nordanney schrieb:
Deine Wahl oder die des GU? Preislich liegen Welten dazwischenLt. Bauleistung kann ich die wählen. Den Punkt nehme ich mit. Außen ist sind Aluminium Fensterbänkenordanney schrieb:
Bedeutet genau?Einfache Ausführung, damit kann sicher leben, aber alles Aufputz und jetzt nicht hochwertig. Ich habe die Ausstattung noch nicht gesehen, da gehe ich aber von Aufmusterung aus.- Kristallporzellan Waschtisch ca. 60 CM, Einhebelmischbatterie verchromt
-Waschtisch im EG WC - Kristallporzellan Waschtisch ca. 50 cm, Einhebelmischbatterie verchromt
-Tiefspül Wandhänge WC aus Kristallporzellan mit Unterputzspülkasen sowie Drückergarnitur und WC Sitz in Farbe Weiß
-Körperform Badewanne Größe 170/75 cm aus emailliertem Stahlblech oder Acryl mit Aufputz Wannefüll und Brausebatterie verchromt inkl. Schlauch und Handbrause
-ebenerdige Dusche gefliest EG und OG( hier bereits schon ein Zusatz)
nordanney schrieb:
Wer übernimmt den Anstrich?Streichen würde nochmal 2.400 € kosten. Guter Punkt, Dankenordanney schrieb:
Innenputz fehlt komplett - Art und Qualität sind auch relevantDoch ist dabei, ich habs nochmal angefügt.Innenputz: Einlagiger, streichfähiger gefilzter Gips-Zementputz, Kanten mit Eckschutzleisten versehen. Rissgefährdete Bereiche mit Gewebe eingebettet.
nordanney schrieb:
Wer hat überhaupt die Planung gemacht? Ich lese "Wir". Wer ist das? Wie kommen die Angebot zustande? Gab es eine Ausschreibung oder nur auf Zuruf (= da kommt im Laufe der Verfeinerung bestimmt noch was nach)?Die Planung wurde zusammen mit dem GU gemacht. Es ist eine kleiner Baufirma in der Region in der wir bauen wollen. Diese haben bei den Nachbarn im Neubaugebiet einige Häuser hochgezogen und die Erfahrungen waren soweit positiv. Daher sind auch wir in eine engere Planung gegangen (neben anderen). Jetzt haben wir einen Grundriss der unsere Ansprüche soweit erfüllt und sind halt in die einzelnen Gewerke gegangen. Die Bauleistungsbeschreibung ist nicht so ausführlich wie bei großen Fertighausherstellern. Daher würde ich diese auch nochmal prüfen lassen wollen, weil ich alles ebenfalls sehr allgemein gehalten sehe. Aber es sind wie du sagt, bereits gute Anhaltspunkte und die wollte ich hier einfach mal besprechen.
nordanney schrieb:
Grundstück. ist das Angebot zunächst mal relativ günstig. Nicht unverschämt, aber unter dem Durchschnitt liegend. Aber es fehlen ja auch noch Posten.Der Gesamtpreis an sich ja, einzelne Dinge wie z.B.: Zentrale Lüftung find ich jedoch irgendwie teuer. Da hätte ich eigentlich mit maximal 12.000 € gerechnet. Andere Sachen kann ich jedoch nicht einschätzen. Auch was die einzelnen Gewerke an Gutschriften bringen. Fehlt nach deiner Ansicht noch irgendwas komplett?Das Sanitär und die Elektrik machen Partnerfirmen im Umkreis. Daher ist im Angebot nur der GU Standard drin. Alles andere wird lt. Aussage direkt mit dem Elektriker/Sanitärinstallateur besprochen und dementsprechend dann berechnet. Wird dann halt gegengerechnet.
mit Aufputz Einhebelbrausemischbatterie inkl. Brauseschlauch und Handbrause und Brausestange
N
nordanney17.03.25 15:28Milka0105 schrieb:
Aushub wird wieder verfüllt und Mutterboden auf dem Grundstück verteiltOk. Wohin wieder verfüllt, wenn die 35cbm aus der Grube mit Schotter und Bodenplatte verhüllt sind? Mal eben wieder verfüllen und verteilen funktioniert leider nicht.Milka0105 schrieb:
Soweit ich herauslese, kann diese direkt Tapeziert werden.Bitte nichts interpretieren. Ohne Spachteln oder Verputzen geht gar nichts.Milka0105 schrieb:
die stellt sich dann heraus, wenn Fußbodenheizung und Estrich sowie Boden verlegt ist. Ist dies schon vorher festzulegen?Welt schon nicht schlecht, vorher alles zu wissen. Bevor die Türen (Stürze geben die Höhe vor) dann nur 185cm hoch ist…Oder der endgültige Aufbau höher als die Unterkante der Terrassentür wird.
Ja, es wird alles vorher geplant.
Milka0105 schrieb:
Doch ist dabei, ich habs nochmal angefügt.
Innenputz: Einlagiger, streichfähiger gefilzter Gips-Zementputz, Kanten mit Eckschutzleisten versehen. Rissgefährdete Bereiche mit Gewebe eingebettet.Lass dir eine Qualität in den Vertrag schreiben. Zwischen Q2 und Q4 liegen Welten (vom Arbeitsaufwand, der Qualität und den Kosten). Googel mal danach. Streichfähig ist die Wand auch ohne Putz…
Da Dir Aufmusterung klar ist, muss Dir noch klar werden, dass die Gutschrift immer winzig ist und Sonderwünsche dafür umso teurer (siehe Lüftung).
Ansonsten ist alles drin. Als Überschrift, aber nicht im Detail. Deshalb auch die Anmerkungen von mir.
Du darfst absolut nicht unterstellen. Alles was genannt wird, bekommst du. Was nicht drin steht, fehlt. Kein „ich habe aber gedacht“. Da muss du dann bezahlen. Kann das Dixi Klo sein oder auch die Entsorgung von 35cbm Aushub, denn so nirgendwo auf dem Grundstück los wirst und für mehrere Tausend € entsorgen musst.
M
Milka010517.03.25 15:41nordanney schrieb:
Ok. Wohin wieder verfüllt, wenn die 35cbm aus der Grube mit Schotter und Bodenplatte verhüllt sind? Mal eben wieder verfüllen und verteilen funktioniert leider nicht. Der Rest soll auf dem Grundstück verteilt werden. Aber Punkt nehme ich mit. Dankenordanney schrieb:
Bitte nichts interpretieren. Ohne Spachteln oder Verputzen geht gar nichts.Ich interpretiere nicht. Es steht in der Bauleistungsbeschreibung drin: "Die Deckenuntersicht aus Sichtbeton sind glatt und tapezierfähig. Um kleine Spannungsrisse an den Plattenstößen zu überbrücken sollten alle Decken tapeziert werden."nordanney schrieb:
Welt schon nicht schlecht, vorher alles zu wissen. Bevor die Türen (Stürze geben die Höhe vor) dann nur 185cm hoch ist…
Oder der endgültige Aufbau höher als die Unterkante der Terrassentür wird.
Ja, es wird alles vorher geplant.Ok, diesen Punkt habe ich nicht bisher. Muss ich dann klären.nordanney schrieb:
Lass dir eine Qualität in den Vertrag schreiben. Zwischen Q2 und Q4 liegen Welten (vom Arbeitsaufwand, der Qualität und den Kosten). Googel mal danach.
Streichfähig ist die Wand auch ohne Putz…Das Haus wird tapeziert. Dort wird kein Putz stattfinden mit Q3 oder Q4. Ich nehme an es ist Q1 bzw. so das es tapezierfähig ist. Nehme ich aber mit zum klären. Dankenordanney schrieb:
Ansonsten ist alles drin. Als Überschrift, aber nicht im Detail. Deshalb auch die Anmerkungen von mir.
Du darfst absolut nicht unterstellen. Alles was genannt wird, bekommst du. Was nicht drin steht, fehlt. Kein „ich habe aber gedacht“. Da muss du dann bezahlen. Kann das Dixi Klo sein oder auch die Entsorgung von 35cbm Aushub, denn so nirgendwo auf dem Grundstück los wirst und für mehrere Tausend € entsorgen musst.Also dann nochmal alles im Detail ausformulieren lassen. Mal sehen wie der GU darauf reagiert. Aber klar. Einige Dinge sollten nochmal klargestellt werden.Danke für deine Antworten
N
nordanney17.03.25 16:33Milka0105 schrieb:
Ich interpretiere nicht. Es steht in der Bauleistungsbeschreibung drin: "Die Deckenuntersicht aus Sichtbeton sind glatt und tapezierfähig.Man kann alles tapezieren. Ist die Frage, wie es aussieht. Also konkret werden. Entweder gespachtelt+ tapezierfertig oder verputzt + tapezierfertig.So sehen die Stöße bei Filigrandecken aus. Das lässt sich nicht vermeiden.
Milka0105 schrieb:
Ich nehme anIch will nur darauf hinaus, dass Du so etwas NIE WIEDER sagst. Zwinker.Will Dich nicht nerven. Aber mit schlecht formulierten Baubeschreibungen sind schon viele Privatinsolvenzen oder Baudebakel gestartet. Deshalb lieber 5x fragen und in dann konkret in den Vertrag aufnehmen als 1x annehmen und am Ende kommt der Nachtrag.
Nicht bei jedem GU bedeutet eine schlechte Ausformulierung, dass Du baden gehst. Manche sind einfach klein und hemdsärmelig und machen einen guten Job. Andere eben nicht.
Gerne weiter fragen.
Ähnliche Themen