Hallo zusammen!
Nachdem in ein Paar Wochen der Bau losgeht, wir durch die Angebote aber beschlossen haben, das Haus bisschen kompakter zu gestalten, sind wir nun dabei unser Bad zu planen.
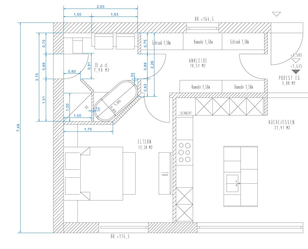
Das ist bei uns deswegen jetzt schon so wichtig, da das Bad im EG liegt. Es gibt keinen Keller, weshalb wir das für die Grundleitungen jetzt schon fix machen müssen.
Anforderungen:
Wir wollen ein Vollwertiges Bad, mit am besten 2 Waschtischen, WC, Badewanne und ner bodentiefen (gemauerten) Dusche, ohne Glas.
Die Linke Türe soll ein Zugang zum Garten sein.
Ein Zugang vom Schlafzimmer aus ist nicht erwünscht, das Bad soll weiterhin über die Ankleide erschlossen werden.
Die 45° würde sich in dem Fall nahezu aufdrängen, da der Zugang zum Schlafzimmer dadurch nicht so eng und dunkel, zeitgleich der Platz hinter der Badewanne allerdings nicht benötigt wird. Ein Verschieben der Schlafzimmer-Türe nach Planunten in Höhe der Badezimmerwand ist auch nicht möglich, weil wir die Wand dort als Auflieger brauchen (andernfalls wird ein Unterzug mit Stahlträger notwendig).
Das Bad dient hauptsächlich mir und meiner Frau, die Kinder haben ein eigenes Bad.
Was haltet ihr von der Idee? Mein Architekt meinte, er könne sich das nur vorstellen, wenn die Schräge wand bei der Dusche aus Glas wäre.
Reichen die 5,5cm von der Badewanne zur Türe aus?
Muss ich Angst haben, beim Duschen den Bereich beim WC immer unter Wasser zu setzen, oder sollte das klappen? Wenn es nur bisschen raus tropft, was ja wahrscheinlich ist, wär das für uns ok.
Habt ihr Vorlauf noch ganz andere Ideen? Die Rohbaumaße wären momentan ziemlich genau 2,63m x 3,15m, die Position der Gartentür ist völlig flexibel (auch planoben möglich), die Türe von der Ankleide zum Bad könnte lediglich noch ein bisschen nach planunten geschoben werden.
Vielen Dank schonmal für eure Hilfe und Ideen! 🙂
Grüße Mathias

Nachdem in ein Paar Wochen der Bau losgeht, wir durch die Angebote aber beschlossen haben, das Haus bisschen kompakter zu gestalten, sind wir nun dabei unser Bad zu planen.
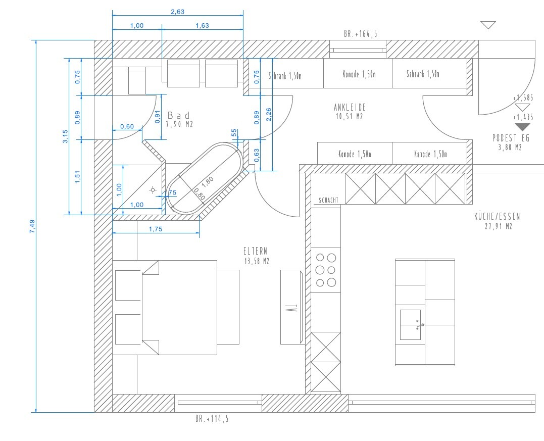
Das ist bei uns deswegen jetzt schon so wichtig, da das Bad im EG liegt. Es gibt keinen Keller, weshalb wir das für die Grundleitungen jetzt schon fix machen müssen.
Anforderungen:
Wir wollen ein Vollwertiges Bad, mit am besten 2 Waschtischen, WC, Badewanne und ner bodentiefen (gemauerten) Dusche, ohne Glas.
Die Linke Türe soll ein Zugang zum Garten sein.
Ein Zugang vom Schlafzimmer aus ist nicht erwünscht, das Bad soll weiterhin über die Ankleide erschlossen werden.
Die 45° würde sich in dem Fall nahezu aufdrängen, da der Zugang zum Schlafzimmer dadurch nicht so eng und dunkel, zeitgleich der Platz hinter der Badewanne allerdings nicht benötigt wird. Ein Verschieben der Schlafzimmer-Türe nach Planunten in Höhe der Badezimmerwand ist auch nicht möglich, weil wir die Wand dort als Auflieger brauchen (andernfalls wird ein Unterzug mit Stahlträger notwendig).
Das Bad dient hauptsächlich mir und meiner Frau, die Kinder haben ein eigenes Bad.
Was haltet ihr von der Idee? Mein Architekt meinte, er könne sich das nur vorstellen, wenn die Schräge wand bei der Dusche aus Glas wäre.
Reichen die 5,5cm von der Badewanne zur Türe aus?
Muss ich Angst haben, beim Duschen den Bereich beim WC immer unter Wasser zu setzen, oder sollte das klappen? Wenn es nur bisschen raus tropft, was ja wahrscheinlich ist, wär das für uns ok.
Habt ihr Vorlauf noch ganz andere Ideen? Die Rohbaumaße wären momentan ziemlich genau 2,63m x 3,15m, die Position der Gartentür ist völlig flexibel (auch planoben möglich), die Türe von der Ankleide zum Bad könnte lediglich noch ein bisschen nach planunten geschoben werden.
Vielen Dank schonmal für eure Hilfe und Ideen! 🙂
Grüße Mathias
Da sitzt einer entspannt am Klo, ein anderer kommt fröhlich aus dem Garten und zack --> Kniescheiben hinüber.
Imho ist das einfach viel zu viel für so ein kleines Bad.
Zwei Türen, zwei waschbecken, Badewanne und auch noch eine gemauerte Dusche...
Entweder der Raum muss deutlich vergrößert oder die Möblierung deutlich reduziert werden.
Ich würde den Architekten bitten das Gesamtkonzept im Erdgeschoss nochmal neu anzugehen. 10m² Ankleide und dafür ein vollgestopftes Mini-Bad, das passt für mich nicht.
Was soll die schräge Wand hinter der Wanne? macht das Bad noch kleiner und nützt im Schlafzimmer auch nicht viel.
Imho ist das einfach viel zu viel für so ein kleines Bad.
Zwei Türen, zwei waschbecken, Badewanne und auch noch eine gemauerte Dusche...
Entweder der Raum muss deutlich vergrößert oder die Möblierung deutlich reduziert werden.
Ich würde den Architekten bitten das Gesamtkonzept im Erdgeschoss nochmal neu anzugehen. 10m² Ankleide und dafür ein vollgestopftes Mini-Bad, das passt für mich nicht.
Was soll die schräge Wand hinter der Wanne? macht das Bad noch kleiner und nützt im Schlafzimmer auch nicht viel.
Ich würde auch die schräge Wand begradigen und den Zugang zum Schlafzimmer verkleinern. Diese Fläche bringt Euch gar nichts.
Eine Walkin Dusche ohne Glastür verbraucht doppelt so viel an Platz als eine normale, zwei Waschbecken doppelt so viel wie eins (Zähneputzen geht auch an einem), außerdem 2 Türen...
Ich finde einen Ausgang in den Garten klasse, aber ihr versucht, alle Nice-to-Haves in einen kleinen Raum zu quetschen, ohne mal darüber nachzudenken, ob es nicht dann doch zu übermöbliert wirkt.
Ich hab mal hin und her gezeichnet und komme zu keiner befriedigenden Lösung.
Eventuell eine Dusche mit Tür, eine asymmetrische kleinere Wanne und/oder nur ein Waschtisch (von mir aus auch etwas länger) plus Wegnahme der schrägen Wand - dann wird das Ganze entspannter 🙂
In aller Kürze Grüsse
Eine Walkin Dusche ohne Glastür verbraucht doppelt so viel an Platz als eine normale, zwei Waschbecken doppelt so viel wie eins (Zähneputzen geht auch an einem), außerdem 2 Türen...
Ich finde einen Ausgang in den Garten klasse, aber ihr versucht, alle Nice-to-Haves in einen kleinen Raum zu quetschen, ohne mal darüber nachzudenken, ob es nicht dann doch zu übermöbliert wirkt.
Ich hab mal hin und her gezeichnet und komme zu keiner befriedigenden Lösung.
Eventuell eine Dusche mit Tür, eine asymmetrische kleinere Wanne und/oder nur ein Waschtisch (von mir aus auch etwas länger) plus Wegnahme der schrägen Wand - dann wird das Ganze entspannter 🙂
In aller Kürze Grüsse
Im Plan läßt diese Lösung das Ingenieursherz höher schlagen, so schön kompakt verpackt alles untergebracht. In der Praxis sieht es leider aus genau demselben Grund fürchterlich aus: zur Körperpflege reicht die Dusche. Wer sich in die Wanne setzt, will es gemütlicher - aber für Raumgefühl ist "Weite" eine unentbehrliche Zutat. Ent oder weder, Zopf oder kahl, da wird man sich entscheiden müssen. So eingepfercht wird das nix.
https://www.instagram.com/11antgmxde/
https://www.linkedin.com/company/bauen-jetzt/
https://www.instagram.com/11antgmxde/
https://www.linkedin.com/company/bauen-jetzt/
K
Knallkörper17.02.17 16:25Hinzufügen möchte ich:
1. Die Dusche ist zu dunkel
2. Wenn einer am Waschtisch steht, ist die Tür blockiert
3. Die Badewanne kann nicht so eng eingebaut werden wie gezeichnet
4. Ihr habt noch mit Rohbau maßen gerechnet. Putz + Fliese + Kleber können gern mal 3,5 cm sein.
Lasst die Wanne weg und bestellt euch beim Glaser eine normale Duschtrennwand.
1. Die Dusche ist zu dunkel
2. Wenn einer am Waschtisch steht, ist die Tür blockiert
3. Die Badewanne kann nicht so eng eingebaut werden wie gezeichnet
4. Ihr habt noch mit Rohbau maßen gerechnet. Putz + Fliese + Kleber können gern mal 3,5 cm sein.
Lasst die Wanne weg und bestellt euch beim Glaser eine normale Duschtrennwand.
Ähnliche Themen