160 qm Hanghaus / Grundrissoptimierung

4,80 Stern(e) 6 Votes
Zuletzt aktualisiert 11.10.2025
Sie befinden sich auf der Seite 2 der Diskussion zum Thema: 160 qm Hanghaus / Grundrissoptimierung
>> Zum 1. Beitrag <<

A

agSchuh

Ein netter Entwurf für eine kleine Familie, die ohne viel "Kram" leben kann, denn Stauraum ist begrenzt. Ich finde das gut und lebe in unserem Haus seit rund 1,5 Jahren ebenfalls mit begrenztem Stauraum. Es tut uns gut, sich nicht mit Zeug zu überhäufen. Mir gefällt der recht private Bereich für das Kind - je selbständiger die werden, desto besser ist so eine Konstellation. Ich kann mir vorstellen, dass ein "Stadtvilla-Hütchen" dem Haus wenig steht. Ein leicht geneigtes Pultdach, welches zur Südseite eine höhere Deckenhöhe mit sich bringt könnte dem Haus einen besonderen Pep bringen. Da kann man dann auch mit hohen Lichtbändern spielen. Bei dem Haus kann ich mir auch sehr gut eine etwas erhöhte Attika und Flachdach mit nicht einsehbarer Photovoltaikanlage mit Ost-Erst Ausrichtung vorstellen.
Hier noch ein paar Überlegungen:
  • Der Eingang - Flur hat sehr viele qm und dennoch wenig Platz für eine Garderobe. --> hohe Baukosten für wenig Nutzwert.
  • Den Wohnbereich würde ich überdenken - warum wollt Ihr mit dem Rücken zum Fenster sitzen - zumal es einen TV-Raum gibt. Lieber in den Garten als vor einen Schrank gucken.
  • Überlegt ein weiteres Fenster in den Wohnraum zu bauen, Licht kann man nicht genug haben und an sehr sonnigen Tagen aussperren. Mittlere Scheibe im Wohnzimmer ggfs. ebenfalls als durchschreitbare Öffnung zum Garten vorsehen - viel Frischluft ist an vielen Monaten im Jahr ein Beitrag zur Lebensqualität. Instinktiv wäre das auch der Ort, an dem die "Rennwege" am häufigsten nach draußen führen werden.
  • Ein Fensterband über dem Bett gibt Morgensonne.
  • Möbliert mal das Gästezimmer um festzustellen wie man am Bett vorbei in den Technikraum kommt. Ich würde den Zugang zum Technikraum ggfs. ebenfalls von draußen (direkt oder durch den Abstellraum) machen. Aus Erfahrung kann ich sagen, dass das kein praktischer Nachteil ist.
  • Wer nutzt den Fernsehraum? Bei einem Teenager könnte das zur Schlafenszeit Geräuschkonflikte mit sich bringen.

Ein Pultdach fände ich auch sehr schön, möchte mein Freund jedoch nicht.
Dieses TV-Zimmer ist eher als "Bundesliga/Fussball-Zimmer" gedacht. War ein kleiner Kompromiss den ich eingehen musste :D. Bei Bedarf könnte man da auch das Sofa ausziehen, damit Besuch dort schlafen kann. Das untere Gästezimmer soll eher als Büro oder Bügelzimmer dienen.
 
H

haydee

Habt ihr ein Kind beplant oder ist das Kinderzimmer halt übrig.
Fall ihr ein Kind geplant habt, finde ich das es unpraktisch liegt.
und würde es mit dem TV Zimmer planen - sprich dass die Türe im Privatbereich liegt.
Immer am Eingang im Schlafanzug vorbei ist nicht so schön.

Den Rest haben die anderen schon aufgeführt und kann mich dem nur anschließen
 
A

agSchuh

Habt ihr ein Kind beplant oder ist das Kinderzimmer halt übrig.
Fall ihr ein Kind geplant habt, finde ich das es unpraktisch liegt.
und würde es mit dem TV Zimmer planen - sprich dass die Türe im Privatbereich liegt.
Immer am Eingang im Schlafanzug vorbei ist nicht so schön.

Den Rest haben die anderen schon aufgeführt und kann mich dem nur anschließen
Ja, ein Kind ist geplant. Je öfters ich mir den Grundriss nun angucke, desto weniger weiß ich wie ich das ummodellierten soll
 
11ant

11ant

Mir fehlen Ansichten / Höhenlinien / Höhenpunkte. Den Vorschlag der Schrägecke für mehr Flurdurchgang würde ich annehmen. Die Garagen-Zwischentür ließe ich weg. Wenngleich die Flächengrößen andere sind, würde ich Gast und Sportschauzimmer tauschen. Was genau hat der Herr des Hauses gegen den Pultdachvorschlag einzuwenden ?
Aber ist es nicht komisch, wenn der Treppenantritt quasi mitten im Raum ist?
Den zurückversetzten Eingang haben wir gewählt, damit das Haus von außen etwas „besonderes“, „aufgelockertes“ hat. Dieser wird auch farblich abgesetzt
Wendele die Treppe, wo das Podest eingezeichnet ist. Dann wird sie etwa drei Auftritte "kürzer". Das Haus wird gewiß auch ohne Smokey Eyes oder dergleichen um die Haustür nicht langweilig.
 
Y

ypg

Ich gebe den meisten hier recht mit den Einwänden: Kind außen vor, Garderobe mit der Treppe unharmonisch, unten wirkt es sehr verkrampft
...
Was ich toll finde, dass Ihr gleich mit dem Geländeverlauf und dem Hang geplant habt. Das ist doch schonmal der beste Weg, mit dem Haus und Garten das Leben zu geniessen. Viele vergessen den Garten und planen nur einen Balkon im OG...
Je öfters ich mir den Grundriss nun angucke, desto weniger weiß ich wie ich das ummodellierten soll
Ich würde gern etwas probieren. Aber Deine eingestellten Fotos scheinen nichts mehr als Screenshots zu sein: ich bekomme am Bildschirm im separaten Fenster keine Zahl richtig zu lesen. Magst Du nochmal alles in gösserer Qualität einstellen?
 
A

agSchuh

Ich gebe den meisten hier recht mit den Einwänden: Kind außen vor, Garderobe mit der Treppe unharmonisch, unten wirkt es sehr verkrampft
...
Was ich toll finde, dass Ihr gleich mit dem Geländeverlauf und dem Hang geplant habt. Das ist doch schonmal der beste Weg, mit dem Haus und Garten das Leben zu geniessen. Viele vergessen den Garten und planen nur einen Balkon im OG...

Ich würde gern etwas probieren. Aber Deine eingestellten Fotos scheinen nichts mehr als Screenshots zu sein: ich bekomme am Bildschirm im separaten Fenster keine Zahl richtig zu lesen. Magst Du nochmal alles in gösserer Qualität einstellen?
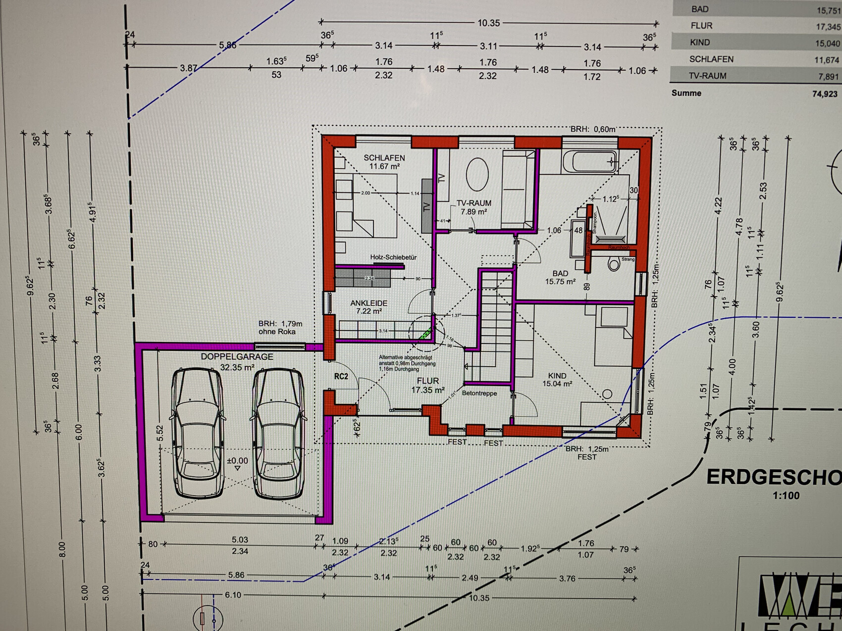
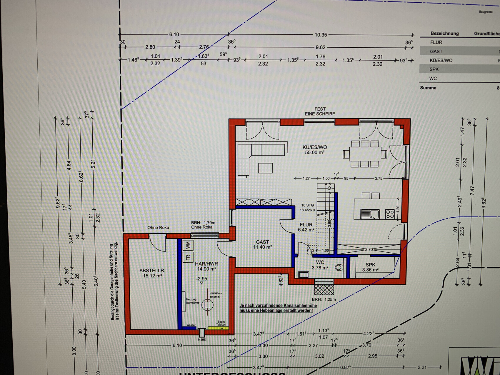
Ist es so besser ?


Erdgeschoss-Grundriss mit Doppelgarage, Flur, Schlafzimmer, Ankleide, Bad, Kinderzimmer, TV-Raum.

Grundriss eines Hauses: Küche, Essbereich, Wohnzimmer, Flur, WC, Gästezimmer, Abstellraum.
 
Zuletzt aktualisiert 11.10.2025
Im Forum Grundrissplanung / Grundstücksplanung gibt es 2513 Themen mit insgesamt 87263 Beiträgen


Ähnliche Themen zu 160 qm Hanghaus / Grundrissoptimierung
Nr.ErgebnisBeiträge
1Estrich in 4 Zimmer 1,5-2cm zu hoch. 13
2Grundrissplanung Stadthaus 150qm mit Satteldach 6 Zimmer - Seite 19150
3Wie Hang sichern und Aufgang Garten kostengünstig gestalten? 27
4Stadtvilla 190m² mit Einfahrt & Garten zur Südseite 30
5Garten an Hanglage sinnvoll gestalten 57
6Stadtvilla mit ca. 200qm - ohne Keller. Bitte um Feedback - Seite 350
7OG Zimmer ausbauen - Genehmigung notwendig? 10
8Aufteilung?! Kleines Zimmer / starke Schräge / Heizkörper 61
9Zimmer riecht nach Marihuana oder Haschisch - Seite 10121
10Parkett von Flur in Zimmer durchlegen 17
11Wohin mit der Treppe? Dachausbau Walmdachbungalow - Seite 219
12Treppe im Flur, Grundriss steht eigentlich schon :o( 20
13Was ist bei einer Treppe beachten/Unterschie Wendeluing 22
14Grundrissfrage, Treppe, Fenster, Ausrichtung 12
15 2 Vollgeschosse, Durchgang Garage, Hauswirtschaftsraum unter Treppe 25
16Frage zu Grundriss, insbesondere Treppe 13
17"notwendige Treppe" zum Dachgeschoss - Seite 423
18Treppe Grundriss Planung, Auftritt und Unterzug 21
19Grundrissfrage, Garage, Treppe 33
20Technikraum so klein wie möglich - Unter der Treppe? 10

Oben