V
voicepoint15.02.20 21:00Hallo Zusammen!
Zuerst der Pflichtteil:
Bebauungsplan/Einschränkungen
Größe des Grundstücks 800 qm
Hang Ja, steil
Grundflächenzahl 0,3
Geschossflächenzahl 0,6
Anzahl Stellplatz 1
Geschossigkeit KG+EG+OG
Dachform Sattel, 40° ohne Gauben
Stilrichtung modern
Ausrichtung Südlich
Maximale Höhen/Begrenzungen keine bekannt
weitere Vorgaben der Bebauungsplan ist sehr alt, deswegen wenig Vorgaben.
Anforderungen der Bauherren
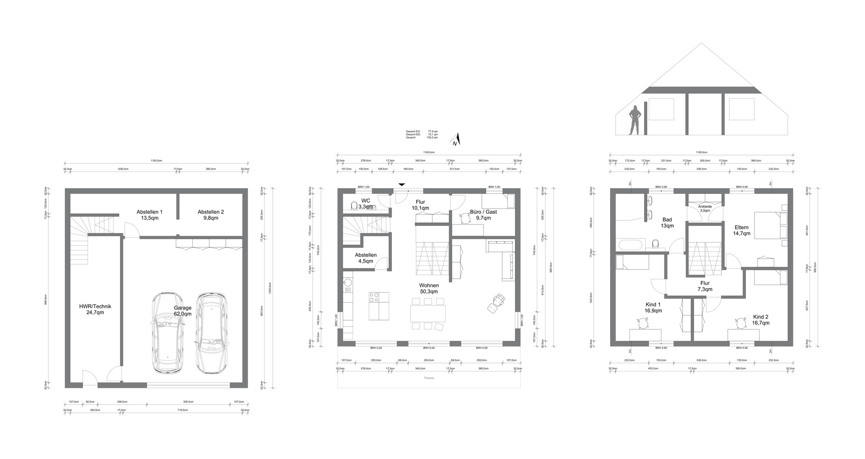
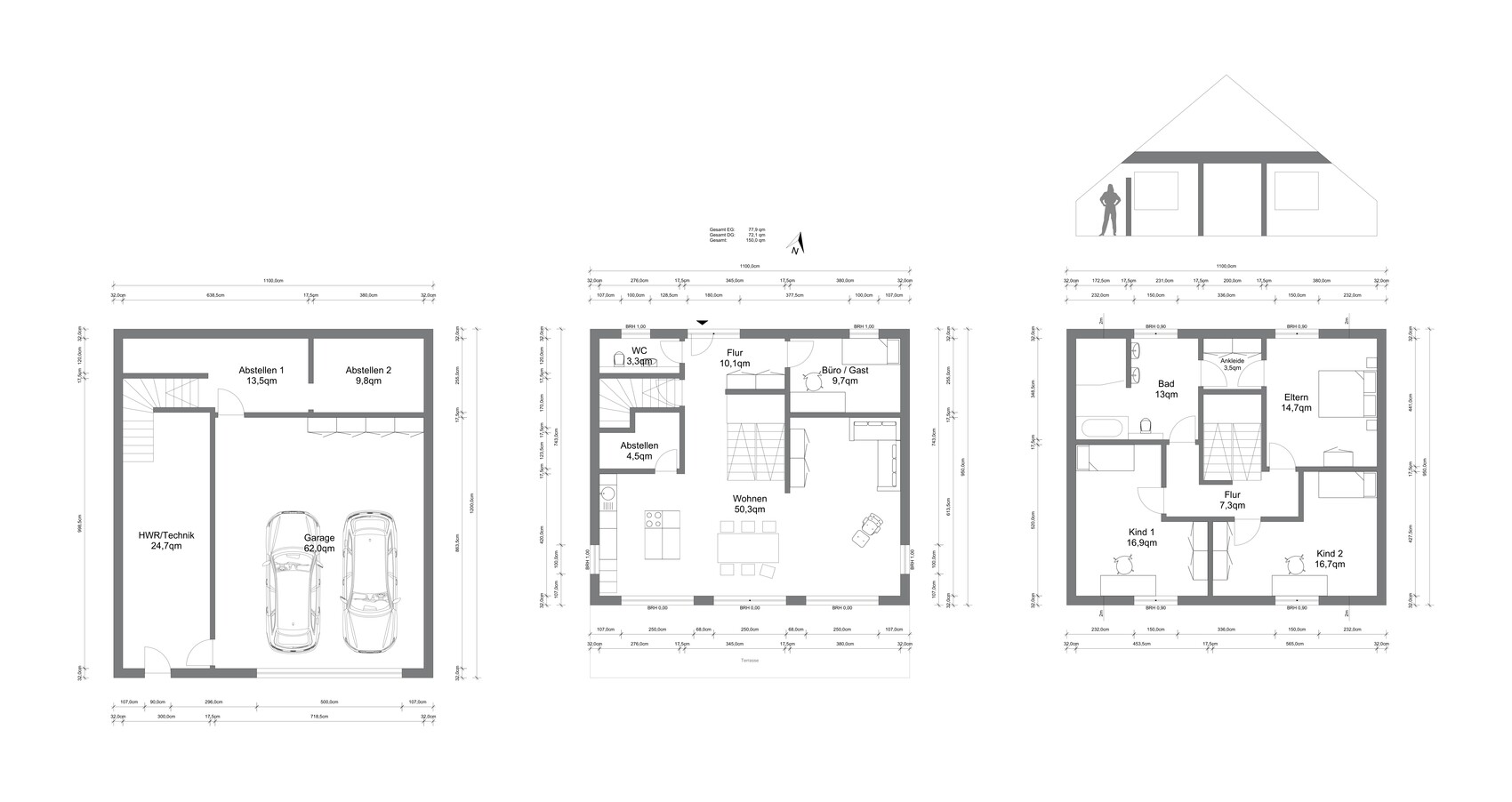
Stilrichtung, Dachform, Gebäudetyp einfaches Gebäude mit Satteldach, Kniestock 120cm
Keller, Geschosse Keller vorgezogen als Terrasse
Anzahl der Personen, Alter 2 Erwachsene + 2 geplante Kinder
Büro: Familiennutzung oder Homeoffice? wird wenig genutzt
Schlafgäste pro Jahr 3 (die gerne unser Badezimmer mitbenutzen dürfen)
offene oder geschlossene Architektur offen
konservativ oder moderne Bauweise modern
offene Küche, Kochinsel ja & ja
Anzahl Essplätze 6
Kamin nein
Musik/Stereowand ja, im Wohnzimmer
Balkon, Dachterrasse Terrasse auf vorgezogenem Keller
Garage, Carport Garage im Keller
Nutzgarten, Treibhaus ja, bereits vorhanden
weitere Wünsche/Besonderheiten/Tagesablauf, gern auch Begründungen, warum dieses oder das nicht sein soll ja, der Eingang ist auf der Rückseite des Hauses. Wir möchten keine Fläche, die nach Süden zeigt für den Eingang verschwenden und auch den Eingang im EG und nicht im KG haben.
Der Keller ist bewusst ohne Fenster geplant, im Hauswirtschaftsraum könnte eine Tür mit Glaselement eingesetzt werden. Wenn das Grundstück keinen Hang hätte, würden wir auch ohne Keller bauen. So nutzen wir ihn hauptsächlich als Garage. Kellerthema kommt aber noch mal. Fenster zu den Seiten sind wenig, da man hier nur auf das jeweilige Nachbargebäude schauen würde.
Hausentwurf
Von wem stammt die Planung: von uns, selbst gezeichnet
Was gefällt besonders? Warum? offener Wohnbereich, große Fenster Richtung Süden
Was gefällt nicht? Warum? Tiefe des Kellers, siehe unten
Preisschätzung lt Architekt/Planer: da waren wir noch nicht
Persönliches Preislimit fürs Haus, inkl Ausstattung und Abriss: 350.000€
favorisierte Heiztechnik: Wärmepumpe, wenn es das Budget am Ende zulässt, gerne mit Tiefenbohrung
Noch kurz zur Bauweise / Budget:
- Keller als Fertigkeller
- Haus in Holzständer-Bauweise
- Dachpfannen sollen vom Bestandsgebäude genommen werden, das Dach wurde erst letztes Jahr erneuert
- Elektro (bis auf Hausanschluss und Zählerschrank) in EL, es soll ein Loxone System werden, viele Komponenten sind schon vorhanden
- Photovoltaik mit Speicher in EL, wenn sich das mit der Förderung vereinbaren lässt.
- Böden und Malerarbeiten in EL
- Treppe EG-OG in EL
- Sanitär, zentrale Lüftung und Heizung in Eigenvergabe
- Bad + WC in EL
- Jalousien/Raffstores höchstens als Sonnenschutz, nach Norden besteht kein Bedarf
- wir möchten keine goldenen Wasserhähne, aber auch keine "Standard-Ware" vom Fertighaus-Hersteller mit 200% Aufschlag verkauft bekommen
Baunebenkosten können gering gehalten werden, das Grundstück ist bereits im Familienbesitz, Baustrom und -Wasser kann von den Nachbarn bereit gestellt werden.
Abrisskosten wurden auf ca. 20.000€ vom Anbieter geschätzt.
Unser gewünschter Hausanbieter baut im KFW40 Standard, mit Photovoltaik könnten wir KFW40+ erreichen.
Wenn Ihr verzichten müsst, auf welche Details/Ausbauten
-könnt Ihr verzichten: Größe des Kellers
-könnt Ihr nicht verzichten: Große Fenster + Terrasse nach Süden, Photovoltaik da Wärmepumpe gewünscht und E-Auto vorhanden
Warum ist der Entwurf so geworden, wie er jetzt ist?
Auf dem Grundstück steht aktuell noch ein Bestandsgebäude aus der Nachkriegszeit. Dieses soll abgerissen werden. Die Grundfläche des Hauses lässt sich nicht sehr viel verändern, da das Grundstück recht schmal und hanglagig ist. Beim Abriss würde sich automatisch die passende Baugrube ergeben. Wir möchten sowohl den Ausblick nach Süden (kann nicht mehr verbaut werden, hier geht nur eine schmale Straße in eine Sackgasse vor dem Haus her), als auch den Ausblick nach Norden in den Garten mit angeschlossenem Wald nutzen.
Was ist die wichtigste/grundlegende Frage zum Grundriss in 130 Zeichen zusammengefasst?
Was lässt sich optimieren? Die letzten Meter des Kellers zum Hang hin (hinter der Treppe) sind eigentlich für uns überflüssig. Würde es finanziell Sinn machen, den Keller zu verkürzen und nur die Kellerdecke ein Stück länger zu machen? Vom Abriss bleibt natürlich auch Material über, welches hier eventuell zum Verfüllen genutzt werden könnte (wird direkt vor Ort gebrochen), und so nicht mehr teuer entsorgt werden müsste?
Welchen Architekten sollen wir am Besten beauftragen? Haus vom Anbieter planen lassen oder eigenen Architekten wählen und z.B. den Keller selbst ausschreiben?
Budget realistisch?
Wir freuen uns über Eure Anregungen!
Viele Grüße
Noel


Zuerst der Pflichtteil:
Bebauungsplan/Einschränkungen
Größe des Grundstücks 800 qm
Hang Ja, steil
Grundflächenzahl 0,3
Geschossflächenzahl 0,6
Anzahl Stellplatz 1
Geschossigkeit KG+EG+OG
Dachform Sattel, 40° ohne Gauben
Stilrichtung modern
Ausrichtung Südlich
Maximale Höhen/Begrenzungen keine bekannt
weitere Vorgaben der Bebauungsplan ist sehr alt, deswegen wenig Vorgaben.
Anforderungen der Bauherren
Stilrichtung, Dachform, Gebäudetyp einfaches Gebäude mit Satteldach, Kniestock 120cm
Keller, Geschosse Keller vorgezogen als Terrasse
Anzahl der Personen, Alter 2 Erwachsene + 2 geplante Kinder
Büro: Familiennutzung oder Homeoffice? wird wenig genutzt
Schlafgäste pro Jahr 3 (die gerne unser Badezimmer mitbenutzen dürfen)
offene oder geschlossene Architektur offen
konservativ oder moderne Bauweise modern
offene Küche, Kochinsel ja & ja
Anzahl Essplätze 6
Kamin nein
Musik/Stereowand ja, im Wohnzimmer
Balkon, Dachterrasse Terrasse auf vorgezogenem Keller
Garage, Carport Garage im Keller
Nutzgarten, Treibhaus ja, bereits vorhanden
weitere Wünsche/Besonderheiten/Tagesablauf, gern auch Begründungen, warum dieses oder das nicht sein soll ja, der Eingang ist auf der Rückseite des Hauses. Wir möchten keine Fläche, die nach Süden zeigt für den Eingang verschwenden und auch den Eingang im EG und nicht im KG haben.
Der Keller ist bewusst ohne Fenster geplant, im Hauswirtschaftsraum könnte eine Tür mit Glaselement eingesetzt werden. Wenn das Grundstück keinen Hang hätte, würden wir auch ohne Keller bauen. So nutzen wir ihn hauptsächlich als Garage. Kellerthema kommt aber noch mal. Fenster zu den Seiten sind wenig, da man hier nur auf das jeweilige Nachbargebäude schauen würde.
Hausentwurf
Von wem stammt die Planung: von uns, selbst gezeichnet
Was gefällt besonders? Warum? offener Wohnbereich, große Fenster Richtung Süden
Was gefällt nicht? Warum? Tiefe des Kellers, siehe unten
Preisschätzung lt Architekt/Planer: da waren wir noch nicht
Persönliches Preislimit fürs Haus, inkl Ausstattung und Abriss: 350.000€
favorisierte Heiztechnik: Wärmepumpe, wenn es das Budget am Ende zulässt, gerne mit Tiefenbohrung
Noch kurz zur Bauweise / Budget:
- Keller als Fertigkeller
- Haus in Holzständer-Bauweise
- Dachpfannen sollen vom Bestandsgebäude genommen werden, das Dach wurde erst letztes Jahr erneuert
- Elektro (bis auf Hausanschluss und Zählerschrank) in EL, es soll ein Loxone System werden, viele Komponenten sind schon vorhanden
- Photovoltaik mit Speicher in EL, wenn sich das mit der Förderung vereinbaren lässt.
- Böden und Malerarbeiten in EL
- Treppe EG-OG in EL
- Sanitär, zentrale Lüftung und Heizung in Eigenvergabe
- Bad + WC in EL
- Jalousien/Raffstores höchstens als Sonnenschutz, nach Norden besteht kein Bedarf
- wir möchten keine goldenen Wasserhähne, aber auch keine "Standard-Ware" vom Fertighaus-Hersteller mit 200% Aufschlag verkauft bekommen
Baunebenkosten können gering gehalten werden, das Grundstück ist bereits im Familienbesitz, Baustrom und -Wasser kann von den Nachbarn bereit gestellt werden.
Abrisskosten wurden auf ca. 20.000€ vom Anbieter geschätzt.
Unser gewünschter Hausanbieter baut im KFW40 Standard, mit Photovoltaik könnten wir KFW40+ erreichen.
Wenn Ihr verzichten müsst, auf welche Details/Ausbauten
-könnt Ihr verzichten: Größe des Kellers
-könnt Ihr nicht verzichten: Große Fenster + Terrasse nach Süden, Photovoltaik da Wärmepumpe gewünscht und E-Auto vorhanden
Warum ist der Entwurf so geworden, wie er jetzt ist?
Auf dem Grundstück steht aktuell noch ein Bestandsgebäude aus der Nachkriegszeit. Dieses soll abgerissen werden. Die Grundfläche des Hauses lässt sich nicht sehr viel verändern, da das Grundstück recht schmal und hanglagig ist. Beim Abriss würde sich automatisch die passende Baugrube ergeben. Wir möchten sowohl den Ausblick nach Süden (kann nicht mehr verbaut werden, hier geht nur eine schmale Straße in eine Sackgasse vor dem Haus her), als auch den Ausblick nach Norden in den Garten mit angeschlossenem Wald nutzen.
Was ist die wichtigste/grundlegende Frage zum Grundriss in 130 Zeichen zusammengefasst?
Was lässt sich optimieren? Die letzten Meter des Kellers zum Hang hin (hinter der Treppe) sind eigentlich für uns überflüssig. Würde es finanziell Sinn machen, den Keller zu verkürzen und nur die Kellerdecke ein Stück länger zu machen? Vom Abriss bleibt natürlich auch Material über, welches hier eventuell zum Verfüllen genutzt werden könnte (wird direkt vor Ort gebrochen), und so nicht mehr teuer entsorgt werden müsste?
Welchen Architekten sollen wir am Besten beauftragen? Haus vom Anbieter planen lassen oder eigenen Architekten wählen und z.B. den Keller selbst ausschreiben?
Budget realistisch?
Wir freuen uns über Eure Anregungen!
Viele Grüße
Noel
Was ist alles im Budget dabei?
Im Endeffekt wollt ihr ein Ausbauhaus bauen. Der Innenausbau erfolgt komplett in EL oder durch Eigenvergabe. Habe ich das richtig verstanden?
Hast du genug Helfer mit Fachkenntnissen. Das ist nicht in 20 Wochenenden und 14 Tage Urlaub erledigt.
Ich würde mit einer regionalen, Stein- auf Stein Firma bauen. Die Erledigen die Erdarbeiten etc. gleich mit.
Großes Fragezeichen ist der Statiker und unter Umständen der Geologe. Die beiden haben uns fünfstellige Zusatzkosten aufgebrummt.
Hast du genauere Höhenangaben?
Abbruch
Brechen soll günstiger als Entsorgung sein? Selbst bei unseren Mengen haben alle abgewunken, brechen sei zu teuer. Nur einer hat mir angeboten und der war teuer.
Wo wollt ihr das Material einbauen, wenn ihr die alte Baugrube nutzen wollt?
Willst du das Material ungeprüft auf dem Grundstück belassen?
Nachkriegsbaumaterial ist nicht ohne -zumindest da waren sich die Abbruchfirmen einig. Da wurde was da war zu Stein verbacken und könnte Schadstoffbelasteter sein, als der uralte Ammoniak verseuchte Kuhstall.
Im Endeffekt wollt ihr ein Ausbauhaus bauen. Der Innenausbau erfolgt komplett in EL oder durch Eigenvergabe. Habe ich das richtig verstanden?
Hast du genug Helfer mit Fachkenntnissen. Das ist nicht in 20 Wochenenden und 14 Tage Urlaub erledigt.
Ich würde mit einer regionalen, Stein- auf Stein Firma bauen. Die Erledigen die Erdarbeiten etc. gleich mit.
Großes Fragezeichen ist der Statiker und unter Umständen der Geologe. Die beiden haben uns fünfstellige Zusatzkosten aufgebrummt.
Hast du genauere Höhenangaben?
Abbruch
Brechen soll günstiger als Entsorgung sein? Selbst bei unseren Mengen haben alle abgewunken, brechen sei zu teuer. Nur einer hat mir angeboten und der war teuer.
Wo wollt ihr das Material einbauen, wenn ihr die alte Baugrube nutzen wollt?
Willst du das Material ungeprüft auf dem Grundstück belassen?
Nachkriegsbaumaterial ist nicht ohne -zumindest da waren sich die Abbruchfirmen einig. Da wurde was da war zu Stein verbacken und könnte Schadstoffbelasteter sein, als der uralte Ammoniak verseuchte Kuhstall.
V
voicepoint15.02.20 22:27Hi haydee,
Im Budget sind sämtliche Planungsleistungen, Materialien und Lohnkosten für alle beauftragten Gewerke und Helfer sowie die Baunebenkosten. Und der Abriss.
Im Prinzip passt "Ausbauhaus" ganz gut, ich mag allerdings dieses Schubladendenken nicht. Wir möchten allerdings keinen Trockenbau selbst machen (ausser vielleicht Kleinigkeiten, Vorsatzwände im Bad etc.). Wände sollten mind. Q3 vom Hausbauer übergeben werden.
Wir liegen hier relativ ländlich, ich habe viele Handwerker (teilweise selbstständig) im Freundeskreis, deshalb möchte ich einige Arbeiten auch zwingend selbst vergeben.
Über den Zeitaufwand bin ich mir im Klaren. Ich kann aber meine Arbeitsleistung durch meine Selbstständigkeit etwas flexibler planen als jemand, der angestellt ist. Zudem wohnen wir aktuell in einer ETW, es gibt also keinen so strengen Zeitplan, weil die Wohnung gekündigt wird. 2-3 Wochen länger im Innenausbau wären also zum Beispiel kein Problem.
Eine Stein-auf-Stein Bauweise kommt für uns nicht in Frage, aber das ist wohl eine viel diskutierte Grundsatzentscheidung. Die Erdbauarbeiten sehe ich ehr beim Abrissunternehmen, denn grob gesagt beschränkt es sich auf Fundamente und Verfüllen. Die "Baugrube" ergibt sich durch den Abriss.
Bodengutachten ist auf jeden Fall erforderlich, der Untergrund ist aber sehr felsig und sollte gut tragfähig sein. Bei keinem der aktuell vorhandenen Häuser gibt es Setzungsschäden o.ä. Statiker sehe ich mit dem Architekten in Verbindung.
Beim Abbruch habe ich bisher nur eine Meinung eines Bekannten, der in dem Bereich selbstständig ist und mir den Abbruch angeboten hat. Seiner Meinung nach ist die Bausubstanz des Gebäudes auf den ersten Blick gut und nicht schadstoffbelastet. Was die Verwendung des Materials betrifft bin ich aber gerne für Anregungen offen. Ich muss das nicht zwingend verbauen, möchte nur, falls möglich, Kosten sparen. Den genannten Preis für den Abbruch und das Brechen finde ich günstig, habe aber bisher noch keinen Vergleich.
Im Budget sind sämtliche Planungsleistungen, Materialien und Lohnkosten für alle beauftragten Gewerke und Helfer sowie die Baunebenkosten. Und der Abriss.
Im Prinzip passt "Ausbauhaus" ganz gut, ich mag allerdings dieses Schubladendenken nicht. Wir möchten allerdings keinen Trockenbau selbst machen (ausser vielleicht Kleinigkeiten, Vorsatzwände im Bad etc.). Wände sollten mind. Q3 vom Hausbauer übergeben werden.
Wir liegen hier relativ ländlich, ich habe viele Handwerker (teilweise selbstständig) im Freundeskreis, deshalb möchte ich einige Arbeiten auch zwingend selbst vergeben.
Über den Zeitaufwand bin ich mir im Klaren. Ich kann aber meine Arbeitsleistung durch meine Selbstständigkeit etwas flexibler planen als jemand, der angestellt ist. Zudem wohnen wir aktuell in einer ETW, es gibt also keinen so strengen Zeitplan, weil die Wohnung gekündigt wird. 2-3 Wochen länger im Innenausbau wären also zum Beispiel kein Problem.
Eine Stein-auf-Stein Bauweise kommt für uns nicht in Frage, aber das ist wohl eine viel diskutierte Grundsatzentscheidung. Die Erdbauarbeiten sehe ich ehr beim Abrissunternehmen, denn grob gesagt beschränkt es sich auf Fundamente und Verfüllen. Die "Baugrube" ergibt sich durch den Abriss.
Bodengutachten ist auf jeden Fall erforderlich, der Untergrund ist aber sehr felsig und sollte gut tragfähig sein. Bei keinem der aktuell vorhandenen Häuser gibt es Setzungsschäden o.ä. Statiker sehe ich mit dem Architekten in Verbindung.
Beim Abbruch habe ich bisher nur eine Meinung eines Bekannten, der in dem Bereich selbstständig ist und mir den Abbruch angeboten hat. Seiner Meinung nach ist die Bausubstanz des Gebäudes auf den ersten Blick gut und nicht schadstoffbelastet. Was die Verwendung des Materials betrifft bin ich aber gerne für Anregungen offen. Ich muss das nicht zwingend verbauen, möchte nur, falls möglich, Kosten sparen. Den genannten Preis für den Abbruch und das Brechen finde ich günstig, habe aber bisher noch keinen Vergleich.
N
NatureSys15.02.20 22:45Das EG wird sehr dunkel, da sollten mehr Fenster zu den Seiten eingeplant werden. Zudem kommt man von Wohnbereich nicht gut zum Garten.
Geht man jetzt ums Haus herum, um den Eingang zu finden? Warum so kompliziert—?
Wo lässt die Frau ihre Klamotten?
Ich verstehe die Planung nicht. Kannst Du bitte mal Dein Keller und das Haus in das Grundstück einzeichnen?
Und der Schnitt wäre wegen des Hanges auch sehr hilfreich.
Wo lässt die Frau ihre Klamotten?
Ich verstehe die Planung nicht. Kannst Du bitte mal Dein Keller und das Haus in das Grundstück einzeichnen?
Und der Schnitt wäre wegen des Hanges auch sehr hilfreich.
Dann ist es zu knapp das Budget.
Du brauchst ein extrem flexibles Bauunternehmen, da ist der Wandaufbau zweitrangig. Je nach Höhenangaben kann der Keller viel besser genutzt werden. Siehe Hinweis von YPG.
Du willst Q3 übergeben haben, aber teile selber übernehmen die zum Teil im Wandaufbau bereits Enthalten sind.
Nein die Erdarbeiten liegen nicht beim Abbruchunternehmen. Die verbuddeln keine Anschlüsse, Fundament oder Füllen später wieder an.
Wir mussten im Bereich des Hauses die alte Stützwand Unterfangen, bevor die Neue Stützwand und Bodenplatte davor kommt. Das hat nichts mit dem Abbruch zu tun. Nur für viel Aushub gesorgt.
Früher wurde bei uns in der Gegend viel ohne Fundamente gebaut, da der Boden so steinig war.
Bei uns ist der Boden auch felsig. Bodenklasse 5-6. trotzdem wurde die Stützmauer, Bodenplatte und Decke 1. OG dicker ausgelegt und die Bewährung erst. Um die Baufirma zu Zitieren „Hast du Angst vorm Kim oder warum planst du einen Bunker“ der Architekt hatte noch nie so eine dicke Vollholzdecke geplant.
Sehen tut man nicht was in den Steinen ist. Der in der Nachkriegszeit sanierte Teil vom Haus hat allen Bauchschmerzen verursacht. Es sind Wundertüten.
Überlege dir Schadstoffe hin oder her wo du das Material brauchst.
Je nach Größe vom Haus finde ich 20.000 nicht unbedingt günstig
Und du brauchst für alles Lagerplatz abseits der Baugrube, Kranstellfläche etc.
Du brauchst ein extrem flexibles Bauunternehmen, da ist der Wandaufbau zweitrangig. Je nach Höhenangaben kann der Keller viel besser genutzt werden. Siehe Hinweis von YPG.
Du willst Q3 übergeben haben, aber teile selber übernehmen die zum Teil im Wandaufbau bereits Enthalten sind.
Nein die Erdarbeiten liegen nicht beim Abbruchunternehmen. Die verbuddeln keine Anschlüsse, Fundament oder Füllen später wieder an.
Wir mussten im Bereich des Hauses die alte Stützwand Unterfangen, bevor die Neue Stützwand und Bodenplatte davor kommt. Das hat nichts mit dem Abbruch zu tun. Nur für viel Aushub gesorgt.
Früher wurde bei uns in der Gegend viel ohne Fundamente gebaut, da der Boden so steinig war.
Bei uns ist der Boden auch felsig. Bodenklasse 5-6. trotzdem wurde die Stützmauer, Bodenplatte und Decke 1. OG dicker ausgelegt und die Bewährung erst. Um die Baufirma zu Zitieren „Hast du Angst vorm Kim oder warum planst du einen Bunker“ der Architekt hatte noch nie so eine dicke Vollholzdecke geplant.
Sehen tut man nicht was in den Steinen ist. Der in der Nachkriegszeit sanierte Teil vom Haus hat allen Bauchschmerzen verursacht. Es sind Wundertüten.
Überlege dir Schadstoffe hin oder her wo du das Material brauchst.
Je nach Größe vom Haus finde ich 20.000 nicht unbedingt günstig
Und du brauchst für alles Lagerplatz abseits der Baugrube, Kranstellfläche etc.
Ähnliche Themen