Hallo zusammen,
anbei der Grundriss des Elternbades.
Der Zutritt erfolgt bewusst nur durch die Ankleide, die links neben dem Bad liegt.
Durch das Kinderbad ist das Elternbad unten links quasi nicht nutzbar. Die Badewanne ist derzeit als Eckwanne geplant (geht aus dem Plan so noch nicht hervor).
Mein Problem ist nun Folgendes: ich hätte gerne eine Walk-In-Dusche ohne Tür, da wir in einer Gegend mit kalkhaltigem Wasser wohnen werden und putzfaul sind Die Wand zwischen Toilette und Dusche müsste dann aber mE 1,40 m lang sein, um zu viel Wasserspritzen zu vermeiden. Dann wird es aber schon eng mit der Badewanne.
Für eine T- oder L-Lösung ist das Bad mE zu klein.
Wäre es klüger, die Mauer zwischen Toilette und Dusche bei einer Länge von 1,20 m zu belassen und eben doch eine Glastür zur Dusche zu setzen?
Habt ihr vielleicht Ideen oder Anregungen, das Bad anderweitig zu gestalten? Oder ist das hier bereits die sinnvollste Lösung?
Viele Grüße.

anbei der Grundriss des Elternbades.
Der Zutritt erfolgt bewusst nur durch die Ankleide, die links neben dem Bad liegt.
Durch das Kinderbad ist das Elternbad unten links quasi nicht nutzbar. Die Badewanne ist derzeit als Eckwanne geplant (geht aus dem Plan so noch nicht hervor).
Mein Problem ist nun Folgendes: ich hätte gerne eine Walk-In-Dusche ohne Tür, da wir in einer Gegend mit kalkhaltigem Wasser wohnen werden und putzfaul sind Die Wand zwischen Toilette und Dusche müsste dann aber mE 1,40 m lang sein, um zu viel Wasserspritzen zu vermeiden. Dann wird es aber schon eng mit der Badewanne.
Für eine T- oder L-Lösung ist das Bad mE zu klein.
Wäre es klüger, die Mauer zwischen Toilette und Dusche bei einer Länge von 1,20 m zu belassen und eben doch eine Glastür zur Dusche zu setzen?
Habt ihr vielleicht Ideen oder Anregungen, das Bad anderweitig zu gestalten? Oder ist das hier bereits die sinnvollste Lösung?
Viele Grüße.
kbt09 schrieb:
ich würde den Zugang zum Bad verschieben, denn jetzt ist die Nische unten quasi 2,5 qm verschenkter Raum....Oder in die entstandene Nische die Wanne setzenEs entspannt sich dann vieles.
Vielen lieben Dank!
Die Wanne unten in die Nische scheint mit mit einer Breite von 1.70 etwas knapp. Wir hätten gerne eher eine 1,9 m Wanne, da wir beide groß sind.
Wenn die Dusche in die Nische kommt:
Wie sieht es da mit dem Rausspritzen aus? Wenn der Eingang zur Dusche mind. 70 cm sein sollte, wäre die Wand nur 1 m lang.
Dieses Bad bereitet mir schon seit einer ganzen Weile Kopfzerbrechen.
Ursprünglich war da, wo jetzt das Kinderbad ist, eine Sauna eingeplant. Die soll jetzt aber lieber in den Außenbereich. Durch die Verlegung des Kinderbads dorthin sind die Kinderzimmer größer geworden.
Wäre es vielleicht auch noch eine brauchbare Variante, das Kinderbad irgendwie länglicher statt quadratisch zu schneiden und damit das Elternbad anderweitig „bestücken“ zu können?
Die Wanne unten in die Nische scheint mit mit einer Breite von 1.70 etwas knapp. Wir hätten gerne eher eine 1,9 m Wanne, da wir beide groß sind.
Wenn die Dusche in die Nische kommt:
Wie sieht es da mit dem Rausspritzen aus? Wenn der Eingang zur Dusche mind. 70 cm sein sollte, wäre die Wand nur 1 m lang.
Dieses Bad bereitet mir schon seit einer ganzen Weile Kopfzerbrechen.
Ursprünglich war da, wo jetzt das Kinderbad ist, eine Sauna eingeplant. Die soll jetzt aber lieber in den Außenbereich. Durch die Verlegung des Kinderbads dorthin sind die Kinderzimmer größer geworden.
Wäre es vielleicht auch noch eine brauchbare Variante, das Kinderbad irgendwie länglicher statt quadratisch zu schneiden und damit das Elternbad anderweitig „bestücken“ zu können?
Enoibib schrieb:
Wenn der Eingang zur Dusche mind. 70 cm sein sollte, wäre die Wand nur 1 m lang.Das Wasser bleibt aber trotzdem im Duschbereich, der ja 170 cm breit ist. Bei der 120x120 cm Variante geht das Wasser evtl. vor den gedachten Duschbereich und ist quasi mehr im Raum.Das Kinderbad halte ich übrigens für ungemütlich klein .
Wie geht es planrechts denn weiter?
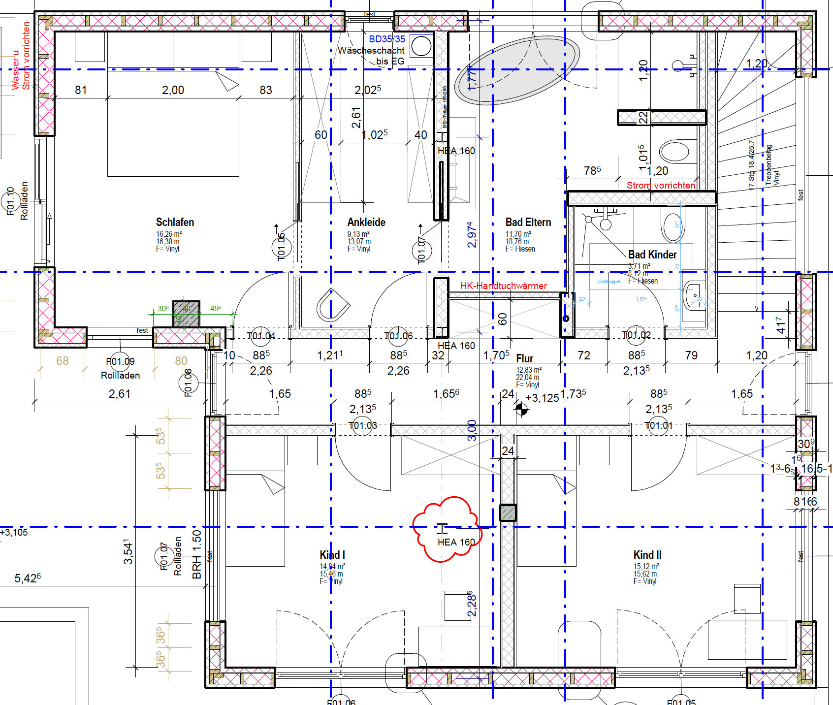
Habe mal den gesamten OG-Plan angehängt. Links gehts vom Schlafzimmer auf die Dachterrasse. Diese ist auch von den Kinderzimmer erreichbar sowie durch den Flur, damit Gäste nicht durch eines der Zimmer laufen müssen, um auch die Dachterrasse zu gelangen. Dies wollen wir auch prinzipiell so belassen.
Die Treppe planrechts soll wegen des Gesamtgefüges mit dem EG dort bleiben.
Da ist also recht wenig Spielraum, was grundlegende Änderungen der Bäder anbelangt.
Das Kinderbad schon recht klein, da gebe ich dir recht. Allerdings sind auch noch keine Kinder vorhanden, wenngleich geplant.

Die Treppe planrechts soll wegen des Gesamtgefüges mit dem EG dort bleiben.
Da ist also recht wenig Spielraum, was grundlegende Änderungen der Bäder anbelangt.
Das Kinderbad schon recht klein, da gebe ich dir recht. Allerdings sind auch noch keine Kinder vorhanden, wenngleich geplant.
Ähnliche Themen