ᐅ 1. Entwurf - Bitte um Feedback (Einfamilienhaus, 2 Vollgeschosse ohne Keller)
Erstellt am: 26.12.16 06:44
M
mikiliki1232M
mikiliki123226.12.16 06:44Hallo,
anbei der 1. Entwurf. Finden den Entwurf eigentlich ganz gut. Aber sind für jegliche Anmerkungen dankbar. Bauen ohne Keller. Was uns noch Bauchschmerzen bereitet:
- Eingagngsbereich
- Heizung im Anbau, ist das problematisch?
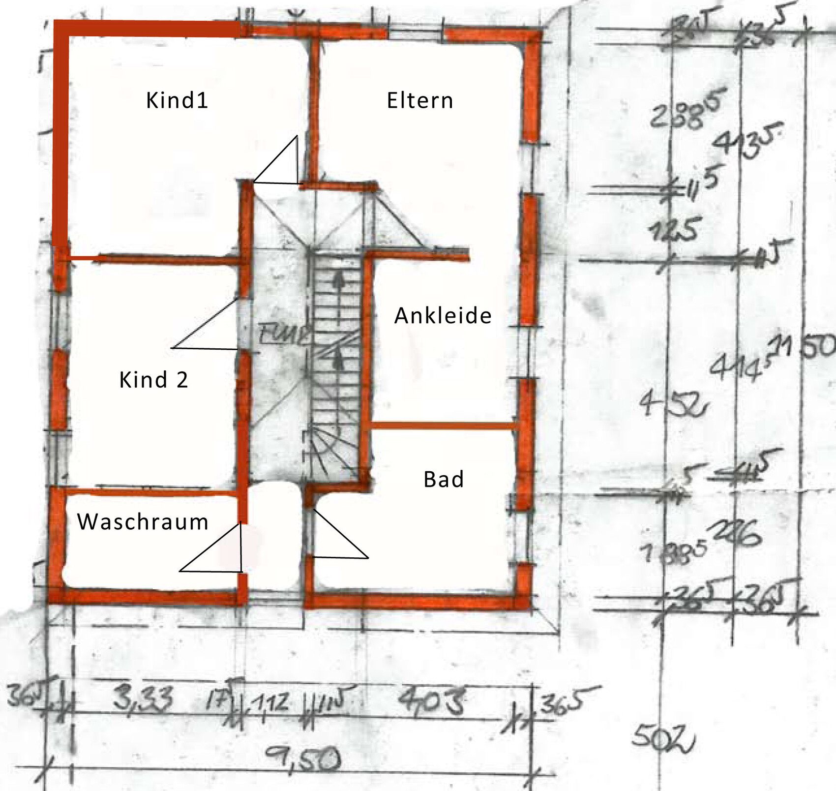
Die 1. Skizze haben wir etwas geändert. Ihr seht die geänderte Version. Das Haus soll folgende Maße haben: 9,5m x 11,5m
Die Garage wird weiter nach unten verschoben, so dass 2 Autos Platz haben.
Eine Doppelgarage ist nicht möglich, da wir sonst den Eingang verbauen.
Könnten aber auch mit einer Garagen-Carport-Kombination gut leben.
Anbei die Grundrisse sowie das Baufenster inkl. Ausrichtung.
Freue mich auf Feedback.
Bebauungsplan/Einschränkungen
Größe des Grundstücks
380 qm
Hang
nein
Anzahl Stellplatz
2 (Carport oder Garage)
Geschossigkeit
2 Vollgeschosse
Dachform
Zeltdach mit 2 Gauben (Gauben müssen nicht sein)
Stilrichtung
Stadtvilla
Ausrichtung
Siehe Anhang Baufenster
Keller, Geschosse
nein, 2 Vollgeschosse
Anzahl der Personen, Alter
2 Erwachsene, 2 kleine Kinder
Raumbedarf im EG, OG
jeweils ca. 80 qm
Büro: Familiennutzung oder Homeoffice?
ja
Schlafgäste pro Jahr
eher selten, in ZUkunft kann es aber mehr werden
offene oder geschlossene Architektur
offen
konservativ oder moderne Bauweise
modern
offene Küche, Kochinsel
ja, ja
Anzahl Essplätze
mind. 6
Kamin
kein must-have
Musik/Stereowand
nein
Balkon, Dachterrasse
nein
Garage, Carport
Garagen-Carport Kombi geplant
Hausentwurf
Von wem stammt die Planung:
-Architekt
Was gefällt besonders? Warum?
Offenheit
Was gefällt nicht? Warum?
Eingang, aber sehe keine bessere Idee
Preisschätzung lt Architekt/Planer:
320 Euro pro Kubik
favorisierte Heiztechnik:
Luftwasserwärmepumpe
Wenn Ihr verzichten müsst, auf welche Details/Ausbauten
-könnt Ihr verzichten:
Gauben
-könnt Ihr nicht verzichten:
Büro im EG




anbei der 1. Entwurf. Finden den Entwurf eigentlich ganz gut. Aber sind für jegliche Anmerkungen dankbar. Bauen ohne Keller. Was uns noch Bauchschmerzen bereitet:
- Eingagngsbereich
- Heizung im Anbau, ist das problematisch?
Die 1. Skizze haben wir etwas geändert. Ihr seht die geänderte Version. Das Haus soll folgende Maße haben: 9,5m x 11,5m
Die Garage wird weiter nach unten verschoben, so dass 2 Autos Platz haben.
Eine Doppelgarage ist nicht möglich, da wir sonst den Eingang verbauen.
Könnten aber auch mit einer Garagen-Carport-Kombination gut leben.
Anbei die Grundrisse sowie das Baufenster inkl. Ausrichtung.
Freue mich auf Feedback.
Bebauungsplan/Einschränkungen
Größe des Grundstücks
380 qm
Hang
nein
Anzahl Stellplatz
2 (Carport oder Garage)
Geschossigkeit
2 Vollgeschosse
Dachform
Zeltdach mit 2 Gauben (Gauben müssen nicht sein)
Stilrichtung
Stadtvilla
Ausrichtung
Siehe Anhang Baufenster
Keller, Geschosse
nein, 2 Vollgeschosse
Anzahl der Personen, Alter
2 Erwachsene, 2 kleine Kinder
Raumbedarf im EG, OG
jeweils ca. 80 qm
Büro: Familiennutzung oder Homeoffice?
ja
Schlafgäste pro Jahr
eher selten, in ZUkunft kann es aber mehr werden
offene oder geschlossene Architektur
offen
konservativ oder moderne Bauweise
modern
offene Küche, Kochinsel
ja, ja
Anzahl Essplätze
mind. 6
Kamin
kein must-have
Musik/Stereowand
nein
Balkon, Dachterrasse
nein
Garage, Carport
Garagen-Carport Kombi geplant
Hausentwurf
Von wem stammt die Planung:
-Architekt
Was gefällt besonders? Warum?
Offenheit
Was gefällt nicht? Warum?
Eingang, aber sehe keine bessere Idee
Preisschätzung lt Architekt/Planer:
320 Euro pro Kubik
favorisierte Heiztechnik:
Luftwasserwärmepumpe
Wenn Ihr verzichten müsst, auf welche Details/Ausbauten
-könnt Ihr verzichten:
Gauben
-könnt Ihr nicht verzichten:
Büro im EG
Hallo,
habt ihr mal überlegt wie ihr im Elternschlafzimmer ein Doppelbett hinstellen könnt? So ein Doppelbett ist meistens mind. 2,20m lang.
Der Weg von der Ankleide ins Bad wäre mir viel zu lang, ich würde lieber statt des Waschraums ein Kinderbad einrichten und den Zugang vom Elternbad dann über die Ankleide machen.
Gruß
Sabine
habt ihr mal überlegt wie ihr im Elternschlafzimmer ein Doppelbett hinstellen könnt? So ein Doppelbett ist meistens mind. 2,20m lang.
Der Weg von der Ankleide ins Bad wäre mir viel zu lang, ich würde lieber statt des Waschraums ein Kinderbad einrichten und den Zugang vom Elternbad dann über die Ankleide machen.
Gruß
Sabine
Ich habe mir den Grundriss jetzt mehrfach angesehen.
Nicht ganz glücklich finde ich die Treppe, zumal sie am Antritt wohl auch etwas von der Geschossdecke darüber überdeckt wird. Das könnte eng werden.
Die Kombination Ankleide/Elternschlafen ist mir auch aufgefallen.
Küchenbereich könnte etwas klein sein. Eine echte Insel vermutlich nicht durchführbar, sonderen eher nur Halbinsel.
Nicht ganz glücklich finde ich die Treppe, zumal sie am Antritt wohl auch etwas von der Geschossdecke darüber überdeckt wird. Das könnte eng werden.
Die Kombination Ankleide/Elternschlafen ist mir auch aufgefallen.
Küchenbereich könnte etwas klein sein. Eine echte Insel vermutlich nicht durchführbar, sonderen eher nur Halbinsel.
Ähnliche Themen