Moin Moin,
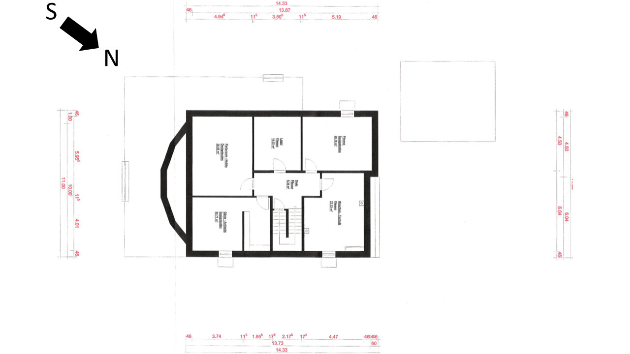
nous avons maintenant reçu un plan d'étage (clairement) révisé. Le bâtiment est désormais conçu comme une "meule à café" hambourgeoise à un étage.
Ainsi, nous avons réalisé notre souhait de pièces pleines dans toute la maison ainsi qu'une orientation de la pièce principale vers le jardin.
La cuisine reste fermée (merci de ne pas rouvrir la discussion à ce sujet) L'architecte l'a selon nous très bien résolu (par exemple avec la fenêtre donnant sur le salon, bien que nous ne soyons pas encore sûrs à 100% de vouloir cela).
La zone constructible a maintenant été exploitée au millimètre près et tous les trucs ont été employés (la petite baie en avant comme élément secondaire).
En soi, nous sommes très satisfaits du plan d'étage, il manque seulement un peu d'espace de rangement dans la pièce principale (la cheminée ne sera pas construite, nous n'en avons pas besoin) ainsi que dans le sous-sol, où nous aimerions avoir 6 pièces. Le premier étage nous semble optimal comme cela.
Nous serions toutefois ravis si vous voyez encore des éléments qui pourraient éventuellement être optimisés. Nous serions également très heureux de recevoir des conseils pour la répartition de la pièce principale.
Merci beaucoup !
PS : La construction du garage est encore incertaine, c'est une question de coûts. Combien estimeriez-vous qu'un tel garage coûterait environ ?
