Hausbau - Ratgeber
Bauherrenhilfe
- Bauherrenhilfe vor Vertragsabschluss
-- Warum einen unabhängigen Baubetreuer?
-- Vertragsgrundlagen
-- Bausumme
-- Zahlungsplan zur Kostenkontrolle
-- Pflichten des Bauherren vor Vertragsabschluss
-- Unterlagen beim Hausbau vor Vertragsabschluss
- Bauherrenhilfe nach Vertragsabschluss
-- Bauantrag bei Behörden
-- Bau-Genehmigungsverfahren bei Baubehörden
-- Bauspezifische Versicherungen
-- Bauzeitenplan
-- Baubeginn - die Letzten Pflichten der Bauherrschaft
- Bauherrenhilfe während der Bauzeit
- Gewährleistungsansprüche
- Bauabnahme
Baufinanzierung
- Baufinanzierung - Allgemeine Fragen
- Kreditarten
- Kredit-Konditionen
- Bausparen
- Staatliche Förderungen
- Verkehrswert
- Haushaltsrechnung und Bonität
Hausbau Planung
- Haustypen
- Hausbau Vorbereitungsarbeiten
- Das Baugrundstück
- Baugrund beim Hausbau
- Baurecht
- Gebäudeschutz
- Erdarbeiten und Wasserhaltung
- Stützmauern
- Einfriedung
- Untergeschoss
- Kanalisation
- Tragende Elemente
- Nichttragende Innenwände
- Fundation / Fundament
- Deckenkonstruktionen
- Dächer
- Kaminanlagen
- Treppen Rampen Leitern
- Dachbeläge und Spengler
- Fenster
- Sonnen und Wetterschutz
- Aussenputze
- Einbauten, Küchen, Türen
- Bodenbeläge und Unterlagsböden
- Parkett
- Gips, Wand, Decke
Haustechnik und Energie
- Heiztechnik
- Lüftung und Klimatechnik
- Sanitärtechnik
- Elektrotechnik
- Erneuerbare Energie
Whirlpools / Jacuzzi
Hausbau Magazin
- Baufinanzierung trotz Krise?
- Das Blockhaus
- Moderne Dämmstoffe im Vergleich
- Erker Vor- und Nachteile
- Glasflächen beim Hausbau
- Günstig ein Haus Bauen
- Mediterraner Hausbaustil
- Mehrgenerationenhaus
- Moderne Architektur
- Gartengestaltung leicht gemacht
- Traditioneller Ziegelbau
- Villa als höchster Traum
- Im Eigenheim Ruhestand geniessen
- Altbau sanieren
- Kauf einer Holzgarage
- Immobilienmakler
- Arbeitshandschuhe für den Winter
- Zuhause verschönern
- Outdoor-Plissees
- Schlafzimmer planen
- Terrassenüberdachung
- Wohngebäudeversicherung
- Girokonto für Bauherren finden
- Hauseingang gestalten
- Zaunarten und Eigenschaften
- Der perfekte Grundriss
- Sparsamer heizen im Altbau
- Einfamilienhaus smart finanzieren
- Planung einer PV-Anlage
- Neues Haus
- Immobilienfinanzierung
- Installation einer Photovoltaikanlage
- Asbest erkennen und entfernen
- Gartenpflege im Frühling – worauf achten
- Sauna im Fokus - Wellness zuhause
- Erfolgreich vermieten
- Die perfekte Winterbekleidung
- Das Niedrigenergiehaus
- Der April und seine Stürme
- Architektonische Vielfalt
- Ökologisch und nachhaltig bauen
- Das perfekte Schlafzimmer
- Nachhaltige Energieversorgung
- Zukunftsorientiert bauen
- Nachhaltigkeit beim Hausbau
- Tiny Houses
- Wärmepumpen als nachhaltige Heizvariante
- Maßgeschneiderten Kleiderschrank
- Der richtige Baukredit
- Ratgeber für erfolgreichen Hausbau
- Haus als Altersvorsorge
Do-it-yourself Anleitungen
- Verlegeanleitung für Bodenbeläge und Parkett
- Bodenbeläge und Parkett reinigen und pflegen
- Malerarbeiten am Haus
- Garten Tipps
- Umzug und Reinigung

ᐅ WDVS mit Betonbau oder Sichtbeton?

Erstellt am: 14.04.17 10:41
A
alegend
A
alegend
14.04.17 10:41
Hallo zusammen,
da ich ja in meinem anderen Thread nicht so recht weiterkomme und mir von @11ant immer wieder nahegelegt wurde ich solle doch bitte Pläne nachreichen damit man hier etwas beurteilen kann...
Nun ja dann stelle ich nun Jetztt doch mal Pläne ein - da wir einfach nicht wissen was wir Jetztt wirklich genau machen sollen.
Das Vorhaben von uns ist im Thread
https://www.hausbau-forum.de/threads/hausbau-aus-beton-vs-Energieeinsparverordnung-2016.23880/
erläutert, gebaut wird zusammen mit Architekt in Leistungsphasen 1-8.

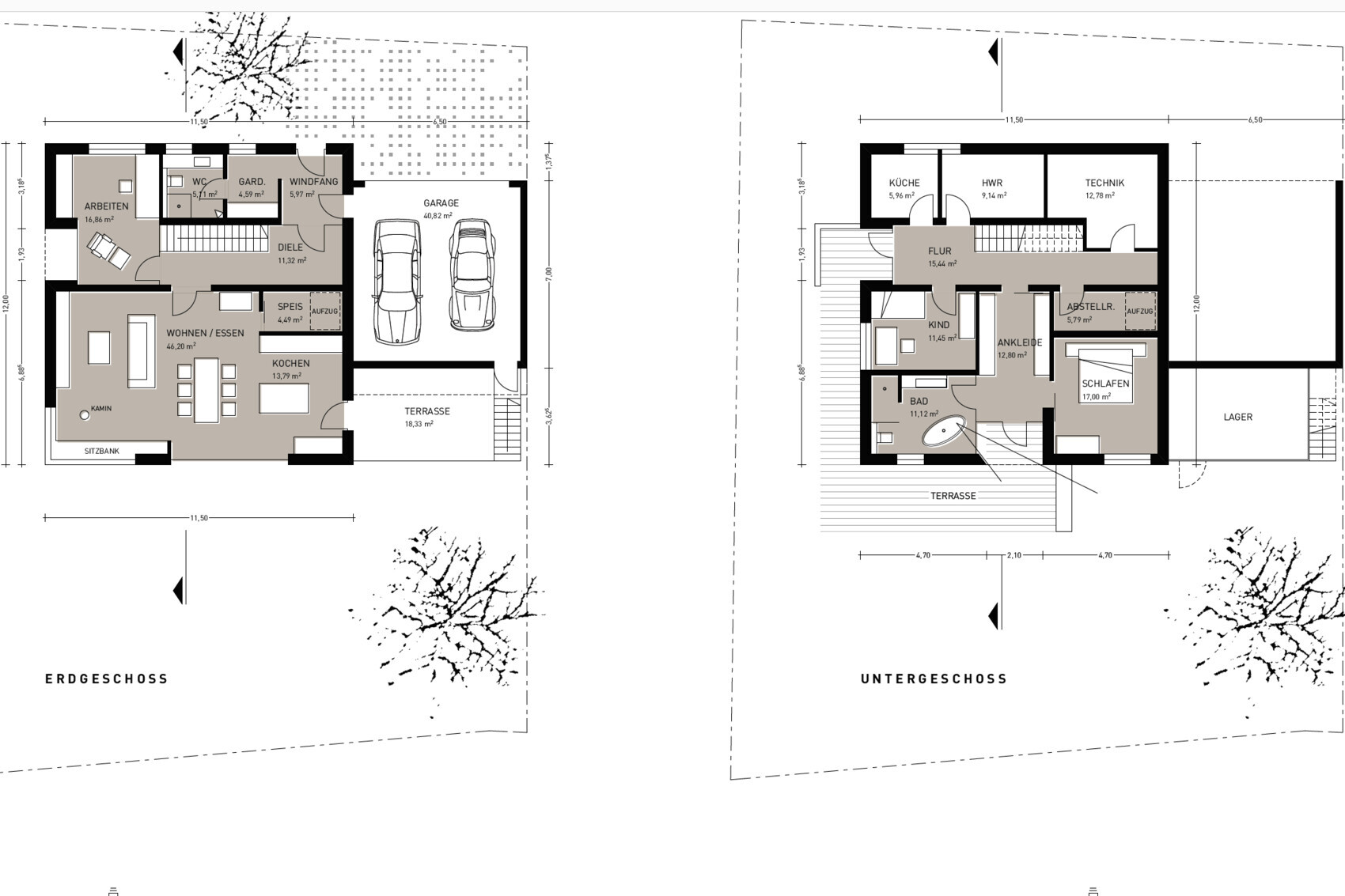
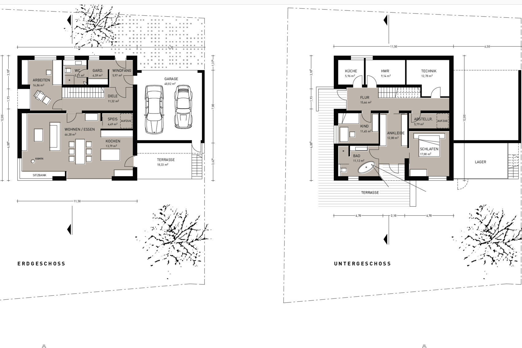
Zweigeschossiger Hausgrundriss mit Erdgeschoss und Untergeschoss, Räume, Terrasse, Garage

Zwei Fassadenansichten eines modernen Hauses mit Brauntones und Treppenstufen

Architektur-Ansichten: zwei Häuserfronten, Gelände, Baum, Menschen-Silhouetten

Moderne 3D-Hausansicht: weißes Gebäude mit braunen Fassadenelementen und Treppen

Schnitt durch ein mehrstöckiges Haus mit Wohnbereich, Ankleide und WC

Ich hoffe ich bekomme hier nun etwas input.....
Gewünscht ist einfach hier eine Sichtbetonoptik der tragenden Wänden innen - nachdem Jetzttt schon außen Beton nicht klappt.
Vielen dank schonmal vorab an alle die sich bei der Ideenfindung beteiligen.
L
Lumpi_LE
14.04.17 11:13
Außen Beton ist bei dem Haus kein Problem... Wenn dein Architekt das nicht hinbekommt würde ich mir einen anderen suchen.
A
alegend
14.04.17 11:18
Es geht ja nicht um nicht hingekommen - sondern hinbekommen um der Energieeinsparverordnung zu entsprechen und dazu würde es mind 60er Wände in Dämmbeton erfordern. wie schon von mir geschildert - problematisch ist hier dann die Frage von Spezialisten die das durchführen und die es hier nicht gibt und zum anderen das Thema kosten welches hier dann massiv zuschlagen soll....
L
Lumpi_LE
14.04.17 11:22
Das ist quatsch, sowas baut man als Sandwich, sieht vom Aufbau aus wie bei einem verklinkerten Haus, halt nur beton. Da braucht man keine Spezialisten und hat ca. Eine 40er Wand. Geht auch dünner je nach Anspruch.
M
Marvinius
14.04.17 11:25
Werden Diele und Flur nicht etwas dunkel? Schlafzimmerfenster ist ja nur knapp über dem Erdbeben, da könnt Ihr dochgleich Fenstertür machen. Wollt Ihr Schlafzimmer und Badezimmer wirklich direkt an der Terrasse? Ich würde Wohnzimmer und Küche ins UG verlagern, dann braucht Ihr auch nicht mehr die Mini Küche im UG. Ohnehin sollte in der aktuellen Planung Euer Aufzug näher bei der Mini- Küche im UG sein.
Scheint ein typisches Architektenhaus zu sein. Interessant anzuschauen, aber eventuell nur schwer bewohnbar...
Euer Haus ist weniger als 2x so breit wie die Garage. Das finde ich von den Proportionen problematisch, da dann die Garage zu stark betont wird.
A
alegend
14.04.17 11:26
Er hatte Sandwichtmethode auch erwähnt - wir waren noch nicht ins detail gegangen da wir erst 2 termine hatten, daher will ich im vorfeld hier etwas Infos einholen.
Das heisst Sandwich außen Betonieren innen betonieren und dazwischen dämmen?
betonierenkücheplänearchitektspezialistengarage