Vergrößerung Bad im DG inkl. Schrägen

4,20 Stern(e) 5 Votes
Zuletzt aktualisiert 12.10.2025
Sie befinden sich auf der Seite 2 der Diskussion zum Thema: Vergrößerung Bad im DG inkl. Schrägen
>> Zum 1. Beitrag <<

A

ancla99

Danke für euer Feedback.
Zur Nutzung: das Bad wird hauptsächlich von 2 Erwachsenen genutzt werden, allerdings als hauptbad. Eine Etage tiefer gibt es ein weiteres kleines Bad für unser Kind und Gäste.

Wir sind uns unsicher ob es mit dem Abwasser mit der Toilette und dem Fenster so klappen kann, bzw ob wir eine Toilette direkt vor dem Fenster haben wollen (ja, man kann hier natürlich viel über Plissee oder ähnliches abdecken).

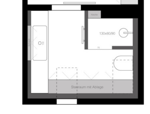
Bei dem Vorschlag mit Toilette neben Dusche wäre die Kopffreiheit stehend vor der Toilette eingeschränkt, die Schräge liegt hier ca bei 1,60m, der Eintritt in die Dusche ist nicht mehr betroffen.

Das alte Bad ist nun soweit abgerissen, dass wir uns beide Möglichkeiten einmal stumpf auf den Boden kleben werden, um ein besseres räumliches Gefühl zu bekommen, auch zum Thema Bewegungsfreiheit
 
H

hanghaus2023

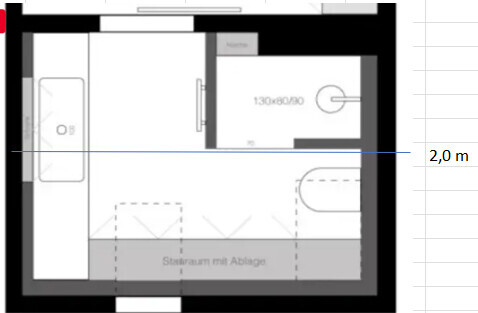
Ich habe mal die 2 m Linie eingezeichnet.

2D-Grundriss einer kompakten Hausaufteilung mit Lagerfläche


Gibt es einen Plan der genau bemasst ist? Die Abwasserleitung vom Wand WC ist wohl mMn das größte Problem. Daher geht vermutlich nur die erste Variante.

Ist eine Fußbodenheizung geplant?
 
Zuletzt aktualisiert 12.10.2025
Im Forum Sanitär / Bad / WC gibt es 1365 Themen mit insgesamt 14346 Beiträgen


Ähnliche Themen zu Vergrößerung Bad im DG inkl. Schrägen
Nr.ErgebnisBeiträge
1Bodengleiche Dusche mit Fenster in der Nähe 13
2Dusche direkt am Fenster - kompatibel oder inkompatibel? - Seite 422
3Renovierung-Tipps für sehr kleines Bad mit Dusche statt Badewanne - Seite 336
4Badplanung 14m², Neubau, quadratisch, zwei Fenster - Seite 870
5Bad-Grundriss 8,7qm, mit Dusche und Badewanne 16
6Badaufteilung eines 4,5qm EG-Bad mit Dusche 14
7Badplanung bei einem kleinen Bad mit Walkinn Dusche 22
8Hauptbadezimmer (10qm) mit offener Dusche, Ideen? 84
98,02m Positionierung Waschbecken / Toilette 69
10Neubau Fenster Brüstungshöhe für Gäste-WC 30
11Grundriss Bad so möglich - Abstand Toilette zum Fallrohr 12
12Nachträglicher Einbau Wanne oder Dusche? - Seite 327
13Grundriss Einfamilienhaus geplant, Fenster gefallen uns 43
14Grundriss Bad mit Dusche 11
15größere Dusche im Grundriss unterbringen - Welche Größe wählen? - Seite 538
16Grundrissplanung: Badezimmer Dusche 47
17OG Stadtville optimieren. Fenster Bodentief - Seite 7104
18Walk-in Dusche / Eure Tipps und Ideen 18
19Badplanung - Dusche und Badewanne tauschen? 24
20Grundriss Einfamilienhaus 150qm - Fenster- und Badplanung - Seite 218

Oben