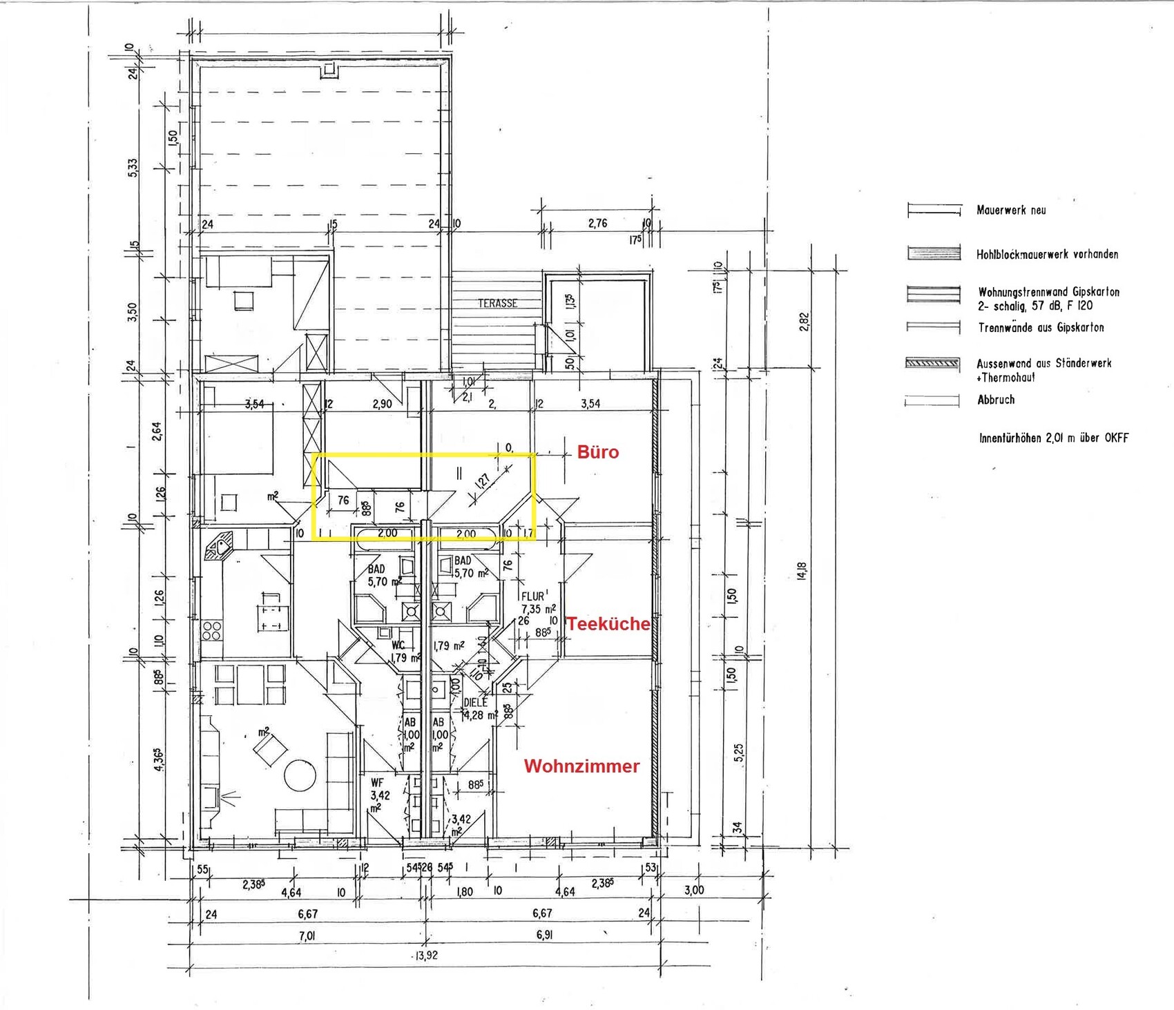
Hallo Forum, wir kaufen (in Niedersachsen) das im Plan abgebildete Haus (derzeit zwei getrennte Hälften) und würde gerne im hinteren Teil etwas verändern:
In Zwischenwand zwischen den beiden Haushälften (besteht aus Rigipsplatten) kommt ein Durchbruch. Eine Tür im rechten Haus wird 'zugemacht' zu einer Wand. Im mittleren Zimmer wird eine Wand (mit zusätzlicher Tür) eingezogen um einen Durchgang zu schaffen - Am besten ihr vergleicht beide Baupläne (alt und neu).
Dabei bitte ich um euren Rat:
Die grundlegende Frage zum Grundriss: Bitte um Bestätigung dass die Statik des Hauses durch den Umbau nicht beeinträchtigt wird, auch sonst nicht irgendetwas beeinträchtigt wird (Feuerschutz?, etc.) - ich weiss nicht genau was noch beachtet werden muss. Bitte um Bestätigung, dass der Umbau der Wände und Türen in diesem Fall nicht genehmigungspflichtig ist.
Vielen Dank schonmal für die Antworten und unten angehängt der Bauplan der Bestandsimmobilie und der Plan für den Umbau und im Text das wichtigste in Stichpunkten
Bebauungsplan/Einschränkungen
Größe des Grundstücks: 2000
Hang: Nein
Grundflächenzahl unbekannt, nur Innen-Umbau
Geschossflächenzahl unbekannt, nur Innen-Umbau
Baufenster, Baulinie und -grenze
Randbebauung
Anzahl Stellplatz: 2
Geschossigkeit: 1
Dachform: flach
Stilrichtung: modern
Ausrichtung: Ost
Maximale Höhen/Begrenzungen: unbekannt, nur Innen-Umbau
weitere Vorgaben: keine
Anforderungen der Bauherren
Stilrichtung, Dachform, Gebäudetyp
Keller, Geschosse
Anzahl der Personen, Alter
Raumbedarf im EG, OG
Büro: Familiennutzung oder Homeoffice?
Schlafgäste pro Jahr
geschlossene Architektur
moderne Bauweise
Anzahl Essplätze: 3
Kamin: nein
Musik/Stereowand: nein
Balkon, Dachterrasse: nein
Garage, Carport: nein
Nutzgarten, Treibhaus: nein
weitere Wünsche/Besonderheiten/Tagesablauf, gern auch Begründungen, warum dieses oder das nicht sein soll: nein
Hausentwurf
Von wem stammt die Planung: Ursprünglich Planer eines Bauunternehmens, DER UMBAU ist Do-it-Yourself
Was gefällt besonders? Warum? Größe des Hauses
Was gefällt nicht? Warum? Nichts
Preisschätzung lt Architekt/Planer: Nicht zutreffend
Persönliches Preislimit fürs Haus, inkl Ausstattung: unbeschränkt
favorisierte Heiztechnik: Gas
Wenn Ihr verzichten müsst, auf welche Details/Ausbauten
-könnt Ihr verzichten: Nicht zutreffend
-könnt Ihr nicht verzichten: Erweiterung einer der Haushälften
Warum ist der Entwurf so geworden, wie er jetzt ist? Standardentwurf vom Planer
Entsprechende/Welche Wünsche wurden vom Architekten umgesetzt?
Haus bestand so wie gekauft
Die grundlegenden 2 Fragen zum Grundriss kurz: Genehmigungspflicht? Bezüglich Statik in Ordnung?

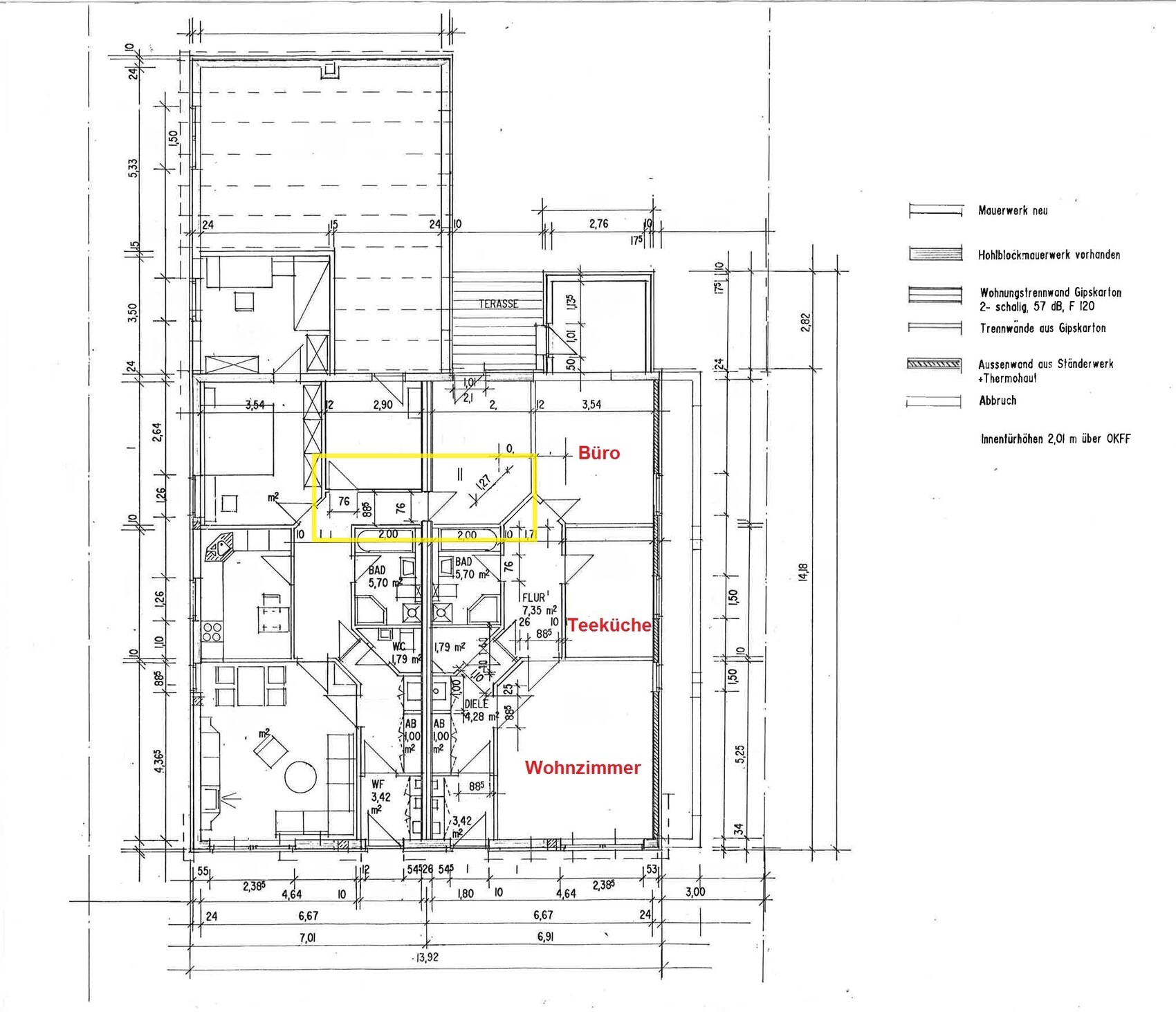
In Zwischenwand zwischen den beiden Haushälften (besteht aus Rigipsplatten) kommt ein Durchbruch. Eine Tür im rechten Haus wird 'zugemacht' zu einer Wand. Im mittleren Zimmer wird eine Wand (mit zusätzlicher Tür) eingezogen um einen Durchgang zu schaffen - Am besten ihr vergleicht beide Baupläne (alt und neu).
Dabei bitte ich um euren Rat:
Die grundlegende Frage zum Grundriss: Bitte um Bestätigung dass die Statik des Hauses durch den Umbau nicht beeinträchtigt wird, auch sonst nicht irgendetwas beeinträchtigt wird (Feuerschutz?, etc.) - ich weiss nicht genau was noch beachtet werden muss. Bitte um Bestätigung, dass der Umbau der Wände und Türen in diesem Fall nicht genehmigungspflichtig ist.
Vielen Dank schonmal für die Antworten und unten angehängt der Bauplan der Bestandsimmobilie und der Plan für den Umbau und im Text das wichtigste in Stichpunkten
Bebauungsplan/Einschränkungen
Größe des Grundstücks: 2000
Hang: Nein
Grundflächenzahl unbekannt, nur Innen-Umbau
Geschossflächenzahl unbekannt, nur Innen-Umbau
Baufenster, Baulinie und -grenze
Randbebauung
Anzahl Stellplatz: 2
Geschossigkeit: 1
Dachform: flach
Stilrichtung: modern
Ausrichtung: Ost
Maximale Höhen/Begrenzungen: unbekannt, nur Innen-Umbau
weitere Vorgaben: keine
Anforderungen der Bauherren
Stilrichtung, Dachform, Gebäudetyp
Keller, Geschosse
Anzahl der Personen, Alter
Raumbedarf im EG, OG
Büro: Familiennutzung oder Homeoffice?
Schlafgäste pro Jahr
geschlossene Architektur
moderne Bauweise
Anzahl Essplätze: 3
Kamin: nein
Musik/Stereowand: nein
Balkon, Dachterrasse: nein
Garage, Carport: nein
Nutzgarten, Treibhaus: nein
weitere Wünsche/Besonderheiten/Tagesablauf, gern auch Begründungen, warum dieses oder das nicht sein soll: nein
Hausentwurf
Von wem stammt die Planung: Ursprünglich Planer eines Bauunternehmens, DER UMBAU ist Do-it-Yourself
Was gefällt besonders? Warum? Größe des Hauses
Was gefällt nicht? Warum? Nichts
Preisschätzung lt Architekt/Planer: Nicht zutreffend
Persönliches Preislimit fürs Haus, inkl Ausstattung: unbeschränkt
favorisierte Heiztechnik: Gas
Wenn Ihr verzichten müsst, auf welche Details/Ausbauten
-könnt Ihr verzichten: Nicht zutreffend
-könnt Ihr nicht verzichten: Erweiterung einer der Haushälften
Warum ist der Entwurf so geworden, wie er jetzt ist? Standardentwurf vom Planer
Entsprechende/Welche Wünsche wurden vom Architekten umgesetzt?
Haus bestand so wie gekauft
Die grundlegenden 2 Fragen zum Grundriss kurz: Genehmigungspflicht? Bezüglich Statik in Ordnung?
Ich bestätige gar nix und sollte mich wundern, wenn hier irgendjemand Dein Anliegen bestätigen soll .
Statik kann man nicht aus der Ferne und Zweckbestimmung einer Immo verändern muss wohl auch genehmigt werden, wer weiß es besser als das Amt? [emoji6]
Bei Grundrissdiskussionen geht es darum, ob ein Entwurf sinnvoll ist oder nicht in Anbetracht der Wünsche der Bauherren.
Es geht definitiv nicht um eine Abschätzung der Statik aus der Ferne.
Da bist Du hier falsch. Ohne Architekt sollte bei Euch gar nichts laufen!
Statik kann man nicht aus der Ferne und Zweckbestimmung einer Immo verändern muss wohl auch genehmigt werden, wer weiß es besser als das Amt? [emoji6]
Bei Grundrissdiskussionen geht es darum, ob ein Entwurf sinnvoll ist oder nicht in Anbetracht der Wünsche der Bauherren.
Es geht definitiv nicht um eine Abschätzung der Statik aus der Ferne.
Da bist Du hier falsch. Ohne Architekt sollte bei Euch gar nichts laufen!
Hans1234 schrieb:
(besteht aus Rigipsplatten)Glaube ich nicht.Hans1234 schrieb:
Bitte um Bestätigung, dass der Umbau der Wände und Türen in diesem Fall nicht genehmigungspflichtig ist.Niedersächsische Bauordnung Anhang Verfahrensfreie Baumaßnahmen:12.1 Wände, Decken, Stützen und Treppen, ausgenommen Außenwände, Gebäudetrenn-
wände und Dachkonstruktionen, in fertiggestellten Wohngebäuden oder fertiggestellten
Wohnungen ...
Selbst wenn mein Glaube mich täuscht und es sich um eine nichttragende Rigipswand handeln sollte, bleibt es eine Gebäudetrennwand, so dass die Verfahrensfreiheit ausgeschlossen ist. "Büro" und "Teeküche" lassen auf eine gewerbliche Nutzung schließen, die ebenfalls genehmigt werden muss.
Die Beantwortung des Fragebogens erweckt den Eindruck großer Ahnungslosigkeit, so dass ich dringend den Besuch der örtlichen Bauberatung empfehle.
C
Caspar202021.05.18 13:38Escroda schrieb:
Glaube ich nicht.Steht aber so in seiner Legende im IST-Plan (siehe rechte Seite).
Was da nicht drin steht ob das ständerwerk tragend ist. Ich gehe aber davon aus; das so ist. Deshalb einfach durch ohne Statiker ist nicht.
Caspar2020 schrieb:
Steht aber so in seiner Legende im IST-Plan (siehe rechte Seite).In dem Plan gibt es auch keinen erkennbaren Unterschied zwischen neuem Mauerwerk und Abbruch, sowie eine etwa 1,20 m in den Bauwich planrechts ragende Außenwand in zweiter Reihe parkend. Freundlich gesagt: für bare Münze nehme ich die Zeichnung mal nicht.https://www.instagram.com/11antgmxde/
https://www.linkedin.com/company/bauen-jetzt/
Bitte alle die nur Polemik loswerden wollen wie 'ist so', 'glaube ich nicht' oder 'Ich bestätige gar nix' lieber gar nicht antworten, eure Beiträge bringen keinen sachlich weiter.
Davon unabhängig danke für alle sachlichen Beiträge.
Also die Mittelwand ist nicht tragend und besteht aus genannten Rigipsplatten. Als Klarstellung: Es geht mir nicht um Bewertung der Statik aus der Ferne, sondern um
1. das bessere Verstehen der Zeichnung und ob sich dadurch Rückschlüsse auf die Statik ergeben: bislang entnehme ich: aus dem Plan ist kein Rückschluss möglich. Bitte Korrektur falls jemand was anderes meint.
2. Klärung ob Genehmigung vonnöten, und da entnehme ich, dass ich keine Genehmigung brauche, nach dem Beitrag:
Davon unabhängig danke für alle sachlichen Beiträge.
Also die Mittelwand ist nicht tragend und besteht aus genannten Rigipsplatten. Als Klarstellung: Es geht mir nicht um Bewertung der Statik aus der Ferne, sondern um
1. das bessere Verstehen der Zeichnung und ob sich dadurch Rückschlüsse auf die Statik ergeben: bislang entnehme ich: aus dem Plan ist kein Rückschluss möglich. Bitte Korrektur falls jemand was anderes meint.
2. Klärung ob Genehmigung vonnöten, und da entnehme ich, dass ich keine Genehmigung brauche, nach dem Beitrag:
Escroda schrieb:
Niedersächsische Bauordnung Anhang Verfahrensfreie Baumaßnahmen
Ähnliche Themen