ᐅ Verbesserungvorschläge zu unserem Grundriss
Erstellt am: 23.10.16 13:31
Hallo zusammen,
wir möchten eine Stadtvilla ohne Keller bauen und befinden uns momentan in der finalen Planungsphase:
Bebauungsplan/Einschränkungen
Größe des Grundstücks: 441 qm
kein Hang, ebenerdig
Baufenster: 12 x 12 m
Geschossigkeit: 2 Vollgeschosse
Ausrichtung: Nord-Süd (Straße zur Südseite)
Anforderungen der Bauherren
Dachform: Walmdach
Stilrichtung: modern, offen
kein Keller, Erdgeschoss, Obergeschoss
Anzahl der Personen: 2 Personen (35 und 29), 2 Kinder geplant
Büro: Homeoffice / Gästezimmer (Schlafgäste 2 mal pro Jahr)
offene Architektur, kein Kamin
Hausentwurf
Von wem stammt die Planung: Planer eines Bauunternehmens
favorisierte Heiztechnik: KFW 55, Fußbodenheizung, Luft-Wärme-Pumpe
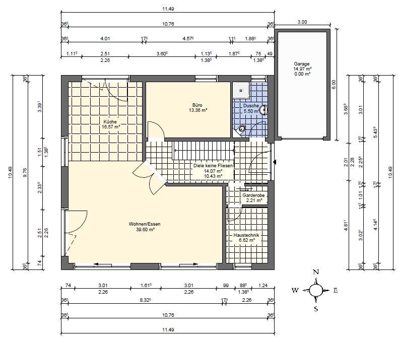
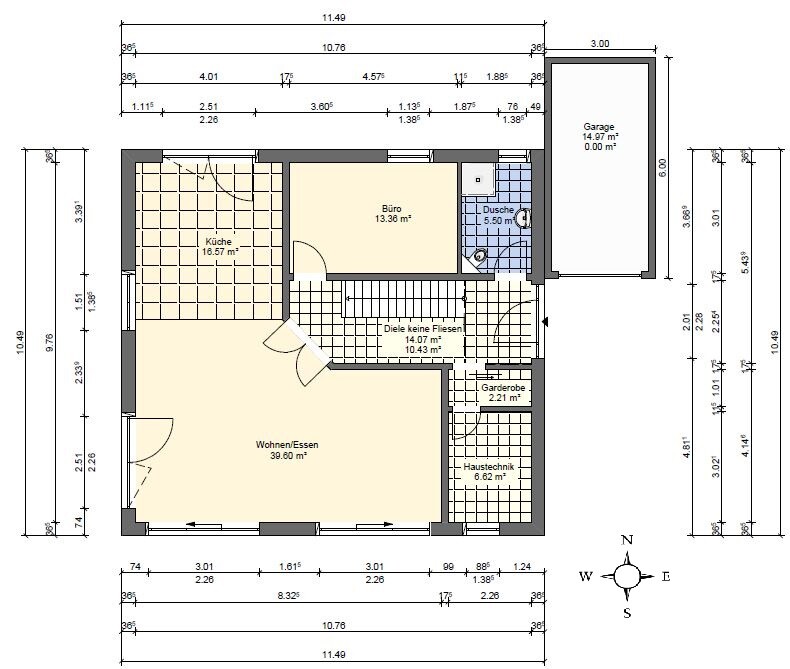
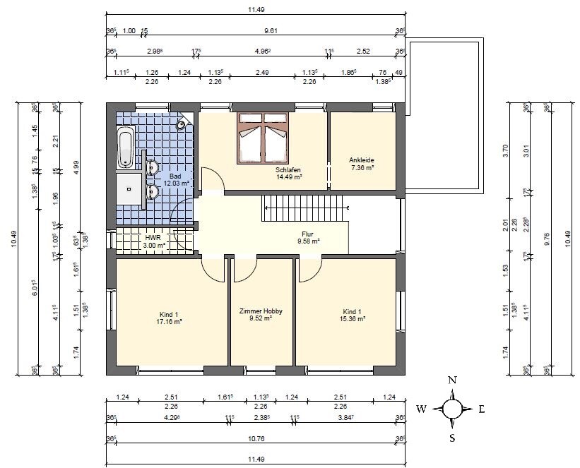
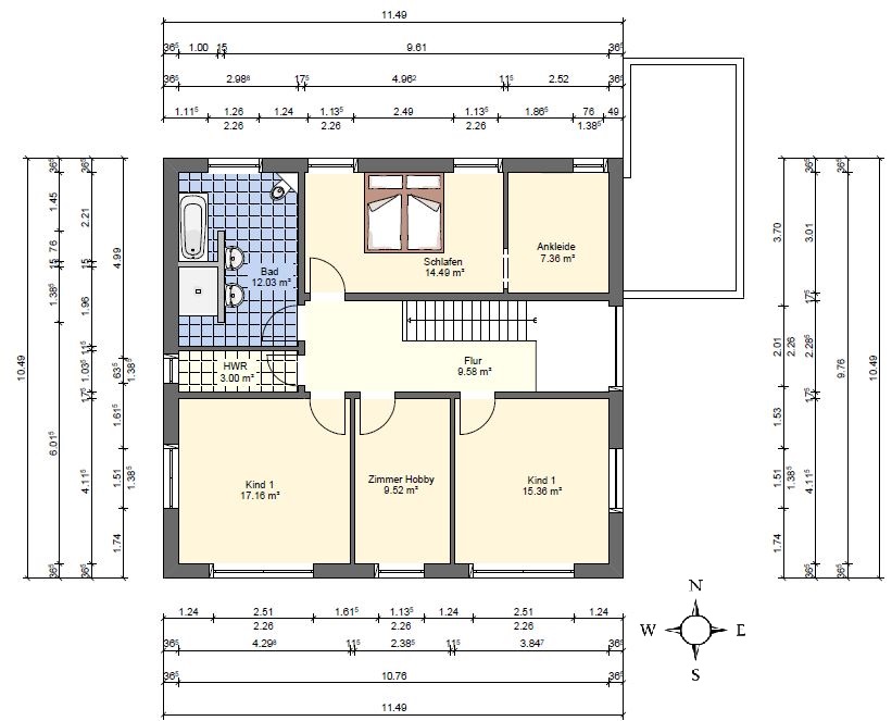
Was gefällt nicht? So wie es momentan eingezeichnet ist, ist der Hauswirtschaftsraum im OG zu klein. Mögliche Lösung wäre, dass der Hauswirtschaftsraum nur durch das Bad über eine Schiebetür zugänglich ist (also im Norden).
Weiterhin überlegen wird Ankleide und Schlafzimmer zu vertauschen, damit ein breites Fenster in Ostrichtung im Schlafzimmer möglich ist. Allerdings sind wir uns nicht sicher, ob es uns gefällt das Schlafzimmer nur über die Ankleide zu erreichen. Auf euer Feedback sind wir sehr gespannt und freuen uns sehr! Vielen Dank!!


wir möchten eine Stadtvilla ohne Keller bauen und befinden uns momentan in der finalen Planungsphase:
Bebauungsplan/Einschränkungen
Größe des Grundstücks: 441 qm
kein Hang, ebenerdig
Baufenster: 12 x 12 m
Geschossigkeit: 2 Vollgeschosse
Ausrichtung: Nord-Süd (Straße zur Südseite)
Anforderungen der Bauherren
Dachform: Walmdach
Stilrichtung: modern, offen
kein Keller, Erdgeschoss, Obergeschoss
Anzahl der Personen: 2 Personen (35 und 29), 2 Kinder geplant
Büro: Homeoffice / Gästezimmer (Schlafgäste 2 mal pro Jahr)
offene Architektur, kein Kamin
Hausentwurf
Von wem stammt die Planung: Planer eines Bauunternehmens
favorisierte Heiztechnik: KFW 55, Fußbodenheizung, Luft-Wärme-Pumpe
Was gefällt nicht? So wie es momentan eingezeichnet ist, ist der Hauswirtschaftsraum im OG zu klein. Mögliche Lösung wäre, dass der Hauswirtschaftsraum nur durch das Bad über eine Schiebetür zugänglich ist (also im Norden).
Weiterhin überlegen wird Ankleide und Schlafzimmer zu vertauschen, damit ein breites Fenster in Ostrichtung im Schlafzimmer möglich ist. Allerdings sind wir uns nicht sicher, ob es uns gefällt das Schlafzimmer nur über die Ankleide zu erreichen. Auf euer Feedback sind wir sehr gespannt und freuen uns sehr! Vielen Dank!!
- Ich würde glaub ich wirklich die Treppe drehen - wir genießen es sehr nicht beim hoch und runterlaufen immer am Eingang vorbeizumüssen.
- Mich beschleicht das Gefühl, dass die Treppe etwas kurz ist - wie ist die Steigung?
- Ich würde von 3 m Außenmaßgarage abraten - falls möglich mach sie 50 cm breiter
- Die schiebetür für die Garderobe kannst du dir sparen
- Was soll denn in den Hauswirtschaftsraum ?! 1 m ist nun wirklich sehr schmal
- Ankleide als gefangener Raum... nach drehen der Treppe würde ich den Eingang über die Ankleide gestalten - Fenster Mittig in der Ankleide und links und recht Stellfläche - die ist mit 2.52 m Breite schön dafür dimensioniert
- 45° Wand würde ich gegen eine Ecke tauschen.
- Das ganze bitte einmal möblieren
- Lageplan wäre fein
Hallo,
vielen Dank für deine Antwort und die Anregungen
- Die Treppe zu drehen ist ein guter Punkt, allerdings habe ich vergessen zu erwähnen, dass wir im Eingangsbereich einen Luftraum planen. Wenn wir die Treppe drehen würden, würde die Galerie im OG wegfallen
- Bezüglich der Steigung der Treppe muss ich mich Erkundigen. Was wäre denn eine optimale Steigung?
- Genau, der Hauswirtschaftsraum ist so zu klein, und soll daher durch das Badezimmer erreichbar sein, dann kann man es auch größer planen, so dass Waschmaschine und Trockner Platz finden
- Meinst du die 45°-Wand im Flur zum Wohnzimmer? Wir hatten es so geplant, weil man dann eher im Wohn-Essbereich ankommt und nicht in Küche-Essbereich
- wir werden versuchen einen möblierten Plan in den nächsten Tagen zu bekommen
- Ja würde sie - unklar, ob die jemand vermissen würde.
- Optimal? 17er Steigung, 29er Auftritt - hat man aber selten - mehr als 19 wäre mir zu steil, weniger als 26er Auftritt zu schmal
- genau - daher die Frage - mit dem Zugang so und den 1 m reicht es halt nicht für beides.
- zwei Türen wären eine Idee - eine fürs Wohnzimmer, eine für die Küche; wobei das Entfernen vor allem mit Hinblick auf die Treppendrehung gedacht war
- Möbliert ist eher für euch, dass ihr sehr was passt und was nicht
Hallo,
danke für die Antwort. Wir würden schon gerne die Galerie realisieren, weil wir denken, dass so der Eingangsbereich offen und großzügig wirkt. Wir sind uns nicht sicher, ob das Drehen der Treppe Vorteile bietet. Klar muss man nicht immer am Eingangsbereich vorbei, allerdings sind die Wege ja trotzdem genau so lang. Oder gibt es noch weitere Vorteile, wenn man die Treppe dreht?
danke für die Antwort. Wir würden schon gerne die Galerie realisieren, weil wir denken, dass so der Eingangsbereich offen und großzügig wirkt. Wir sind uns nicht sicher, ob das Drehen der Treppe Vorteile bietet. Klar muss man nicht immer am Eingangsbereich vorbei, allerdings sind die Wege ja trotzdem genau so lang. Oder gibt es noch weitere Vorteile, wenn man die Treppe dreht?
Weil alle, die mal nach oben huschen wollen, barfuß oder in Socken, durch den reingetretenen Straßenschmutz laufen müssen. Das ist für diejenigen, die diese Erfahrung schon gemacht haben, Argument genug 😉 Die schicke Holztreppe verkratzt dann auch umso schneller.
Eure Galerie ist zwar stylisch, auch hat man wohl dann ein Vorzeigeelement im Haus, allerdings zieht die Kälte von draußen bei offener Tür sofort nach oben.
Grüsse
Eure Galerie ist zwar stylisch, auch hat man wohl dann ein Vorzeigeelement im Haus, allerdings zieht die Kälte von draußen bei offener Tür sofort nach oben.
Grüsse
Ähnliche Themen