
kbt09
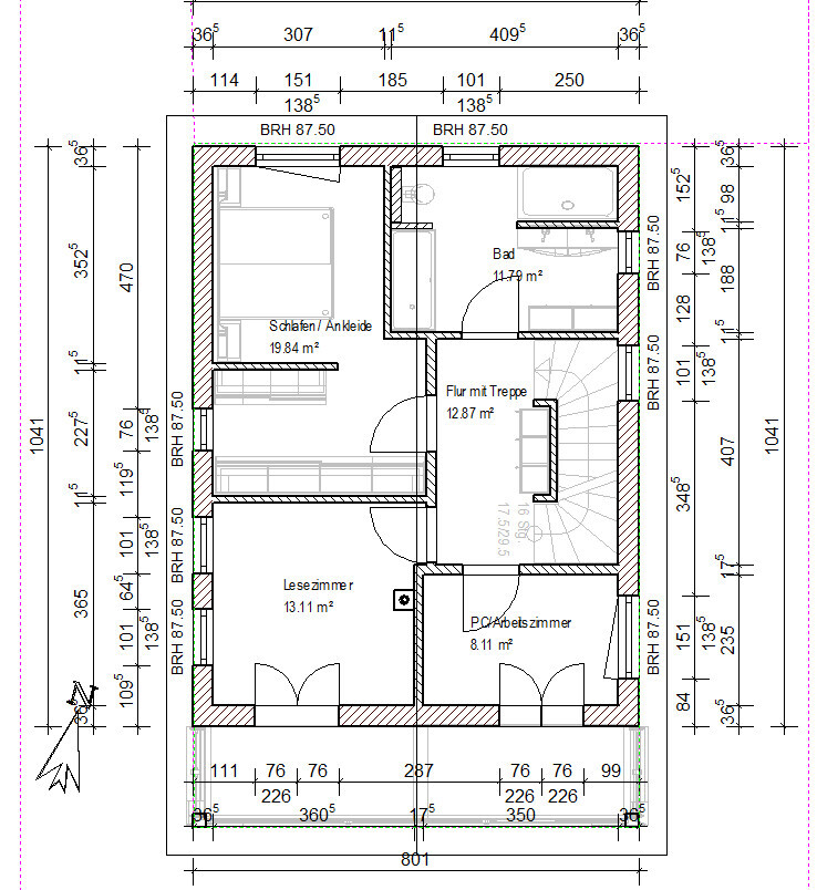
Ja .. da gefällt mir insbesondere Ankleide/Schlafen nicht.
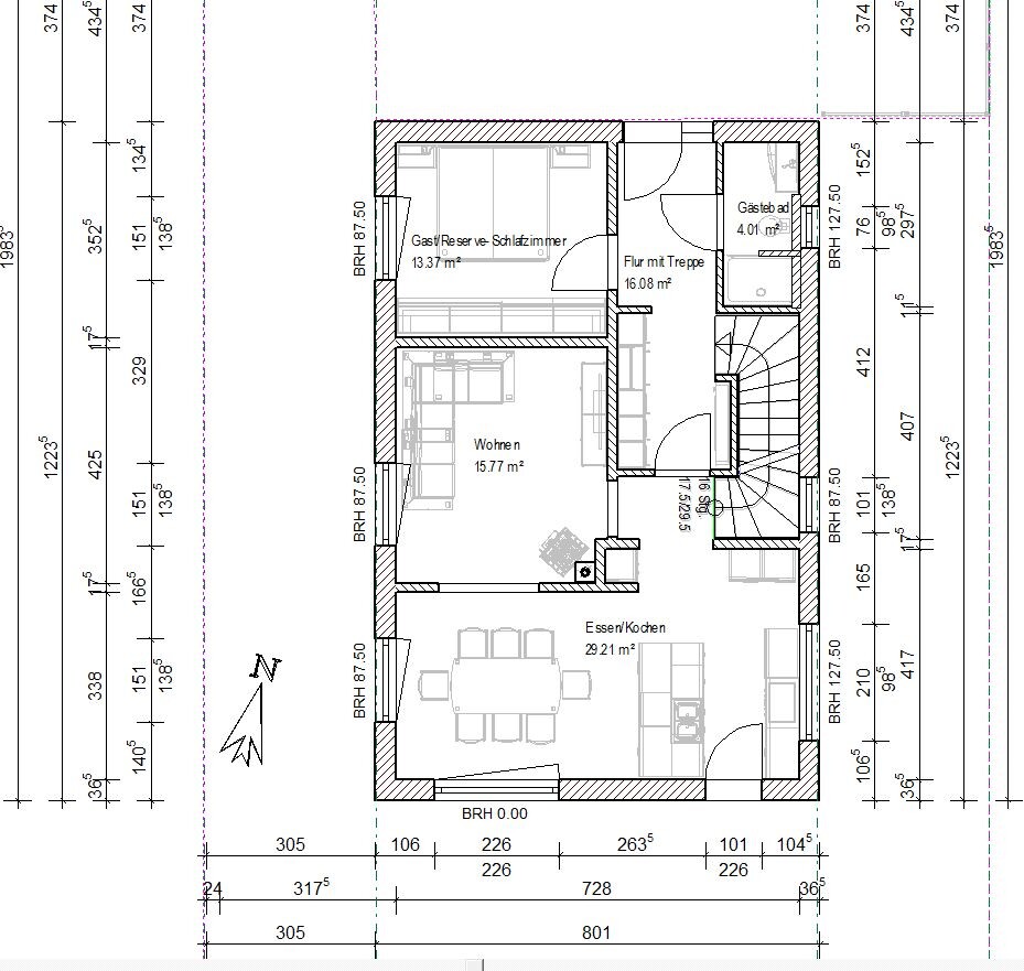
Und, es sollte doch mit Keller sein - oder?
Podesttreppe mit gut 270 cm .. das wird wohl eng.
Ich hatte mich auch mal versucht und jetzt noch etwas angepaßt. Dabei mal den Gedanken auch von Yvonne mit Garage planoben links im Grundstück aufgegriffen.
Treppe jetzt als langgezogene Wendeltreppe.
Im EG einen Multiraum, der z. B. bei Gebrechlichkeit auch als Schlafzimmer nutzbar wäre. Das vergrößert im EG die Fläche, dafür im OG vor Arbeitsraum und Leseraum noch einen kleinen Balkon gesetzt.
Küche eher Richtung Terrasse, Wohnen an der Westseite. Kamin im Übergang Essen/Wohnen.
Vielleicht mal als Ideensammlung.
Und, es sollte doch mit Keller sein - oder?
Podesttreppe mit gut 270 cm .. das wird wohl eng.
Ich hatte mich auch mal versucht und jetzt noch etwas angepaßt. Dabei mal den Gedanken auch von Yvonne mit Garage planoben links im Grundstück aufgegriffen.
Treppe jetzt als langgezogene Wendeltreppe.
Im EG einen Multiraum, der z. B. bei Gebrechlichkeit auch als Schlafzimmer nutzbar wäre. Das vergrößert im EG die Fläche, dafür im OG vor Arbeitsraum und Leseraum noch einen kleinen Balkon gesetzt.
Küche eher Richtung Terrasse, Wohnen an der Westseite. Kamin im Übergang Essen/Wohnen.
Vielleicht mal als Ideensammlung.