ᐅ Überdachte Terrasse als Wohnfläche anrechnen lassen?
Erstellt am: 06.12.20 20:31
K
KonstantinW06.12.20 20:31Hallo zusammen,
wir sind gerade mit unserer Planung soweit, dass wir den Bauanzeige gestellt haben. Nun sagt die Stadt, dass die Terrassenüberdachung bei der es sich um ein separates Bauteil handelt, diese deshalb für die Geschossigkeit nicht angerechnet werden kann.
Die Anrechnung kann nur erfolgen wenn die Überdachung eindeutig ein Bauteil des Hauses ist, z.B. ein abgeschlepptes Dach oder herausgezogene Deckenscheiben.
Da in der Bauverordnung keine 2 Vollgeschosse zulässig sind, wollten wir den Wert mittels dieser Terrasse erreichen.
nun zu meiner Frage..
gibt es zu den oben genannten 2 Ausführungen, weitere Möglichkeiten, damit diese zur Wohnfläche angerechnet werden kann?
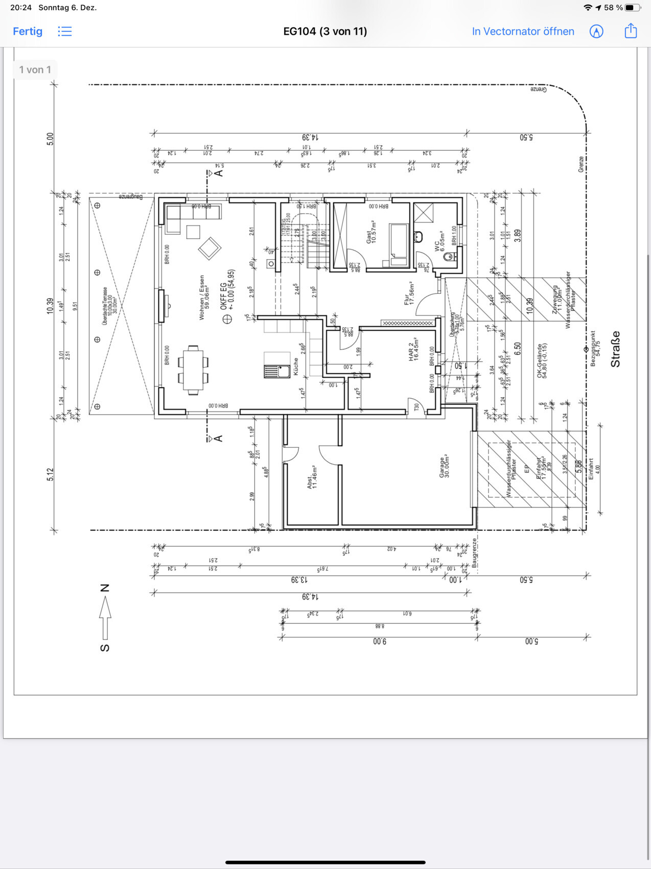
im Anhang einmal der Grundriss vom Erdgeschoss und Ansicht hinten + Seite
gruß
konstantin


wir sind gerade mit unserer Planung soweit, dass wir den Bauanzeige gestellt haben. Nun sagt die Stadt, dass die Terrassenüberdachung bei der es sich um ein separates Bauteil handelt, diese deshalb für die Geschossigkeit nicht angerechnet werden kann.
Die Anrechnung kann nur erfolgen wenn die Überdachung eindeutig ein Bauteil des Hauses ist, z.B. ein abgeschlepptes Dach oder herausgezogene Deckenscheiben.
Da in der Bauverordnung keine 2 Vollgeschosse zulässig sind, wollten wir den Wert mittels dieser Terrasse erreichen.
nun zu meiner Frage..
gibt es zu den oben genannten 2 Ausführungen, weitere Möglichkeiten, damit diese zur Wohnfläche angerechnet werden kann?
im Anhang einmal der Grundriss vom Erdgeschoss und Ansicht hinten + Seite
gruß
konstantin
KonstantinW schrieb:
Da in der Bauverordnung keine 2 Vollgeschosse zulässig sind, wollten wir den Wert mittels dieser Terrasse erreichen.Originelle Idee! Habt ihr keinen Architekten?Zu Deiner Frage hinsichtlich der Geschossigkeit und Möglichkeiten fehlt das OG, Schnitte und/oder Ansichten sind nicht wirklich nötig.
Ansonsten einfach mal den Kniestock verkleinern.
By the Way: Entwurf ist nicht durchdacht: Sofazone als Durchgangszimmer ist nicht das, was zum alltäglichen Wohnen toll ist.
Ohne Obergeschoss sehe ich mich als einzigen leidlich qualifizierten Senf dazu geben können, daß auch ein gedeckter Freisitz ein Freisitz bleibt und nicht zur vollen Anrechnung taugen wird. Ich verstehe auch nicht, wieso Bauherren immer wieder glauben, eine Limitierung auf nur ein Vollgeschoss sei eine Einladung zum Austricksen - nein, sie ist erklärter Gestaltungswille eines Gemeinderates. Es gibt kein Menschenrecht auf ein Geradwand-OG.
https://www.instagram.com/11antgmxde/
https://www.linkedin.com/company/bauen-jetzt/
https://www.instagram.com/11antgmxde/
https://www.linkedin.com/company/bauen-jetzt/
rick2018 schrieb:
Verstehe dein Problem. Aber Terrassen werden (anteilig) immer zur Wohnfläche angerechnet;)...aber nicht bei der Geschossberechnung.K
KonstantinW07.12.20 11:33ypg schrieb:
...aber nicht bei der Geschossberechnung.genau so meinte ich es.. hab mich falsch formuliert.
also so das die Terrasse zur Geschossigkeit zählt.
Ähnliche Themen