ᐅ Wohin mit Terrasse/Wohnräumen wenn Straße auf Westseite liegt?
Erstellt am: 23.04.17 12:45
Hallo.
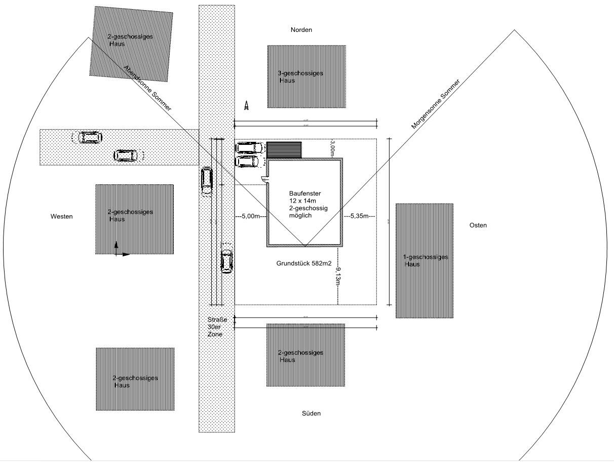
Ich habe versucht maßstabsgerecht die Umgebung unseres Grundstücks aufzuzeichnen, da wir uns sehr schwer tun mit der Frage, wo wir die Terrasse und auch unsere Wohnräume gerne hätten.
Das Grundstück hat im Westen eine Straße als 30er Zone. Dabei handelt es sich um eine Straße eines Neubaugebietes, welches später aus 40 Einfamilienhäusern besteht, also die entsprechenden PKW alle an unserem Grundstück vorbeifahren müssen. Ebenso müssen unsere PKW Stellplätze im Nord/Westen liegen.
Sehr oft habe ich gelesen, dass die Terrasse gerne Richtung Westen ausgerichtet wird, sofern man ein Sonnenmensch ist. Das sind wir auch. Westen würde allerdings bei uns bedeuten, dass wir die Terrasse Richtung Straßenseite hätten. Etwas unsicher sind wir wegen dem Lärm der Pkws. Das können wir bei einer 30er Zone nicht einschätzen.
Ebenso darf es eine höchstens 80cm hohe Umfriedung geben, so dass die Leute uns direkt auf die Teller schauen würden bei einer Westterrasse. Gleiches würde gelten wenn wir das Esszimmer in den Westen legen würden. Und im Wohnzimmer möchte man auch am liebsten nicht so beobachtet werden...
Ich weiß, die eierlegende Wollmilchsau (Sonne von morgens bis abends und Privatsphäre pur) gibt es nicht... Uns würde dennoch interessieren wo Ihr an unserer Stelle die Gartenterrasse hinsetzen würdet und welche Räume ihr im Westen des Hauses anlegen würdet.
Freuen uns auf eure Ideen und Vorschläge.
Euer Peter

Ich habe versucht maßstabsgerecht die Umgebung unseres Grundstücks aufzuzeichnen, da wir uns sehr schwer tun mit der Frage, wo wir die Terrasse und auch unsere Wohnräume gerne hätten.
Das Grundstück hat im Westen eine Straße als 30er Zone. Dabei handelt es sich um eine Straße eines Neubaugebietes, welches später aus 40 Einfamilienhäusern besteht, also die entsprechenden PKW alle an unserem Grundstück vorbeifahren müssen. Ebenso müssen unsere PKW Stellplätze im Nord/Westen liegen.
Sehr oft habe ich gelesen, dass die Terrasse gerne Richtung Westen ausgerichtet wird, sofern man ein Sonnenmensch ist. Das sind wir auch. Westen würde allerdings bei uns bedeuten, dass wir die Terrasse Richtung Straßenseite hätten. Etwas unsicher sind wir wegen dem Lärm der Pkws. Das können wir bei einer 30er Zone nicht einschätzen.
Ebenso darf es eine höchstens 80cm hohe Umfriedung geben, so dass die Leute uns direkt auf die Teller schauen würden bei einer Westterrasse. Gleiches würde gelten wenn wir das Esszimmer in den Westen legen würden. Und im Wohnzimmer möchte man auch am liebsten nicht so beobachtet werden...
Ich weiß, die eierlegende Wollmilchsau (Sonne von morgens bis abends und Privatsphäre pur) gibt es nicht... Uns würde dennoch interessieren wo Ihr an unserer Stelle die Gartenterrasse hinsetzen würdet und welche Räume ihr im Westen des Hauses anlegen würdet.
Freuen uns auf eure Ideen und Vorschläge.
Euer Peter
infors schrieb:
Westen würde allerdings bei uns bedeuten, dass wir die Terrasse Richtung Straßenseite hätten. Etwas unsicher sind wir wegen dem Lärm der Pkws. Das können wir bei einer 30er Zone nicht einschätzen.
Ebenso darf es eine höchstens 80cm hohe Umfriedung geben, so dass die Leute uns direkt auf die Teller schauen würden bei einer Westterrasse.Da die Leute nicht gleichzeitig bei Schnuckline in BaWü und bei Euch in NRW auf den Teller schauen können, wird das Gedränge der Schaulustigen sich in Grenzen halten.
Es gibt zwei Arten von 30er Zonen: Straßen, die lediglich ein Baugebiet erschließen, und als Abkürzung / Ampelumfahrung für Berufspendler nicht zu gebrauchen sind (und die nicht zu einem Supermarkt führen), sind die ruhige Sorte.
Und bei niedrigen Einfriedungen haben die Schnellfahrer Angst, daß Ihr ihre Kennzeichen gut sehen könnt, und halten sich dann an die Fahrlärmbegrenzung. So lange die Gemeinde keine Bremspümpel auf die Fahrbahn bastelt, ist wenig Lärm zu befürchten. Am sichersten vor solchen Schnapsideen ist man übrigens in der Straße, wo der Bauderzernent wohnt
Seitenparavents von Terrassen können durchaus auch höher ausfallen. Ich würde mich da nicht verrückt machen.
https://www.instagram.com/11antgmxde/
https://www.linkedin.com/company/bauen-jetzt/
Darf die Einfriedung an jeder Grundstücksseite nur 80cm Höhe betragen oder nur an der Strasseseite (offener Vorgarten)?
Ich würde zB eine Ecke der Terrasse eh etwas mit Sichtschutz (auch Busch oder Hecke) einfrieden, mir dazu dann zwischen Terrasse und zB Zufahrt in der Sichtachse einen Solitärbusch pflanzen, sodass man sichtgeschützt ist.
Ich versuche, es mal aufzuzeichnen
Gruß, Yvonne
Ich würde zB eine Ecke der Terrasse eh etwas mit Sichtschutz (auch Busch oder Hecke) einfrieden, mir dazu dann zwischen Terrasse und zB Zufahrt in der Sichtachse einen Solitärbusch pflanzen, sodass man sichtgeschützt ist.
Ich versuche, es mal aufzuzeichnen
Gruß, Yvonne
Ähnliche Themen