Hi zusammen!
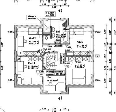
Wir sind grade wieder mal unseren Grundriss durchgegangen. Unser Architekt hat uns für unseren Grundriss eine "einläufig halbgewendelte Treppe" empfohlen.
Ein Bekannter meinte aber, dass das total doof wäre, denn da wäre der Anlauf ja mitten im Raum. -Und ich glaube er hat recht.
Was findet ihr schöner/praktischer eine "einläufig halbgewendelte Treppe" oder eine "einläufig grade Treppe".
Ich habe mal unsere Grundriss mit angehängt und ein anderes Beispiel, wie es auch aussehen könnte.
Danke für euer Feedback!
Liebe Grüße!

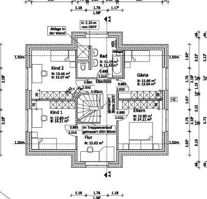
Wir sind grade wieder mal unseren Grundriss durchgegangen. Unser Architekt hat uns für unseren Grundriss eine "einläufig halbgewendelte Treppe" empfohlen.
Ein Bekannter meinte aber, dass das total doof wäre, denn da wäre der Anlauf ja mitten im Raum. -Und ich glaube er hat recht.
Was findet ihr schöner/praktischer eine "einläufig halbgewendelte Treppe" oder eine "einläufig grade Treppe".
Ich habe mal unsere Grundriss mit angehängt und ein anderes Beispiel, wie es auch aussehen könnte.
Danke für euer Feedback!
Liebe Grüße!
M
Milanni12322.02.16 22:32M
Milanni12302.05.16 20:21Hi zusammen! Ich traue mich fast nicht, das hier zu fragen... Wir haben uns ja nun für die halbgewendelte Treppe entschieden.
Allerdings sind wir uns hier mit der Laufrichtug noch nicht einig. Was sagt ihr?
So wie sie aktuell im Grundriss ist, läuft man ja direkt auf das Treppengeländer zu, wenn man rein kommt. Würden wir die Laufrichtung umkehren, dann würde die Treppe ja erst hinten an der Wand entlang laufen und man würde dann praktisch unter durch laufen.
Wie ist das eure Meinung? Ich glaube wenn wir die Laufrichtung umkehren, dann könnte alles offener wirken. Oder?
Liebe Grüße und ich hoffe ich nerve nicht, mit der Treppen-Fragerei!


Allerdings sind wir uns hier mit der Laufrichtug noch nicht einig. Was sagt ihr?
So wie sie aktuell im Grundriss ist, läuft man ja direkt auf das Treppengeländer zu, wenn man rein kommt. Würden wir die Laufrichtung umkehren, dann würde die Treppe ja erst hinten an der Wand entlang laufen und man würde dann praktisch unter durch laufen.
Wie ist das eure Meinung? Ich glaube wenn wir die Laufrichtung umkehren, dann könnte alles offener wirken. Oder?
Liebe Grüße und ich hoffe ich nerve nicht, mit der Treppen-Fragerei!
Ähnliche Themen